Advertorial

Technická akadémia Saint-Gobain: Registrácia na školenie pre architektov a projektantov

Navrhujte riešenia, ktoré obstoja aj v praxi.! Odborný pohľad na návrhy projektov, ktoré prežijú...

Vytvorte si kúpeľňu snov: dizajnové riešenie od značky hansgrohe

Hansgrohe - prémiová značka kúpeľňových riešení, ponúka nadčasový dizajn, technickú precíznosť a udržateľné inovácie...

Okná Internorm za minuloročné ceny + hliníkový kryt zdarma!

Využite špeciálnu akciu Internorm: okná za minuloročné ceny a hliníkový kryt úplne zadarmo. Ponuka je časovo obmedzená!

Pozvánka na 2. ročník stavebného veľtrhu BigMarket na Slovensku

Na podujatí sa predstaví až 37 vystavovateľov - popredných dodávateľov stavebných materiálov a inovácií s prezentáciou...

Moderné plynové technológie: Efektivita a inovácie pre 21. storočie

Sumarizácia najdôležitejších inovácií, ktoré redefinujúcich využitie tohto energetického zdroja.

Utesňovanie spodných stavieb pomocou hydro-aktívnej fólie AMPHIBIA.

AMPHIBIA 3000 GRIP 1.3 od spoločnosti ATRO predstavuje modernú hydroizolačnú technológiu, ktorá spája vysokú odolnosť,...

Dekarbonizácia individuálneho vykurovania domácností – Green Deal evolučne a nie revolučne

Ambiciózne plány EK narazili na ekonomické možnosti domácností v jednotlivých členských štátoch –...

Minimalistické dvere IDEA – technická precíznosť a čistota prevedenia

IDEA DOOR od spoločnosti JAP prináša do interiéru čistý minimalistický vzhľad vďaka bezrámovému riešeniu a precíznej...

Dom s výhľadom na údolie, Dlouhý Most (ČR)

Kontinuita riešenia od vonkajšieho obkladu až po kovania a kľučky.

Schell Vitus – osvedčené riešenie pre sprchy a umývadlá vo verejnom sektore s viac ako desaťročnou tradíciou

Nástenné nadomietkové armatúry Vitus sú mimoriadne vhodné pre rýchlu a efektívnu...

Kompozitné okná predstavujú súčasnosť a budúcnosť

Okenné profily z kompozitného materiálu RAU-FIPRO X od spoločnosti Rehau sú v porovnaní s tradičnými plastovými profilmi mnohonásobne...

Myotis - stoly 2025

Najnovší sortiment stolov pre zariadenie interiérov...

Priemyselné sklenené priečky Dorsis Digero: svetelné rozhranie pre moderné interiéry

Spojenie moderného dizajnu, funkčnosti a svetla do harmonického architektonického prvku.

Význam prirodzeného svetla pre moderné a flexibilné pracovné prostredie

Kancelárska budova Baumit v slovinskom Trzine prešla premenou na moderné a udržateľné pracovisko. Architekti kládli dôraz...

Konferencia Xella Dialóg predstaví novinky a trendy v stavebníctve

Mottom šiesteho ročníku on-line konferencie odborníkov Xella Dialóg je Efektívny návrh budov 2025+: zmeny a riešenia

Byt pre hudobníka a lezca, Ústí nad Labem

Interiér na druhom poschodí novostavby v Ústí nad Labem. Klient je profesionálny muzikant a hobby lezec.
Diela
Red 424.04.2019
11640+8
Byt pre hudobníka a lezca, Ústí nad Labem
Autori: Ing.arch. Štěpán Havlík HavlíkPodlažná plocha: 69,4 m2Návrh: 2014 - 2014Realizácia: 2015 - 2015Adresa: Ústí nad Labem, Česká republikaPublikované: 24. apríl 2019

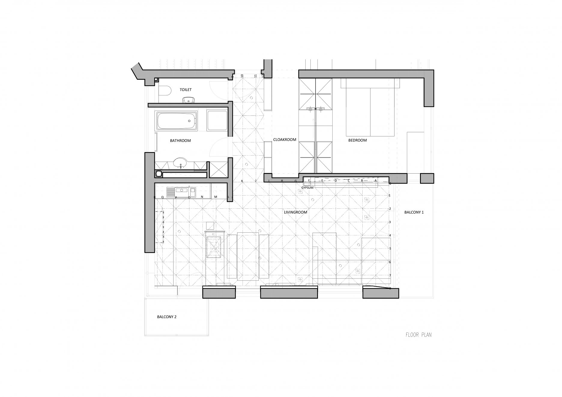
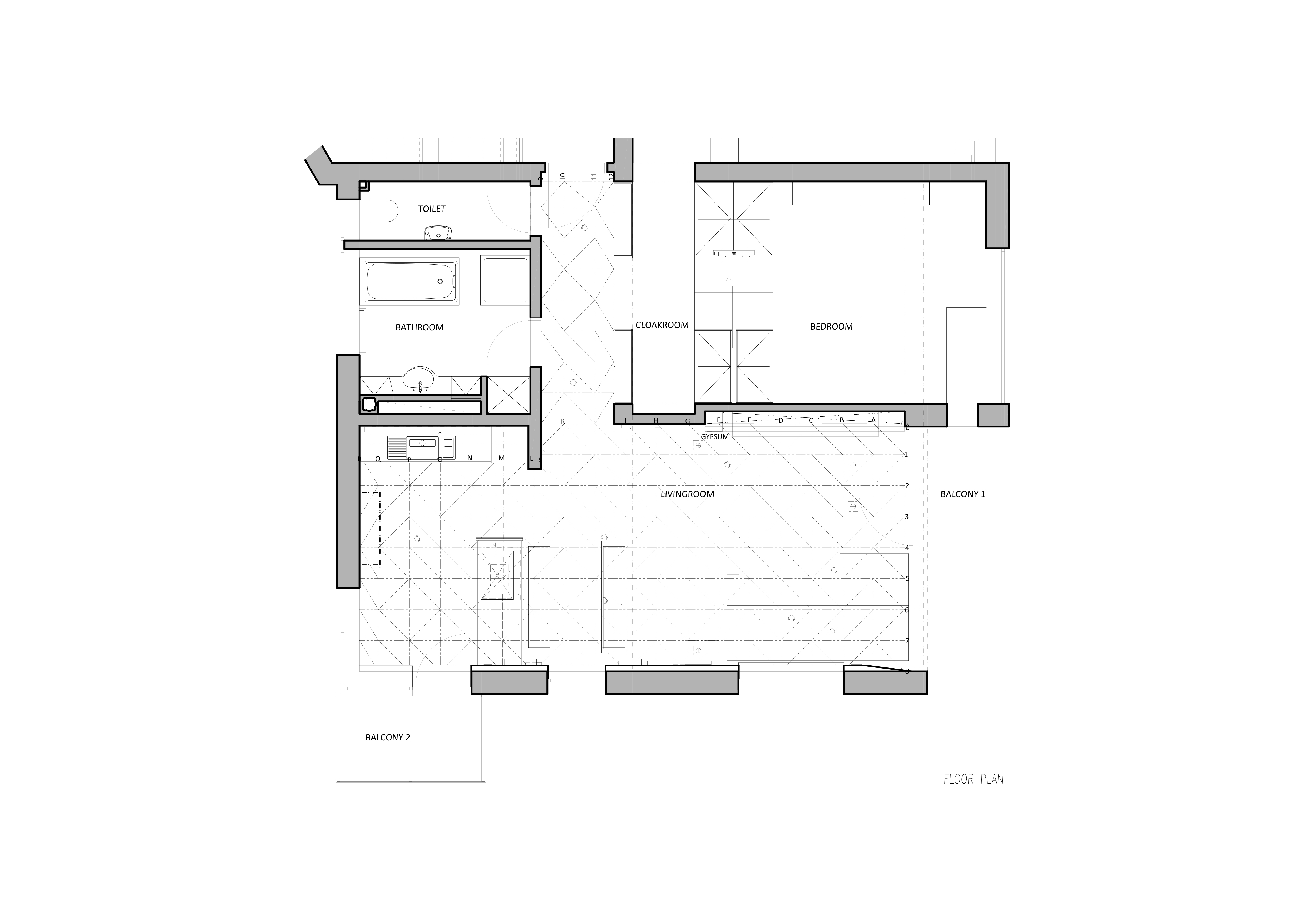
Podlahy a okná ostali zachované, architekt zariaďoval väčšiu časť obytnej plochy bytu. Medzi najvýraznejšie zásahy do dispozície patrilo rozdelenie pôvodnej predsiene nábytkovou stenou a situovanie šatníka do centrálnej časti bytu. Svetlo plynúce cez rozmerné zasklenie balkónovej steny sa láme na hranách plastického preglejkového podhľadu (reminiscencia lezeckej steny). Náklady na zariadenie nepresiahli milión českých korún.

„Klient si oblíbil vnitřní vybavení chalup, které jsou hojně rozesety po kopcích v okolní krajině Českého Středohoří. Naším záměrem bylo neopakovat zavedené architektonické fráze, ale vytvořit současnou odpověď na klientovy požadavky. Z chalup jsme si vzali interiér v podobě masivního nábytku,” vysvetľuje architekt. Výber materiálov a farieb korešponduje s vkusom užívateľa. V interiéri prevláda bielená brezová preglejka doplnená tmavou cementovou stierkou a dubovým drevom.

Foto: BoysPlayNice

„Celkové řešení s výrazně modelovaným stropem ze světlé překližky využívá velké plochy balkonového okna k prosvětlení interiéru,” zdôrazňuje Štěpán Havlík. Podhľad ukrýva systém nosných bodov (pre zavesenie hrazdy, hojdacej siete…), elektrické rozvody a bodové svetlá. Zároveň integruje digestor v kuchynskej časti a prievlak v obývačke. “Rozhodnutí vložit prolamovaný podhled nebylo snadné, protože znamenalo citelné snížení světelné výšky místnosti. Svébytnost řešení a funkčnost stropu nás ale přesvědčila o správnosti tohoto řešení,“ dodáva Havlík.

Foto: BoysPlayNice
Foto: BoysPlayNice

Pôvodná predsieň bola rozdelená nábytkovou stenou na chodbu a šatník. Už pri vstupe je tak vizuálne posilnená pohľadová os vedúca k oknu nad jedálenským stolom. Šatňa uprostred dispozície funguje ako filter spálňovej časti. Zariadenie kuchyne formujú rozmerné moduly "vysunuté" zo stien. Pracovný priestor kuchynskej linky je tvorený vyňatím časti objemu, ktorý je následne "prenesený" na protiľahlú stenu. Vsadená pracovná doska aj drez sú vyhotovené z hrubej žuly so štrukturovaným povrchom. Stena s nepravidelne rozmiestnenými poličkami je obložená preglejkou, miesto tu našla aj malá zabudovaná vinotéka. Protiľahlá stena s malými zásuvkami je miestom pre knihy, sound-system a iné predmety z výbavy muzikanta.

Foto: BoysPlayNice
Foto: BoysPlayNice
Foto: BoysPlayNice
Foto: BoysPlayNice
Foto: BoysPlayNice
Foto: BoysPlayNice
Foto: BoysPlayNice
Foto: BoysPlayNice
Foto: BoysPlayNice
Pôdorys
PôdorysAutor - a-sh: architekt Štěpán Havlík
Rozvinuté pohľady
Rozvinuté pohľadyAutor - a-sh: architekt Štěpán Havlík
Rezy podhľadom
Rezy podhľadomAutor - a-sh: architekt Štěpán Havlík
Skica
SkicaAutor - a-sh: architekt Štěpán Havlík

Poloha diela

Ing.arch. Štěpán Havlík Havlík
Vložené
25. marec 2019
0
1164
Hlavný obsahHlavný obsah
Čakajte prosím