Advertorial

Pozvánka na 2. ročník stavebného veľtrhu BigMarket na Slovensku

Na podujatí sa predstaví až 37 vystavovateľov - popredných dodávateľov stavebných materiálov a inovácií s prezentáciou...

Hotel Hirschen Spa House, Rakúsko

Novotvar v prostredí alpskej obce.

Vytvorte si kúpeľňu snov: dizajnové riešenie od značky hansgrohe

Hansgrohe - prémiová značka kúpeľňových riešení, ponúka nadčasový dizajn, technickú precíznosť a udržateľné inovácie...

Okná Internorm za minuloročné ceny + hliníkový kryt zdarma!

Využite špeciálnu akciu Internorm: okná za minuloročné ceny a hliníkový kryt úplne zadarmo. Ponuka je časovo obmedzená!

Moderné plynové technológie: Efektivita a inovácie pre 21. storočie

Sumarizácia najdôležitejších inovácií, ktoré redefinujúcich využitie tohto energetického zdroja.

Utesňovanie spodných stavieb pomocou hydro-aktívnej fólie AMPHIBIA.

AMPHIBIA 3000 GRIP 1.3 od spoločnosti ATRO predstavuje modernú hydroizolačnú technológiu, ktorá spája vysokú odolnosť,...

Dekarbonizácia individuálneho vykurovania domácností – Green Deal evolučne a nie revolučne

Ambiciózne plány EK narazili na ekonomické možnosti domácností v jednotlivých členských štátoch –...

Minimalistické dvere IDEA – technická precíznosť a čistota prevedenia

IDEA DOOR od spoločnosti JAP prináša do interiéru čistý minimalistický vzhľad vďaka bezrámovému riešeniu a precíznej...

Dom s výhľadom na údolie, Dlouhý Most (ČR)

Kontinuita riešenia od vonkajšieho obkladu až po kovania a kľučky.

Schell Vitus – osvedčené riešenie pre sprchy a umývadlá vo verejnom sektore s viac ako desaťročnou tradíciou

Nástenné nadomietkové armatúry Vitus sú mimoriadne vhodné pre rýchlu a efektívnu...

Kompozitné okná predstavujú súčasnosť a budúcnosť

Okenné profily z kompozitného materiálu RAU-FIPRO X od spoločnosti Rehau sú v porovnaní s tradičnými plastovými profilmi mnohonásobne...

Myotis - stoly 2025

Najnovší sortiment stolov pre zariadenie interiérov...

Priemyselné sklenené priečky Dorsis Digero: svetelné rozhranie pre moderné interiéry

Spojenie moderného dizajnu, funkčnosti a svetla do harmonického architektonického prvku.

Význam prirodzeného svetla pre moderné a flexibilné pracovné prostredie

Kancelárska budova Baumit v slovinskom Trzine prešla premenou na moderné a udržateľné pracovisko. Architekti kládli dôraz...

Konferencia Xella Dialóg predstaví novinky a trendy v stavebníctve

Mottom šiesteho ročníku on-line konferencie odborníkov Xella Dialóg je Efektívny návrh budov 2025+: zmeny a riešenia

Byt pre mladú rodinu - STEIN2, Bratislava

Dub namiesto laminátu.
Diela
Red 312.03.2023
29170+69
Byt pre mladú rodinu - STEIN2, Bratislava
Autori: Ing. arch. Štefan Kačáni, Ing. arch. Ján Kamenský, Ing. arch. Katarína LaššákováPodlažná plocha: 92 m2Návrh: 2020 - 2020Realizácia: 2022 - 2022Adresa: Bernolákova , Bratislava, SlovenskoPublikované: 12. marec 2023

Interiér štvorizbového bytu v novostavbe STEIN2 v súčasnosti obýva trojčlenná rodina s malým dieťaťom. Ich vstup do vzájomnej spolupráce sa stal zásadným. Už pri prvej konzultácií padlo rozhodnutie, že základný štandard bytu s laminátovými podlahami a drevodekorom na dverách nevyhovuje požiadavkám klientov, napriek tomu, že si ho sami zvolili. 

Ako východisko sa ukázalo využitie tradičných materiálov. Laminát nahradili dubové parkety, kladené do stromčekového vzoru, dvere boli farebne zladené so stenami...

Tvorbu interiéru ovplyvnilo tiež rodinné dedičstvo vo forme autentického nábytku a požiadavka prepojenia súčasných štandardov bývania s atmosférou staromestského interiéru. 

Ako akcenty v obývacej izbe pôsobia nábytkové solitéry s dobovou patinou - kreslo, stôl a stoličky. Dominantnú textúru dreva (drevená dubová podlaha a dubová dyha ošetrená matným olejom) vyvažujú hladké povrchy čierneho a bieleho matného laminátu. Farebnú paletu dotvára sýta tyrkysová farba čalúnenia.

Atypické stolárske výrobky sa podieľajú na členení interiéru a sú jedným z jeho nosných prvkov. Vstavaná stena v obývačke integruje dvere do spálne a komory, ktorá v pôvodnom dispozičnom riešení bytu absentovala. Tento priestor vznikol odstránením časti priečky.

Foto: Matúš Nedecký
Foto: Matúš Nedecký
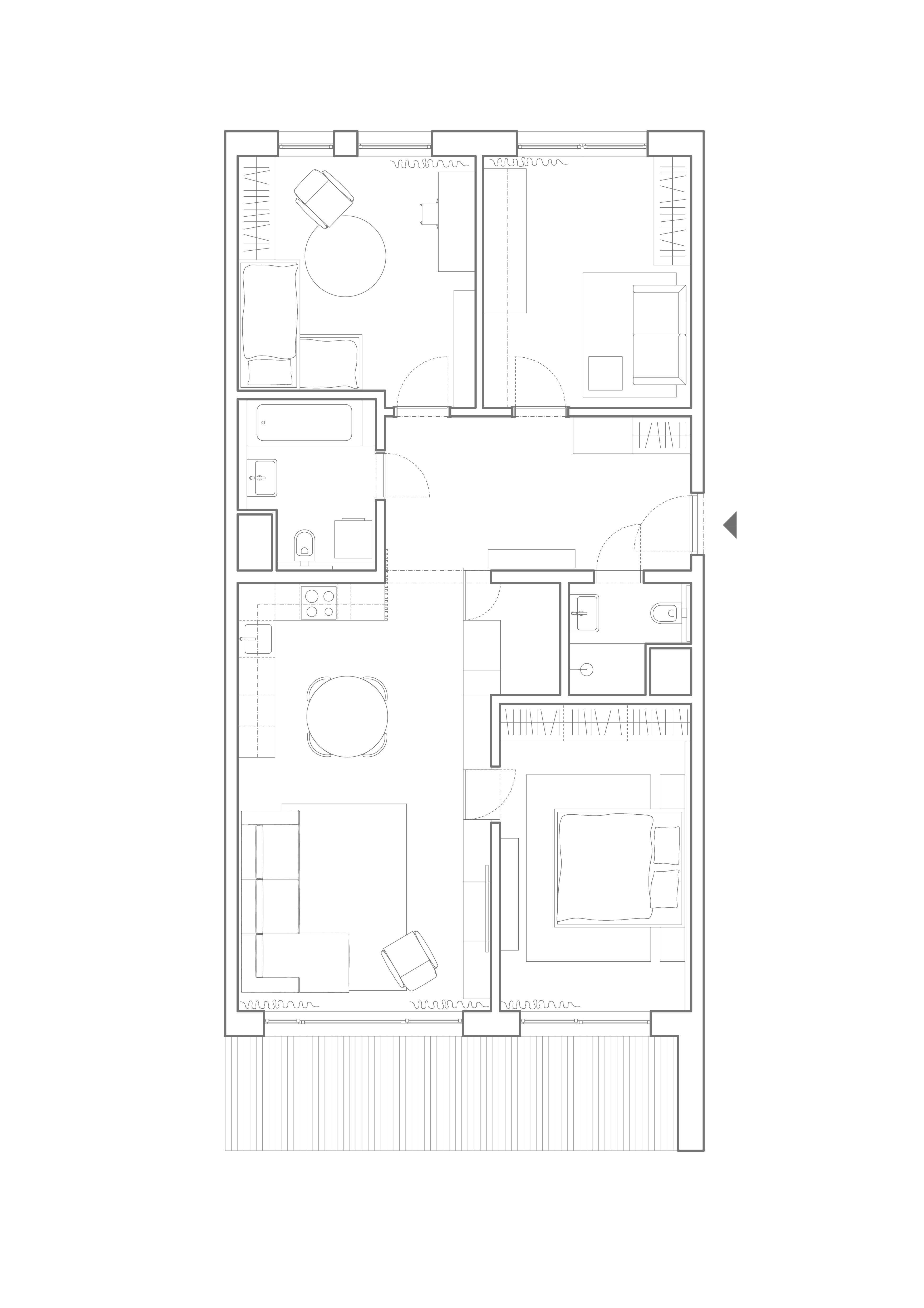
Pôdorys
PôdorysAutor: plus 2 architekti
Axonometria
AxonometriaAutor: plus 2 architekti
Foto: Matúš Nedecký
Foto: Matúš Nedecký
Foto: Matúš Nedecký
Foto: Matúš Nedecký
Foto: Matúš Nedecký
Foto: Matúš Nedecký
Foto: Matúš Nedecký
Foto: Matúš Nedecký
Foto: Matúš Nedecký
Foto: Matúš Nedecký
Foto: Matúš Nedecký
Foto: Matúš Nedecký
Foto: Matúš Nedecký
Foto: Matúš Nedecký
Foto: Matúš Nedecký
Foto: Matúš Nedecký

Podklady: plus 2 architekti
Fotogrefie: Matúš Nedecký

Poloha diela

Ing. arch. Štefan Kačáni
Ing. arch. Ján Kamenský
Ing. arch. Katarína Laššáková
Vložené
9. marec 2023
0
2917
Hlavný obsahHlavný obsah
Čakajte prosím