Na podujatí sa predstaví až 37 vystavovateľov - popredných dodávateľov stavebných materiálov a inovácií s prezentáciou...
Novotvar v prostredí alpskej obce.
Hansgrohe - prémiová značka kúpeľňových riešení, ponúka nadčasový dizajn, technickú precíznosť a udržateľné inovácie...
Využite špeciálnu akciu Internorm: okná za minuloročné ceny a hliníkový kryt úplne zadarmo. Ponuka je časovo obmedzená!
Sumarizácia najdôležitejších inovácií, ktoré redefinujúcich využitie tohto energetického zdroja.
AMPHIBIA 3000 GRIP 1.3 od spoločnosti ATRO predstavuje modernú hydroizolačnú technológiu, ktorá spája vysokú odolnosť,...
Ambiciózne plány EK narazili na ekonomické možnosti domácností v jednotlivých členských štátoch –...
IDEA DOOR od spoločnosti JAP prináša do interiéru čistý minimalistický vzhľad vďaka bezrámovému riešeniu a precíznej...
Kontinuita riešenia od vonkajšieho obkladu až po kovania a kľučky.
Nástenné nadomietkové armatúry Vitus sú mimoriadne vhodné pre rýchlu a efektívnu...
Okenné profily z kompozitného materiálu RAU-FIPRO X od spoločnosti Rehau sú v porovnaní s tradičnými plastovými profilmi mnohonásobne...
Najnovší sortiment stolov pre zariadenie interiérov...
Spojenie moderného dizajnu, funkčnosti a svetla do harmonického architektonického prvku.
Kancelárska budova Baumit v slovinskom Trzine prešla premenou na moderné a udržateľné pracovisko. Architekti kládli dôraz...
Mottom šiesteho ročníku on-line konferencie odborníkov Xella Dialóg je Efektívny návrh budov 2025+: zmeny a riešenia

“Pracovné prostredie by malo byť odrazom firemnej kultúry. Dôležité je vytvoriť zdravé pracovisko, umožniť flexibilitu, radenie priestorov tak, aby boli adaptovateľné na meniace sa potreby firmy a jej zamestnancov… “ približuje svoj prístup k projektu architekt Ján Matulník.
Nájomná jednotka softvérovej a poradenskej spoločnosti SAS Slovensko zaberá časť šiesteho nadzemného podlažia administratívnej budovy na Lazaretskej ulici. Architektonické a dispozičné riešenie vychádza zo špecifických potrieb a požiadaviek nájomníka. “
Zámerom projektu je otvorenie priestoru, doplnenie neformálnych zón, vytvorenie príjemného pracovného prostredia,” dopĺňa architekt.
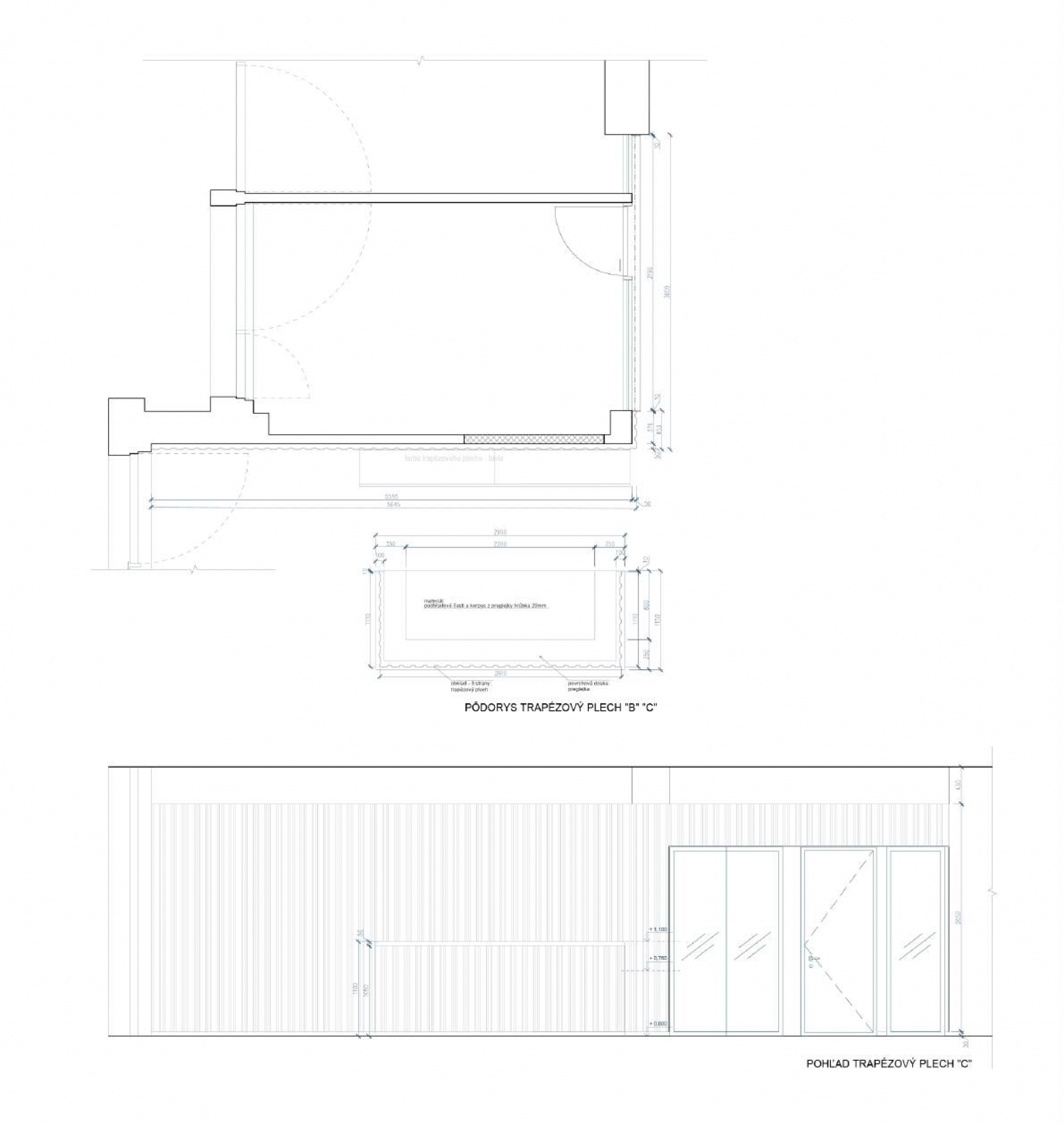
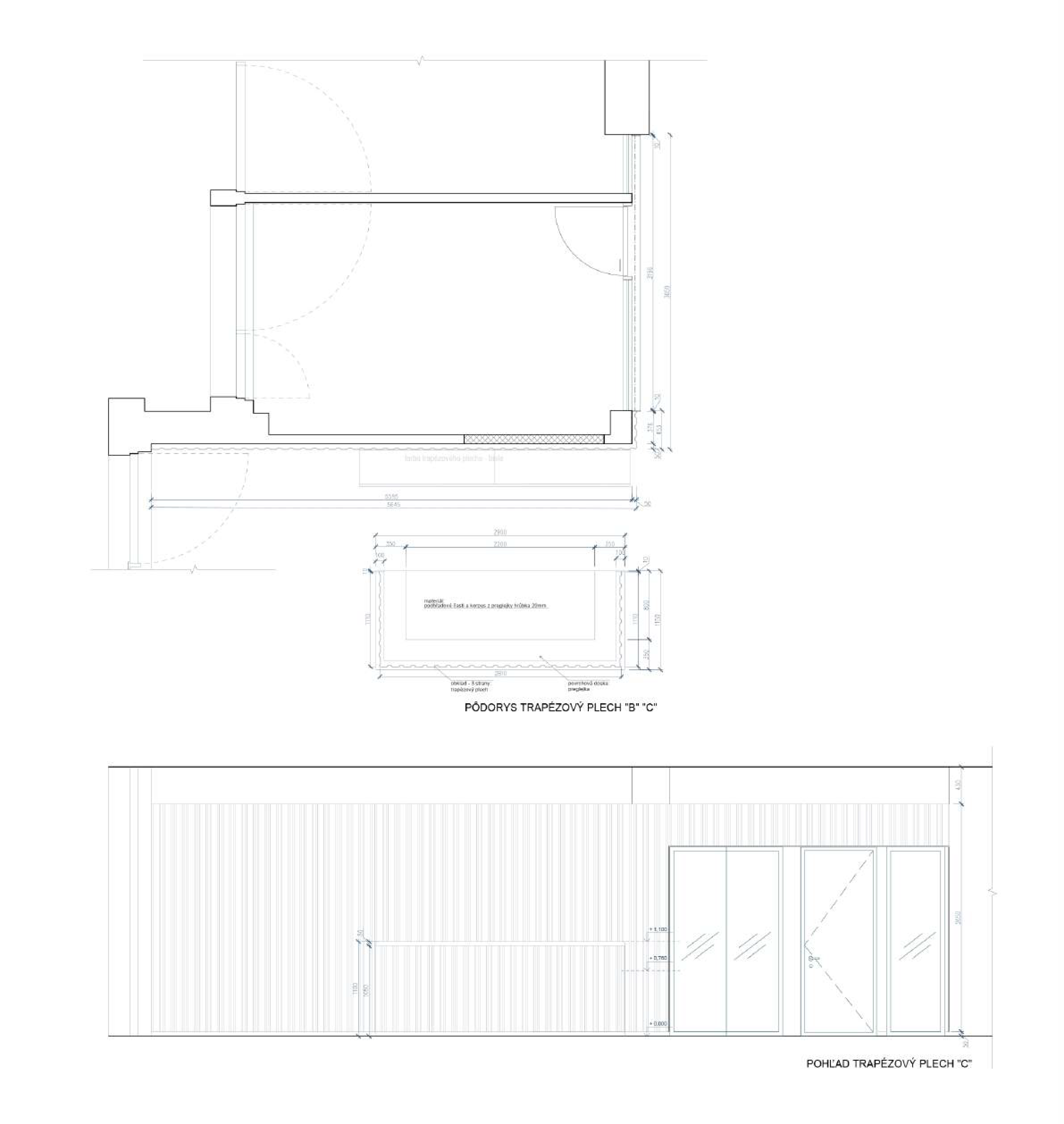
Vizuálny akcent tvorí trapézový plech použitý na zvislých konštrukciách stien. Spolu s odhaleným stropom, podvesenými akustickými membránami a priznanými konštrukčnými prvkami (tiahla a zavetrenie) sú charakteristickými prvkami interiéru.
Dispozícia
Hlavný vstup logicky nadväzuje na priestor výťahov pri vertikálnom jadre. Súčasťou vstupnej časti je recepcia, z tohto miesta sa rozvíja lineárna dispozícia. Ide o kombináciu otvorených a uzatvorených blokov, v ktorých sú situované kancelárie, zasadacie miestnosti, kolaboračná a relax zóna, kuchynka, hygienické zázemie a serverovňa.
Otvorené priestory sú od centrálnej chodby oddelené akustickými prvkami. Ide o tri špecifické boxy. V závere lineárne usporiadaného priestoru sa nachádza neformálna kolaboračná zóna s rôznym typom sedenia, veľkou kuchynkou s dominantným pracovným stolom. “Hravosť priestoru dotvára mozaiková vinylová podlaha. Limitom pri návrhu bola absencia dutinovej, zdvojenej podlahy,” dopĺňa autor.
V rámci administratívnej nájomnej jednotky sú použité dva typy podhľadov, ktoré adresujú požiadavky jednotlivých priestorov. V otvorených kanceláriách, so svetlou výškou 3,13 m, je zachovaný priehľad na odhalený strop. Dobré akustické parametre zabezpečuje podvesená membrána napnutá oceľovými tiahlami. Na oceľových tiahlach sú zavesené aj lineárne LED svietidlá. Pravouhlý raster svetelných zdrojov narúšajú dominantné kruhové solitéry, ktoré osvetľujú recepčný pult.
Podklady: Ján Matulník, CBRE