Advertorial

Vytvorte si kúpeľňu snov: dizajnové riešenie od značky hansgrohe

Hansgrohe - prémiová značka kúpeľňových riešení, ponúka nadčasový dizajn, technickú precíznosť a udržateľné inovácie...

Okná Internorm za minuloročné ceny + hliníkový kryt zdarma!

Využite špeciálnu akciu Internorm: okná za minuloročné ceny a hliníkový kryt úplne zadarmo. Ponuka je časovo obmedzená!

Pozvánka na 2. ročník stavebného veľtrhu BigMarket na Slovensku

Na podujatí sa predstaví až 37 vystavovateľov - popredných dodávateľov stavebných materiálov a inovácií s prezentáciou...

Moderné plynové technológie: Efektivita a inovácie pre 21. storočie

Sumarizácia najdôležitejších inovácií, ktoré redefinujúcich využitie tohto energetického zdroja.

Utesňovanie spodných stavieb pomocou hydro-aktívnej fólie AMPHIBIA.

AMPHIBIA 3000 GRIP 1.3 od spoločnosti ATRO predstavuje modernú hydroizolačnú technológiu, ktorá spája vysokú odolnosť,...

Dekarbonizácia individuálneho vykurovania domácností – Green Deal evolučne a nie revolučne

Ambiciózne plány EK narazili na ekonomické možnosti domácností v jednotlivých členských štátoch –...

Minimalistické dvere IDEA – technická precíznosť a čistota prevedenia

IDEA DOOR od spoločnosti JAP prináša do interiéru čistý minimalistický vzhľad vďaka bezrámovému riešeniu a precíznej...

Dom s výhľadom na údolie, Dlouhý Most (ČR)

Kontinuita riešenia od vonkajšieho obkladu až po kovania a kľučky.

Schell Vitus – osvedčené riešenie pre sprchy a umývadlá vo verejnom sektore s viac ako desaťročnou tradíciou

Nástenné nadomietkové armatúry Vitus sú mimoriadne vhodné pre rýchlu a efektívnu...

Kompozitné okná predstavujú súčasnosť a budúcnosť

Okenné profily z kompozitného materiálu RAU-FIPRO X od spoločnosti Rehau sú v porovnaní s tradičnými plastovými profilmi mnohonásobne...

Myotis - stoly 2025

Najnovší sortiment stolov pre zariadenie interiérov...

Priemyselné sklenené priečky Dorsis Digero: svetelné rozhranie pre moderné interiéry

Spojenie moderného dizajnu, funkčnosti a svetla do harmonického architektonického prvku.

Význam prirodzeného svetla pre moderné a flexibilné pracovné prostredie

Kancelárska budova Baumit v slovinskom Trzine prešla premenou na moderné a udržateľné pracovisko. Architekti kládli dôraz...

Konferencia Xella Dialóg predstaví novinky a trendy v stavebníctve

Mottom šiesteho ročníku on-line konferencie odborníkov Xella Dialóg je Efektívny návrh budov 2025+: zmeny a riešenia

Murovací robot WLTR stavia svoj prvý dom na Slovensku

Robot WLTR predstavuje moderný prístup k murovaným konštrukciám. Vďaka automatizácii dokáže rýchlo, presne a bezpečne realizovať...

Projekt interiéru "ML", Trenčín

Návrh dvojizbovej bytovej jednotky v novostavbe bytového domu v Trenčíne
Diela
Roman Ruhig10.11.2020
7720+0
Projekt interiéru "ML", Trenčín
Ateliér: ER AtelierAutori: Ing. arch. Ing. Roman Ruhig, PhD., Ing. arch. Ing. Ema Ruhigová (Kiabová), PhD.Investor: Labioma s.r.o.Podlažná plocha: 65,9Návrh: 2019 - 2020Adresa: Trenčín, SlovenskoPublikované: 10. november 2020

Koncept návrhu reaguje na súčasné požiadavky investora: jednoduchosť a strohosť bez zbytočného dekoru, funkčnosť, otvorená denná zóna. V prvom kroku pri návrhu bolo potrebné zanalyzovať pôvodný realizačný projekt a jeho možné úpravy ešte pred dokončením bytového domu. Z pôvodného projektu boli vyhodené všetky nenosné priečky z dôvodu zväčšenia spoločenskej zóny (obývacej miestnosti s kuchyňou), kde sa vestibul stal súčasťou tejto zóny. Táto dispozičná zmena presvetlila vestibul denným svetlom, čo v pôvodnom projekte absentovalo. Zároveň bolo možné vytvoriť menšiu miestnosť s oddelenou toaletou. Vďaka natočeniu kúpeľne sa vytvoril priestor pre osadenie umývadla, sprchového kútu a aj vane v normatívnych rozmeroch.

Odstránené nenosné konštrukcie z pôvodného projektu
Odstránené nenosné konštrukcie z pôvodného projektu
Nové konštrukcie
Nové konštrukcie
Nový stav so zariadením
Nový stav so zariadením
Axonometria
Axonometria

Dominantnou časťou v bytovej jednotke je vstavaná skriňa, ktorá pomyselne prebieha zo spoločenskej zóny do súkromnej zóny, opticky oddeľuje vestibul od kuchyne a zakrýva stúpačky na dažďovú vodu vedené priamo v dispozícii bytu. Vstavaný pozdĺžny nábytok rešpektuje pozdĺžny smer bytu a vymedzuje tak jeho priestor. Kuchyňa je navrhnutá v jednoduchom prevedení, kde hlavná časť nábytkovej zostavy disponuje iba jedným otvorom slúžiacim na prípravu jedál. Oproti tejto zostave je navrhnutý ostrovček, v ktorom je zabudované varenie doplnené odvodom odpadového vzduchu (vstavaným digestorom). Obývačková zostava pozostáva z pohovky v tvare "L", konferenčného stolíka a menšej zavesenej skrinky pod TV. Spálňa sa taktiež nesie v jednoduchom duchu, kde bola navrhnutá posteľ s čalúneným čelom a nočným stolíkom zapracovaným v nábytku, ktorý zároveň skrýva radiátor. V byte sa nachádzajú tri radiátory, ktoré sú zabudované v vstavanej skrini do úrovne parapetu, tak aby boli skryté, no zároveň cez štrbiny medzi lamelami z bočnej strany a cez oceľovú mriežku z vrchnej strany zabezpečili dostatočné prúdenie tepla. Nábytok prekrývajúci radiátory je riešený v pozdĺžnom smere, obdobnom ako pri šatníkovej skrini na protiľahlej stene. Materiálové riešenie sa nesie v minimalistickom prevedení. Vo vestibule, spálni a spoločenskej zóne je navrhnutá dubová podlaha. Z dubu sú navrhnuté aj dvierka na vstavanej pozdĺžnej skrini a skrinka v kúpeľni, ktorá v ňom akcentuje a prepája materiálové riešenie bytu. V kúpeľni je navrhnutá dlažba s obkladom z technického bieleho kameňa, ktorý opticky zväčšuje priestor aj vďaka svojej drobnej žilovitej textúre. Obdobne je riešený ostrovček a pracovný priestor kuchyne. V pohotovostnom WC je navrhnutý obklad a dlažba menšieho formátu, taktiež v bielej farbe. V bielej farbe je navrhnutý aj nábytok kratšej šatníkovej skrine pri vstupe do bytu, posteľ a väčšina úložného priestoru v kuchyni. Jedinou farebnou výnimkou v kuchynskej nábytkovej zostave je bledo šedé prevedenie skriniek nad pracovnou doskou z dôvodu hmotovej zmeny v kompozícii nábytku. Stena, v ktorej sa nachádzajú vstupné dvere do bytu je obložená bielymi lamelami, ako aj v prípade obývačkovej steny, vďaka čomu sa tieto steny opticky prepájajú a začisťujú priestor rastrom, ktorý je navrhnutý aj na dverách medzi spálňou a spoločenskou časťou. Farebným akcentom v byte je iba mobiliár slúžiaci na sedenie (pohovka, barové stoličky, taburet). Bytové doplnky ako osvetlenie, drobný mobiliár (taburet, konferenčný stolík), vešiaky, umývadlo v kúpeľni, batérie ... , sa nesú v geometrii kruhov, ktoré zjemňujú radikálny priamočiary dizajn.

Projekt interiéru - pôdorys
Projekt interiéru - pôdorys
Projekt interiéru - pohľad 1, 2, 3
Projekt interiéru - pohľad 1, 2, 3
Projekt interiéru - pohľad 4, 5, 6
Projekt interiéru - pohľad 4, 5, 6
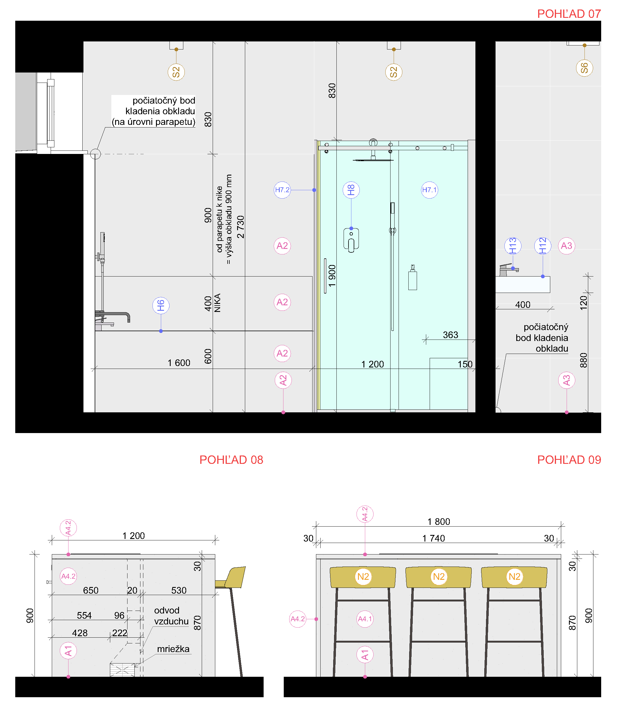
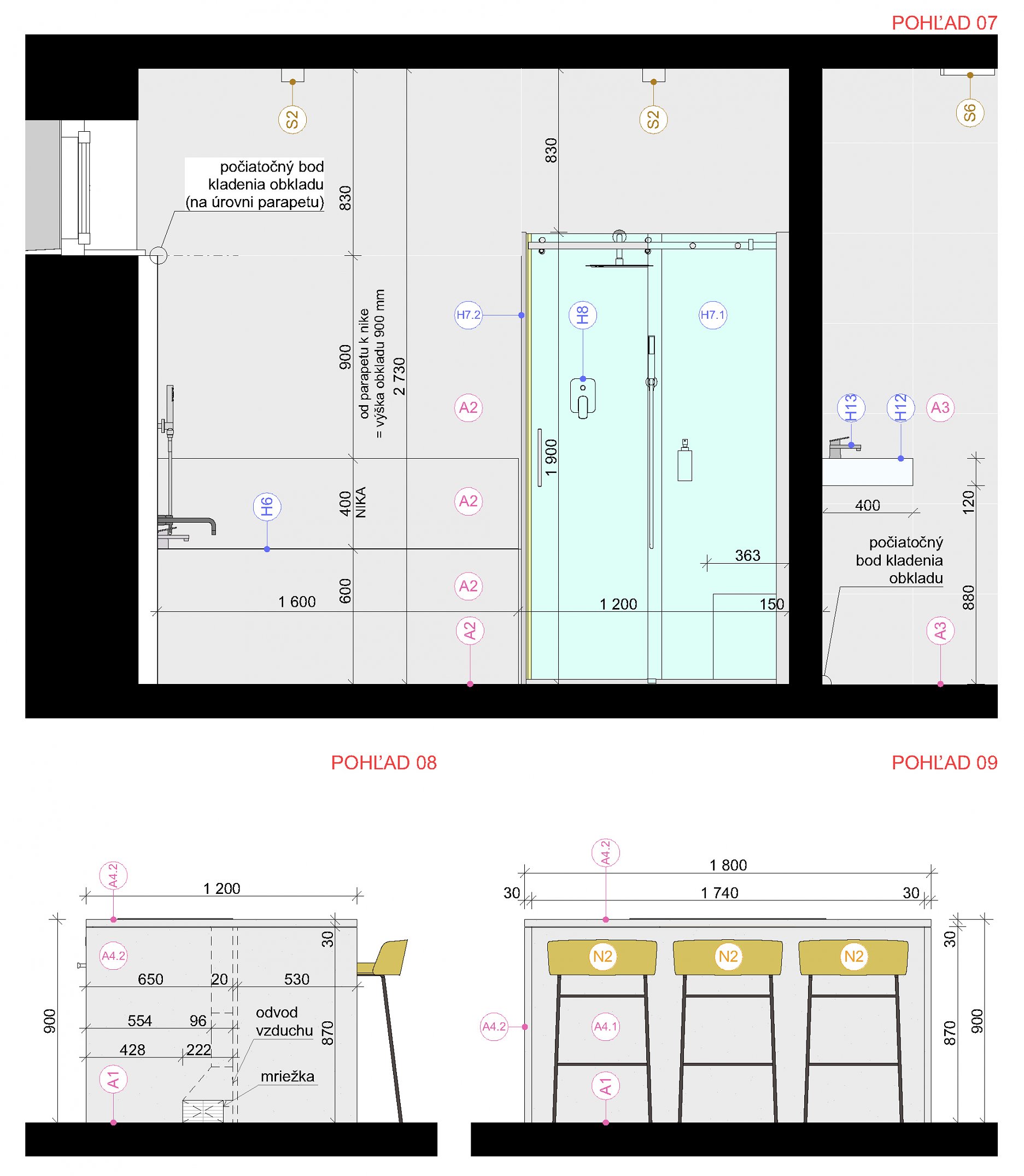
Projekt interiéru - pohľad 7, 8, 9
Projekt interiéru - pohľad 7, 8, 9
Vstup z vestibulu do spoločenskej zóny
Vstup z vestibulu do spoločenskej zóny
Spoločenská zóna
Spoločenská zóna
Kuchyňa
Kuchyňa
Kúpeľňa
Kúpeľňa
Kúpeľňa
Kúpeľňa
Spálňa
Spálňa

Ateliér

Ing. arch. Ing. Roman Ruhig, PhD.
Ing. arch. Ing. Ema Ruhigová (Kiabová), PhD.
Vložené
10. november 2020
0
772
Hlavný obsahHlavný obsah
Čakajte prosím