Advertorial

Pozvánka na 2. ročník stavebného veľtrhu BigMarket na Slovensku

Na podujatí sa predstaví až 37 vystavovateľov - popredných dodávateľov stavebných materiálov a inovácií s prezentáciou...

Hotel Hirschen Spa House, Rakúsko

Novotvar v prostredí alpskej obce.

Vytvorte si kúpeľňu snov: dizajnové riešenie od značky hansgrohe

Hansgrohe - prémiová značka kúpeľňových riešení, ponúka nadčasový dizajn, technickú precíznosť a udržateľné inovácie...

Okná Internorm za minuloročné ceny + hliníkový kryt zdarma!

Využite špeciálnu akciu Internorm: okná za minuloročné ceny a hliníkový kryt úplne zadarmo. Ponuka je časovo obmedzená!

Moderné plynové technológie: Efektivita a inovácie pre 21. storočie

Sumarizácia najdôležitejších inovácií, ktoré redefinujúcich využitie tohto energetického zdroja.

Utesňovanie spodných stavieb pomocou hydro-aktívnej fólie AMPHIBIA.

AMPHIBIA 3000 GRIP 1.3 od spoločnosti ATRO predstavuje modernú hydroizolačnú technológiu, ktorá spája vysokú odolnosť,...

Dekarbonizácia individuálneho vykurovania domácností – Green Deal evolučne a nie revolučne

Ambiciózne plány EK narazili na ekonomické možnosti domácností v jednotlivých členských štátoch –...

Minimalistické dvere IDEA – technická precíznosť a čistota prevedenia

IDEA DOOR od spoločnosti JAP prináša do interiéru čistý minimalistický vzhľad vďaka bezrámovému riešeniu a precíznej...

Dom s výhľadom na údolie, Dlouhý Most (ČR)

Kontinuita riešenia od vonkajšieho obkladu až po kovania a kľučky.

Schell Vitus – osvedčené riešenie pre sprchy a umývadlá vo verejnom sektore s viac ako desaťročnou tradíciou

Nástenné nadomietkové armatúry Vitus sú mimoriadne vhodné pre rýchlu a efektívnu...

Kompozitné okná predstavujú súčasnosť a budúcnosť

Okenné profily z kompozitného materiálu RAU-FIPRO X od spoločnosti Rehau sú v porovnaní s tradičnými plastovými profilmi mnohonásobne...

Myotis - stoly 2025

Najnovší sortiment stolov pre zariadenie interiérov...

Priemyselné sklenené priečky Dorsis Digero: svetelné rozhranie pre moderné interiéry

Spojenie moderného dizajnu, funkčnosti a svetla do harmonického architektonického prvku.

Význam prirodzeného svetla pre moderné a flexibilné pracovné prostredie

Kancelárska budova Baumit v slovinskom Trzine prešla premenou na moderné a udržateľné pracovisko. Architekti kládli dôraz...

Konferencia Xella Dialóg predstaví novinky a trendy v stavebníctve

Mottom šiesteho ročníku on-line konferencie odborníkov Xella Dialóg je Efektívny návrh budov 2025+: zmeny a riešenia

Rastúci obytný komín "KlaRUCH"

KlaRUCH - nábytkový kus vo forme obytného komína, ktorý dokáže rásť spoločne s jeho obyvateľom – od útleho detstva po roky dospelosti.
Diela
Roman Ruhig08.12.2021
1470+0
Rastúci obytný komín "KlaRUCH"
Ateliér: ER AtelierAutori: Ing. arch. Ing. Ema Ruhigová (Kiabová), PhD., Ing. arch. Ing. Roman Ruhig, PhD.Návrh: 2021 - 2021Adresa: SlovenskoPublikované: 8. december 2021

Koncept / idea

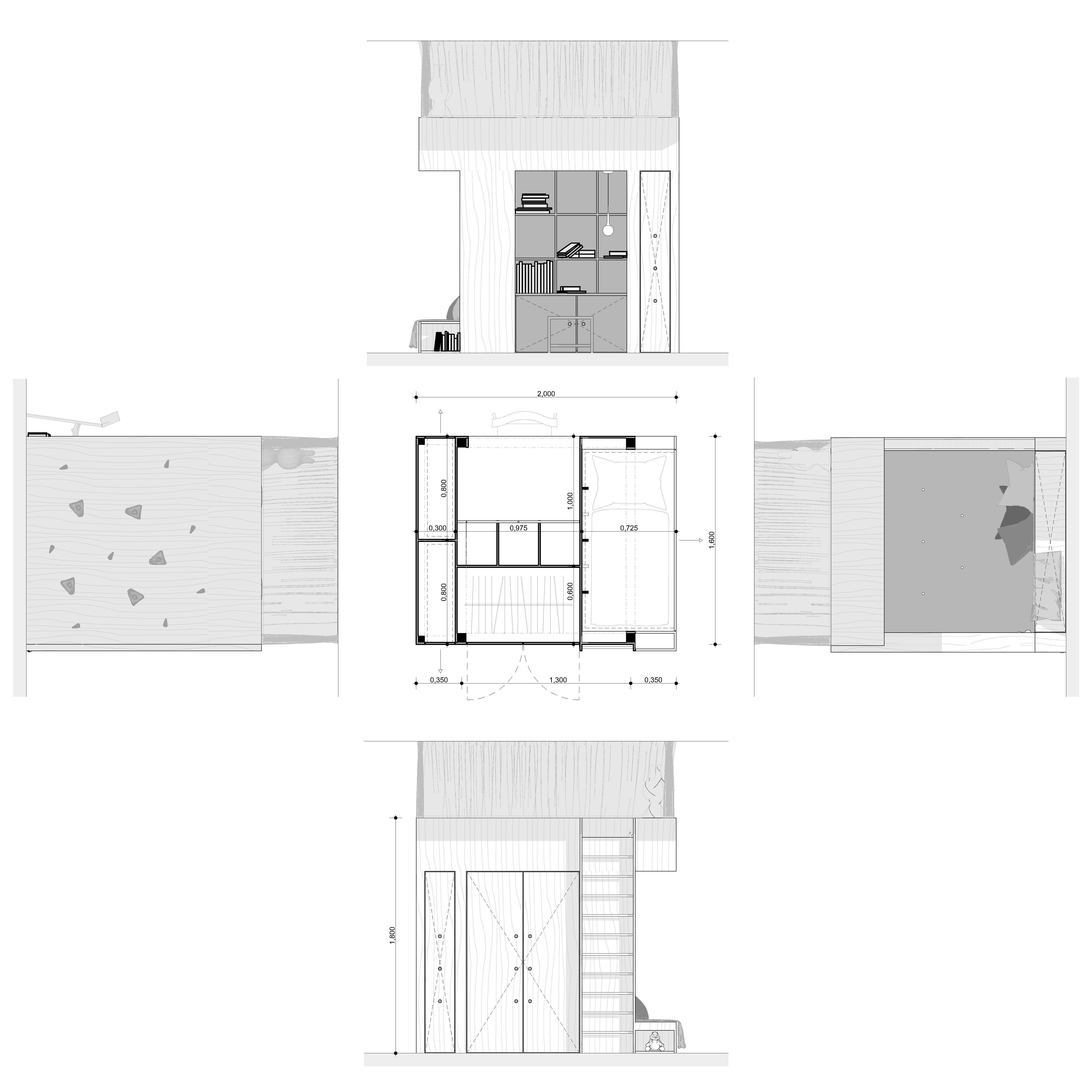
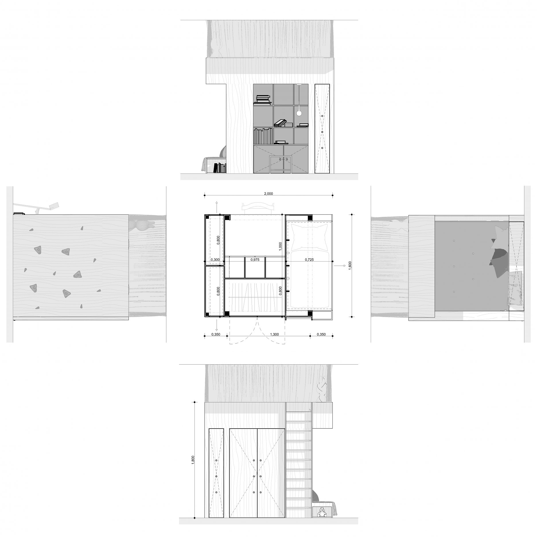
Hlavným zámerom pri návrhu obytného komína bolo splnenie požiadavky na variabilnosť umiestenia. Vďaka svojmu kompaktnému tvaru môže byť tento nábytok umiestnený k stene, ako aj vo voľnom priestore, čím získa navyše možnosť aplikácie lezeckej steny. Jednotlivé segmetny, z ktorých sa skladá, predstaujú kompletné zariadenie izby pre jedného člena domácnosti, s ktorým dokáže rásť. Vďaka jednoduchým a vratným modifikáciám je možné vyskladať tri varianty využívania : A - izba pre batoľa a predškolský vek, B - izba pre študetnský vek, C – izba, ktorá jemu a aj jeho rodine vytvorí dostatočné zázemie pri návšteve rodičovského domu. Priestor nízkej postele pre malé dieťa vie byť jednoducho zmenený na pobytový priestor tíneďžera na oddych a relax vo forme gauča. Pracovný stôl má rovnako dve výškové možnosti osadenia, takže môže slúžiť ako detský stolík na kreatívne práce, ako aj plnohodnotný pracovný písací stôl. Vyvýšený  priestor slúžiaci ako (manželská) posteľ v neskoršom veku môže byť v detsve využívaný ako prídavná bezpečná hracia plocha, takže z pohľadu dieťaťa a jeho požiadaviek na dostatočný hrací priestor nezaberá v izbe žiadne metre štvorcové. Samozrejmosťou sú aj otvorené a zatvorené úložné priestory prítomné vo všetkyćh variantoch obytného komína.  Zásadnou ideou pri navrhovaní zároveň bolo zabezpečenie montessori požiadaviek pre zdravý psychomotorický vývoj jeho obyvateľa. Tomu bol prispôsobený dizajn úchytov a patentov na otváranie úložného priestoru, ako aj výšková dostupnosť detskej postieľky. Táto idea je podporená aj hravosťou celého konceptu - lezeckou stenou a rebríkom vedúcim do vyvýšenej platformy. Samotný obytný komín tak v izbe vytvára rôzne zákutia a privátne zóny – či už v jeho samotnom kubuse, alebo v jeho okolitom priestore.

Nábytok potrebný v rôznych etapách života
Nábytok potrebný v rôznych etapách života

Funkčný dizajn

Rastúci obytný komín je príznačný čistým minimalistickým a nadčasovým dizajnom, ktorý je možné umiestniť do akéhokoľvek interiéru. Svojou materiálovou a farebnou jednoduchosťou a prirodzenosťou zámerne dieťatu nevnucuje prílišné detské motívy, čím je dieťa nútené rozvíjať svoju fantáziu. Pri hre tak tvorí „nepopísanú priestorovú tabuľu“. Izba zariadená obytným komínom bude čistá, uprataná, príjemná, jednoduchá a funkčná. Jednotlivé prvky v nej majú svoje presné miesto a svoj význam, takže vedú dieťa k zodpovednosti. Izba je tak vždy prispôsobená potrebám svojho užívateľa a prináša mu vhodné zázemie na každodenné činnosti či rozvíjanie svojej kreativity. Dieťa tak môže skúmať svoje okolie a bezpečne sa učiť samostatnosti. Pre dieťa je podstatný dostatočný hrací priestor, čo je pri obytnom komíne zabezpečené hracím priestorom na vyvýšenej platforme. Vďaka tomu je 100% podlahovej plochy možné využiť na hru. Pracovný stolík je v zníženej úrovni a madrac detskej postieľky je uložený tesne nad úrovňou podlahy, aby bolo lôžko pre dieťa vždy dostupné. Úložné priestory majú prispôsobené úchyty tak, aby dieťa dočiahlo a mohlo tak priestor plne užívať. Vyvýšená platforma je v ďalšom štádiách nábytku (Variant B)  využitá ako lôžko na poschodí. Rošt detskej postieľky je zdvihnutý a slúži ako sofa/gauč na oddych. Pracovný stôl je tiež zdvihnutý do výšky vyhovujúcej klasickému písaciemu stolu. Vo variante C sa uvažuje, že pôvodný obyvateľ obytného komína už má vlastnú rodinu a izba je využívaná ako hosťovská izba. Vtedy je na vyvýšenej platforme umiestnené dvojlôžko a gauč je opäť vrátený do zníženej polohy pre umiestnenie detskej postieľky pre ďalšiu generáciu užívateľov.

Pôdorys + pohľady
Pôdorys + pohľady

Udržateľnosť

V súčasnosti sa téma udržateľnosti dostáva aj do životného štýlu a spôsobu bývania. Ľudia sa snažia žiť udržateľnejšie a menej invazívne voči nášmu prírodnému prostrediu. Práve na tieto snahy reaguje obytný komín KlaRUCH, keďže predstavuje vďaka svojej variabilnosti a modifikovateľnosti rastúci nábytkový kus, ktorý dokáže splniť požiadavky na vybavenie izby všetkých vekových kategórii – má teda veľmi dlhú životnosť. Materiály použité na výrobu sú charakterizovaná nízkou ekologickou stopou. Okrem tohto ekologického aspektu reaguje aj na v súčasnosti veľmi obľúbený výchovný smer Montessori, ktorý je stále viac vyhľadávaný a aplikovaný do zariadenia detských izieb. Dizajn takýchto interiérov je príznačný prírodnými materiálmi a striedmou farebnosťou, čo podporuje predstavivosť detského užívateľa. KlaRUCH je dimenzovaný na minimalistický spôsob života – každý meter štvorcový je dôkladne zvážený a má svoj význam a funkciu. Šatník svojím riešením a veľkosťou podporuje myšlienku slow fashion a kapsulového šatníka – neklásť dôraz na kvantitu oblečenia, ale kvalitu. Zároveň vedie dieťa k striedmejšiemu pohľadu na materiálne hodnoty, keďže všetky potrebné veci sú sústredené na pomerne malej podlažnej ploche a teda je nevyhnutné ich udržiavať v poriadku a prípustnom množstve.

Batoľa  a predškolský vek
Batoľa a predškolský vek
Izba pre študentský vek
Izba pre študentský vek
Návšteva rodičovského domu
Návšteva rodičovského domu

Vďaka svojej kompaktnosti zároveň sa šetrí materiál a životné prostredie. Má jednoduchú konštrukciu, nosné prvky pozostávajú z drevených nosníkov a stĺpov.  Obalová konštrukcia je z bukovej preglejky, takže jej výroba je charakterizovaná nízkou ekologickou stopou. Zároveň obytný komín pozostáva z montovaných prvkov, takže je variabilný a kedykoľvek rozmontovateľný a premiestniteľný.

Konštrukčné riešenie
Konštrukčné riešenie

Zásadným prínosom tohto nábytkového kusu je aj jeho ucelený tvar a objem, vďaka ktorému vynikne rovnako v menšej izbe sídliskového bytu v polohe prisadenej k stene, ako aj vo väčšej izbe rodinného domu v centrálnej polohe, kedy je pridanou hodnotou možnosť osadenia lezeckých chytov na voľnú bočnú stenu.

Vizualizácia - spacia zóna
Vizualizácia - spacia zóna
Vizualizácia - pracovná zóna
Vizualizácia - pracovná zóna
Vizualizácia - hracia zóna
Vizualizácia - hracia zóna

Ateliér

Ing. arch. Ing. Ema Ruhigová (Kiabová), PhD.
Ing. arch. Ing. Roman Ruhig, PhD.
Vložené
8. december 2021
0
147
Hlavný obsahHlavný obsah
Čakajte prosím