AMPHIBIA 3000 GRIP 1.3 od spoločnosti ATRO predstavuje modernú hydroizolačnú technológiu, ktorá spája vysokú odolnosť,...
Ambiciózne plány EK narazili na ekonomické možnosti domácností v jednotlivých členských štátoch –...
IDEA DOOR od spoločnosti JAP prináša do interiéru čistý minimalistický vzhľad vďaka bezrámovému riešeniu a precíznej...
Nástenné nadomietkové armatúry Vitus sú mimoriadne vhodné pre rýchlu a efektívnu...
Okenné profily z kompozitného materiálu RAU-FIPRO X od spoločnosti Rehau sú v porovnaní s tradičnými plastovými profilmi mnohonásobne...
Najnovší sortiment stolov pre zariadenie interiérov...
Spojenie moderného dizajnu, funkčnosti a svetla do harmonického architektonického prvku.
Kancelárska budova Baumit v slovinskom Trzine prešla premenou na moderné a udržateľné pracovisko. Architekti kládli dôraz...
Mottom šiesteho ročníku on-line konferencie odborníkov Xella Dialóg je Efektívny návrh budov 2025+: zmeny a riešenia
Robot WLTR predstavuje moderný prístup k murovaným konštrukciám. Vďaka automatizácii dokáže rýchlo, presne a bezpečne realizovať...
Okrem bezpečnosti majú okná aj elegantný vzhľad, pretože nie sú viditeľné žiadne uzamykacie časti kovania.
Dvere MASTER v skrytej zárubni AKTIVE je možné vyrobiť až do výšky 3 700 mm
Internorm stavia na energetickú efektívnosť a inteligentné tieniace riešenia.
Slovensko vo výbere zastupuje šesť realizácií.
Spoločnosť Internorm odteraz stavia na novej variante tepelnoizolačného skla od AGC, ktorá v produkcii ročne ušetrí 10...

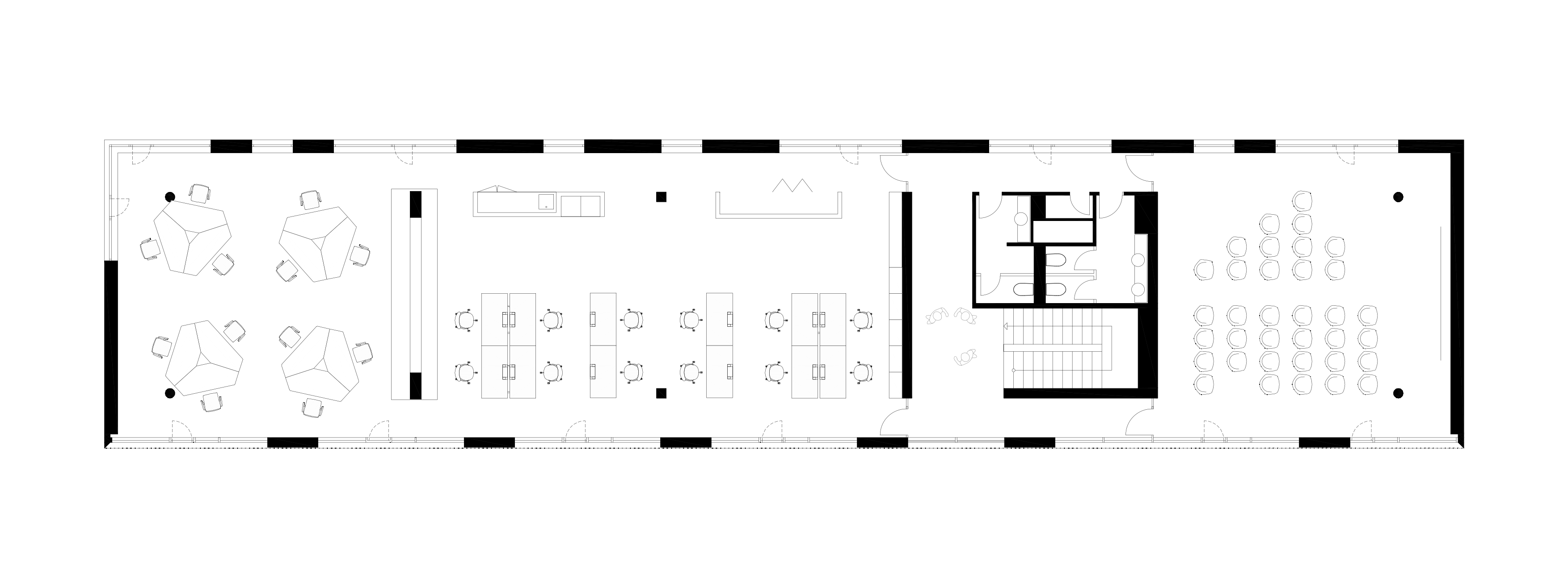
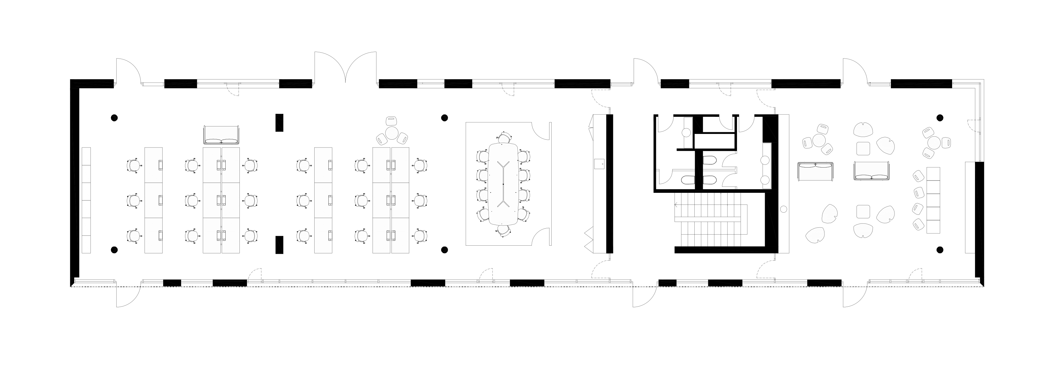
Red Bridge svojím umiestnením vytvára jeden z nástupnych bodov na Železnú studničku, vo väzbe na rekreačné trasy a športovo-rekreačné areály. Zámerom investora bolo vybudovať budovu so zázemím a vybavením pre každodennú rekreáciu. V polovici roku 2016 došlo k zmene nájomcu. V súčastnosti tu sídli výrobca a dodávateľ kancelárskeho nábytku.
Architektonické riešenie fasády podporuje funkčnú náplň objektu. Otvorenosť prostredníctvom číreho zasklenia umožňuje pozorovateľom sledovať priehľad na teleso Červeného mostu. Most svojím súčasným prevedením vytvára charakteristický orientačný bod - dominantu v úzkom okolí a jeho farebnosť je signifikantná. Architektonický návrh sa nesnaží tejto dominante konkurovať, ale skôr asimilovať.
Modulový raster priečelia je nepravidelný, čím sa dosahuje oživenie pohľadov a priehľadov cez budovu. Nepravidelné použitie plných panelov predchádza monotónnosti riešenia. Plná plocha je v kontraste s presklením a v priestore odhaľuje priehľad na Červený most postupne.
Dispozičné riešenie vychádza z jednotraktovej konštrukcie s piatimi 7,5 m modulmi. Vertikálne komunikačné jadro komunikačné jadro s hygienickým zariadením je umiestnené excentricky a rozčleňuje veľkopriestor. Nájomca má na väčšej časti parteru showroom s recepciou a barom, v menšej vzorkovňu.
Na poschodí je zasadačka a open space administratíva.
Uličná fasáda s modulom 1,5 m zaujme striedaním presklených a plných plôch v materiálovom a farebnom rozlíšení.
Náprotivná fasáda orientovaná do doliny a druhá štítová stena sú murované, so stavebnými otvormi tiež v module 1,5 m.
Podklady: Tomáš Čechvala