Hansgrohe - prémiová značka kúpeľňových riešení, ponúka nadčasový dizajn, technickú precíznosť a udržateľné inovácie...
Využite špeciálnu akciu Internorm: okná za minuloročné ceny a hliníkový kryt úplne zadarmo. Ponuka je časovo obmedzená!
Na podujatí sa predstaví až 37 vystavovateľov - popredných dodávateľov stavebných materiálov a inovácií s prezentáciou...
Sumarizácia najdôležitejších inovácií, ktoré redefinujúcich využitie tohto energetického zdroja.
AMPHIBIA 3000 GRIP 1.3 od spoločnosti ATRO predstavuje modernú hydroizolačnú technológiu, ktorá spája vysokú odolnosť,...
Ambiciózne plány EK narazili na ekonomické možnosti domácností v jednotlivých členských štátoch –...
IDEA DOOR od spoločnosti JAP prináša do interiéru čistý minimalistický vzhľad vďaka bezrámovému riešeniu a precíznej...
Kontinuita riešenia od vonkajšieho obkladu až po kovania a kľučky.
Nástenné nadomietkové armatúry Vitus sú mimoriadne vhodné pre rýchlu a efektívnu...
Okenné profily z kompozitného materiálu RAU-FIPRO X od spoločnosti Rehau sú v porovnaní s tradičnými plastovými profilmi mnohonásobne...
Najnovší sortiment stolov pre zariadenie interiérov...
Spojenie moderného dizajnu, funkčnosti a svetla do harmonického architektonického prvku.
Kancelárska budova Baumit v slovinskom Trzine prešla premenou na moderné a udržateľné pracovisko. Architekti kládli dôraz...
Mottom šiesteho ročníku on-line konferencie odborníkov Xella Dialóg je Efektívny návrh budov 2025+: zmeny a riešenia
Robot WLTR predstavuje moderný prístup k murovaným konštrukciám. Vďaka automatizácii dokáže rýchlo, presne a bezpečne realizovať...

Medzivojnová vila na nároží Piaristickej a Bernolákovej ulice v Trenčíne bola podľa pôvodného plánu odsúdená na zbúranie. Ateliér A.DOM však presadil jej záchranu a konverziu na Centrum denných aktivít Domova sociálnych služieb Adamovské Kochanovce.
Architektonické riešenie pracuje s pôvodnými východiskami, architektonickými a remeselnými detailmi, pričom zároveň spĺňa náročné požiadavky na debarierizáciu a nové prevádzkové väzby. Výsledkom projektu je integrovanie centra denních aktivít do prijémného prostredia vilovej štvrte a zachovanie pôvodného objektu, ktorý aj dnes tvorí jej súčasť.
Realizáciu bližšie predstaví sprievodný autorský text:
Napriek tomu, že riešený objekt nie je pamiatkovo chránený, ide o architektonicky a stavebne vzácnu budovu hodnú zachovania v pôvodnej autentickej podobe s potrebou citlivého a ohľaduplného prístupu k jej rekonštrukcii. Predstavuje typickú medzivojnovú architektúru vilovej výstavby, slohovo blízku eklekticko-secesnému štýlu. Napriek tomu, že v minulosti došlo k niektorým úpravám, je budova dokladom dobovej architektúry s hodnotnou stavebnou substanciou a umelecko-remeselnými detailmi. V nároží Piaristickej a Bernolákovej ulice dotvára charakter vilovej štvrte zo začiatku 20. storočia.
Vývoj projektu
Pôvodným zámerom bolo zbúrať budovu, ktorá bola prebytkom majetku TSK Trenčín a bola v zlom technickom stave. Po našej obhliadke a zvážení architektonicko-remeselných hodnôt objektu, nachádzajúceho sa v atraktívnej časti vilovej štvrte Trenčína, sme sa rozhodli spracovať štúdiu. Štúdiou s novou funkciou Centra denných aktivít pre zdravotne znevýhodnených klientov Domova sociálnych služieb Adamovské Kochanovce sme chceli presvedčiť investora, že aj pri takejto náročnej úlohe s vytvorením debarierizácie sa dá navrhovaná funkcia umiestniť do pôvodnej budovy a prinavrátiť jej nový život. Projekt bol financovaný zo zdrojov obnovy EÚ.
Rekonštrukciou a revitalizáciou pôvodného objektu sa zveľadil uličný priestor, ušetrili sa zdroje a energie a bola zachovaná udržateľnosť objektu.
Hlavnými cieľmi projektu pre klientov DSS sú:
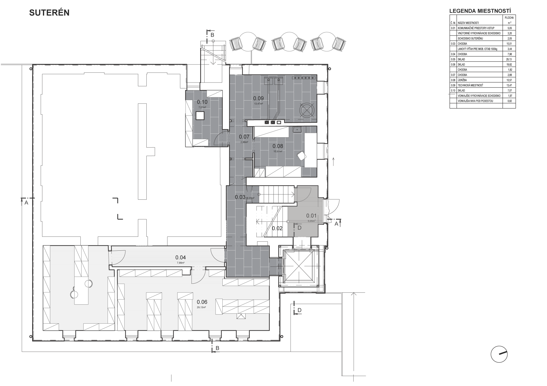
Funkčne bude stavba využívaná pre klientov Domova sociálnych služieb. Navrhované úpravy preto musia umožňovať pohyb osobám s obmedzenou schopnosťou pohybu. Trojpodlažnú budovu so suterénom bolo okrem schodiska nutné prepojiť výťahom, ktorý je stvárnený ako novotvar na pôvodnej podnoži prvku balkóna.
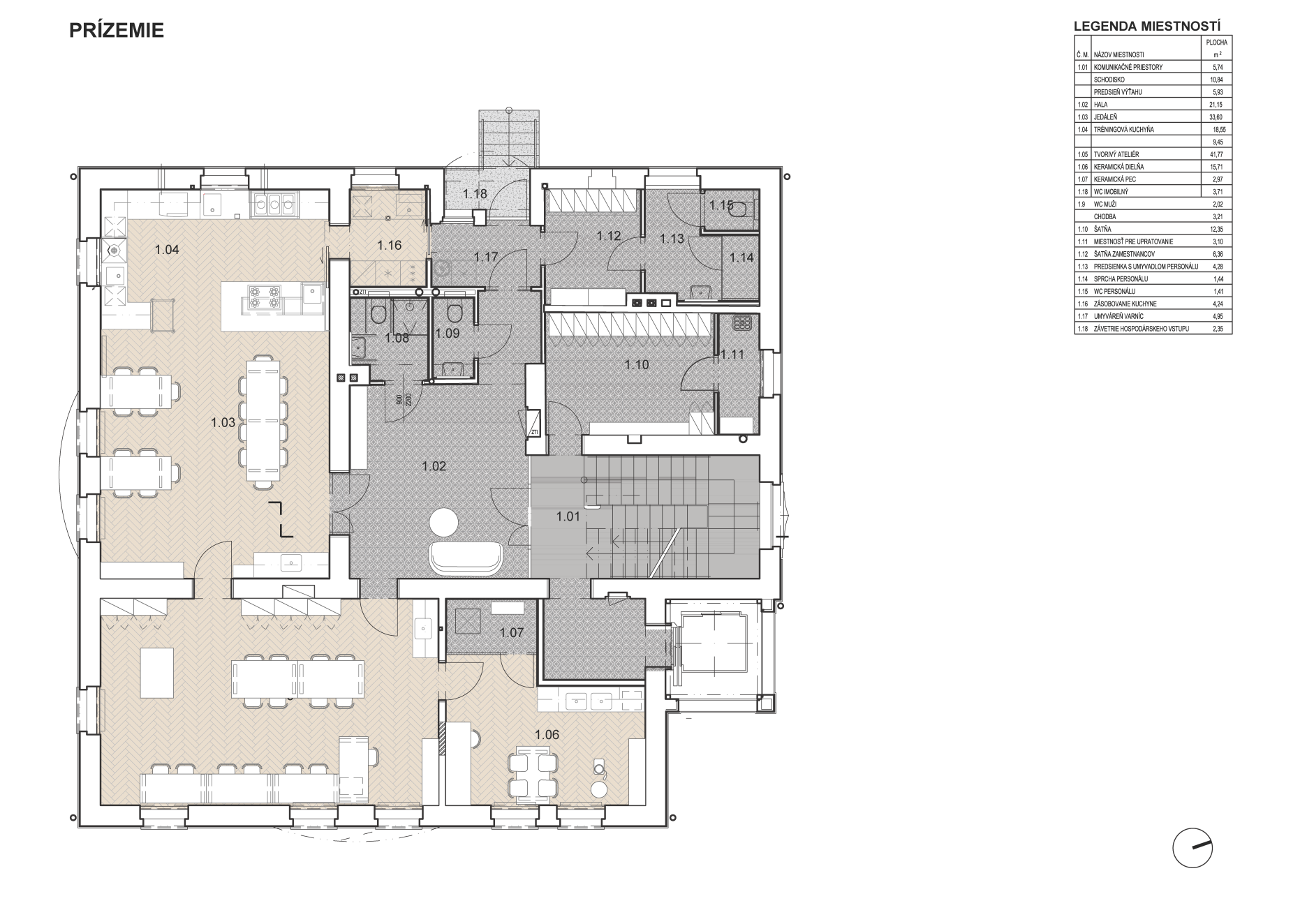
Na prízemí budú umiestnené priestory určené pre získavanie zručností, na poschodí terapeutické miestnosti pre zlepšenie psychického a pohybového stavu klientov a podkrovie bude využité pre vedenie Domova sociálnych služieb.
Suterén bude slúžiť ako zázemie.
Tým, že sa k realizácii pristúpilo takmer po 6 rokoch, bolo nutné urobiť doplňujúce zásahy do časti statiky stropov.
Budova nebola pamiatkovo chránená a nevyžadovala zásahy reštaurátorov, bola iba remeselne, ale kvalitne spracovaná (ocenenie Fasáda roka). Toto je dôkazom toho, že ak sú zruční remeselníci a použité kvalitné materiály vhodné pre sanáciu stavieb, dajú sa dobre zvládnuť aj detaily. Tie pozostávajú hlavne zo stolárskych prvkov výzdoby v časti rímsy, úpravy a doplnenia kováčskych výrobkov a výroby nových odlievaných častí oplotenia. Ďalej ide o stolárske výrobky, najmä výplne otvorov, ktoré boli urobené ako repliky a zároveň spĺňajú nové tepelnoizolačné požiadavky. Terazzové schodisko s podestami bolo vyčistené a odborne ošetrené a doplnené.
Nové dverné krídla majú atypickú šírku a členenie, aby zodpovedali požiadavkám imobilných klientov.
Rekonštrukcia budovy má taktiež vplyv na lokálnu komunitu tým, že vnímajú prinavrátenie architektonickej hodnoty a génia loci.
Budova svojou funkciou učí prijatiu a rešpektovaniu zdravotne znevýhodnených obyvateľov a pomáha rodinným príslušníkom zvládnuť situáciu.
Komunitnými stretnutiami v rámci lokality a akciami, kde budú pozývaní obyvatelia štvrte, sa podporí myšlienka integrácie, inklúzia a samostatnosť klientov.
Vizualizácie interiéru:
Dielo vzniklo v rámci projektu „Vytvorenie podmienok pre projekt deinštitucionalizácie DSS Adamovské Kochanovce“.
Budova bola obnovená a jej nové využitie je financované z fondov obnovy projektu EÚ.
Podklady: A.DOM
Fotografie: Tomáš Manina