Na podujatí sa predstaví až 37 vystavovateľov - popredných dodávateľov stavebných materiálov a inovácií s prezentáciou...
Novotvar v prostredí alpskej obce.
Hansgrohe - prémiová značka kúpeľňových riešení, ponúka nadčasový dizajn, technickú precíznosť a udržateľné inovácie...
Využite špeciálnu akciu Internorm: okná za minuloročné ceny a hliníkový kryt úplne zadarmo. Ponuka je časovo obmedzená!
Sumarizácia najdôležitejších inovácií, ktoré redefinujúcich využitie tohto energetického zdroja.
AMPHIBIA 3000 GRIP 1.3 od spoločnosti ATRO predstavuje modernú hydroizolačnú technológiu, ktorá spája vysokú odolnosť,...
Ambiciózne plány EK narazili na ekonomické možnosti domácností v jednotlivých členských štátoch –...
IDEA DOOR od spoločnosti JAP prináša do interiéru čistý minimalistický vzhľad vďaka bezrámovému riešeniu a precíznej...
Kontinuita riešenia od vonkajšieho obkladu až po kovania a kľučky.
Nástenné nadomietkové armatúry Vitus sú mimoriadne vhodné pre rýchlu a efektívnu...
Okenné profily z kompozitného materiálu RAU-FIPRO X od spoločnosti Rehau sú v porovnaní s tradičnými plastovými profilmi mnohonásobne...
Najnovší sortiment stolov pre zariadenie interiérov...
Spojenie moderného dizajnu, funkčnosti a svetla do harmonického architektonického prvku.
Kancelárska budova Baumit v slovinskom Trzine prešla premenou na moderné a udržateľné pracovisko. Architekti kládli dôraz...
Mottom šiesteho ročníku on-line konferencie odborníkov Xella Dialóg je Efektívny návrh budov 2025+: zmeny a riešenia

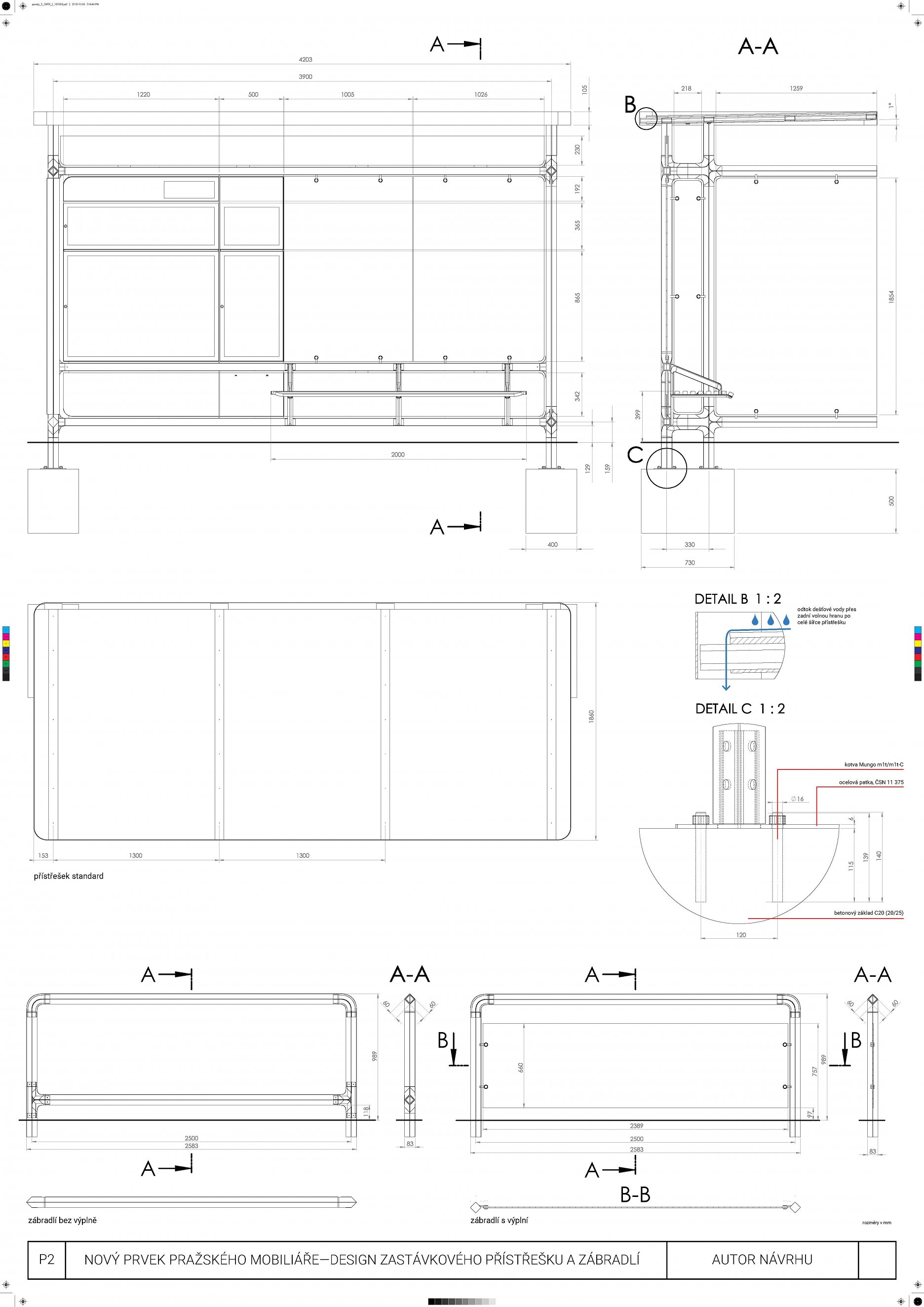
Do jari budúceho roka bude na Palackého náměstí umiestnený prototyp prístrešku MHD. Návrh vzišiel zo súťaže, ktorú usporiadal Inštitút plánovania a rozvoja hlavného mesta Prahy (IPR Praha) v minulom roku. Testovacie obdobie má overiť funkčnosť a dizajn novej zastávky, ktorej cena v sériovej výrobe nepresiahne 200 000 Kč. Budúci rok bude vypísané výberové konanie na nového dodávateľa a správcu tohto typu mestského mobiliáru. Vďaka tomu bude mať mesto plnú kontrolu nad reklamou a príjmami, ktoré z nej plynú.
“Městský mobiliář je často přehlíženou, ale velice důležitou složkou města, na kterou nesmíme zapomínat. Kromě toho, že poskytuje pohodlí svým uživatelům, by měl být reprezentativní a snadno udržovatelný. Všechny tyto atributy nový zastávkový přístřešek splňuje, a proto mě těší, že se v Praze začne postupně rozšiřovat,“ hovorí Zdeněk Hřib, primátor Prahy.
Víťazný návrh, ktorého autormi sú dizajnéri z ateliéru Artěl - prof. MgA. Michal Froněk prof. M.A. Jan Němeček, MgA. Aleš Kachlík, Ing. arch. Martin Klanica. Porota ocenila najmä za “dizajnovú čistotu, variabilitu, jednoduchosť sériovej výroby a údržby.”
Orientačný panel informuje cestujúcich o aktuálnych časoch odjazdu liniek, zatiaľčo Wi-Fi modul a USB porty zabezpečujú potrebnú konektivitu. Testovaný prototyp je jedným zo série siedmich variant prístrešku, ktoré autori navrhli.
Iniciatíva zjednotiť mestský mobiliár vznikla už v roku 2017. Vtedy sa začalo s hľadaním podoby mestskej lavičky, odpadkového koša a stojanu na bicykle. Víťazný návrh následne prešiel skúšobný obdobím. Dnes sa obyvatelia hlavného mesta s novým mobiliárom stretnú napríklad v Stromovke, na Petříne alebo na Strossmayerovom náměstí. Odpadkový kôš dokonca tento rok získal Red Dot Design Award.
“Ucelený design městského mobiliáře pomůže výrazně zvýšit kvalitu veřejných prostranství v Praze. Těší mě, Praha má svůj vlastní design, se kterým se může prezentovat,” uzatvára Petr Hlaváček, zriadenec pre oblasť územného rozvoja.
Funkčný prototyp na Palackého náměstí:
Víťazný súťažný návrh ateliéru Artěl:
Ostatné ocenené návrhy:
2. cena: Studio Herrmann & Coufal
3. cena: Divan design
4. cena: Bittercraft&Com
5. cena: vin vin studio - Ing. Pavel Stejskal, Ing. Tomáš Paclík, MSc.
6. cena: Ing. arch. Pavla Hradilová a Ing. arch. Nela Lišková
Podrobné informácie o súťaži nájdete na stránke IPR Praha.