Na podujatí sa predstaví až 37 vystavovateľov - popredných dodávateľov stavebných materiálov a inovácií s prezentáciou...
Novotvar v prostredí alpskej obce.
Hansgrohe - prémiová značka kúpeľňových riešení, ponúka nadčasový dizajn, technickú precíznosť a udržateľné inovácie...
Využite špeciálnu akciu Internorm: okná za minuloročné ceny a hliníkový kryt úplne zadarmo. Ponuka je časovo obmedzená!
Sumarizácia najdôležitejších inovácií, ktoré redefinujúcich využitie tohto energetického zdroja.
AMPHIBIA 3000 GRIP 1.3 od spoločnosti ATRO predstavuje modernú hydroizolačnú technológiu, ktorá spája vysokú odolnosť,...
Ambiciózne plány EK narazili na ekonomické možnosti domácností v jednotlivých členských štátoch –...
IDEA DOOR od spoločnosti JAP prináša do interiéru čistý minimalistický vzhľad vďaka bezrámovému riešeniu a precíznej...
Kontinuita riešenia od vonkajšieho obkladu až po kovania a kľučky.
Nástenné nadomietkové armatúry Vitus sú mimoriadne vhodné pre rýchlu a efektívnu...
Okenné profily z kompozitného materiálu RAU-FIPRO X od spoločnosti Rehau sú v porovnaní s tradičnými plastovými profilmi mnohonásobne...
Najnovší sortiment stolov pre zariadenie interiérov...
Spojenie moderného dizajnu, funkčnosti a svetla do harmonického architektonického prvku.
Kancelárska budova Baumit v slovinskom Trzine prešla premenou na moderné a udržateľné pracovisko. Architekti kládli dôraz...
Mottom šiesteho ročníku on-line konferencie odborníkov Xella Dialóg je Efektívny návrh budov 2025+: zmeny a riešenia

01 Východiskový stav
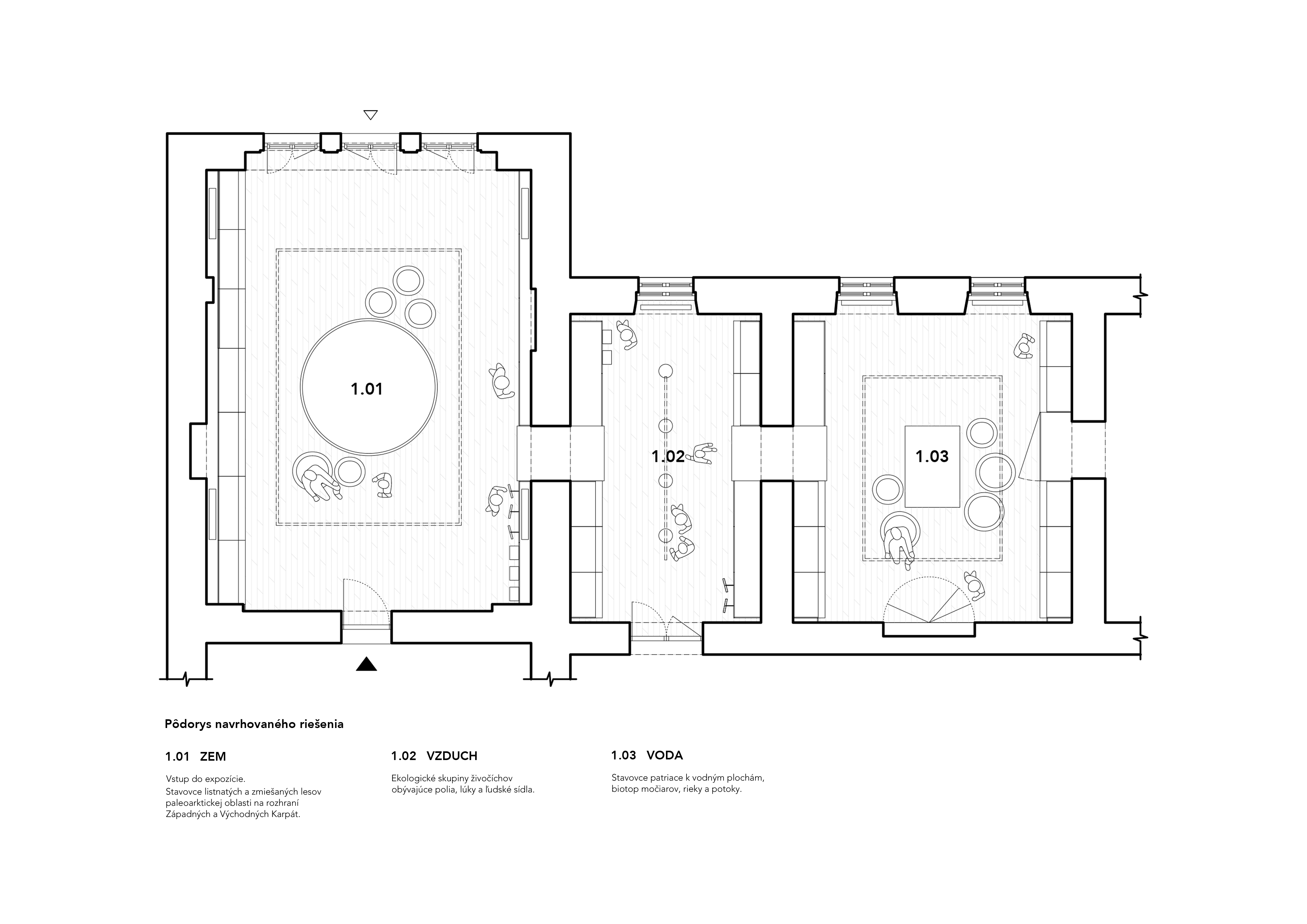
Zemplínske múzeum sídli v priestoroch Sztárayovského kaštieľa Michalovciach. Stála prírodovedná expozícia VODA – ZEM – VZDUCH je umiestnená na prízemí západného krídla hlavného kaštieľa. Riešený priestor má celkovú výmeru 152 m² a disponuje svetlou výškou 4 400 mm. Dispozičné riešenie pozostáva z troch samostatných miestností, ktoré sú prepojené otvormi. V rámci návrhu bola zachovaná pôvodná dispozícia, bez stavebných a búracích zásahov, s ohľadom na status NKP a tiež bezbariérovosť.


02 Filozofia návrhu
Prírodovedná zbierka je rozdelená na 3 základné časti podľa scenára kurátora:
1.01 Lesné stavovce
1.02 Ľudské sídla, polia a lúky
1.03 Močiare, rieky a potoky
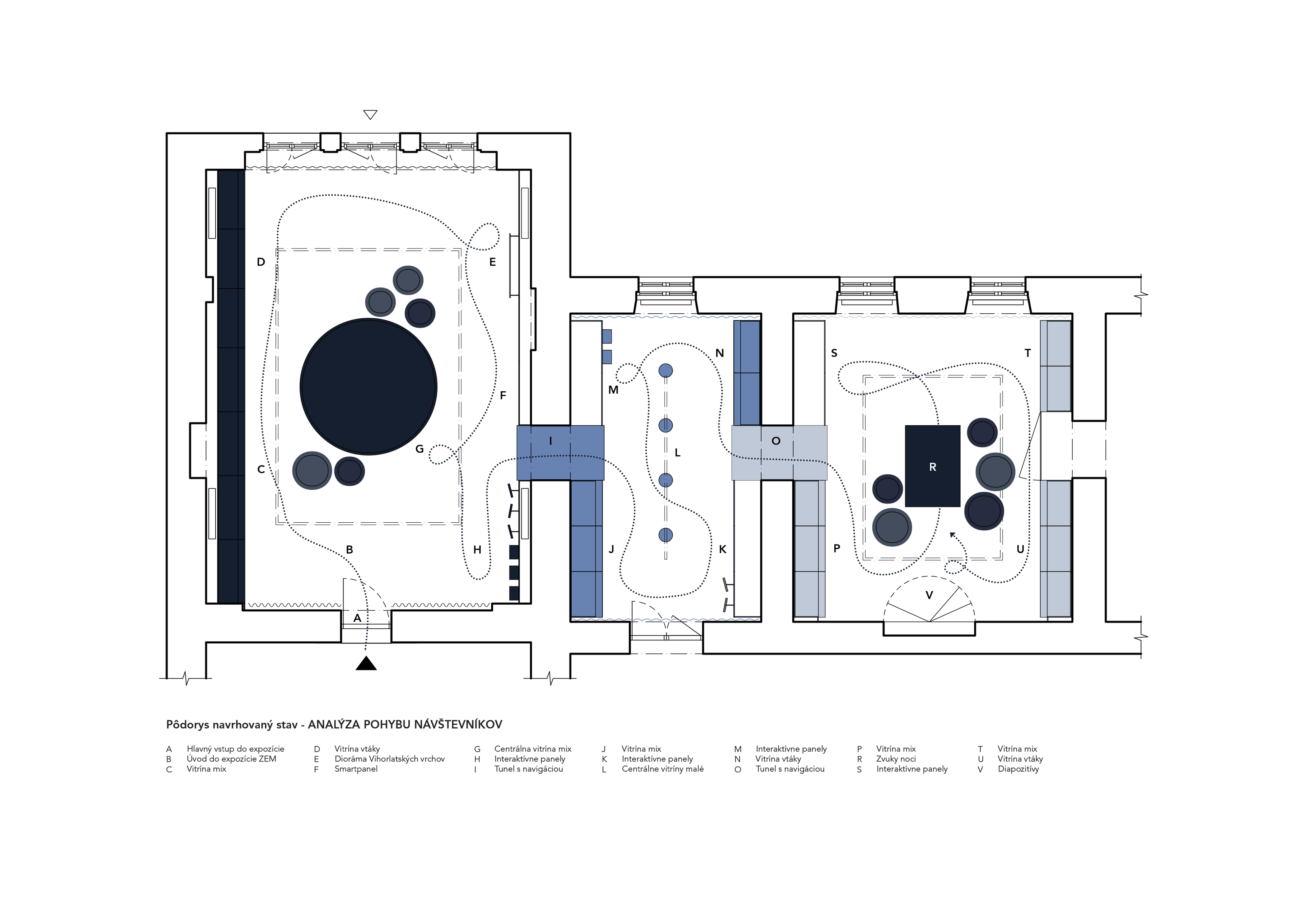
Základnou myšlienkou návrhu bolo farebné zónovanie priestoru pomocou monochromatickej schémy v odtieňoch modrej schémy. Zámerom bolo vymedzenie a definovanie jednotlivých častí expozície a zlepšenie orientácie návštevníkov v priestore. Každej zo zón dispozične dominuje centrálny prvok. Reverzibilné vitríny a panely po obvode miestností vytvárajú súvislý expozičný pás, ktorý návštevníkov prirodzene vedie po okrajoch priestoru. Centrálne umiestnené vitríny (1.01, 1.02) a interaktívny tunel (1.03) reprezentujú centrický výstavný koncept. Využitím predsadeného systému vitrín a panelov bol dosiahnutý zjednotený rukopis celej expozície a zároveň zabezpečená modularita prvkov – interaktívnych panelov, vitrín, informačných panelov či smart riešení. Návrh zároveň zohľadňuje zadané požiadavky na tematické členenie, pričom navrhované riešenia umožňujú kurátorovi prispôsobovať a meniť umiestnenie jednotlivých preparátov bez obmedzení.

Interiér v interiéri
Jednou z nosných ideí návrhu je variabilita s ohľadom na vystavované exponáty, reverzibilita prvkov navrhovaných v interiéri a ich modularita. Vitríny sú navrhované tak, aby bolo možné ich otvoriť, vyberať jednotlivé panely a v prípade potreby sa tak dostať k elektroinštalácii a radiátorom, ktoré sa nachádzajú v dutinách za vitrínami. Vitrína pre vystavovanie vtáctva disponuje perforovaným panelom, na ktorý je možné umiestniť 3 typy kruhových podstavcov z eloxovaného hliníka (s priemerom 450, 300 a 150 mm). Aj keď pri navrhovaní bolo uvažované s konkrétnym rozmiestnením jednotlivých preparátov, pri finálnej inštalácii je vďaka tomuto riešeniu odborníkom ponechaná voľnosť pri rozmiestňovaní preparátov – nie sú obmedzovaní vopred pripraveným rozložením. Panely a podstavce vitrín boli navrhnuté ako modulové, čo zníži náklady na ich výrobu a zároveň to má v interiéri zjednocujúci charakter.
Návrh ponúka na výber z 8 typov interaktívnych panelov. Tieto panely sú navrhnuté tak, aby bolo možné ich v rámci miestnosti vzájomne vymieňať a prispôsobovať tak expozíciu potrebám kurátora. Všetky exponáty sú uložené za antireflexným bezpečnostným sklom. Hlavným materiálom vitrín, panelov a obkladu stien je veľkoplošná striekaná MDF doska hr. 18 a 10 mm. v RAL 5011 Oceľová modrá, RAL 5014 Holubia modrá a RAL 7001 Striebrosivá. V podstavcoch vitrín sa nachádza systém Humidor, ktorý zabezpečí ideálne vnútorné prostredie vo vitríne a tiež zásuvka, ktorej čelo je navrhované na pokos pre minimalistický výraz. Detaily vitrín sú navrhované s drážkou na osadenie skla, s prieduchom na zabezpečenie prúdenia vzduchu a tiež s integrovaným úsporným muzeálnym osvetlením.


Farebnosť a materialita
Návrh si dával za cieľ zjednotiť priestor pomocou harmonizácie farieb a materiálov. Z toho dôvodu sme sa rozhodli pracovať s monochromatickou schémou farieb, ktorá sa často vyskytuje aj v prírode. Pre vložený mobiliár a obklady sme zvolili sme 3 odtiene modrej farby – od najtmavšej vo vstupnej miestnosti 0.01, až po najsvetlejšiu v závere expozície v miestnosti 1.03. Miestnosti boli prepojené tunelom v takom farebnom vyhotovení, ktoré nájdeme v nasledujúcej miestnosti. Povrchová úprava stien a podlaha ostala zachovaná v svojej pôvodnej podobe, pridané boli neinvazívne obklady na stenách a zatemňovacie závesy v korešpondujúcich farbách.
Sekundárnym variantom farebného riešenia bolo využitie achromatickej schémy, ktorá rešpektuje pôvodnú farebnosť interiéru a zachováva genius loci miesta.

Minimalistická prezentácia ako plátno pre exponát
Pri výbere spôsobu prezentácie exponátov bol zvolený minimalistický prístup, ktorého cieľom je eliminovať rušivé prvky a umožniť exponátom vyniknúť. Tento prístup stavia na zásade „menej je viac“, pričom samotné priestory a výstavné prvky sú navrhnuté tak, aby vytvárali neutrálne, vizuálne nerušivé prostredie. Každý exponát je vnímaný ako umelecké dielo, ktoré potrebuje vhodný rámec na to, aby naplno vynikla jeho jedinečnosť, detail a autenticita. Expozičné panely v základných geometrických formách nekonkurujú samotným exponátom.
Interakcia
Interaktívne panely sú navrhnuté tak, aby bolo možné ich v rámci miestnosti vzájomne vymieňať a prispôsobovať tak expozíciu potrebám kurátora. Panely ponúkajú lákavé aktivity pre návštevníkov, napr. otáčanie náučných plôch, počúvanie spevu vtákov, rozoznávanie stôp lesných stavovcov, či zanechanie odkazu na kriedovej tabuli. Na iných paneloch nájdu informácie o danej časti expozície alebo náučné texty o ochrane prírody a zvierat vo forme bookletov, ktoré si môžu zobrať so sebou domov.
V miestnosti 1.03 sme navrhli umiestnenie zážitkového tunela ktorý má za účel podávať informácie hravou formou prostredníctvom zvukovej stopy. Návštevník vchádza do tunela cez zatemňovacie závesy. Dostáva sa do tmavej komory, ktorá reprezentuje nočné prostredie biotopu močiarov. Prechádza tunelom, po rukách ho hladia trávy nainštalované po stranách tunela a pri tom počúva zvuky nočného života biotopu.
V miestnosti 1.01 je umiestnený Smart panel predstavujúci inovatívne riešenie, ktoré kombinuje nové technológie s edukáciou o expozícii. Vedľa neho sa nachádza 3D dioráma Vihorlatských vrchov umiestnená na samostatnom vertikálnom panely. Pred diorámou je predsadená sklenená doska s grafikou (napr. výskytom alebo migráciou zvierat v oblasti Zemplína), ktorá korešponduje so zobrazovanou lokalitou.
Osvetlenie
Pri navrhovaní dizajnu osvetlenia vitrín sme pracovali s aktuálnymi elektrickými rozvodmi. V prípade potreby, budú nové rozvody vedené mimo stien, bez nutnosti zásahov a to v dutinách za vitrínami, ktoré boli na toto cielene ponechané. Zabezpečí sa tak neinvazívne povrchové vedenie inštalácií. Vo vitrínach je uvažované úsporné muzeálne osvetlenie inštalované na hornú dosku vitrín.



03. Vizuálna identita
Návrh pracuje aj so základmi vizuálnej identity. Dostupnosť vnímania a čítania informácií bola zabezpečená využitím jednotného fontu a rozloženia sprievodných textov a orientačného systému. Zvolený font s názvom Avenir LT Pro odporúčame dodržiavať v printovej aj v elektronickej komunikácie. Jednotlivé rezy fontu slúžia ako nástroje pre grafické rozlíšenie významu a obsahu zalamovaného textu. Písmo musí byť používané vo farebných profiloch definovaných v grafickej prílohe návrhu. Sprievodné texty budú priamo vytlačené na panely s využitím Braillovho písma. Navrhujeme sprievodné texty prepojiť s technológiou vďaka QR kódu s priamym odkazom na stránku múzea a sprievodný hovorený text k vystavovaným exponátom. Pre účely prezentácie prírodovedeckej expozície navrhujeme informačnú tabuľu pri vstupe do hlavnej miestnosti 1.01. Výraz informačnej tabule umiestnenej pri vstupe má formálnejší charakter, nakoľko ide o panel, ktorý predstavuje priamy obklad.








