Moderné strešné okná ponúkajú pohodlné ovládanie aj lepšiu ochranu domácnosti počas celého roka.
Objavte riešenia Dorsis, ktoré spájajú minimalistický vzhľad s vysokou variabilitou, funkčnosťou a spracovaním na mieru.
Súčasné bývanie v prostredí budapeštianskej vilovej štvrte.
Rad interiérových dverí DIVA DOOR od spoločnosti J.A.P. ponúka čistý dizajn a variabilné riešenia pre súčasné interiéry.
REHAU Window Solutions na veľtrhu Fensterbau Frontale 2026
Sortiment Slim Line zahŕňa pestrý výber dekorov a textúr.
Európska značka okien oslavuje jubileum: za 95 rokov sa vyvinula na najväčšiu medzinárodne pôsobiacu okennú značku a inovačného...
Na podujatí sa predstaví až 37 vystavovateľov - popredných dodávateľov stavebných materiálov a inovácií s prezentáciou...
Novotvar v prostredí alpskej obce.
Hansgrohe - prémiová značka kúpeľňových riešení, ponúka nadčasový dizajn, technickú precíznosť a udržateľné inovácie...
Využite špeciálnu akciu Internorm: okná za minuloročné ceny a hliníkový kryt úplne zadarmo. Ponuka je časovo obmedzená!
Sumarizácia najdôležitejších inovácií, ktoré redefinujúcich využitie tohto energetického zdroja.
AMPHIBIA 3000 GRIP 1.3 od spoločnosti ATRO predstavuje modernú hydroizolačnú technológiu, ktorá spája vysokú odolnosť,...
Ambiciózne plány EK narazili na ekonomické možnosti domácností v jednotlivých členských štátoch –...
IDEA DOOR od spoločnosti JAP prináša do interiéru čistý minimalistický vzhľad vďaka bezrámovému riešeniu a precíznej...

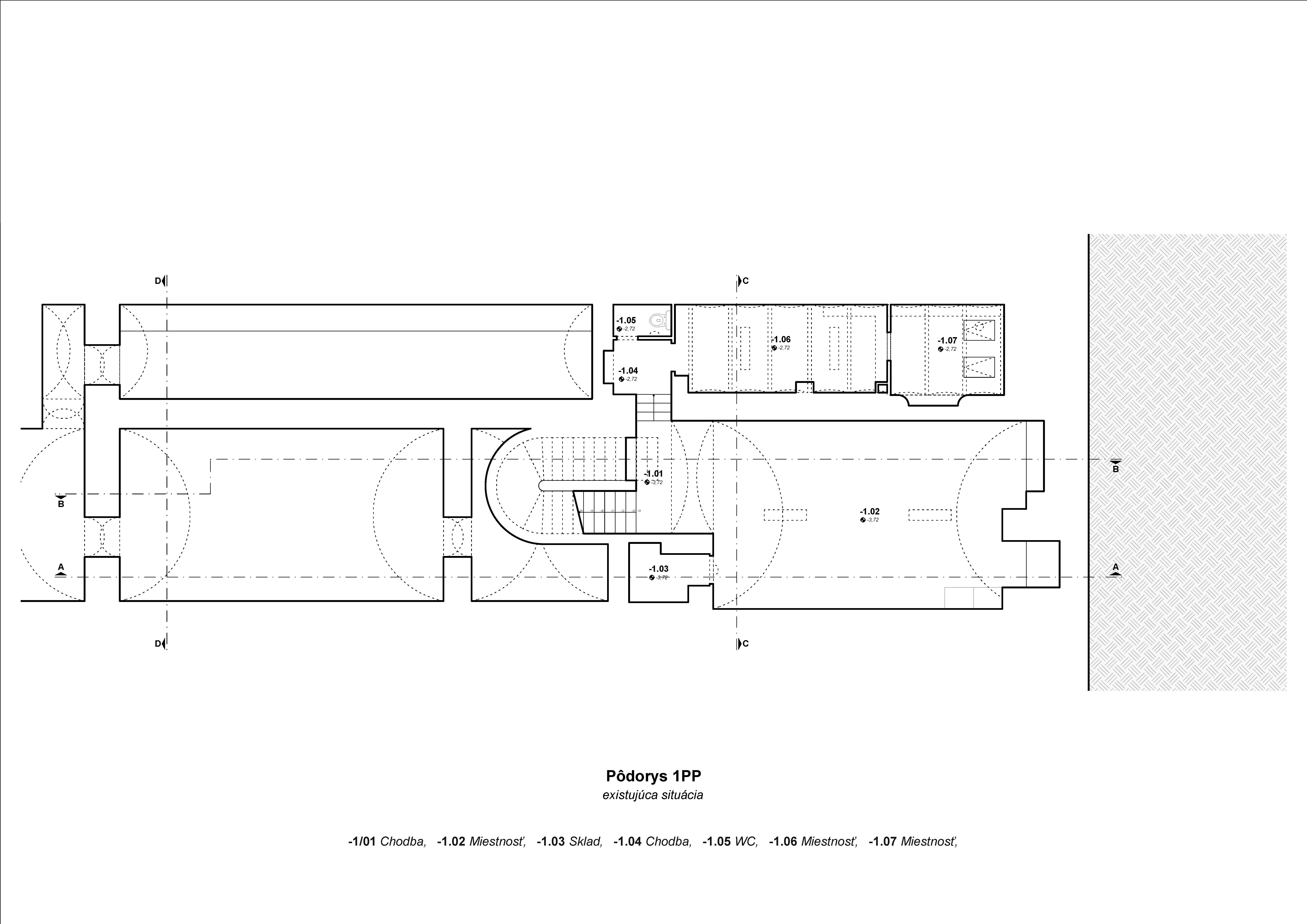
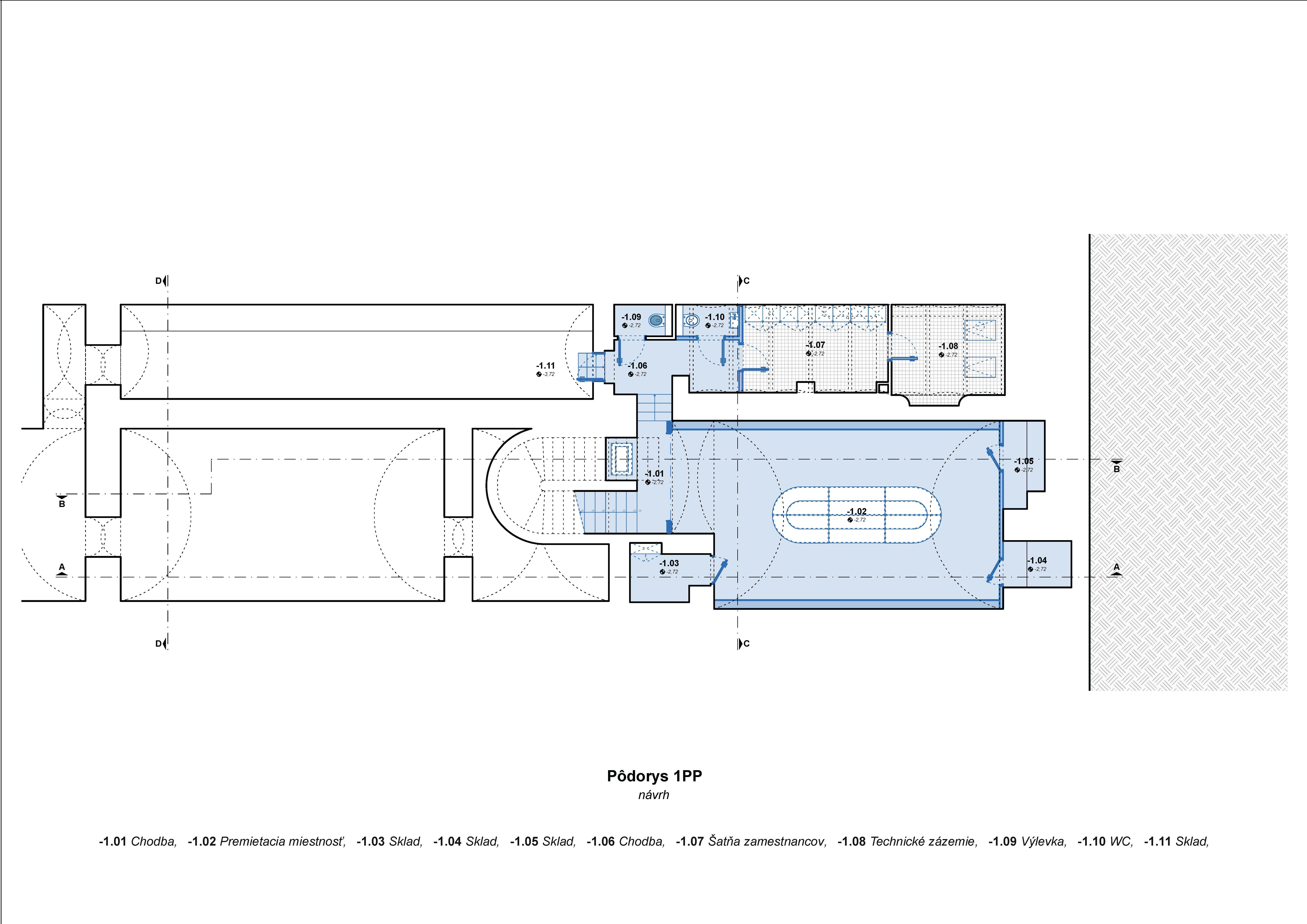
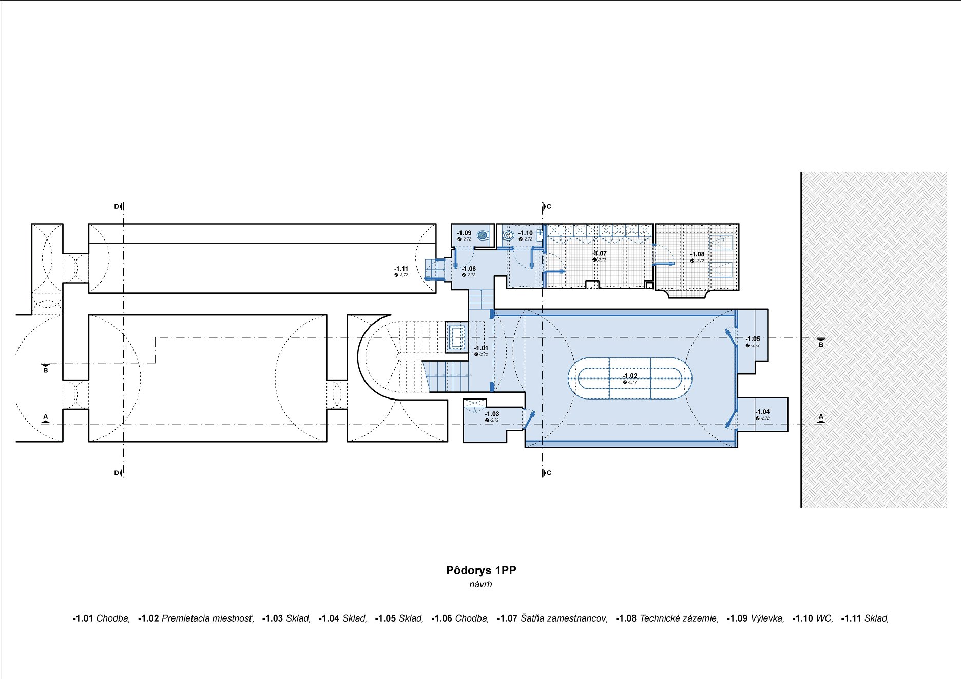
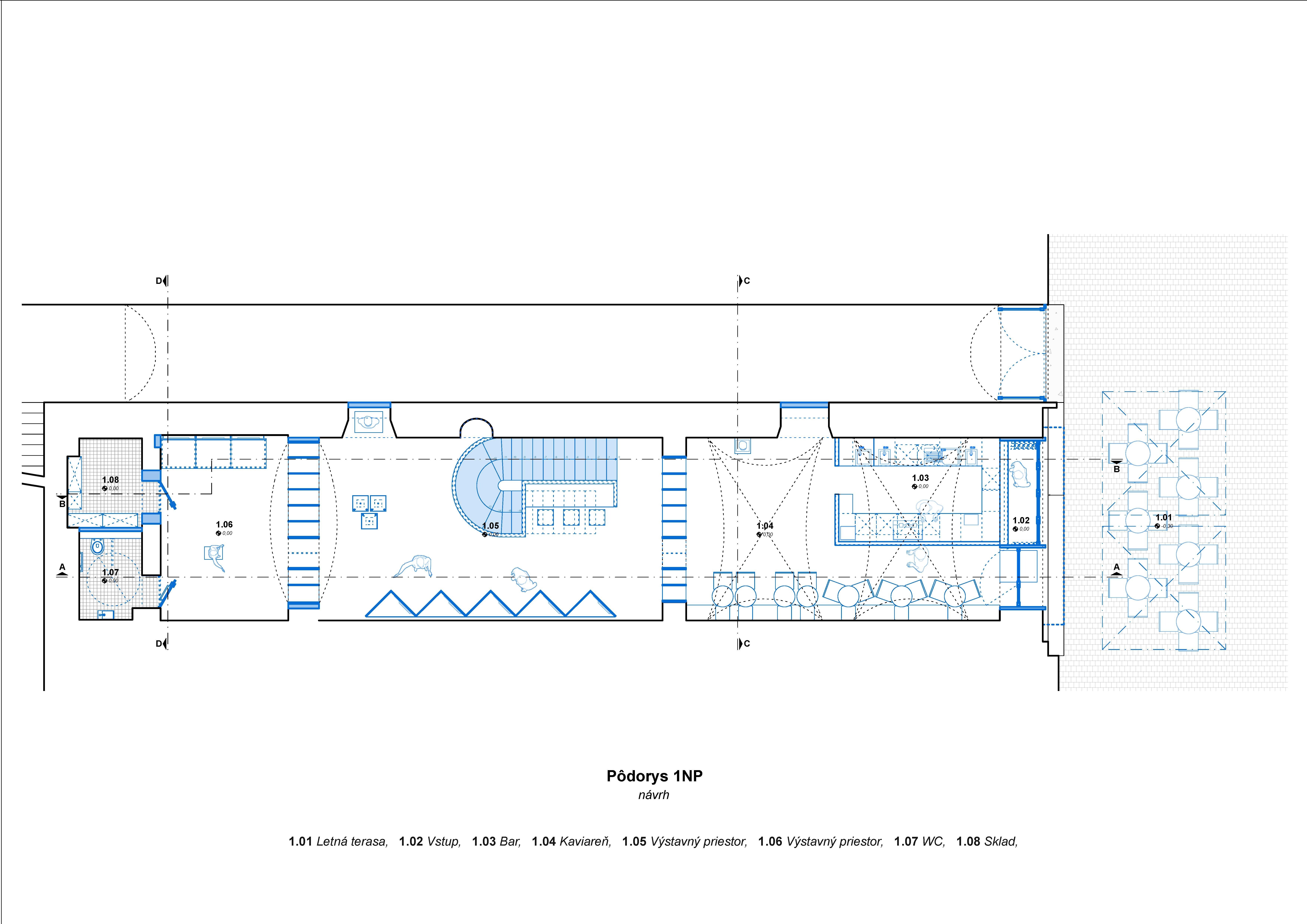
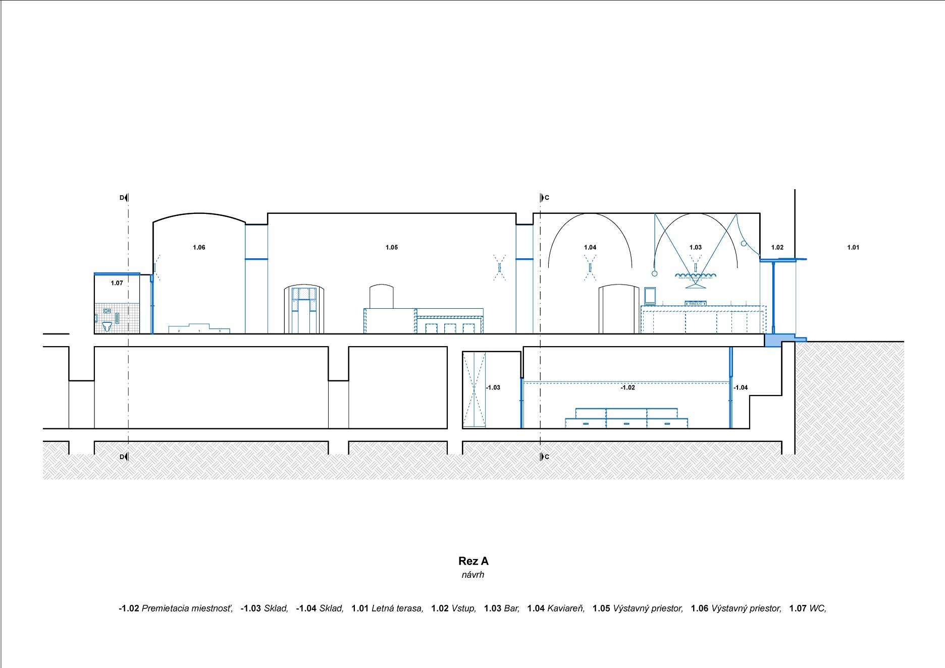
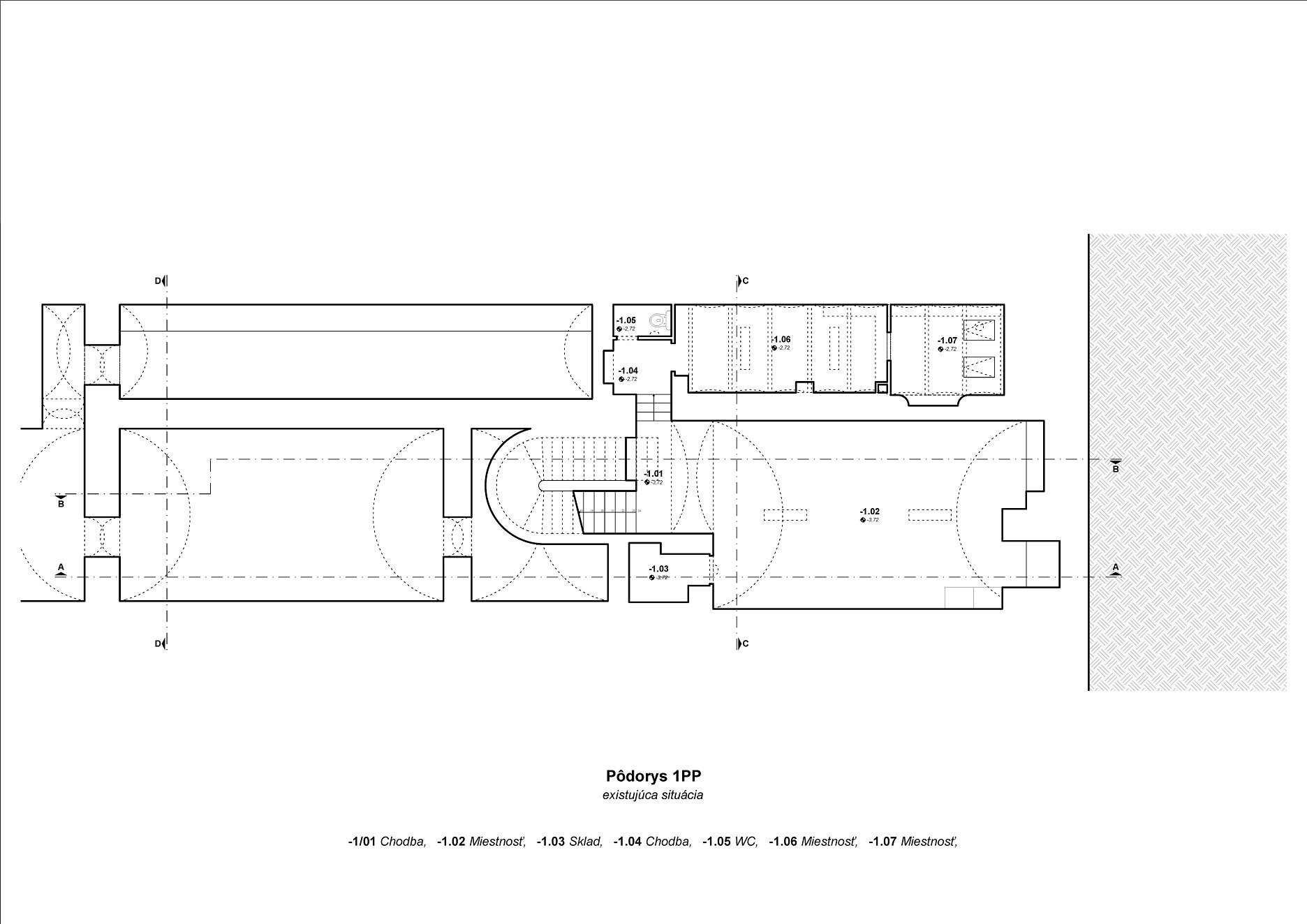
Realizácia ateliéru UNG Architekti v spolupráci s Pavlom Wohlfahrtom stavia na odkrytí pôvodnej priestorovej logiky, odstránení nevhodných stavebných zásahov a sprehľadnení dispozície historického objektu v centre Košíc.
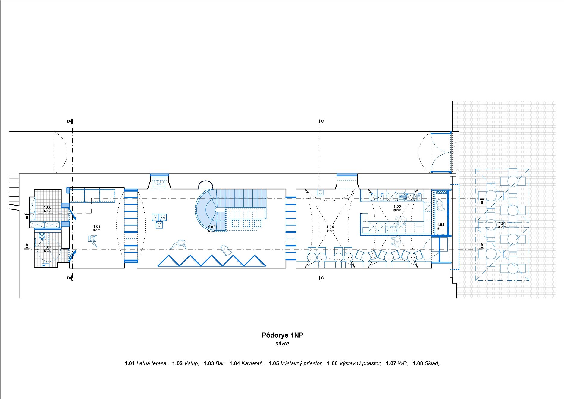
Nové prevádzkové zóny vymedzujú autorsky stvárnené nábytkové celky, jasne čitateľné vo vzťahu k pôvodnému stavebnému objemu. Dôležitú súčasť návrhu tvorí kontakt s ulicou. Kaviareň v parteri posilňuje väzbu na verejný priestor. V sekvencii priestorov definujú logiku pohybu návštevníkov a atmosféru svetlo, materiálové a farebné riešenie.
Dielo bližšie predstaví sprievodný autorský text:
Marathon Point je projekt obnovy a transformácie situovaný na historickej trase Medzinárodného maratónu mieru v Košiciach. Zásah odhaľuje architektúru existujúcej budovy prostredníctvom obnovenia pôvodných objemov, dosiahnutého odstránením neskorších prístavieb a prečistením priestorovej štruktúry.
Projekt je založený na striedmom prístupe, v rámci ktorého sú nové funkcie vnášané do priestoru formou autonómnych, jasne čitateľných objektov. Táto stratégia umožňuje zachovať architektonickú integritu budovy a zároveň vytvoriť súčasný, prehľadný a flexibilný program.
Vzťah k verejnému priestoru tvorí kľúčovú súčasť návrhu. Kaviareň integrovaná do uličnej fasády vytvára priame prepojenie s historickou trasou maratónu a odkazuje na občerstvovacie stanice rozmiestnené pozdĺž trate. Vďaka priamemu prístupu z ulice ponúka miesto krátkeho zastavenia pre návštevníkov aj okoloidúcich a vytvára paralelu medzi maratónskym výkonom a každodenným rytmom mesta.
Interiérová trasa sa rozvíja ako sled priestorových sekvencií inšpirovaných jednotlivými etapami behu. Každý priestor návštevníka postupne sprevádza, prepája zážitok, interpretáciu a kontempláciu, v prostredí, kde zohrávajú kľúčovú úlohu funkcia, svetlo a materialita.
Marathon Point tak ponúka súčasné čítanie miesta, v ktorom sa architektúra, pamäť a každodenné využitie stretávajú v striedmom a trvácnom dialógu.
Podklady: UNG Architekti
Fotografie: Matej Hakár