Advertorial

Pozvánka na 2. ročník stavebného veľtrhu BigMarket na Slovensku

Na podujatí sa predstaví až 37 vystavovateľov - popredných dodávateľov stavebných materiálov a inovácií s prezentáciou...

Hotel Hirschen Spa House, Rakúsko

Novotvar v prostredí alpskej obce.

Vytvorte si kúpeľňu snov: dizajnové riešenie od značky hansgrohe

Hansgrohe - prémiová značka kúpeľňových riešení, ponúka nadčasový dizajn, technickú precíznosť a udržateľné inovácie...

Okná Internorm za minuloročné ceny + hliníkový kryt zdarma!

Využite špeciálnu akciu Internorm: okná za minuloročné ceny a hliníkový kryt úplne zadarmo. Ponuka je časovo obmedzená!

Moderné plynové technológie: Efektivita a inovácie pre 21. storočie

Sumarizácia najdôležitejších inovácií, ktoré redefinujúcich využitie tohto energetického zdroja.

Utesňovanie spodných stavieb pomocou hydro-aktívnej fólie AMPHIBIA.

AMPHIBIA 3000 GRIP 1.3 od spoločnosti ATRO predstavuje modernú hydroizolačnú technológiu, ktorá spája vysokú odolnosť,...

Dekarbonizácia individuálneho vykurovania domácností – Green Deal evolučne a nie revolučne

Ambiciózne plány EK narazili na ekonomické možnosti domácností v jednotlivých členských štátoch –...

Minimalistické dvere IDEA – technická precíznosť a čistota prevedenia

IDEA DOOR od spoločnosti JAP prináša do interiéru čistý minimalistický vzhľad vďaka bezrámovému riešeniu a precíznej...

Dom s výhľadom na údolie, Dlouhý Most (ČR)

Kontinuita riešenia od vonkajšieho obkladu až po kovania a kľučky.

Schell Vitus – osvedčené riešenie pre sprchy a umývadlá vo verejnom sektore s viac ako desaťročnou tradíciou

Nástenné nadomietkové armatúry Vitus sú mimoriadne vhodné pre rýchlu a efektívnu...

Kompozitné okná predstavujú súčasnosť a budúcnosť

Okenné profily z kompozitného materiálu RAU-FIPRO X od spoločnosti Rehau sú v porovnaní s tradičnými plastovými profilmi mnohonásobne...

Myotis - stoly 2025

Najnovší sortiment stolov pre zariadenie interiérov...

Priemyselné sklenené priečky Dorsis Digero: svetelné rozhranie pre moderné interiéry

Spojenie moderného dizajnu, funkčnosti a svetla do harmonického architektonického prvku.

Význam prirodzeného svetla pre moderné a flexibilné pracovné prostredie

Kancelárska budova Baumit v slovinskom Trzine prešla premenou na moderné a udržateľné pracovisko. Architekti kládli dôraz...

Konferencia Xella Dialóg predstaví novinky a trendy v stavebníctve

Mottom šiesteho ročníku on-line konferencie odborníkov Xella Dialóg je Efektívny návrh budov 2025+: zmeny a riešenia

Modernizácia a nadstavba rekreačného objektu B, Slnečné jazerá Senec

Rekreačný objekt B sa nachádza v areáli Slnečných jazier v chatovej osade v Senci. Hlavnou ideou je zachovať primárny tvar objektu, odstrániť jrho dočasné konštrukcie a nadstaviť objekt v pôdorysnej stope prvého nadzemného podlažia so zachovaním hmoty atiky, ktorá kompozične bude prirodzene oddeľovať substancie - existujúcu hmotu a novú hmotu (nadstavba).
Diela
Roman Ruhig15.12.2021
2990+2
Modernizácia a nadstavba rekreačného objektu B, Slnečné jazerá Senec
Ateliér: ER AtelierAutori: Ing. arch. Ing. Roman Ruhig, PhD., Ing. arch. Ing. Ema Ruhigová (Kiabová), PhD.Investor: Martin LalikPlocha pozemku: 304Návrh: 2021 - 2021Adresa: Senec, SlovenskoPublikované: 15. december 2021

Urbanistické začlenenie stavby do územia

Predmetný objekt sa nachádza na jednom z cípov pobrežia Slnečných jazier, ku ktorému smeruje príjazdová komunikácia napojená na hlavnú vnútornú areálovú komunikáciu. V okolí sa nachádzajú dvojpodlažné objekty, bez podkrovia, s podkrovím, alebo so suterénom. Architektonický štýl susedných objektov je rôzny. Je tu pomerne rozsiahla výstavba rekreačných objektov v podobe chatiek so šikmými strechami a funkcionalistických rekreačných objektov s plochou strechou. Predmetný riešený objekt má charakter funkcionalistickej budovy s plochou strechou. Objekt je jednopodlažný so suterénom, ktorý je iba čiastočne podpivničený. Pozemok o ploche 304 m2 má svahovitý charakter juhozápadnej orientácie v nadmorskej výške 121 - 123 m.n.m. V okolí pozemku sa nachádza pár stromov, ktoré budú zachované. Väčšina plochy je zatrávnená a na parcele chýbajú chodníky a spevnené plochy určené na rekreáciu. Objekt je na severovýchodnej strane postavený na hranici pozemku a z juhovýchodnej strany je odsadený od pozemku necelý meter. Na susednom a riešenom pozemku sa nachádzajú oporné múry, ktoré pomáhajú vyrovnať výškové rozdiely svahu a delia zatrávnenú časť od brehu. Oporné múry, ako aj okolie okolo nich, sú zanedbané a potrebovali by revitalizáciu. Nová štruktúra v podobe nadstavby nenarúša pôvodný vzhľad objektu, skôr ho dopĺňa a zároveň sa nadstavbou približuje k okolitým výškam budov, vďaka čomu bude objekt s okolitou výstavbou vo výškovom kontexte. Nadstavba je zároveň od existujúcej substancie objektu odčlenená plechom, ktorý cituje susednú strešnú rovinu v tejto úrovni. Výška objektu je od upraveného terénu príjazdovej komunikácie uvažovaná

Širšie vzťahy
Širšie vzťahy
Situácia
Situácia

Dispozičné riešenie

Skutkový stav

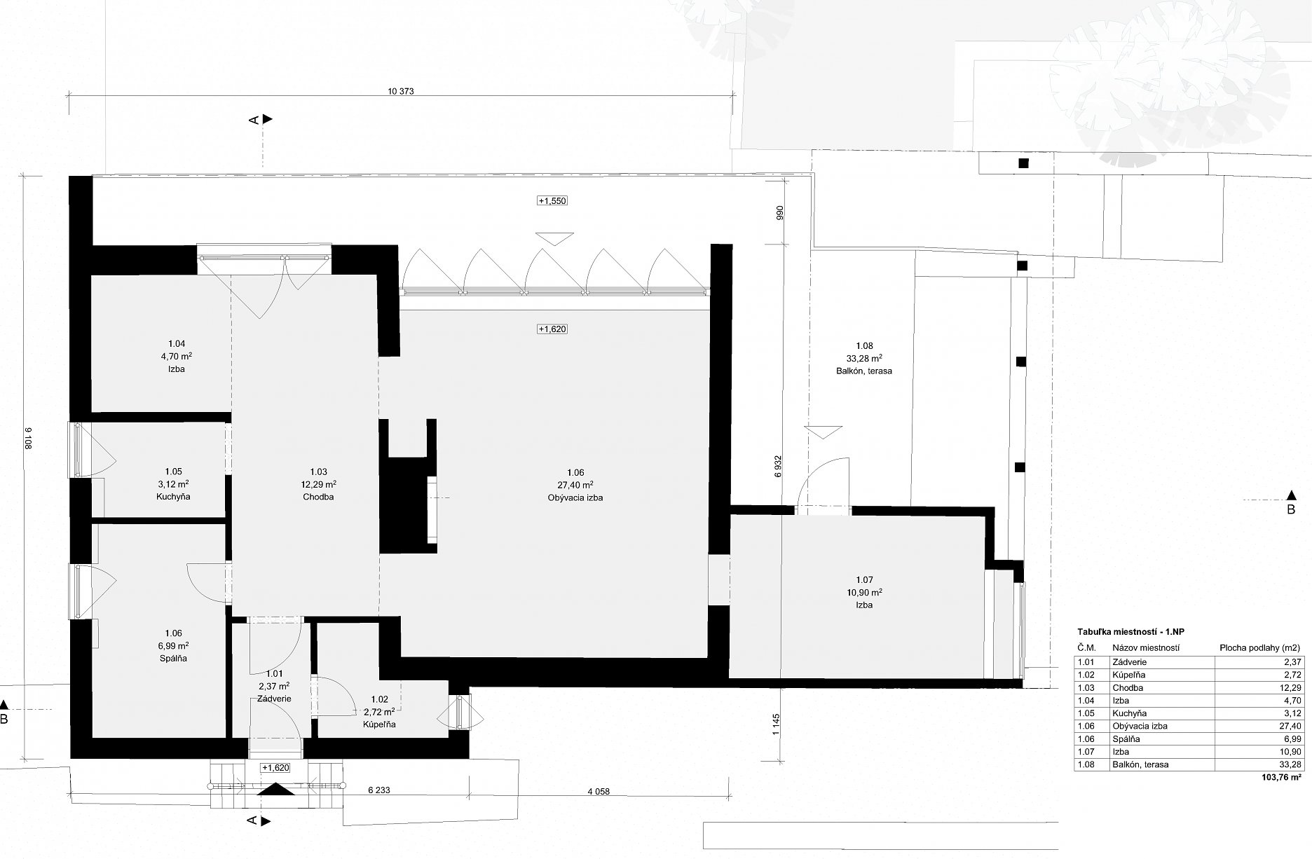
Objekt bol postavený približne medzi 60. – 90 rokmi v minulom storočí. V súčasnosti sú vchody do suterénnych priestorov a nadzemného podlažia oddelené. Budova vyžaduje celkovú modernizáciu. V suteréne sa nachádzajú sklady a malá lodenica. Do prvého nadzemného podlažia sa dostaneme cez exteriérové schodisko umiestnené pri príjazdovej komunikácii. Na poschodí je situovaná kuchyňa, spálňa, kúpeľňa, otvorená izba do chodby a obývacia izba s krbom. Na terase je dočasne pristavaná drevená konštrukcia s menšou izbou, ktorá bude odstránená.

Nový stav

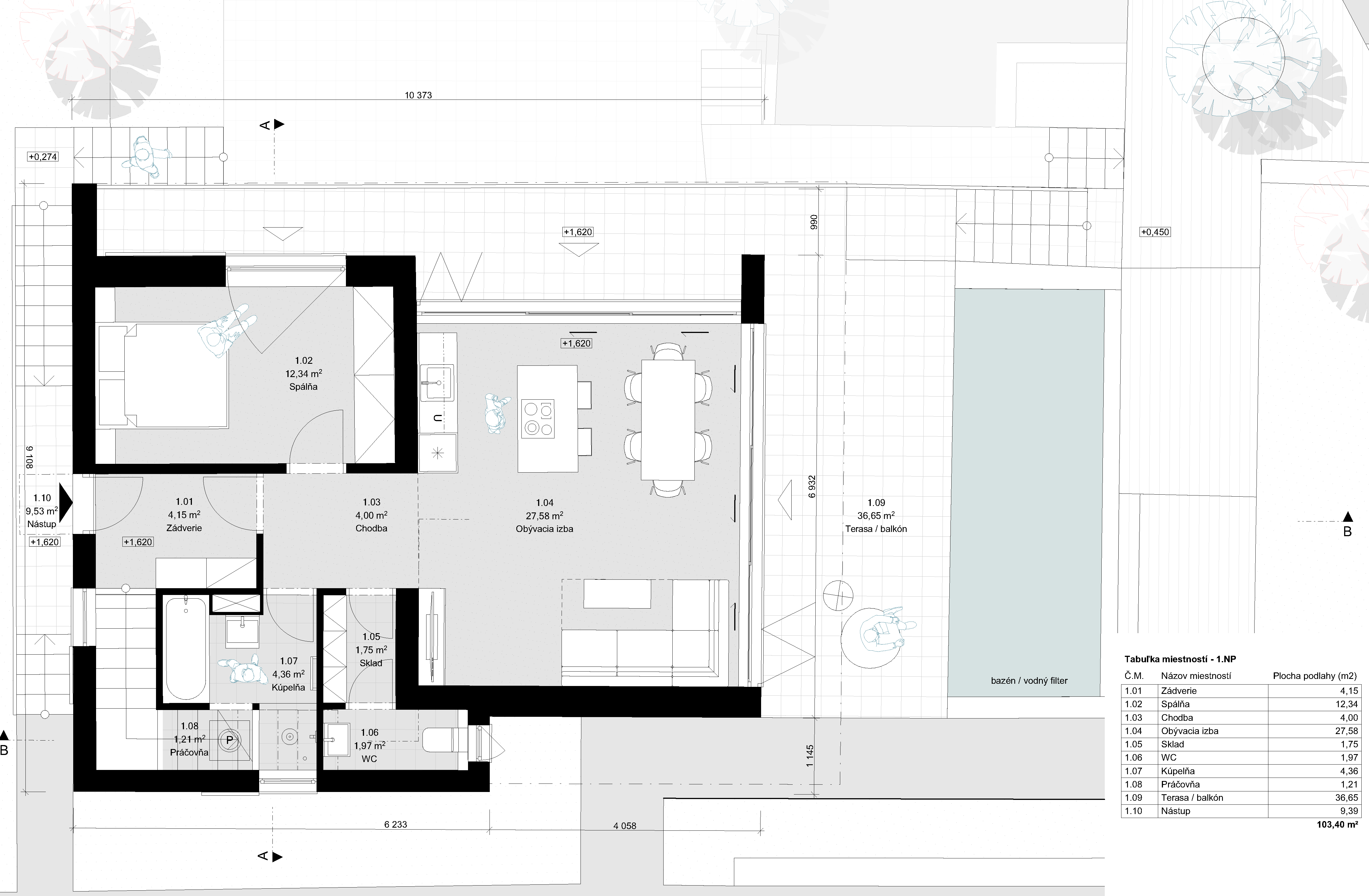
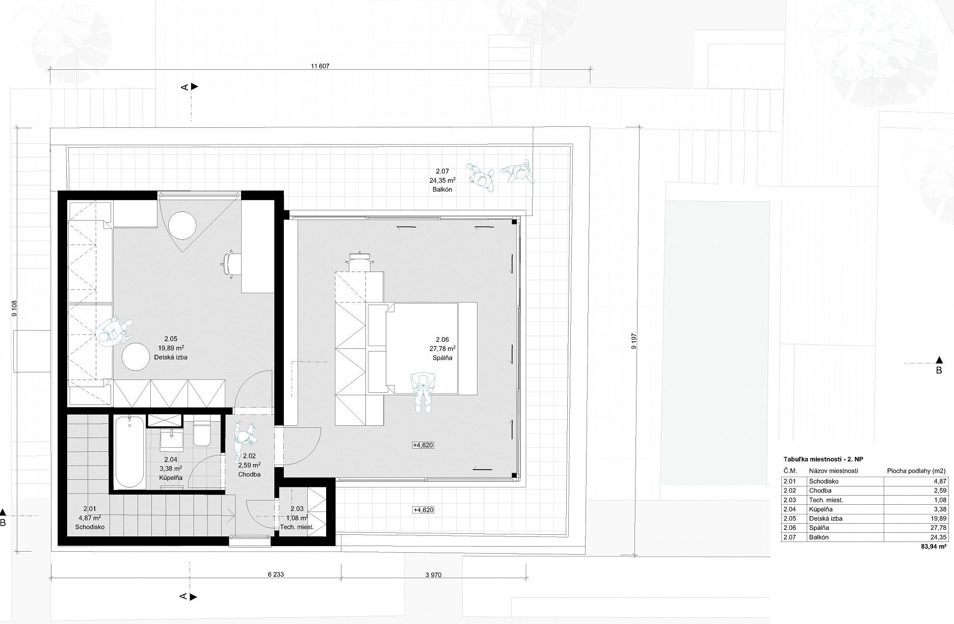
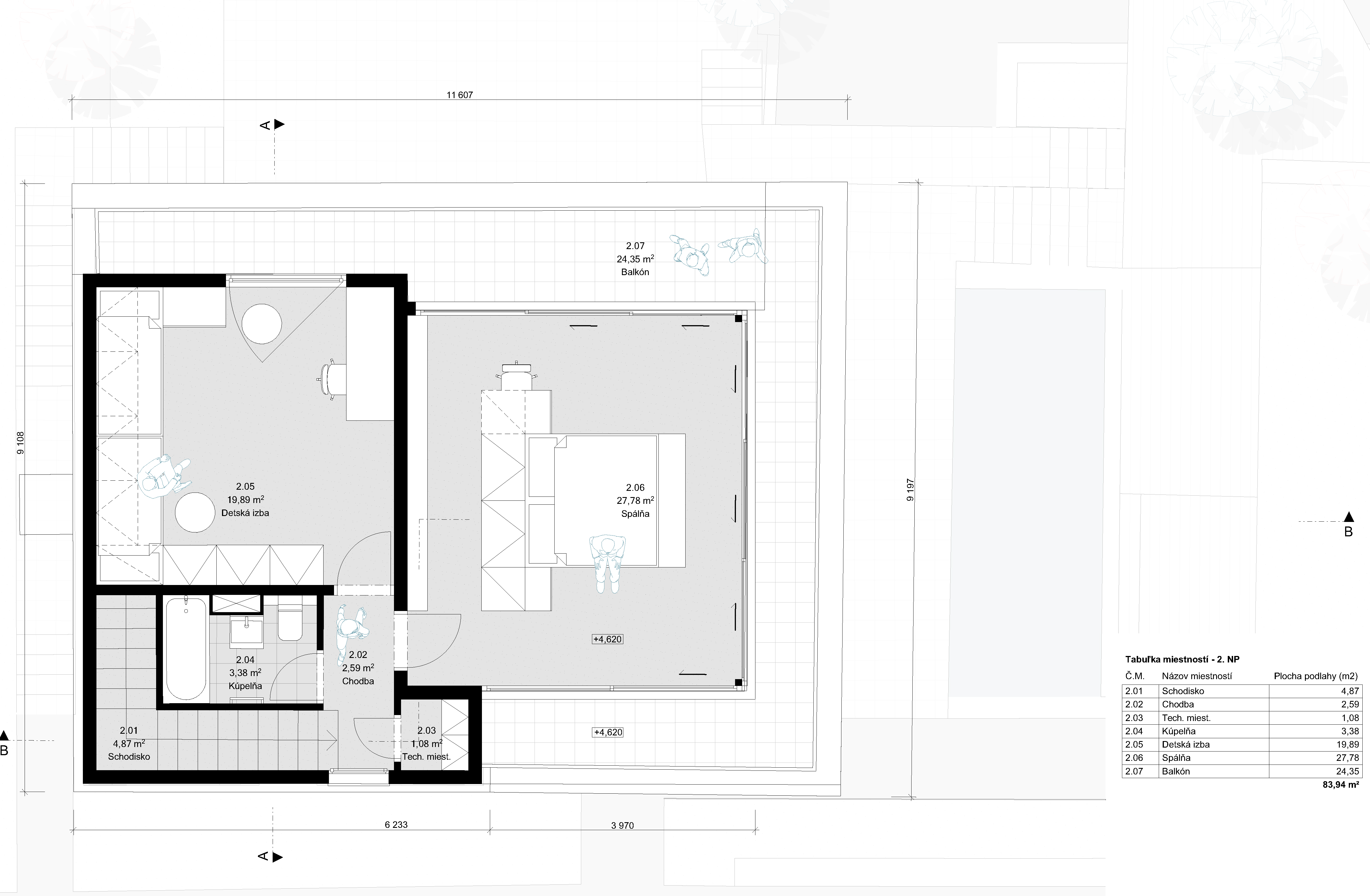
V suteréne je zachovaná malá lodenica a sklad, v ktorom je navrhnuté WC. V druhom sklade je situovaná kuchynka pre príležitostné akcie v exteriéri. Na prvom nadzemnom podlaží je navrhnuté zádverie, cez ktoré sa dostávame do spoločenskej zóny a spálne a na druhé podlažie cez pravotočivé schodisko v tvare „L“. Medzi zádverím a obývacou izbou sa nachádza chodba s priamym prístupom do spálne, kúpeľne a skladu, cez ktorý bude prístupné samostatné WC. Obývacia miestnosť je spojená s kuchyňou a jedálňou. Hlavná terasa s balkónom na tomto podlaží sú prístupné priamo zo spálne a aj z obývacej izby. Na druhom podlaží sú situované dve obytné miestnosti – detská izba a spálňa, ktoré majú taktiež priamy prístup na balkón prechádzajúci po časti obvodu tohto podlažia. Pri schodisku sa nachádza kúpeľňa a technická miestnosť, ktorá môže byť využívaná aj ako šatník.

Pôdorys 1.PP - skutkový stav
Pôdorys 1.PP - skutkový stav
Pôdorys 1.PP - nový stav
Pôdorys 1.PP - nový stav
Pôdorys 1.NP - skutkový stav
Pôdorys 1.NP - skutkový stav
Pôdorys 1.NP - nový stav
Pôdorys 1.NP - nový stav
Pôdorys 2.NP - nový stav
Pôdorys 2.NP - nový stav
Priečny rez A-A´ pred a po
Priečny rez A-A´ pred a po
Pozdĺžny rez B-B´ - skutkový stav
Pozdĺžny rez B-B´ - skutkový stav
Pozdĺžny rez B-B´ - nový stav
Pozdĺžny rez B-B´ - nový stav

Architektonické a výtvarné riešenie

Pôvodnou siluetou objektu bol kváder, ku ktorej bol neskôr pristavený dočasný drevený prístrešok. Hlavnou ideou je zachovať primárny tvar objektu, odstrániť dočasné konštrukcie a nadstaviť objekt v pôdorysnej stope prvého nadzemného podlažia so zachovaním hmoty atiky, ktorá kompozične bude oddeľovať primárne substancie – existujúcu hmotu a novú hmotu v podobe nadstavby. Ďalšou ideou je vytvoriť zázemie v suteréne, ktoré bude slúžiť pre voľnočasové aktivity v exteriéri. Funkcionalistický charakter objektu je vďaka plochým strechám zachovaný. Daný architektonický štýl by mal byť aplikovaný aj na susedný rekreačný objekt tak, aby boli objekty vo vzájomnom kontexte a dopovedali pobrežný cíp v jednotnom estetickom výraze. Navrhovaná farebnosť sa nesie v svetlom bielom minimalistickom prevedení v kontraste s kovovými konštrukciami v sivej farbe (príp. antracitovej). V súčasnosti sa na objekte nachádzajú harmonikové krídla, ktoré z bezpečnostných dôvodov prekrývajú hlavnú exponovanú okennú konštrukciu. Tie boli inšpiráciou aj pre náš návrh, takže boli v suteréne a na prvom nadzemnom podlaží navrhnuté tak, aby v prípade neprítomnosti užívateľov  zabezpečili objekt proti krádeži. V kovovom prevedení sú navrhnuté aj pergoly s bioklimatickými lamelami, nové okenné a dverné rámy, okenice a obvodové steny na druhom nadzemnom podlaží. Tie budú obalené do falcovanej plechovej krytiny pripomínajúcej strešnú krytinu šikmých striech, vďaka čomu budú s nimi v kontexte. Na tomto podlaží budú transparentné konštrukcie opatrené proti krádeži exteriérovými žalúziami. Ostatná hmota je navrhnutá v bielej farbe s textúrou ušľachtilej omietky (napr. brizolit), ktorá bola súčasťou fasád funkcionalistickej architektúry už v minulom storočí.

Pohľad JZ - skutkový stav
Pohľad JZ - skutkový stav
Pohľad JZ - nový stav
Pohľad JZ - nový stav
Pohľad SZ - skutkový stav
Pohľad SZ - skutkový stav
Pohľad SZ - nový stav
Pohľad SZ - nový stav
Axonometria - skutkový stav
Axonometria - skutkový stav
Axonometria - nový stav
Axonometria - nový stav
Vizualizácia - prístup /ulička - objekt A + B
Vizualizácia - prístup /ulička - objekt A + B
Vizualizácia od záhrady - objekt B
Vizualizácia od záhrady - objekt B
Vizualizácia od jazera - objekt A
Vizualizácia od jazera - objekt A

Ateliér

Ing. arch. Ing. Roman Ruhig, PhD.
Ing. arch. Ing. Ema Ruhigová (Kiabová), PhD.
Vložené
15. december 2021
0
299
Hlavný obsahHlavný obsah
Čakajte prosím