Advertorial

Pozvánka na 2. ročník stavebného veľtrhu BigMarket na Slovensku

Na podujatí sa predstaví až 37 vystavovateľov - popredných dodávateľov stavebných materiálov a inovácií s prezentáciou...

Hotel Hirschen Spa House, Rakúsko

Novotvar v prostredí alpskej obce.

Vytvorte si kúpeľňu snov: dizajnové riešenie od značky hansgrohe

Hansgrohe - prémiová značka kúpeľňových riešení, ponúka nadčasový dizajn, technickú precíznosť a udržateľné inovácie...

Okná Internorm za minuloročné ceny + hliníkový kryt zdarma!

Využite špeciálnu akciu Internorm: okná za minuloročné ceny a hliníkový kryt úplne zadarmo. Ponuka je časovo obmedzená!

Moderné plynové technológie: Efektivita a inovácie pre 21. storočie

Sumarizácia najdôležitejších inovácií, ktoré redefinujúcich využitie tohto energetického zdroja.

Utesňovanie spodných stavieb pomocou hydro-aktívnej fólie AMPHIBIA.

AMPHIBIA 3000 GRIP 1.3 od spoločnosti ATRO predstavuje modernú hydroizolačnú technológiu, ktorá spája vysokú odolnosť,...

Dekarbonizácia individuálneho vykurovania domácností – Green Deal evolučne a nie revolučne

Ambiciózne plány EK narazili na ekonomické možnosti domácností v jednotlivých členských štátoch –...

Minimalistické dvere IDEA – technická precíznosť a čistota prevedenia

IDEA DOOR od spoločnosti JAP prináša do interiéru čistý minimalistický vzhľad vďaka bezrámovému riešeniu a precíznej...

Dom s výhľadom na údolie, Dlouhý Most (ČR)

Kontinuita riešenia od vonkajšieho obkladu až po kovania a kľučky.

Schell Vitus – osvedčené riešenie pre sprchy a umývadlá vo verejnom sektore s viac ako desaťročnou tradíciou

Nástenné nadomietkové armatúry Vitus sú mimoriadne vhodné pre rýchlu a efektívnu...

Kompozitné okná predstavujú súčasnosť a budúcnosť

Okenné profily z kompozitného materiálu RAU-FIPRO X od spoločnosti Rehau sú v porovnaní s tradičnými plastovými profilmi mnohonásobne...

Myotis - stoly 2025

Najnovší sortiment stolov pre zariadenie interiérov...

Priemyselné sklenené priečky Dorsis Digero: svetelné rozhranie pre moderné interiéry

Spojenie moderného dizajnu, funkčnosti a svetla do harmonického architektonického prvku.

Význam prirodzeného svetla pre moderné a flexibilné pracovné prostredie

Kancelárska budova Baumit v slovinskom Trzine prešla premenou na moderné a udržateľné pracovisko. Architekti kládli dôraz...

Konferencia Xella Dialóg predstaví novinky a trendy v stavebníctve

Mottom šiesteho ročníku on-line konferencie odborníkov Xella Dialóg je Efektívny návrh budov 2025+: zmeny a riešenia

Gánkový dom

súťažný návrh
Diela
Roman Ruhig09.12.2023
12910+11
Gánkový dom
Ateliér: ER AtelierAutori: Ing. arch. Ing. Roman Ruhig, PhD., Ing. arch. Ing. Ema Ruhigová (Kiabová), PhD.Návrh: 2023 - 2023Adresa: SlovenskoPublikované: 9. december 2023

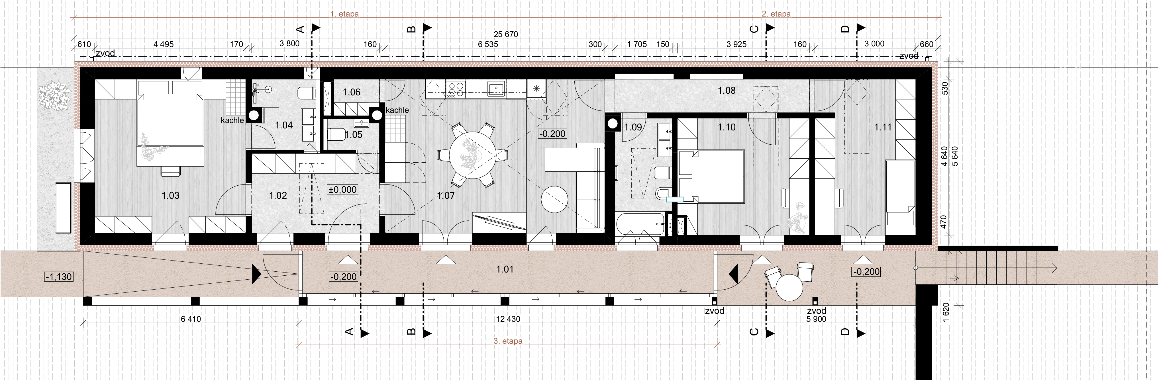
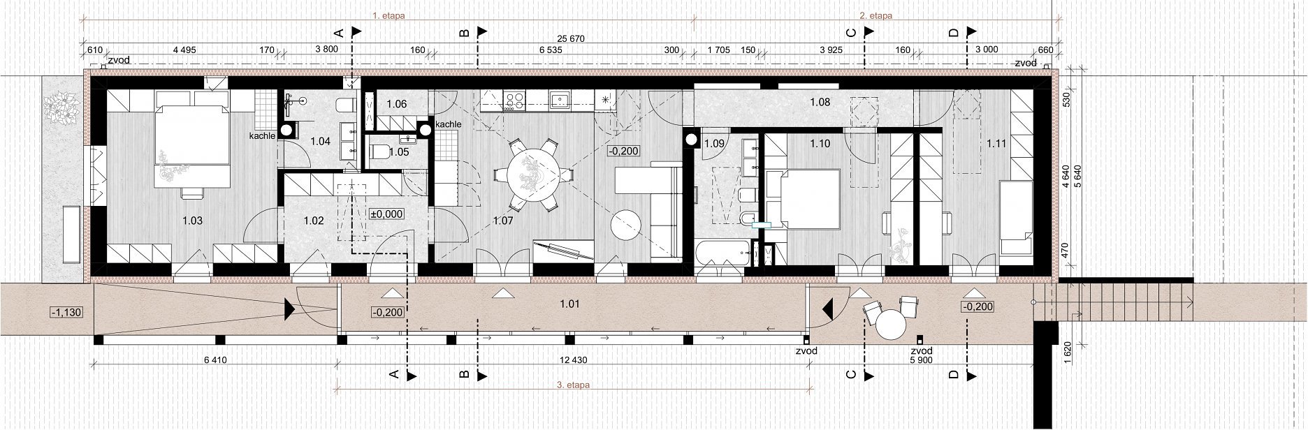
Hlavnou ideou návrhu bolo zachovanie pôvodných kvalít objektu, jeho estetického rázu, kde by nové prvky nemali byť voči pôvodnej architektúre prílišne kontrastné, ale práve naopak ju rešpektujú a nadväzujú na jej podstatu. Pri danom rodinnom dome je ústredným jazykovým prostriedkom gánok, ktorý sa postupom času individuálne zasklieval, dostavoval, zvykli doňho byť realizované rôzne vstavby (vestibuly, sklady a pod.). V návrhu je snaha tieto nánosy odstrániť a gánok nechať plynúť pozdĺž celého domu, vďaka čomu vynikol jeho stĺpový rytmus a bolo ho možné celý uvoľniť a sprístupniť.

Na priečelí gánku je zároveň jasne čítať súkromnú a spoločenskú zónu domu. Pred spoločenskou zónou je navrhnutá zimná záhrada tvorená posuvným presklením, ktoré zreteľným spôsobom deklaruje svoj súčasný vstup – novú kultúrnu vrstvu, ktorá tak cituje pôvodnú polohu niekdajšieho zasklievania. Zároveň zasklenie zvyšuje energetickú efektivitu domu a vďaka jeho možnému celoplošnému otvoreniu dom nestráca možnosť priečneho vetrania. Cez zasklenie je možné čítať charakter bočnej fasády s rôznymi rozmermi otvorov, ktoré sú pre dom typické. Ďalším medzipriestorom, ktorý je do architektúry integrovaný, je skleník za domom, ktorý lemuje figúru domu a je priamo prístupný z osi gánku.

Pôvodná dispozícia domu nevyhovuje súčasným štandardom bývania a hlavným negatívom je, že priestory nie sú v rámci interiéru navzájom prepojené. Aj preto bolo potrebné v návrhu robiť intervencie, ktoré spočívajú v odstránení niektorých nenosných priečok. Snahou však bolo navrhnúť dispozíciu, pri ktorej by bolo možné zachovať čo najviac zabudovaných konštrukcií. Z hľadiska prevádzky je v návrhu dom rozdelený na 3 zóny. Prvá zóna (orientovaná k ceste) bude slúžiť ako hosťovská časť s vlastným hygienickým zázemím – môže slúžiť aj ako hlavná spálňa rodičov, alebo starých rodičov (pri viacgeneračnom bývaní). Do stredu objektu je navrhnutá spoločenská zóna, ktorá sa stáva ústredným priestorom celého domu a je priamo prístupná aj zo zaskleného priestoru gánku. To dovoľuje túto zónu rozšíriť o gánok v každom ročnom období. Treťou zónou je súkromná zóna v zadnej časti domu, v ktorej sa nachádzajú dve izby a kúpeľňa. Izby môžu byť ponímané ako dve detské izby, prípadne pri viacgeneračnom bývaní ako spálňa a detská izba.

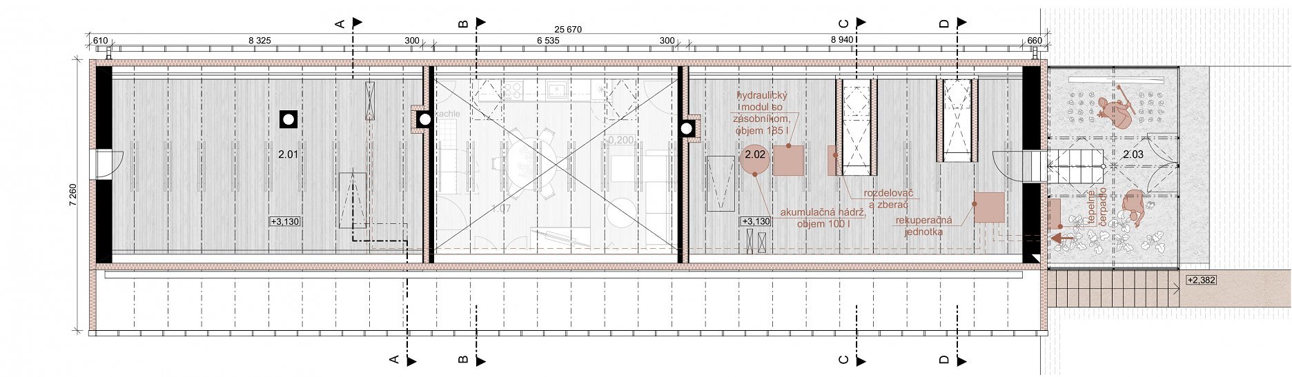
Nástup do objektu je navrhnutý ako bezbariérový vďaka rampe, ktorá nahradí existujúce schody. Z rampy je prístupná zasklená časť gánku, ktorá prirodzene vytvára závetrie, z ktorého je možné vstúpiť cez hlavný vchod do zádveria. Hlavný vchod je navrhnutý v mieste pôvodného hlavného vchodu, z ktorého sa priamo dostaneme do hosťovskej spálne, spoločenskej zóny, pohotovostného WC a cez padacie dvierka so schodmi v strope aj do podkrovného priestoru, kde je v tejto časti navrhnutý sklad. Ďalšie padacie dvierka sú navrhnuté v kúpeľni (v súkromnej zóne), cez ktoré je sprístupnená technická miestnosť. Nad spoločenskou zónou (obývacia izba / jedáleň / kuchyňa) je navrhnutá galéria na celú svetlú výšku domu, kde budú odprezentované pôvodné drevené prvky krovu. Do tohto priestoru sa pri komíne osadia pôvodné kachle. Ďalšia možnosť osadenia kachlí je v spálni pri komíne. Pri kuchyni sa nachádza špajza, do ktorej je z nej priamo vstup.

Podkrovie je rovnako rozdelené na tri časti, z ktorých dve budú využívané na skladovanie a umiestnenie technológie a v tretej časti je navrhnutá galéria spoločenskej zóny. Technický priestor v podkroví je okrem padacích dvierok na prízemí prístupný aj priamo z exteriéru cez skleník.

Realizáciu zmeny dispozície je možné riešiť aj v etapách. V prvej etape by bolo potrebné zrealizovať zádverie, hosťovskú izbu, kúpeľňu, WC, spoločenskú zónu a vyhotoviť zateplenie na fasádach, v strope a v podlahe. V druhej etape by bola zrealizovaná súkromná časť v zadnej časti domu a ako poslednou etapou by bolo zasklenie gánku, realizácia spevnených plôch gánku, zateplenie strechy (mimo teplovýmennej obálky) a vyhotovenie podláh v podkroví.

Pod oknami boli v niektorých prípadoch odstránené parapety z dôvodu zvýšenia solárnych ziskov a presvetleniu priestorov. Výnimkou je čelné okno, ktoré ostáva v pôvodnom stave – za neho bude osadené nové okno, ktoré bude energeticky efektívne a tak sa do pôvodného nebude musieť zasahovať, ani ho odstraňovať. Vzhľadom na to, že je severná fasáda objektu na hranici pozemku, nie je možné na fasáde osadiť nové okná, ktoré by prevetrali celý rodinný dom priečne. Z tohto dôvodu boli navrhnuté v strešnej rovine nové strešné okná, ktoré zabezpečia priečne prevetranie priamo, alebo zošikmenými koridormi „tunelmi“ do detských izieb.

Daná os gánku začína už pri vstupe na pozemok a pokračuje do záhrady cez nové terénne schodisko, ktoré záhradu sprístupní priamo z domu. Spevnená plocha vedie od vstupnej bránky pozdĺž celého gánku až po vnútorný priestor záhrady. Je navrhnutá z tehlovej antuky, ktorá bude zrealizovaná z recyklátu odstránených murovaných nenosných tvaroviek. Jej farebnosť zvýrazňuje gánkovú os a zároveň sa odvoláva na materiálovú podstatu celého objektu (pálené tehly, pálená škridla). Zadná časť gánku nebola pôvodne dokončená stĺporadím a jeho doplnenie stĺpmi by po formálnej stránke neprezentovalo reálnu statickú schému. Stĺpy sú v návrhu doplnené z iného funkčného hľadiska - dopĺňajú rytmus gánku a zároveň plnia funkciu dažďových zvodov. Do akumulačnej nádoby odvádzajú dažďovú vodu z navrhnutého dažďového žľabu.

Ateliér

Ing. arch. Ing. Roman Ruhig, PhD.
Ing. arch. Ing. Ema Ruhigová (Kiabová), PhD.
Vložené
9. december 2023
0
1291
Hlavný obsahHlavný obsah
Čakajte prosím