Advertorial

Pozvánka na 2. ročník stavebného veľtrhu BigMarket na Slovensku

Na podujatí sa predstaví až 37 vystavovateľov - popredných dodávateľov stavebných materiálov a inovácií s prezentáciou...

Hotel Hirschen Spa House, Rakúsko

Novotvar v prostredí alpskej obce.

Vytvorte si kúpeľňu snov: dizajnové riešenie od značky hansgrohe

Hansgrohe - prémiová značka kúpeľňových riešení, ponúka nadčasový dizajn, technickú precíznosť a udržateľné inovácie...

Okná Internorm za minuloročné ceny + hliníkový kryt zdarma!

Využite špeciálnu akciu Internorm: okná za minuloročné ceny a hliníkový kryt úplne zadarmo. Ponuka je časovo obmedzená!

Moderné plynové technológie: Efektivita a inovácie pre 21. storočie

Sumarizácia najdôležitejších inovácií, ktoré redefinujúcich využitie tohto energetického zdroja.

Utesňovanie spodných stavieb pomocou hydro-aktívnej fólie AMPHIBIA.

AMPHIBIA 3000 GRIP 1.3 od spoločnosti ATRO predstavuje modernú hydroizolačnú technológiu, ktorá spája vysokú odolnosť,...

Dekarbonizácia individuálneho vykurovania domácností – Green Deal evolučne a nie revolučne

Ambiciózne plány EK narazili na ekonomické možnosti domácností v jednotlivých členských štátoch –...

Minimalistické dvere IDEA – technická precíznosť a čistota prevedenia

IDEA DOOR od spoločnosti JAP prináša do interiéru čistý minimalistický vzhľad vďaka bezrámovému riešeniu a precíznej...

Dom s výhľadom na údolie, Dlouhý Most (ČR)

Kontinuita riešenia od vonkajšieho obkladu až po kovania a kľučky.

Schell Vitus – osvedčené riešenie pre sprchy a umývadlá vo verejnom sektore s viac ako desaťročnou tradíciou

Nástenné nadomietkové armatúry Vitus sú mimoriadne vhodné pre rýchlu a efektívnu...

Kompozitné okná predstavujú súčasnosť a budúcnosť

Okenné profily z kompozitného materiálu RAU-FIPRO X od spoločnosti Rehau sú v porovnaní s tradičnými plastovými profilmi mnohonásobne...

Myotis - stoly 2025

Najnovší sortiment stolov pre zariadenie interiérov...

Priemyselné sklenené priečky Dorsis Digero: svetelné rozhranie pre moderné interiéry

Spojenie moderného dizajnu, funkčnosti a svetla do harmonického architektonického prvku.

Význam prirodzeného svetla pre moderné a flexibilné pracovné prostredie

Kancelárska budova Baumit v slovinskom Trzine prešla premenou na moderné a udržateľné pracovisko. Architekti kládli dôraz...

Konferencia Xella Dialóg predstaví novinky a trendy v stavebníctve

Mottom šiesteho ročníku on-line konferencie odborníkov Xella Dialóg je Efektívny návrh budov 2025+: zmeny a riešenia

Hosťovský dom na konci, Banská Štiavnica

Projekt rozšírenia rekreačného objektu o zázemie pre návštevy, altánok a saunu.
Diela
Jakub Kolarovič21.08.2023
40450+66
Hosťovský dom na konci, Banská Štiavnica
Ateliér: Jakub Kolarovič Architects s.r.o.Autori: Ing. arch. Jakub Kolarovič (Architekt, CEO)Zastavaná plocha: 81 m2Návrh: 2023 - 2023Realizácia: 2023 - 0Adresa: Banská Štiavnica, SlovenskoPublikované: 21. august 2023

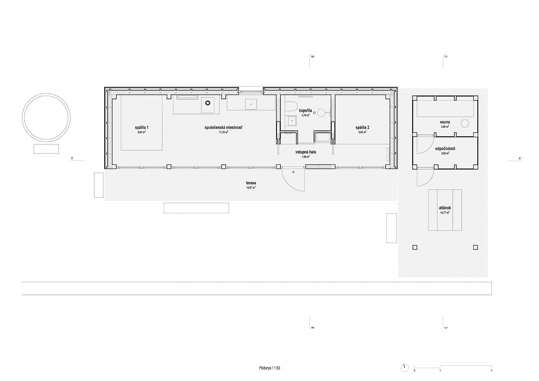
Základnú kostru objektov vymedzujú racionálne drevené rámy v module 2 x 2 metrov. Transparentná fasáda, orientovaná do súkromia záhrady, eliminuje rozhranie vnútri - vonku. Asymetricky osadená sedlová strecha presahuje racionálny hranol hosťovského domu a rozširuje ho o chránený priestor gánku / terasy. Estetický rámec návrhu tvorí priznaná konštrukcia a materialita drevostavby.

Tešíme sa na výsledok prebiehajúcej realizácie a veríme, že sa podarí preniesť do reality subtílny výraz a detaily z návrhu. 

 

Projekt bližšie predstaví architekt Jakub Kolarovič:

Dom na konci sa nachádza v pokojnej časti Banskej Štiavnice. Je osadený vo svahu za vysokou zeleňou, ktorá vytvára intimitu a pokoj. Dopĺňa jestvujúcu stavbu určenú pre krátkodobú rekreáciu ako hosťovský dom s altánkom a saunou.

Dom je orientovaný pozdĺžne svojou otvorenou fasádou smerom k svahu. Okolité prostredie sa stáva jeho súčasťou. Preniká do interiéru tak, ako sa dom stáva súčasťou okolia. 

Otváravé segmenty fasády umožňujú vystúpiť z interiéru na gánok. Dom bol navrhnutý pre umocnenie zmyslových vnemov. Materiál je využitý vo svojej prirodzenosti. Presah strechy bez viditeľných dažďových zvodov, aluzinkový vlnitý plech na streche. Drevo vo svojej prírodnej forme, nášlapníky z hrubo opracovanej žuly, remeselne spracované kováčske prvky. Materiálová jednoduchosť, priznané prvky nosnej konštrukcie zo smrekových hranolov… 

Dom je zložený z piatich modulov s rozmermi 2 x 2 metre. Asymetrický umiestnený modul so zádverím a hygienickým zázemím oddeľuje spoločenskú časť so spálňou od samostatnej spálne. Priestory je možné v prípade potreby oddeliť posuvnými dverami. Strop nad celou kúpeľňou v nahrádza rozmerný svetlík.

Drevená konštrukcia stavby je založená na betónových pätkách. Sedlová jednoplášťová strecha využíva medzipriestor nad dreveným podhľadom pre prevetrávanie stavby.

Kolmo k domu je prisadený altánok so saunou. Konštrukčne rovnaká stavba s kontrastným materiálovým riešením. Namiesto drevenej smrekovej fasády, ktorá je použitá na dome je doplnková stavba opláštená fasádnym polykarbonátom. Priestor sauny a odpočivárne tienia interiérové drevené lamely na stenách a strope. Tienenie altánku je vyriešené textilnými roletami.

Autor: Jakub Kolarovič Architects
Vizualizácia: willbe.studio
Autor: Jakub Kolarovič Architects
Autor: Jakub Kolarovič Architects
Vizualizácia: willbe.studio
Autor: Jakub Kolarovič Architects
Autor: Jakub Kolarovič Architects
Autor: Jakub Kolarovič Architects
Autor: Jakub Kolarovič Architects
Vizualizácia: willbe.studio
Autor: Jakub Kolarovič Architects
Autor: Jakub Kolarovič Architects

Vizualizácie: willbe.studio

Poloha diela

Ing. arch. Jakub Kolarovič
Vložené
21. august 2023
0
4045
Hlavný obsahHlavný obsah
Čakajte prosím