Advertorial

Pozvánka na 2. ročník stavebného veľtrhu BigMarket na Slovensku

Na podujatí sa predstaví až 37 vystavovateľov - popredných dodávateľov stavebných materiálov a inovácií s prezentáciou...

Hotel Hirschen Spa House, Rakúsko

Novotvar v prostredí alpskej obce.

Vytvorte si kúpeľňu snov: dizajnové riešenie od značky hansgrohe

Hansgrohe - prémiová značka kúpeľňových riešení, ponúka nadčasový dizajn, technickú precíznosť a udržateľné inovácie...

Okná Internorm za minuloročné ceny + hliníkový kryt zdarma!

Využite špeciálnu akciu Internorm: okná za minuloročné ceny a hliníkový kryt úplne zadarmo. Ponuka je časovo obmedzená!

Moderné plynové technológie: Efektivita a inovácie pre 21. storočie

Sumarizácia najdôležitejších inovácií, ktoré redefinujúcich využitie tohto energetického zdroja.

Utesňovanie spodných stavieb pomocou hydro-aktívnej fólie AMPHIBIA.

AMPHIBIA 3000 GRIP 1.3 od spoločnosti ATRO predstavuje modernú hydroizolačnú technológiu, ktorá spája vysokú odolnosť,...

Dekarbonizácia individuálneho vykurovania domácností – Green Deal evolučne a nie revolučne

Ambiciózne plány EK narazili na ekonomické možnosti domácností v jednotlivých členských štátoch –...

Minimalistické dvere IDEA – technická precíznosť a čistota prevedenia

IDEA DOOR od spoločnosti JAP prináša do interiéru čistý minimalistický vzhľad vďaka bezrámovému riešeniu a precíznej...

Dom s výhľadom na údolie, Dlouhý Most (ČR)

Kontinuita riešenia od vonkajšieho obkladu až po kovania a kľučky.

Schell Vitus – osvedčené riešenie pre sprchy a umývadlá vo verejnom sektore s viac ako desaťročnou tradíciou

Nástenné nadomietkové armatúry Vitus sú mimoriadne vhodné pre rýchlu a efektívnu...

Kompozitné okná predstavujú súčasnosť a budúcnosť

Okenné profily z kompozitného materiálu RAU-FIPRO X od spoločnosti Rehau sú v porovnaní s tradičnými plastovými profilmi mnohonásobne...

Myotis - stoly 2025

Najnovší sortiment stolov pre zariadenie interiérov...

Priemyselné sklenené priečky Dorsis Digero: svetelné rozhranie pre moderné interiéry

Spojenie moderného dizajnu, funkčnosti a svetla do harmonického architektonického prvku.

Význam prirodzeného svetla pre moderné a flexibilné pracovné prostredie

Kancelárska budova Baumit v slovinskom Trzine prešla premenou na moderné a udržateľné pracovisko. Architekti kládli dôraz...

Konferencia Xella Dialóg predstaví novinky a trendy v stavebníctve

Mottom šiesteho ročníku on-line konferencie odborníkov Xella Dialóg je Efektívny návrh budov 2025+: zmeny a riešenia

"Jemnofarebný" rodinný dom - Ivanka pri Dunaji

Bývanie pre mladú rodinu.
Diela
Red 309.11.2022
69100+49
"Jemnofarebný" rodinný dom - Ivanka pri Dunaji
Autori: Ing. arch. Peter Kucharovič ml., Ing. arch. Katarína Kucharovič CambelováPlocha pozemku: 1220 m2Zastavaná plocha: 204,2 m2Obostavaný objem: 236,5 m2Návrh: 2019 - 2020Realizácia: 2020 - 2022Adresa: Farná , Ivanka pri Dunaji, SlovenskoPublikované: 9. november 2022

Zámer investora na výstavbu jednopodlažného objektu transformovali architekti, vzhľadom k rozsiahlemu lokalitnému programu a menšej výmere pozemku, na logickú kompozíciu dvoch základných hmôt. Vyšší blok so sedlovou strechou zapadá do rytmu zástavby ulice, pričom hlavné obytné celky zostávajú podľa požiadavky investora bezbariérovo prístupné na prízemí. Jednou z priorít bolo prepojenie dennej časti domu so záhradou.

Foto: Ondrej Stanek
Foto: Ondrej Stanek
Foto: Ondrej Stanek

Realizáciu bližšie predstavíme v rozhovore s architektmi Petrom Kucharovičom a Katarínou Kucharovič Cambelovou z ateliéru KCA:

S akým zadaním vás oslovil investor?

KCA: Investor nás oslovil s požiadavkou na bungalov, ktorý by zapadol medzi okolitú zástavbu. Zároveň si prial dom, ktorý by bol ukážkou kvalitnej architektúry a nie nesúrodej výstavby z 90. rokov, ako vo zvyšku ulice.

Súčasťou požiadaviek bolo aj zohľadnenie problematického umiestnenia domu na susednom pozemku, ktorého vysoká štítová stena stojí takmer na jeho hranici.

 

Ktoré východiská najviac ovplyvnili výsledný koncept?

KCA: Dôležitou požiadavkou bola veľká podlažná plocha domu vzhľadom k rozlohe pozemku a nutnosti zachovania malého ovocného sadu. Zachovanie konceptu bungalovu by znamenalo  zrušenie časti sadu a tiež neprimerané zmenšenie využiteľnej plochy záhrady. Preto sa nám podarilo presvedčiť investora o umiestnení niektorých izieb na poschodie.

Riešenie tiež do značnej miery ovplyvnila poloha vedľajšieho domu, ktorý narušil inak pomerne pravidelné a racionálne rozmiestnenie domov na ulici. Na pozemku investora vytvoril zatienené miesto s vysokou priľahlou stenou.

 

Stručne popíšte kľúčové body architektonického konceptu...

KCA: Hmotovo je dom rozdelený na dve časti - jednopodlažnú časť s plochou strechou a archetypálny blok s obytným podkrovím pod sedlovou strechou. Väčšina priestorov tak zostáva podľa želania investora na prízemí. Menej používané celky ako hosťovská izba, alebo pracovňa sa naopak dostali do podkrovia. Vďaka tomu sa podarilo zväčšiť plochu záhrady a zachrániť väčšinu ovocných stromov.

Toto rozdelenie hmôt je tiež dôležité pre začlenenie domu do ulice: hlavný, vyšší objem so sedlovou strechou je odsadený od hraníc pozemku a zapája sa do rytmu domov na ulici. Nižší objem s plochou strechou následne maximálne využíva šírku pozemku až k susednému objektu. Zabezpečuje tak požadovanú podlažnú plochu domu práve v časti pozemku, ktorá je ovplyvnená hraničným osadením susedného domu. Vďaka malej výške sa však na neho pocitovo "netlačí".

 

Aký konštrukčný systém ste zvolili, s akými materiálmi ste pracovali?

KCA: Dom je z väčšej časti tehlový, no veľkosť a množstvo presklení, ako aj väčšie rozpony si vyžiadali použitie betónových konštrukcií vo zvýšenej miere. V podkroví sú monolitické prvky doplnené aj oceľovou väznicou, podopretou stojkami. Vďaka použitiu spomínaných materiálov bolo možné vytvoriť dispozíciu bez kompromisov a to na prízemí aj v podkroví.

 

Aké zaujímavé technické riešenia ste v rámci projektu realizovali?

KCA: Vykurovanie zabezpečuje tepelné čerpadlo a odovzdávacia sústava umiestnená na strope (resp. streche). Doplnená je o vetranie pomocou centrálnej rekuperačnej jednotky, ktorá je umiestnená v nízkej - inak ťažko využiteľnej časti podkrovia - na chodbe. Prívod rekuperovaného vzduchu v obývacej izbe a kuchyni je riešený pomocou tenkých bazénových výustiek (štrbín) v podlahe, pri veľkých presklených plochách.

 

Pár slov k dispozícii a atypickým prvkom v interiéri...

KCA: V dispozícii je dôsledne oddelená nočná a denná časť. Rovnako ako pracovná, resp. hosťovská zóna od rodinnej. Všetky obytné izby a kúpeľňa na prízemí sú vďaka veľkým oknám prepojené so záhradou a to aj v prednej časti pozemku, nakoľko je uličná čiara ďaleko od cesty. V časti orientovanej do záhrady, najmä v obývacej izbe s kuchyňou, je miera presklenia zväčšená a interiér je vizuálne prepojený so sadom a záhradou. Aj preto sme kládli dôraz na celkový súlad interiéru a exteriéru. V exteriéri je v primeranej miere použitá obkladová tehla, v interiéri sa stalo nosným prvkom drevo s rôznymi štruktúrami. 

 

Obľúbený moment, architektonický detail…

KCA: Jedným z našich obľúbených momentov na tomto dome sú okná a celková jemná farebnosť. Zvolili sme netradičnú farbu rámov, ktorá sa však veľmi dobre “znáša” so zvyšnými materiálmi v interiéri (drevo) aj v exteriéri (tehlový obklad). Nezvýrazňuje tak zbytočne otvory, ani hranicu medzi vonkajškom a vnútorným priestorom. Pri pohľade z exteriéru tvoria okná spolu s tehlovou fasádou zjednotený celok. Bledosivá strecha, ktorá korešponduje so žalúziami, dopĺňa jemné odtiene fasády a vyvažuje použitie farieb.

Foto: Ondrej Stanek
Foto: Ondrej Stanek
Pôdorys prízemia
Pôdorys prízemiaAutor: KCA
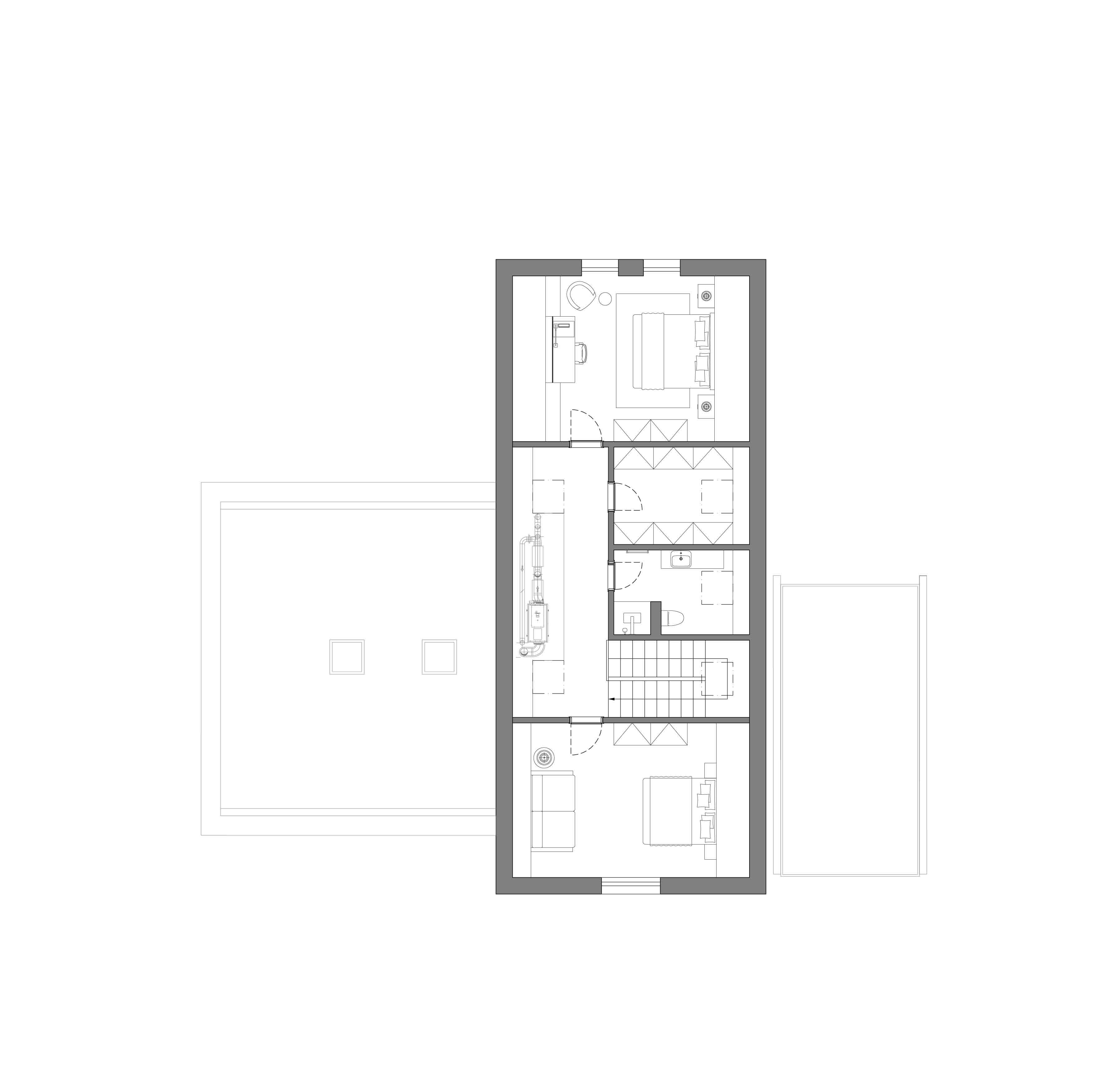
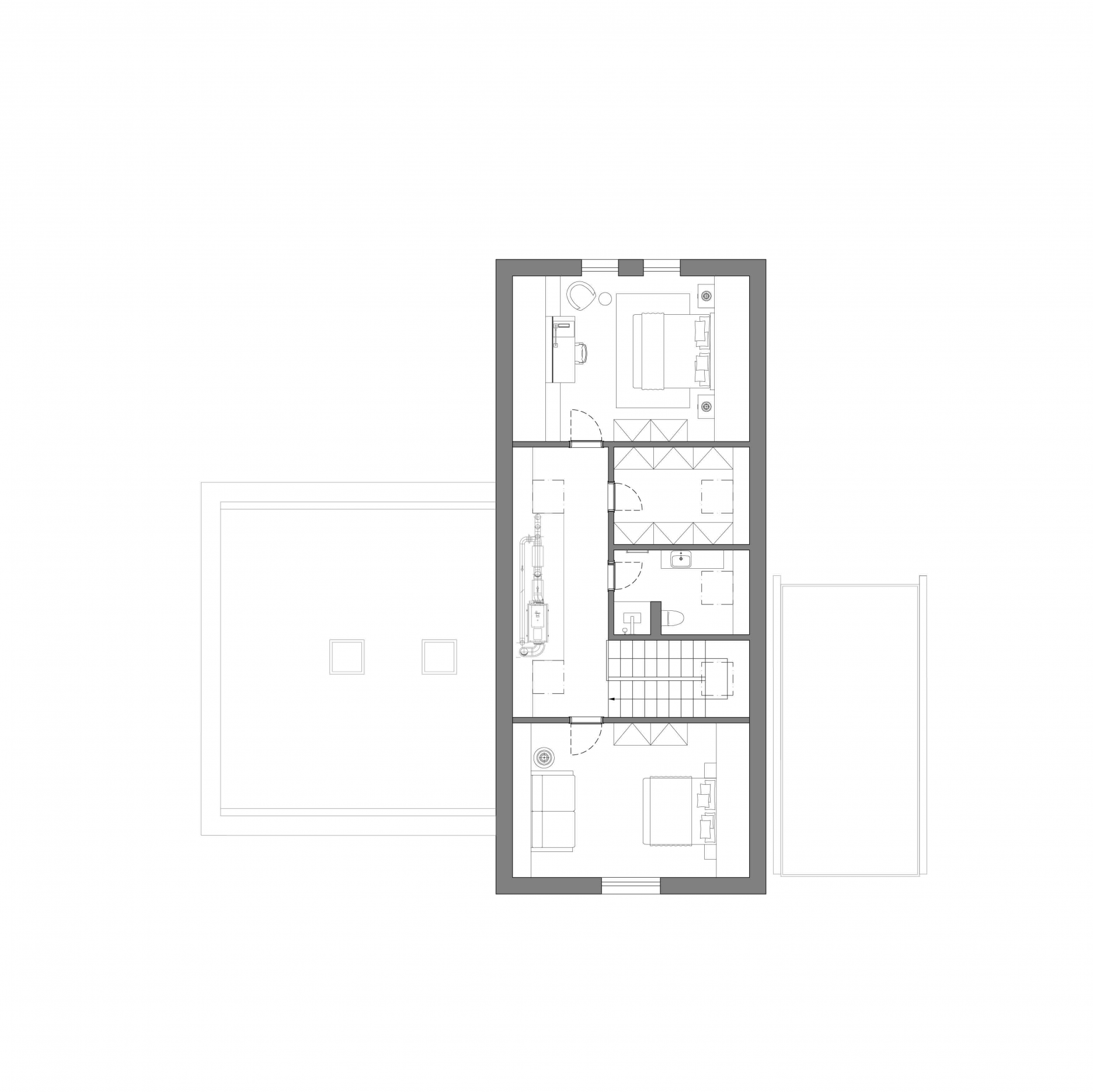
Pôdorys poschodia
Pôdorys poschodiaAutor: KCA
Rez
RezAutor: KCA
Rez
RezAutor: KCA
Rez
RezAutor: KCA
Foto: Ondrej Stanek
Foto: Ondrej Stanek
Foto: Ondrej Stanek
Foto: Ondrej Stanek
Foto: Ondrej Stanek
Foto: Ondrej Stanek

Podklady: KCA
Foto: Ondrej Stanek

Použité materiály a riešenia:

Šikmá strecha:
pálená škridla Tondach
systémová skladba ISOVER PROFI

Plochá strecha:
využitie dosiek ISOVER Puren FD-L 160 mm umožnilo redukovať výšku omietnutej konštrukcie nad oknami

Skladba podlahy nad terénom:
využíva ISOVER EPS grey s hrúbkou 2 x 100 mm

Poloha diela

Ing. arch. Peter Kucharovič ml.
Ing. arch. Katarína Kucharovič Cambelová
Vložené
27. október 2022
0
6910
Hlavný obsahHlavný obsah
Čakajte prosím