Rad interiérových dverí DIVA DOOR od spoločnosti J.A.P. ponúka čistý dizajn a variabilné riešenia pre súčasné interiéry.
REHAU Window Solutions na veľtrhu Fensterbau Frontale 2026
Sortiment Slim Line zahŕňa pestrý výber dekorov a textúr.
Európska značka okien oslavuje jubileum: za 95 rokov sa vyvinula na najväčšiu medzinárodne pôsobiacu okennú značku a inovačného...
Na podujatí sa predstaví až 37 vystavovateľov - popredných dodávateľov stavebných materiálov a inovácií s prezentáciou...
Novotvar v prostredí alpskej obce.
Hansgrohe - prémiová značka kúpeľňových riešení, ponúka nadčasový dizajn, technickú precíznosť a udržateľné inovácie...
Využite špeciálnu akciu Internorm: okná za minuloročné ceny a hliníkový kryt úplne zadarmo. Ponuka je časovo obmedzená!
Sumarizácia najdôležitejších inovácií, ktoré redefinujúcich využitie tohto energetického zdroja.
AMPHIBIA 3000 GRIP 1.3 od spoločnosti ATRO predstavuje modernú hydroizolačnú technológiu, ktorá spája vysokú odolnosť,...
Ambiciózne plány EK narazili na ekonomické možnosti domácností v jednotlivých členských štátoch –...
IDEA DOOR od spoločnosti JAP prináša do interiéru čistý minimalistický vzhľad vďaka bezrámovému riešeniu a precíznej...
Kontinuita riešenia od vonkajšieho obkladu až po kovania a kľučky.
Nástenné nadomietkové armatúry Vitus sú mimoriadne vhodné pre rýchlu a efektívnu...
Okenné profily z kompozitného materiálu RAU-FIPRO X od spoločnosti Rehau sú v porovnaní s tradičnými plastovými profilmi mnohonásobne...

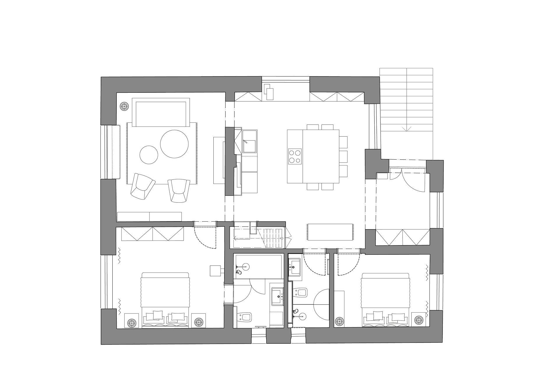
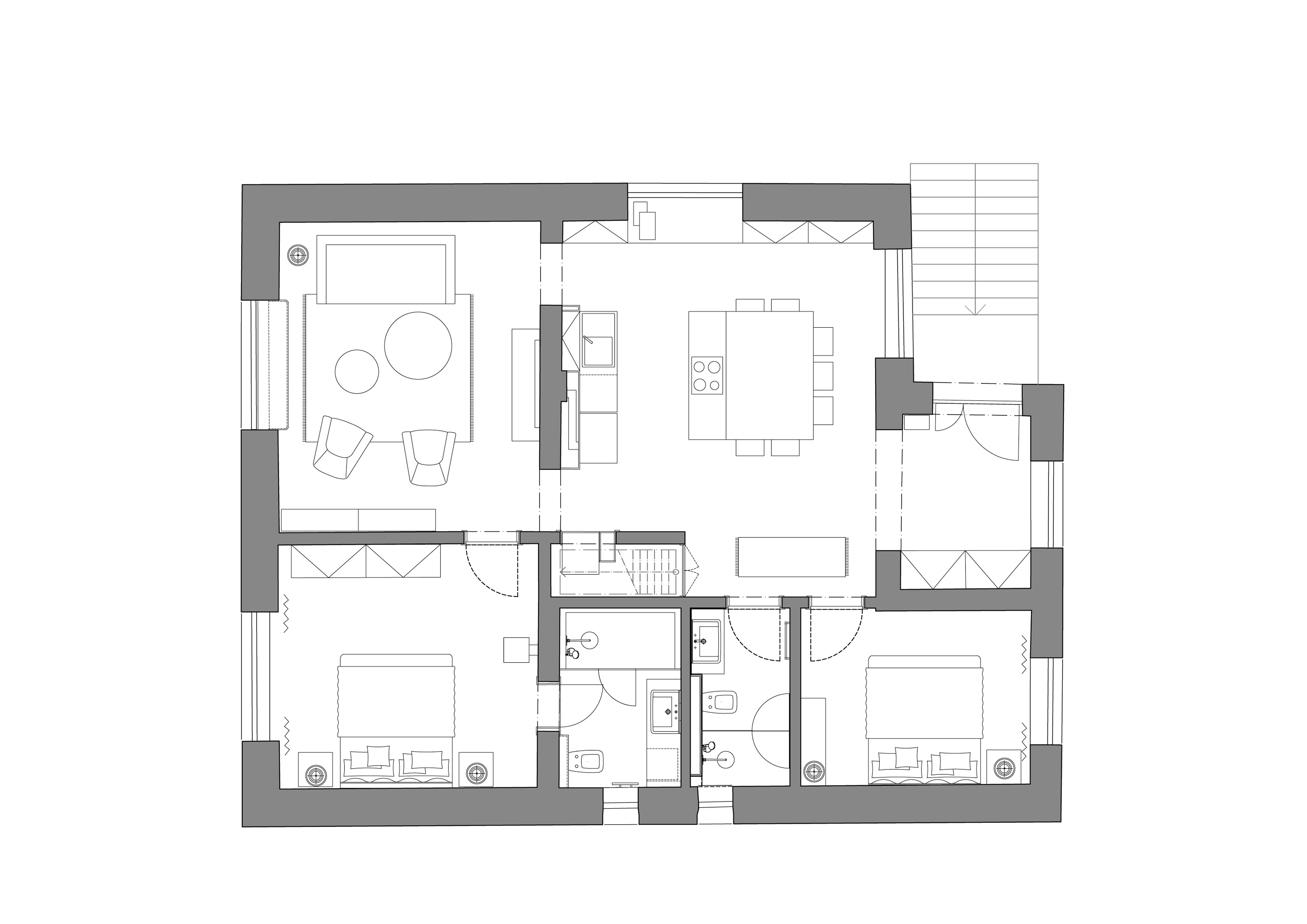
Realizácia z dielne ateliéru KCA studio mení vidiecky dom zo sedemdesiatych rokov na komfortné víkendové bývanie. Autori pritom zachovávajú pôvodnú mierku, atmosféru a charakter domu. Prostredníctvom účelných zásahov otvárajú a presvetľujú pôvodnú dispozíciu a prepájajú priestor so záhradou.
Realizáciu predstavíme prostredníctvom sprievodného textu autorov:
Zámer víkendového a prázdninového domu vznikol z túžby umožniť rodine, a najmä deťom, aspoň sčasti zažiť atmosféru života na dedine, ktorú si pamätáme z prázdnin u starých rodičov. Keďže všetci starí rodičia už žijú v meste, takéto prázdniny sa dnes už nekonajú.
Dom bol pri kúpe v takmer pôvodnom stave, keďže bol postavený začiatkom sedemdesiatych rokov, no jeho nosné konštrukcie boli v dobrej kondícii. Má betónové základy a steny pivnice, stropy zo ŽB dutinových panelov a zdravý krov. V najhoršom stave bola zvetraná strešná krytina a tiež staré, netesné drevené okná a dvere.
Cieľom rekonštrukcie z pohľadu exteriéru nebolo prispôsobiť dom novej idei, ale skôr samostatne vyriešiť viacero menších otázok a problémov. Tie však mali prirodzene zapadnúť do pôvodného ducha stavby. Väčšina konštrukcií domu bola totiž v poriadku a ich nahrádzanie novými nemalo ekonomický zmysel. Navyše dom poskytoval dostatok priestoru pre náš zámer. Menšie a jednoduchšie zásahy si vyžadujú nižšie náklady, a tak bol návrh najmä o dôkladnom zvažovaní a zjednodušovaní každej intervencie.
Zvonku dom prirodzene zapadal do okolitej zástavby podobných domov a chceli sme, aby to tak zostalo. Na typickú ihlanovú strechu sme použili pálenú škridlu Steinbrück v prírodnom vyhotovení. Tento typ krytiny sa stále nachádza na viacerých starých domoch a stavbách v dedine a navyše pekne starne.
Vo vnútorných priestoroch však muselo prísť aj k radikálnejším zmenám, keďže dnešné užívanie domu sa od toho pôvodného výrazne líši. Okrem niekoľkých menších zásahov do nosných stien to znamenalo najmä vybúranie priečok a ich doplnenie na nových pozíciách. Týkalo sa to aj rozvodov sietí, ktoré museli byť vzhľadom na vek stavby kompletne vymenené.
Aj nasledujúci text je preto rozdelený do jednotlivých okruhov tém, ktoré sme počas rekonštrukcie riešili.
Kontakt so záhradou
Najväčším nedostatkom pôvodného pôdorysu 1. NP bola z nášho pohľadu absencia priehľadov zo spoločenských priestorov do záhrady. Tak, ako to na dedine bývalo, záhrada bola hospodárskou časťou pozemku. Aj v čase kúpy na nej ešte stál chliev, prístrešok pre auto, letná kuchyňa so spoločenskou miestnosťou a skladom. Nechýbal vinič, roľa ani latrína.
Obývačka a hlavná spálňa sú preto orientované do ulice, zatiaľ čo kuchyňa bola zo strany záhrady blokovaná špajzou a dodatočne obostavaným, pôvodne exteriérovým vstupným schodiskom. Okno z kuchyne smerovalo do prejazdu a na susedný pozemok. Iba chodba a detská izba mali výhľad do záhrady, no aj ten bol limitovaný spomínanými hospodárskymi stavbami.
Najväčším zásahom, ktorý sme na dome urobili, bolo odstránenie dostavaných objemov schodiska a špajze a doplnenie nového okna z kuchyne smerom do záhrady. Tá už dnes nie je výhradne úžitková. Tento zásah bol z nášho pohľadu nevyhnutný a prínos, ktorý výrazne prevýšil vynaložené náklady.
Schodisko bolo pravdepodobne uzavreté kvôli silným vetrom zo severu, ktoré staré netesné kastlíkové okná nezvládali. Pri dnešných oknách už tento problém nenastáva.
Okná a ich proporcie
Ústrednou témou pre nás boli samotné okenné otvory aj ich výplne. Najmä pri pohľade zvnútra nám pôvodné okná s vysokým parapetom, pod ktorým musel byť v minulosti dostatočne veľký radiátor, neprinášali radosť zo vznikajúcich priestorov. Ich presvetlenie bolo pomerne skromné, výhľad pri sedení obmedzený a ani samotné proporcie otvorov neboli také, aké by sme si želali. Preto sme sa napokon odhodlali k ich zmene.
Šírka okien aj ich poloha približne v strede miestnosti bola z hľadiska interiéru aj exteriéru vyhovujúca. Z technického hľadiska je pri okne najjednoduchšou možnosťou zväčšenia otvoru vybúranie parapetu, prípadne jeho časti. Kompletné vybúranie parapetu by však znamenalo radikálnu zmenu proporcie okna z horizontálnej na vertikálnu, čo by podľa nás značne zmenilo výraz domu. To sa týkalo aj priblíženia spodnej hrany otvoru k rozhraniu sokla pivnice a fasády 1. NP.
Hľadali sme preto správny pomer výšky a šírky pri čo najväčšom zisku svetla. Našli sme ho pri parapete vysokom 450 mm nad podlahou interiéru. Otvory tak získali vyváženú proporciu, no miera zmeny výrazu domu zostala pre nás prijateľná. Navyše je táto výška vhodná aj na sedenie, čo sme neskôr v interiéri využili. Zvonku sme si pomohli zateplením, vďaka ktorému sa optické rozhranie sokla a fasády dalo posunúť nižšie. Pri pohľade zvonka si tak človek ani neuvedomí, že ide o okná so zníženým parapetom.
Na zateplenie sme zároveň preniesli škáru vo výške nadpražia okien, ktorá sa nachádzala aj v pôvodnej brizolitovej omietke.
Pri výplniach okien do ulice sme chceli zachovať horizontálne rozdelenie na tri segmenty, tak ako to bolo aj na pôvodných drevených kastlíkových oknách. Vzhľadom na zväčšenie celkovej výšky okna to však už nefungovalo tak, ako sme si predstavovali. Rozhodli sme sa preto pridať ešte jeden horizontálny priečnik, ktorý síce mení výraz okna, no zároveň ho robí proporčnejším.
Zvolili sme drevené okná s mierne upravenou profiláciou a s izolačným trojsklom. Ako tienenie sme použili medzisklenné žalúzie v izolačnom trojskle. Ide o niečo nákladnejšie riešenie ako pri vonkajších žalúziách, no medzisklenné žalúzie nenarúšajú vonkajší výraz domu a zároveň umožňujú použiť zateplenie hrúbky 150 mm bez rizika vzniku tepelného mosta v mieste inak potrebného žalúziového kastlíka.
Suterén a povala
V suteréne nikdy nebola realizovaná hydroizolácia podlahy a fungoval na princípe celoročného prevetrávania. Jeho svetlá výška je veľmi malá a pod prekladmi nie je podchodný. Aj preto sme sa rozhodli suterén neintegrovať do tepelnoizolačnej schránky a ponechať ho, s drobnými úpravami, v pôvodnom režime. Namiesto nákladného obkopávania domu, injektovania stien pri podlahe a realizácie vodorovnej hydroizolácie sme vložili viac tepelnej izolácie do podlahy 1. NP, čo nám svetlá výška poschodia umožňovala. Sokel domu v úrovni suterénu sme z exteriéru riešili ako odvetraný. Priestor dnes slúži ako dielňa, sklad náradia pre záhradu a menšia časť s aktívnym vetraním bola oddelená ako vínna pivnica.
Povala je do budúcna pripravená na zobytnenie, respektíve na vstavbu detskej izby. Strmšie schodisko je naplánované v priestore špajze, respektíve kumbálu, v ktorého osi bol odstránený jeden celý stropný panel. V tomto mieste je otvor v strope uzavretý menšou drevenou konštrukciou so spúšťacím povalovým schodiskom. V aktuálnej fáze bolo zateplenie uložené na strop 1. NP a v podkroví je zrealizovaná iba príprava ZTI, VZT a elektroinštalácie.
Rekonštrukcia sa teda týkala najmä 1. NP a strechy s prípravou na možné zobytnenie podkrovia. V súčasnosti objekt funguje ako víkendový a prázdninový dom, no v budúcnosti môže byť upravený aj na trvalé bývanie so samostatnými detskými izbami.
Vertikálne prepojenie
Priestor 1. NP bol pôvodne prepojený s povalou a suterénom pomocou vnútorného schodiska pri vstupe do domu. Z hľadiska nového využívania domu nie je prepojenie 1. NP so suterénom “suchou nohou” potrebné, z technického hľadiska dokonca ani žiaduce, a schodisko zároveň zásadne obmedzovalo dispozičné riešenie. Preto bolo zrušené a strop uzavretý. Suterén je prístupný pôvodnou garážovou bránou zo záhrady a prístup na povalu bol presunutý nad špajzu, respektíve kumbál.
Dispozícia
Základné rozmiestnenie izieb zostalo nezmenené, no presunutím schodiska a špajze, ako aj vybúraním priečky, sa kuchyňa prepojila s bývalou, priestorovo štedrou chodbou. Vznikol tak ústredný spoločenský priestor domu, čomu výrazne prospelo aj spomenuté optické prepojenie so záhradou. Pomocou pôvodného dverného otvoru a nového symetrického otvoru sme k nemu pripojili aj obývačku. Spolu s kuchyňou tak pôsobia ako jeden priestor, predelený kuchynskou linkou.
Za cenu mierneho zmenšenia pôvodnej detskej, respektíve hosťovskej izby, sa podarilo do dispozície včleniť dve kúpeľne, hosťovskú a rodinnú. V mieste možného budúceho schodiska vznikla špajza, respektíve kumbál.
Interiér a atmosféra
V interiéri sme sa snažili zachovať niečo z pôvodnej atmosféry domu, no zároveň ho obliecť do modernejšieho šatu.
Najvýraznejším prvkom interiéru je jedálenský stôl, ktorý sme integrovali s kuchynským ostrovom a vytvorili tak variabilnú pracovnú plochu v strede priestoru. Používa sa na stolovanie, ale aj na prácu v stoji pri zaváraní, varení džemu alebo pri iných aktivitách so širšou rodinou či priateľmi. Navyše je známe, že každý žúr sa napokon presunie do kuchyne, takže väčšie barové sedenie tu často nájde svoje využitie.
Napriek tomu, že poloha komína umožňovala umiestniť krb do obývačky, rozhodli sme sa element ohňa využiť práve v kuchyni. Sporák na drevo, ktorý poskytuje pohľad na plamene, vydáva teplo a zároveň umožňuje varenie aj pečenie, výrazne posilňuje dedinskú atmosféru domu.
Vďaka novej výške parapetov a výklenku, ktorý pri okne vznikol, sme do kuchyne umiestnili aj lavicu, respektíve váľandu, ktorá sa stala jedným z najobľúbenejších miest, a to nielen pre deti. Umožňuje im váľať sa a kresliť si blízko pri rodičoch, ktorí varia alebo sedia s návštevou pri stole.
Na podlahe bola pôvodne použitá keramická dlažba z malých štvorcových formátov v tehlovej a pieskovej farbe. Aj my sme sa rozhodli použiť dlažbu menších formátov, no na červenožltú kombináciu nám už nezostala odvaha. V spálňach sú na podlahe teplejšie parkety.
V dome zostali typické stoličky a kreslá, ktoré sme nechali prečalúniť alebo zrenovovať. Nevyhadzovali sme ani staré riady, porcelán, ponk a zverák v pivnici či niektoré poľovnícke obrazy. Všetko toto sa v dome naďalej používa a dotvára atmosféru, ktorú si z prázdnin u starých rodičov pamätáme.
Terasa a záhrada
Keďže je dom podpivničený a 1. NP sa nachádza pomerne vysoko nad okolitým terénom, témou bolo aj funkčné, nielen optické prepojenie so záhradou. To však vyriešili už pôvodní majitelia. Na záhrade totiž postavili stavbu s rozmermi približne 5 × 10 m, v ktorej bola letná kuchyňa a takzvaný poľovnícky salón. Hrávali sa tam karty, usporadúvali oslavy a táto stavba slúžila ako zázemie pre život v záhrade počas letnej sezóny. Rozhodli sme sa túto dobrú prax nasledovať. Záhradný pavilón, ako sme si stavbu pomenovali, v súčasnosti funguje v pôvodnom režime a jeho úprava do esteticky kultivovanejšej podoby je naplánovaná ako ďalšia fáza rekonštrukcie.
Technológie
V dome je inštalovaný jednoduchý a ekonomický fotovoltický systém bez batérie a meniča. Panely sú umiestnené na streche záhradného pavilónu a riadiaca jednotka z nich rozdeľuje energiu do dvoch spotrebičov, ohrievača teplej vody a klimatizácie. Oba spotrebiče v prípade nedostatku energie z panelov vedia využiť aj elektrinu zo siete. Systém nie je nijako prepojený s verejnou sieťou a slúži iba na znižovanie vlastnej spotreby.
Na temperovanie a vykurovanie sa primárne používa práve klimatizácia napojená na fotovoltický systém. Dokáže rýchlo zohriať vzduch v prípade náhleho rozhodnutia dom navštíviť. Aj bez panelov je pri výrobe tepla efektívnejšia ako elektrické kúrenie, keďže sa v obci nenachádza plyn. Napriek tomu, že je na poschodí iba jedna klimatizačná jednotka, pričom príprava na ďalšiu je zrealizovaná v podkroví, na temperovanie objektu bohato stačí a počas väčšiny sezóny postačuje aj na kompletné vykurovanie. V lete, keď sú zisky z FV panelov výrazne vyššie, sa dajú efektívne využiť aj na chladenie, čo je skutočnou devízou tohto systému.
Okrem klimatizácie je však v dome inštalované aj elektrické podlahové vykurovanie. Slúži na zabezpečenie rovnomernej tepelnej pohody v odľahlejších častiach interiéru a tiež v období naozaj chladného počasia, keď jedna klimatizačná jednotka nestačí. Pomáha aj s úpravou teploty podlahy a s elimináciou studeného pocitu z nej. Podlahové kúrenie sa však používa sekundárne.
V neposlednom rade sa do vykurovania zapája aj srdce domu, sporák na drevo. Má výborný výkon a po určitom čase dokáže aj bez teplovzdušných rozvodov, pri otvorených dverách, zohriať celý priestor 1. NP. Navyše sa teplo odovzdávané do priestoru dá zároveň využiť na varenie či pečenie, takže nie je potrebné zapínať ďalšie elektrické spotrebiče. Keďže boli v dome dva komíny, malé krbové kachle sú inštalované aj v spálni rodičov. Dom sa tak dá pohodlne vykúriť drevom aj v prípade výpadku elektrickej energie.
Podklady: KCA studio