Novotvar v prostredí alpskej obce.
Hansgrohe - prémiová značka kúpeľňových riešení, ponúka nadčasový dizajn, technickú precíznosť a udržateľné inovácie...
Využite špeciálnu akciu Internorm: okná za minuloročné ceny a hliníkový kryt úplne zadarmo. Ponuka je časovo obmedzená!
Na podujatí sa predstaví až 37 vystavovateľov - popredných dodávateľov stavebných materiálov a inovácií s prezentáciou...
Sumarizácia najdôležitejších inovácií, ktoré redefinujúcich využitie tohto energetického zdroja.
AMPHIBIA 3000 GRIP 1.3 od spoločnosti ATRO predstavuje modernú hydroizolačnú technológiu, ktorá spája vysokú odolnosť,...
Ambiciózne plány EK narazili na ekonomické možnosti domácností v jednotlivých členských štátoch –...
IDEA DOOR od spoločnosti JAP prináša do interiéru čistý minimalistický vzhľad vďaka bezrámovému riešeniu a precíznej...
Kontinuita riešenia od vonkajšieho obkladu až po kovania a kľučky.
Nástenné nadomietkové armatúry Vitus sú mimoriadne vhodné pre rýchlu a efektívnu...
Okenné profily z kompozitného materiálu RAU-FIPRO X od spoločnosti Rehau sú v porovnaní s tradičnými plastovými profilmi mnohonásobne...
Najnovší sortiment stolov pre zariadenie interiérov...
Spojenie moderného dizajnu, funkčnosti a svetla do harmonického architektonického prvku.
Kancelárska budova Baumit v slovinskom Trzine prešla premenou na moderné a udržateľné pracovisko. Architekti kládli dôraz...
Mottom šiesteho ročníku on-line konferencie odborníkov Xella Dialóg je Efektívny návrh budov 2025+: zmeny a riešenia

Realizácia z dielne ateliéru KCA studio pracuje s typickou figúrou domu so sedlovou strechou. Vynechanie stropu medzi obytnou zónou a krovom vytvorilo voľný rámec pre hru s usporiadaním priestorových celkov. Dôležitou súčasťou je prepojenie interiéru so záhradou prostredníctvom rozsiahlej plochy posuvného presklenia. Výrazným motívom stvárnenia priestoru je konštrukcia odhaleného krovu a jeho technické detaily.
Realizáciu predstavíme prostredníctvom sprievodného textu autorov:
Zadaním investora – manželského páru, bolo vytvoriť na menšom, rovinatom pozemku blízko Bratislavy záhradnú chatu/ateliér s možnosťou príležitostného prespania.
Vzhľadom na malú vzdialenosť medzi ich trvalým bydliskom v Bratislave a Rusovcami, kde sa ateliér nachádza, bol dôraz kladený najmä na denné užívanie objektu a jeho prepojenie so záhradou.
Manželia mali pomerne jasnú predstavu o domčeku archetypálneho tvaru so sedlovou strechou a s možnosťou otvorenia veľkej sklenenej plochy do exteriéru. Zároveň chceli umiestniť objekt na pozemku tak, aby čo najmenej odkrojil zo záhrady, ktorá je jedným z dôvodov navštevovania pozemku.
Nakoľko prežili časť života na severe Európy, vybudovali si vzťah k drevu a minimalistickému dizajnu. Doplnením ich predstáv bolo aj vybudovanie sauny či použitie dreva v interiéri aj exteriéri, avšak iba v miere, ktorá príliš nekontrastuje s miestnymi staviteľskými zvyklosťami.
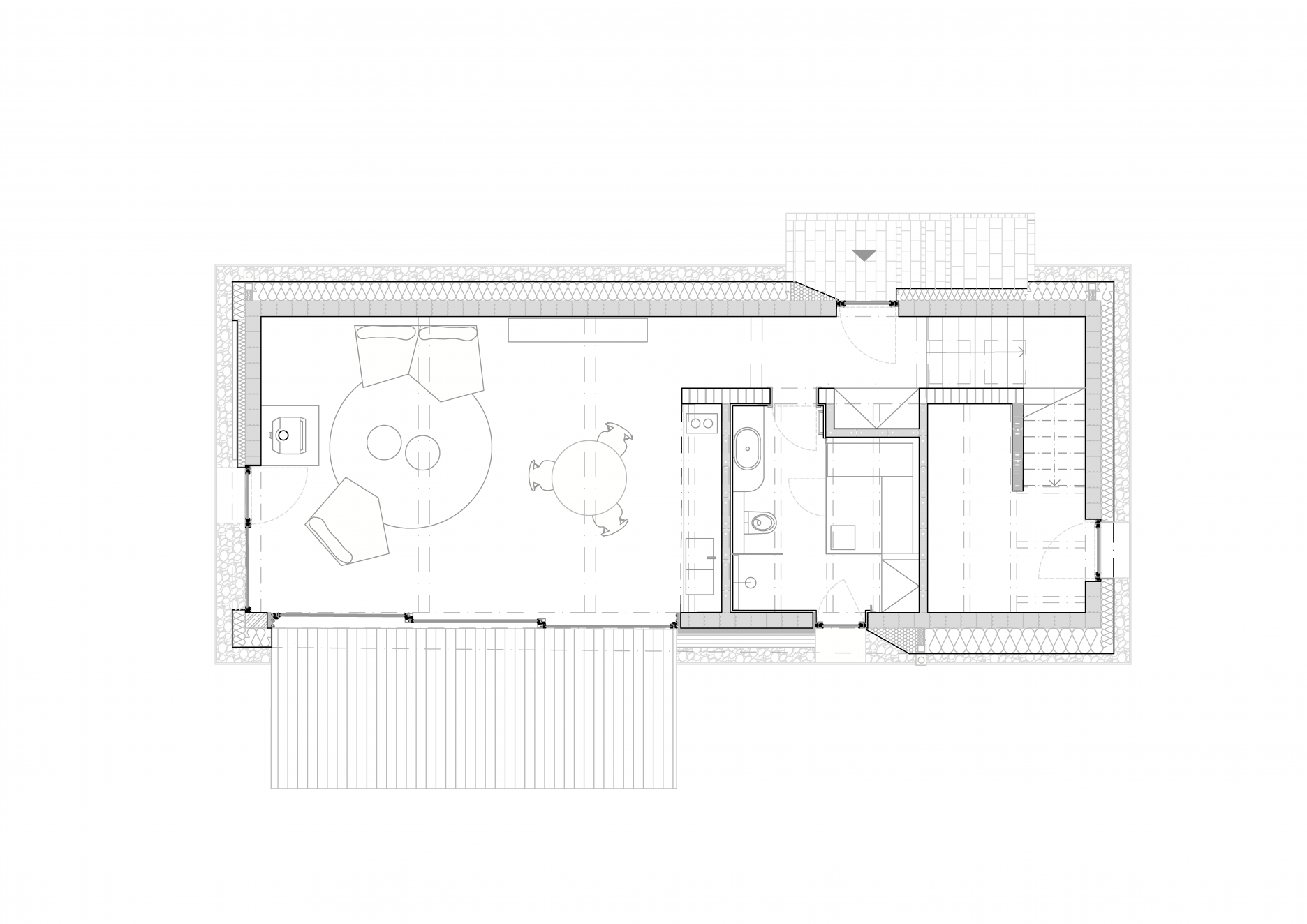
Dispozične je chata vo vnútri jedným spojeným priestorom, z ktorého je stavebne oddelená iba kúpeľňa so saunou a sklad. Vstavba týchto dvoch malých objemov na úrovni prízemia zároveň vytvára podlahu povaly, ktorá slúži na príležitostné prespávanie. Povala je však tiež súčasťou hlavného priestoru a oddelená je iba zábradlím. Nad hlavným obytným priestorom s kuchyňou a obývačkou je voľný priehľad do krovu.
Jednoduchý tvar požadovaný investormi, jednoduchý vnútorný program, ako aj komorné rozmery domu nám umožnili detailne sa zaoberať samotnými konštrukciami, ich proporciami, stykmi a detailmi.
Prízemie tvorí murovaná stavba, vychádzajúca z výrobných rozmerov tehly. Hlavný obytný priestor je so záhradou prepojený dvoma veľkými otvormi. Najväčší otvor je vyplnený trojicou posuvno-zdvižných okien (štvorcov), ktoré sa dajú za seba zasunúť a umožňujú tak veľkou plochou otvoriť dom do záhrady. Pri plnom otvorení vzniká dojem podobný sedeniu v záhradnom altánku, čo bolo taktiež jedným zo želaní investorov. Menší otvor v štítovom múre je rozdelený na fixnú časť a klasické balkónové dvere, ktoré umožňujú pohodlnú prevádzku počas zimy či klimatizácie.
Na vrstve tvorenej murovanými stenami je uložený ŽB veniec, ktorý plní zároveň funkciu prekladov nad otvormi. Jeho dimenzia je daná minimálnym možným prierezom nad najväčším otvorom s rozponom 6,5 m. Dimenzie a výšky stavebných prvkov, a najmä strešnej konštrukcie, boli jednou z dôležitých tém projektu, kde sme sa snažili o zachovanie pekných proporcií malého jednopodlažného archetypálneho tvaru z exteriéru pri optimálnom využití výšky vo vnútri objektu. Dôležitou rovinou návrhu je tiež zachovanie jednoduchosti a jasnosti statického riešenia, ktoré je odprezentované práve v interiéri, nakoľko zvonku je to pri požiadavkách na teplotechniku komplikované.
Konštrukcia krovu je priznaná vďaka použitiu nadkrokvovej izolácie a výrazne ovplyvňuje charakter interiéru. Základ tvoria krokvy v pravidelnom rytme, spriahnuté ťahadlami, a štyri väzné trámy. Trámy staticky plnia funkciu ťahadla, no v priestore povaly preberajú aj funkciu konštrukcie postele. Pole medzi dvoma trámami prechádzajúcimi povalou je zaklopené doskami, ktoré tvoria pódium pre matrace. Priestor pod doskami a vedľa matracov je využitý ako odkladací. Nad obývačkou a jedálňou sú na trámoch zavesené svietidlá.
Spoje drevených prvkov navzájom, ale aj spoje dreva s betónom, sú tvorené typovými tesárskymi kovaniami, ktoré pri štandardnom použití nebývajú priznané. V projekte chaty v Rusovciach sú povrchovo upravené sivou farbou a tvoria súčasť interiéru. Drevené klieštiny sú nahradené typovými ťahadlami používanými predovšetkým v oceľových konštrukciách. Jediné atypické tesárske kovanie v projekte je použité pri napojení trámov na pomúrnicu.
Strešnú krytinu tvorí hliníkový strešný systém PREFALZ. Odvodnenie strechy je riešené nadrímsovým žľabom a zvodmi ukrytými vo fasáde, čo dodáva menšej stavbe eleganciu.
Veľmi dôležitým prvkom fasády je tiež tienenie okenných otvorov, ktoré zabezpečujú posuvné panely z cédrového dreva v hliníkových rámoch. Ich integrácia do fasády a proporcie úzko súvisia s polohou, proporciami či detailmi okien a miestami, kam je možné panely zasunúť. Riešeniu týchto detailov bolo potrebné venovať veľa pozornosti od kreslenia projektu, cez realizáciu hrubej stavby až po objednanie a montáž samotných prvkov.
Fasádu dotvára kreatívna STO lineárna omietka, ktorá je použitá iba na menších plochách, napríklad vo výklenkoch pre tieniace panely, ale aj okolo vstupu do domu. Jej hravosť, ktorá spočíva v priznaní nedokonalých ťahov ľudskej ruky, potom pekne vyniká na pozadí veľmi presne riešených detailov a plôch domu.
Objekt je vykurovaný a chladený iba klimatizáciou s jednou vonkajšou a dvoma vnútornými jednotkami, ktoré vedia rýchlo ohriať vnútorný vzduch, ak sa majitelia rozhodnú v zime pre návštevu chaty. Vetranie je zabezpečené pomocou dvojice automaticky riadených strešných okien so snímaním vnútorných a vonkajších podmienok.
Použité materiály a riešenia:
Strešná krytina od spoločnosti Prefa Slovensko: Systém Prefalz svetlošedý P.10 hladký
Posuvné tienenie od spoločnosti Renson
Podklady: KCA studio
Fotografie: Foto: Ondrej Stanek