Advertorial

Minimalistické dvere IDEA – technická precíznosť a čistota prevedenia

IDEA DOOR od spoločnosti JAP prináša do interiéru čistý minimalistický vzhľad vďaka bezrámovému riešeniu a precíznej...

Schell Vitus – osvedčené riešenie pre sprchy a umývadlá vo verejnom sektore s viac ako desaťročnou tradíciou

Nástenné nadomietkové armatúry Vitus sú mimoriadne vhodné pre rýchlu a efektívnu...

Kompozitné okná predstavujú súčasnosť a budúcnosť

Okenné profily z kompozitného materiálu RAU-FIPRO X od spoločnosti Rehau sú v porovnaní s tradičnými plastovými profilmi mnohonásobne...

Myotis - stoly 2025

Najnovší sortiment stolov pre zariadenie interiérov...

Priemyselné sklenené priečky Dorsis Digero: svetelné rozhranie pre moderné interiéry

Spojenie moderného dizajnu, funkčnosti a svetla do harmonického architektonického prvku.

Význam prirodzeného svetla pre moderné a flexibilné pracovné prostredie

Kancelárska budova Baumit v slovinskom Trzine prešla premenou na moderné a udržateľné pracovisko. Architekti kládli dôraz...

Konferencia Xella Dialóg predstaví novinky a trendy v stavebníctve

Mottom šiesteho ročníku on-line konferencie odborníkov Xella Dialóg je Efektívny návrh budov 2025+: zmeny a riešenia

Murovací robot WLTR stavia svoj prvý dom na Slovensku

Robot WLTR predstavuje moderný prístup k murovaným konštrukciám. Vďaka automatizácii dokáže rýchlo, presne a bezpečne realizovať...

Nová éra bezpečnosti s I-tec Secure od Internorm

Okrem bezpečnosti majú okná aj elegantný vzhľad, pretože nie sú viditeľné žiadne uzamykacie časti kovania.

Skryté zárubne JAP – intenzívny zážitok z bývania

Dvere MASTER v skrytej zárubni AKTIVE je možné vyrobiť až do výšky 3 700 mm

Tienenie namiesto klimatizácie

Internorm stavia na energetickú efektívnosť a inteligentné tieniace riešenia.

BigMat International Architecture Award 2025 - vybrané diela

Slovensko vo výbere zastupuje šesť realizácií.

Milník udržateľnej výroby okien: Internorm zavádza Low-Carbon-Glas iplus

Spoločnosť Internorm odteraz stavia na novej variante tepelnoizolačného skla od AGC, ktorá v produkcii ročne ušetrí 10...

Výsledky 20. ročníka medzinárodnej študentskej súťaže Saint-Gobain Architecture Student Contest 2025

Jubilejný 20. ročník prestížnej medzinárodnej súťaže pre študentov architektúry priniesol...

Dvere MASTER - pre interiéry navrhnuté s rozumom aj vášňou!

Otočné a posuvné dvere MASTER od podlahy až po strop, ponúkajú mimoriadnu variabilitu výšky, materiálu a zladenia so skrytými...

Modernizácia tradičného rodinného domu, Slovenská Ľupča

Návrh modernizácie, ktorá sa nesie v duchu "menej je viac". Hlavnou ideou návrhu je snaha o re-organizáciu dispozície s minimálnymi zásahmi do existujúcej substancie a zlepšenie vnútornej klímy zefektívnením fasádnych prvkov ako je napr. zväčšenie transparentných konštrukcií.
Diela
Roman Ruhig08.12.2021
4600+2
Modernizácia tradičného rodinného domu, Slovenská Ľupča
Ateliér: ER AtelierAutori: Ing. arch. Ing. Roman Ruhig, PhD., Ing. arch. Ing. Ema Ruhigová (Kiabová), PhD.Investor: Kristína Priečková, Martin PriečkoNávrh: 2021 - 2021Adresa: Námestie SNP 39/15, Slovenská Ľupča, SlovenskoPublikované: 8. december 2021
Širšie vzťahy
Širšie vzťahy

Urbanistické začlenenie stavby do územia

Stavba sa nachádza v radovej zástavbe rodinných domov v katastrálnom území Slovenská Ľupča. Predmetný objekt je situovaný na ulici SNP, kde je hlavný vchod na pozemok umiestnený priamo na tejto ulici. Budova je napojená na hlavnú komunikáciu z prednej strany objektu. Modernizácia predmetného objektu rešpektuje stavebnú čiaru, ktorá je daná okolitou zástavbou a zo strany ulice fasáda ostáva v pôvodnej línii zástavby rodinných domov. V okolí sa nachádzajú jednopodlažné objekty s podkrovím, prípadne so suterénom. Tradičný architektonický štýl fasád susedných objektov bol postupom času pretvorený na modernejší dizajn s väčšími oknami. Brány na susedných objektoch a na riešenej budove sú zachované v pôvodnom mieste a ich proporcia a dizajn sú taktiež v pôvodnom prevedení s menšími konštrukčnými a farebnými úpravami. Strechy v okolí sú riešené ako šikmé, sedlové, ktorých hrebeň sa väčšinou nachádza  v rôznej výške. Šikmá strecha ostáva aj v navrhovanej modernizácii rodinného domu, bez navýšenia jej objemu a siluety. Predmetný objekt je dvojpodlažný s čiastočne zapusteným suterénom. Pozemok o ploche 376 m2 má mierny pozdĺžny sklon smerom od ulice do záhrady. Na pozemku sa tu nachádza pár stromov, ktoré budú zachované. Veľká časť pozemku je v súčasnosti zatrávnená a čiastočne doplnená o spevnenú plochu. Projekt uvažuje s revitalizáciou existujúcich záhrad na pozemku. Objekt je okrem juhovýchodnej strany umiestnený na hraniciach pozemku. Objem, ako aj zastavaná plocha ostávajú v podobných bilanciách. Zmena nastane iba v dispozícii domu a v rozšírení otvorových konštrukcií vo fasáde.

Situácia
Situácia

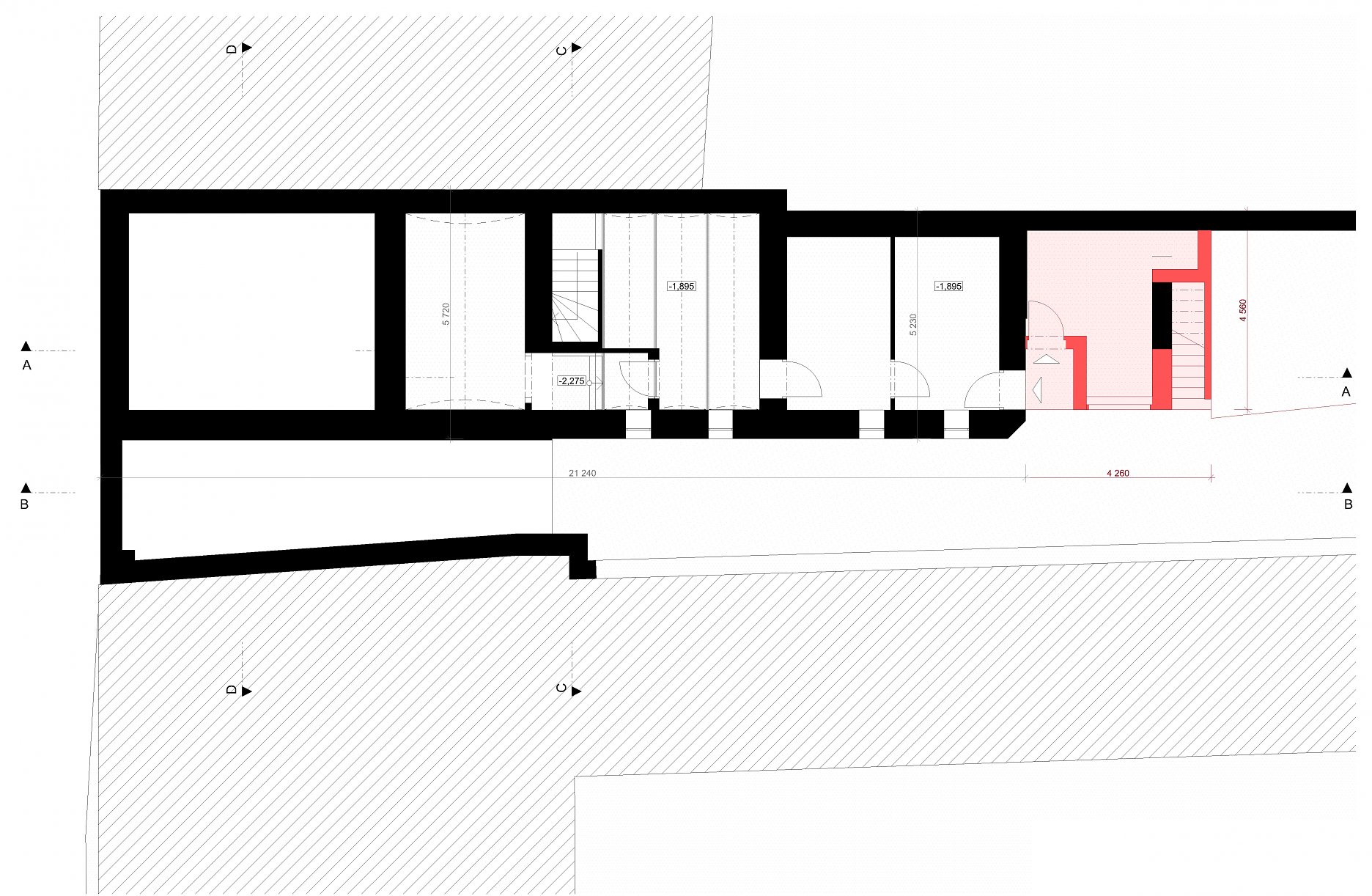
Suterénna časť pri záhrade (tvoriaca terasu domu) je v havarijnom stave. Predmetná časť bude odstránená a nahradená novou substanciou. K novej prístavbe v úrovni suterénu sú navrhnuté zo strany záhrady aj nové terénne úpravy. Vďaka týmto úpravám je zabezpečený plynulý prechod z terasy do záhrady bez požitia schodiska. Z bočnej strany násypu je navrhnuté exteriérové schodisko, ktoré zabezpečuje plynulejší prechod z existujúceho terénu na terasu, ako je tomu v skutkovom stave. K schodisku navrhujeme prihrnúť zeminu, ktorá bude zatrávnená a bude tvoriť plynulý prechod z terasy do záhrady. V zimnom období môže zvýšený terén slúžiť na sánkovanie pre deti

Suterén - odstránené konštrukcie
Suterén - odstránené konštrukcie
Suterén - nové konštrukcie
Suterén - nové konštrukcie

Dispozičné riešenie

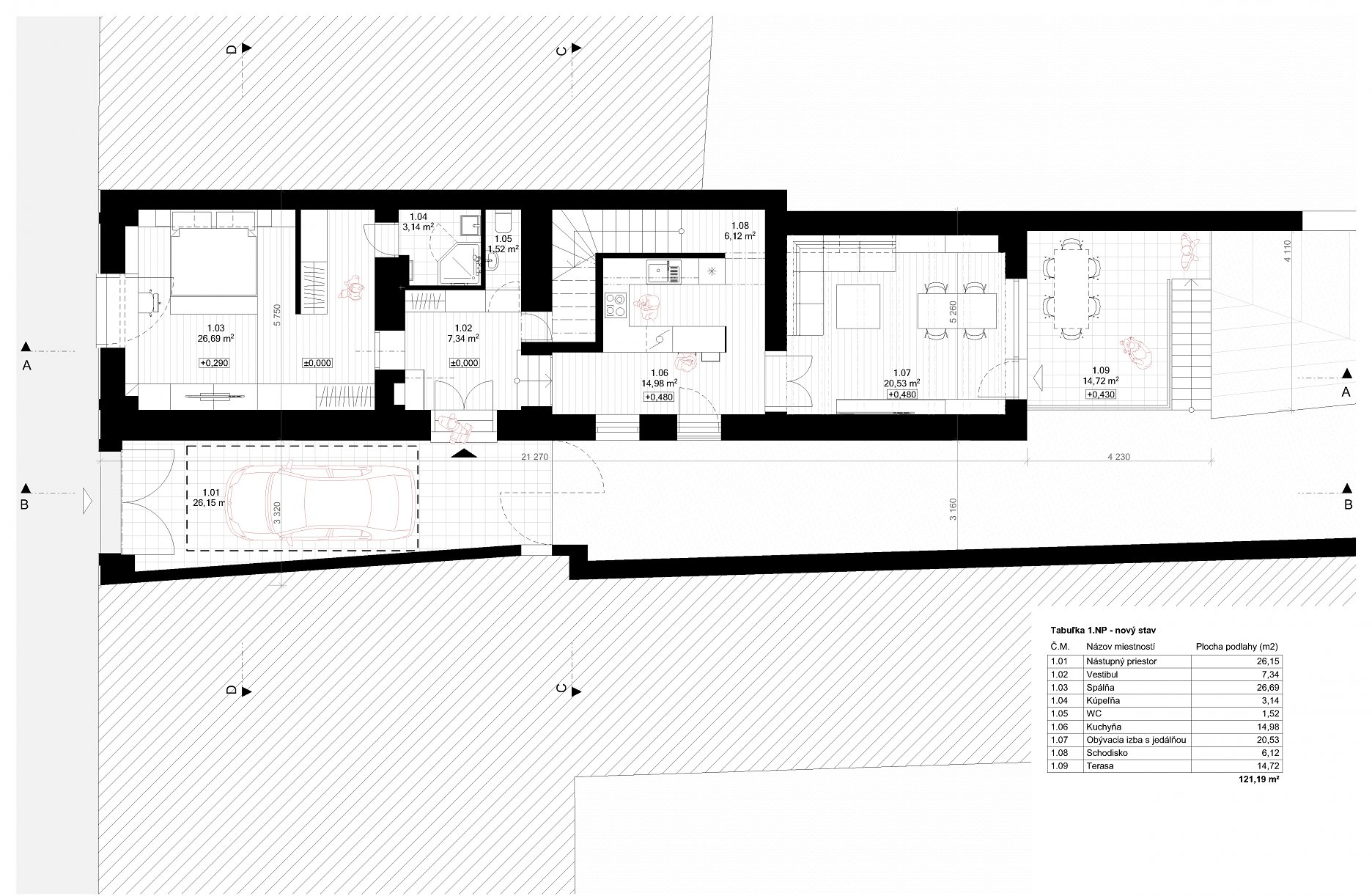
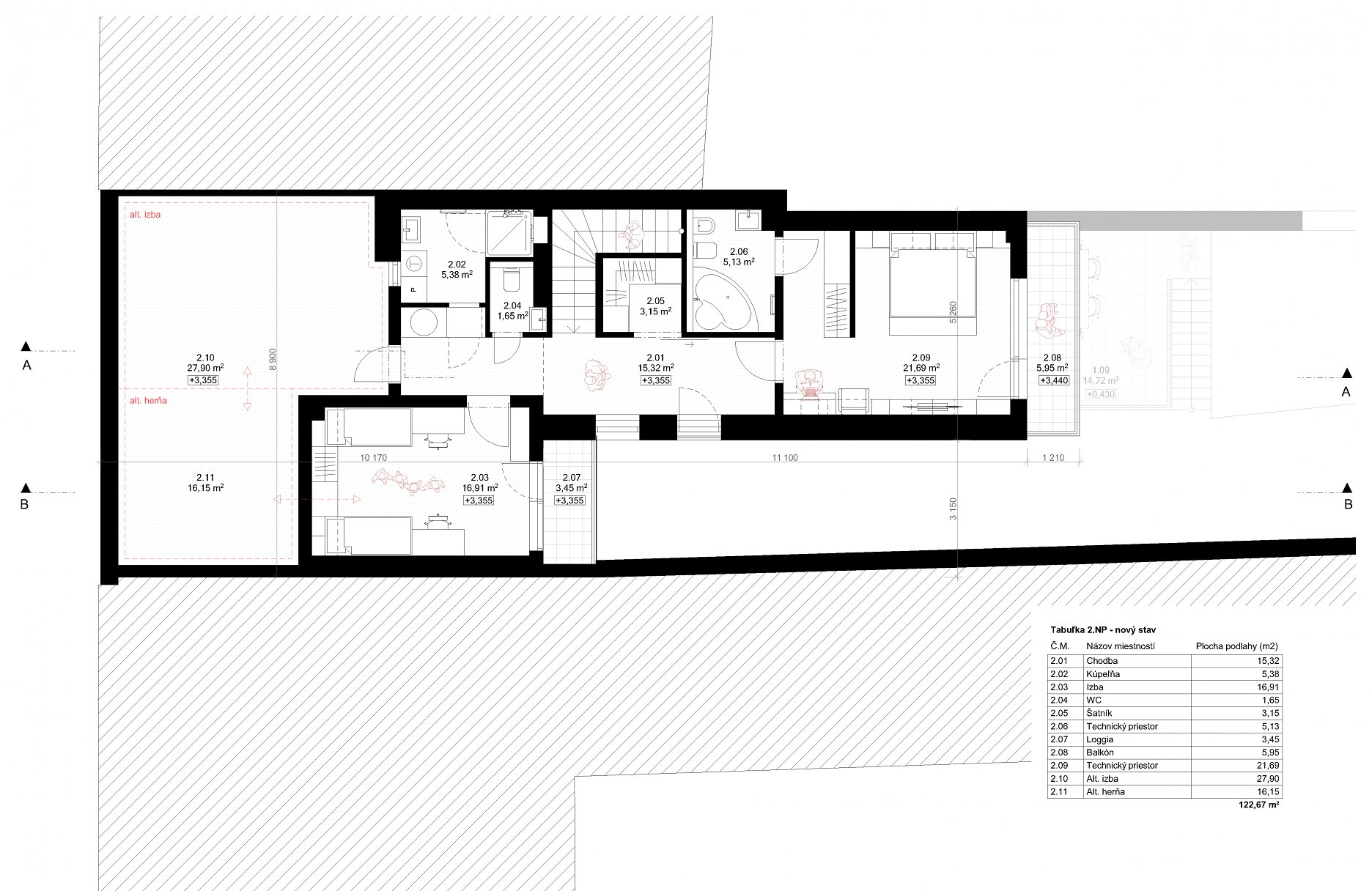
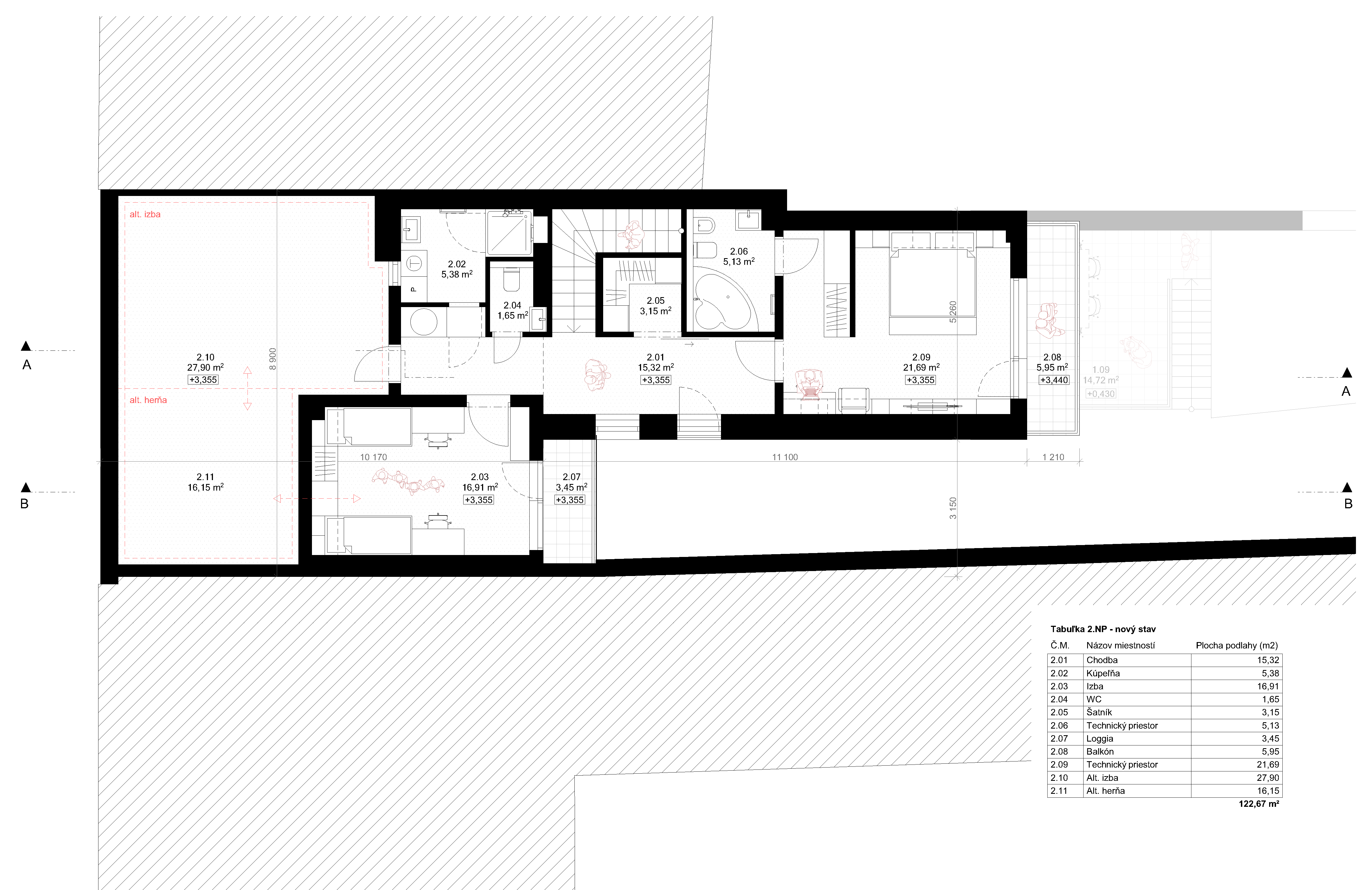
Hlavnou ideou dispozičného návrhu je eliminovať priechodné izby a situovať spoločenskú zónu smerom k záhrade, vďaka čomu sa zachová oddelenie súkromnej zóny od spoločenskej zóny. V súčasnosti sú v objekte 3 izby (spálňa, spálňa, detská izba), 1 obývacia izba s kuchyňou, 2 kúpeľne, 1 WC a 2 priechodné izby. V novom návrhu sa uvažuje s 3 izbami (spálňa, detská izba, hosťovská izba), obývacou izbou s jedálňou, samostatnou kuchyňou, 3 kúpeľňami, 2 toaletami a šatníkom. Nástupný priestor a zádverie na 1. nadzemnom podlaží ostávajú v pôvodnom stave. Obývacia izba s kuchyňou je nahradená hosťovskou izbou s vlastnou kúpeľňou. V zádverí ostáva pohotovostné WC. Priechodná izba obsahuje pohodlné schodisko (jednoramenné, krivočiare, jeden krát zalomené) a kuchyňu, cez ktorú sa dostávame do obývacej izby s jedálňou. Obývacia izba je priamo napojená cez novú terasu a schodisko do záhrady. Cez nové schodisko sa na druhé nadzemné podlažie dostávame do väčšieho chodbového priestoru. Poloha pôvodnej kúpeľne ostáva, avšak sa rozdelí na samostatné WC a kúpeľňu. V rámci chodby, pri kúpeľni je navrhnutá skriňa s možnosťou umiestnenia technického vybavenia (napr. kotol). Spálňa a detská izba ostávajú v pôvodnej polohe. Do priechodnej izby je navrhnuté spomenuté schodisko, šatník a kúpeľňa, ktorá je prístupná iba zo spálne. Nevyužité podkrovie je alternatívne navrhnuté ako ďalšia detská izba s herňou. Do herne by mohli mať prístup obidve detské izby.V

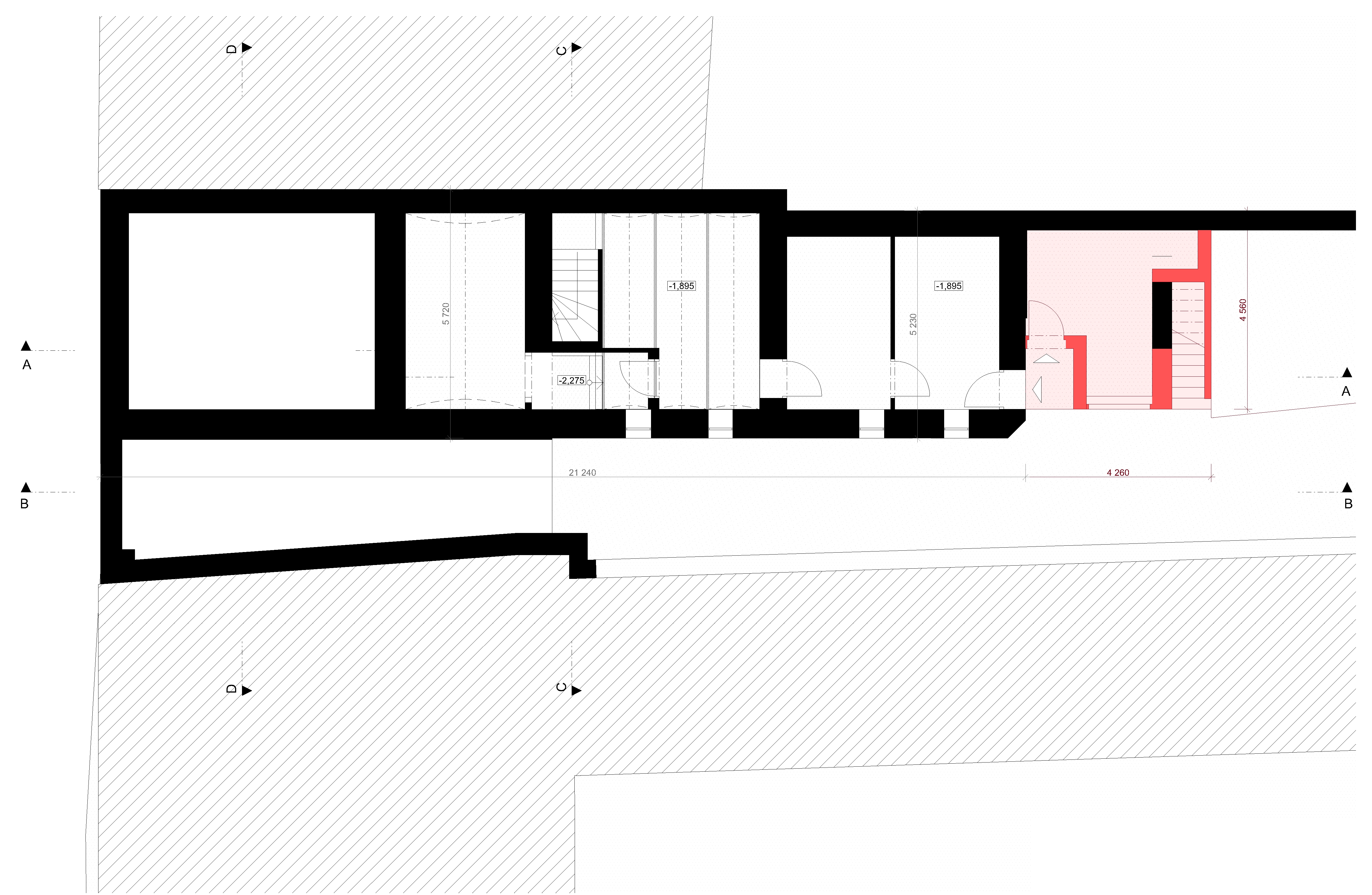
1.NP - odstránené konštrukcie
1.NP - odstránené konštrukcie
1.NP - nové konštrukcie
1.NP - nové konštrukcie
1.NP - nový stav
1.NP - nový stav
2.NP - odstránené konštrukcie
2.NP - odstránené konštrukcie
2.NP - nové konštrukcie
2.NP - nové konštrukcie
2.NP - nový stav
2.NP - nový stav

Konštrukčné riešenie

Zvislé nosné konštrukcie sú vo veľkej miere zachované. Vstupovať sa do nich bude iba pri okenných konštrukciách, kde sa budú odstraňovať parapety z dôvodu zväčšenia týchto konštrukcií. Jeden otvor sa bude realizovať do nosnej steny z potreby nových dverí, ktoré prepoja hosťovskú izbu a kúpeľňu na 1.NP. Trámové stropy odporúčame v interiéri priznať v plnej miere. Strop medzi priechodnými izbami by mal byť odstránený a nahradený novým stropom, ktorý by zohľadnil nové umiestnenie schodiska. Okenné a dverné otvory sú predbežne uvažované ako hliníkové, príp. drevo-hliníkové. Nové priečky sú predbežne navrhnuté z pórobetónových tvárnic. Obvodové murivo zo strany záhrady (ako aj zvyšok nezateplenej šikmej strechy) by malo byť zateplené minerálnou vlnou. Obvodové murivo zo strany ulice by bolo vhodné zatepliť z vnútornej strany s minerálnou tepelnou izoláciou (napr. YTONG Multipor). Zateplenie by malo prejsť cez strop až do podkrovia a malo by byť napojené na zateplenie krovu. Podlahy sú na prvom nadzemnom podlaží  uvažované ako drevené. Na druhom podlaží sú navrhnuté z liateho betónu, nakoľko je táto časť novšia a prevedenie podláh môže byť súčasnejšie.

Pozdĺžny rez A-A´ - skutkový stav
Pozdĺžny rez A-A´ - skutkový stav
Pozdĺžny rez A-A´ - nový stav
Pozdĺžny rez A-A´ - nový stav
Pozdĺžny rez B-B´ - skutkový stav
Pozdĺžny rez B-B´ - skutkový stav
Pozdĺžny rez B-B´ -nový stav
Pozdĺžny rez B-B´ -nový stav
Priečny rez C-C´ pred a po
Priečny rez C-C´ pred a po
Priečny rez D-D´ pred a po
Priečny rez D-D´ pred a po

Architektonické a výtvarné riešenie

Pôvodný tvar objektu ostáva nezmenený. Projekt prioritne rieši zlepšenie kvality bývania z pohľadu dispozičného a hygienického (osvetlenie a preslnenie priestorov). Predmetný návrh reaguje na potreby investora, ktorými sú zefektívnenie funkčno-prevádzkovej schémy domu. Zároveň sa touto zmenou zvýši aj rentabilnosť nehnuteľnosti. Dispozičné zmeny však musia nastať v oboch nadzemných podlažiach. Hlavný a vedľajšie  vchody do objektu ostávajú v pôvodnom umiestnení ako aj brána, cez ktorú je možný prístup na pozemok z hlavnej komunikácie a verejného chodníka. Okenné konštrukcie sú zväčšené o parapety a ich prevedenie má súčasnejší charakter vďaka veľkoformátovému preskleniu. Dvojkrídlové okno z ulice je nahradené jedným krídlom so štvorcovým priemetom a „šambránou“ tvorenou dreveným profilom, ktorý súčasným spôsobom cituje pôvodné šambrány okolitých domov v obci.

Uličný pohľad pred a po
Uličný pohľad pred a po
Uličný pohľad - nový stav
Uličný pohľad - nový stav
Pohľad od záhrady pred a po
Pohľad od záhrady pred a po
Axonometria - skutkový stav
Axonometria - skutkový stav
Axonometria - nový stav
Axonometria - nový stav

Navrhovaná farebnosť fasády sa nesie v svetlom bielom prevedení v kontraste s kovovými prvkami hliníkových profilov nových okien a červenej brány. Pôvodná brána bude repasovaná, vybrúsená a natretá farebným lakom, ktorý vytiahne prirodzenú štruktúru dreva. V kontraste s bielym priečelým je aj strešná krytina, ktorá ostáva v pôvodnom vyhotovení, nakoľko bola zrealizovaná iba prednedávnom. Omietka je takmer na celej fasáde navrhnutá z jemnozrnnej ušľachtilej omietky. Výnimkou sú vystupujúce prvky na čelnej fasáde od ulice. Tieto prvky budú omietnuté hrubozrnnou ušľachtilou omietkou, čím sa existujúca tektonika priečelia zvýrazní.

Foto - skutkový stav priečelia
Foto - skutkový stav priečelia
Vizualizácia - navrhovaný stav priečelia
Vizualizácia - navrhovaný stav priečelia
Vizualizácia od záhrady + foto existujúceho stavu
Vizualizácia od záhrady + foto existujúceho stavu
Vizualizácia - dvor
Vizualizácia - dvor
Vizualizácia - z obývacej izby do záhrady
Vizualizácia - z obývacej izby do záhrady

Ateliér

Ing. arch. Ing. Roman Ruhig, PhD.
Ing. arch. Ing. Ema Ruhigová (Kiabová), PhD.
Vložené
8. december 2021
0
460
Hlavný obsahHlavný obsah
Čakajte prosím