Advertorial

Pozvánka na 2. ročník stavebného veľtrhu BigMarket na Slovensku

Na podujatí sa predstaví až 37 vystavovateľov - popredných dodávateľov stavebných materiálov a inovácií s prezentáciou...

Hotel Hirschen Spa House, Rakúsko

Novotvar v prostredí alpskej obce.

Vytvorte si kúpeľňu snov: dizajnové riešenie od značky hansgrohe

Hansgrohe - prémiová značka kúpeľňových riešení, ponúka nadčasový dizajn, technickú precíznosť a udržateľné inovácie...

Okná Internorm za minuloročné ceny + hliníkový kryt zdarma!

Využite špeciálnu akciu Internorm: okná za minuloročné ceny a hliníkový kryt úplne zadarmo. Ponuka je časovo obmedzená!

Moderné plynové technológie: Efektivita a inovácie pre 21. storočie

Sumarizácia najdôležitejších inovácií, ktoré redefinujúcich využitie tohto energetického zdroja.

Utesňovanie spodných stavieb pomocou hydro-aktívnej fólie AMPHIBIA.

AMPHIBIA 3000 GRIP 1.3 od spoločnosti ATRO predstavuje modernú hydroizolačnú technológiu, ktorá spája vysokú odolnosť,...

Dekarbonizácia individuálneho vykurovania domácností – Green Deal evolučne a nie revolučne

Ambiciózne plány EK narazili na ekonomické možnosti domácností v jednotlivých členských štátoch –...

Minimalistické dvere IDEA – technická precíznosť a čistota prevedenia

IDEA DOOR od spoločnosti JAP prináša do interiéru čistý minimalistický vzhľad vďaka bezrámovému riešeniu a precíznej...

Dom s výhľadom na údolie, Dlouhý Most (ČR)

Kontinuita riešenia od vonkajšieho obkladu až po kovania a kľučky.

Schell Vitus – osvedčené riešenie pre sprchy a umývadlá vo verejnom sektore s viac ako desaťročnou tradíciou

Nástenné nadomietkové armatúry Vitus sú mimoriadne vhodné pre rýchlu a efektívnu...

Kompozitné okná predstavujú súčasnosť a budúcnosť

Okenné profily z kompozitného materiálu RAU-FIPRO X od spoločnosti Rehau sú v porovnaní s tradičnými plastovými profilmi mnohonásobne...

Myotis - stoly 2025

Najnovší sortiment stolov pre zariadenie interiérov...

Priemyselné sklenené priečky Dorsis Digero: svetelné rozhranie pre moderné interiéry

Spojenie moderného dizajnu, funkčnosti a svetla do harmonického architektonického prvku.

Význam prirodzeného svetla pre moderné a flexibilné pracovné prostredie

Kancelárska budova Baumit v slovinskom Trzine prešla premenou na moderné a udržateľné pracovisko. Architekti kládli dôraz...

Konferencia Xella Dialóg predstaví novinky a trendy v stavebníctve

Mottom šiesteho ročníku on-line konferencie odborníkov Xella Dialóg je Efektívny návrh budov 2025+: zmeny a riešenia

Rekonštrukcia domu v historickom jadre, Kutná Hora (ČR)

Viac priestoru, svetla a zelene.
Diela
Red 316.02.2024
19590+95
Rekonštrukcia domu v historickom jadre, Kutná Hora (ČR)
Autori: Ing. arch. Jan Holub, Ing. arch. Tomáš HanusPodlažná plocha: 276 m2Investičný náklad: 415 000 €Návrh: 2021 - 2022Realizácia: 2022 - 2023Adresa: Kutná Hora, Česká republikaPublikované: 16. február 2024

Dom v jadre stredočeského baníckeho mesta pochádza z konca 19. storočia. Stavba nahradila pôvodný stredoveký objekt, ktorý úplne vyhorel.

Už v momente, keď architekti Jan Holub a Tomáš Hanus z pražského ateliéru BYRÓ navštívili pozemok, im bolo jasné, že za necitlivými stavebnými úpravami zo 70. rokov minulého storočia sa skrýva množstvo autentických prvkov. “Naším hlavním záměrem bylo v domě znovuobjevit jeho paměť a původní vrstvy. Hranici mezi starým a novým jsme se snažili spíše znejišťovat, než aby na ní bylo upozorněno. Nové zásahy mají objektu přinést nové impulzy, které spočívají zejména v nečekaném propojování jednotlivých prostor domu interiérovými okny a otvory. Dům, který je určený k životu rodiny s třemi dětmi, díky tomu v interiéru lépe komunikuje, jednotlivé místnosti se navzájem otevírají a prolínají. Atmosféry a světelné nálady se vrství napříč objektem a přinášejí do domu proměnlivou a pestrou škálu vjemů,” vysvetľujú svoj prístup autori rekonštrukcie.

Ústredným prvkom dispozície je špirálové schodisko v jadre pôdorysu. “Díky luxferovým stěnám a dalším novým otvorům, které do něj ústí, se hlavní komunikační jádro stává i mediátorem mezi jednotlivými místnostmi domu v horizontálním směru,” zdôrazňujú architekti. Prízemie a poschodie prepájajú pôvodné kamenné stupne. Do podkrovia následne vedú votknuté oceľové schody, prepúšťajúce svetlo zo svetlíka do nižšej úrovne a hĺbky dispozície.

Farebná schéma vsádza primárne na prirodzenú kresbu materiálov v ich surovej forme. V interiéri na neutrálnom pozadí vynikajú výraznejšie akcenty, ktoré vznikali v dialógu s klientmi. Väčšina nábytku vznikla podľa autorského návrhu.

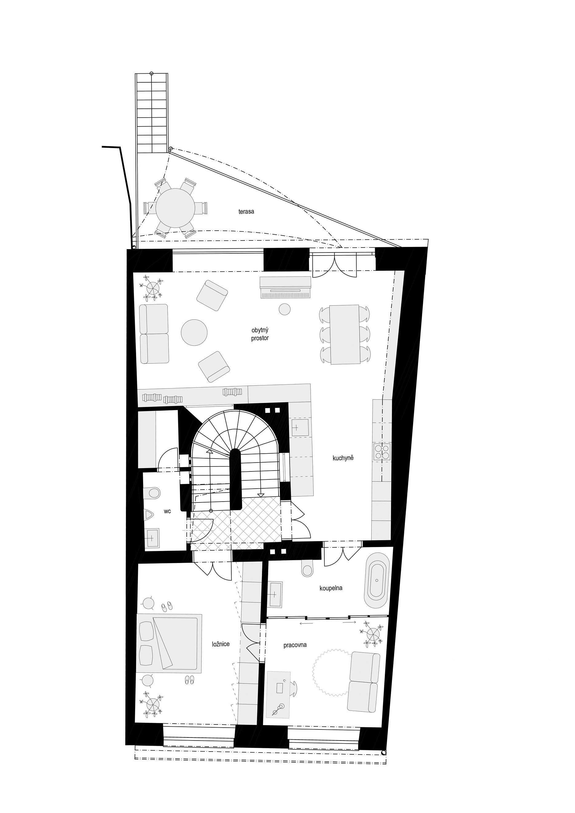
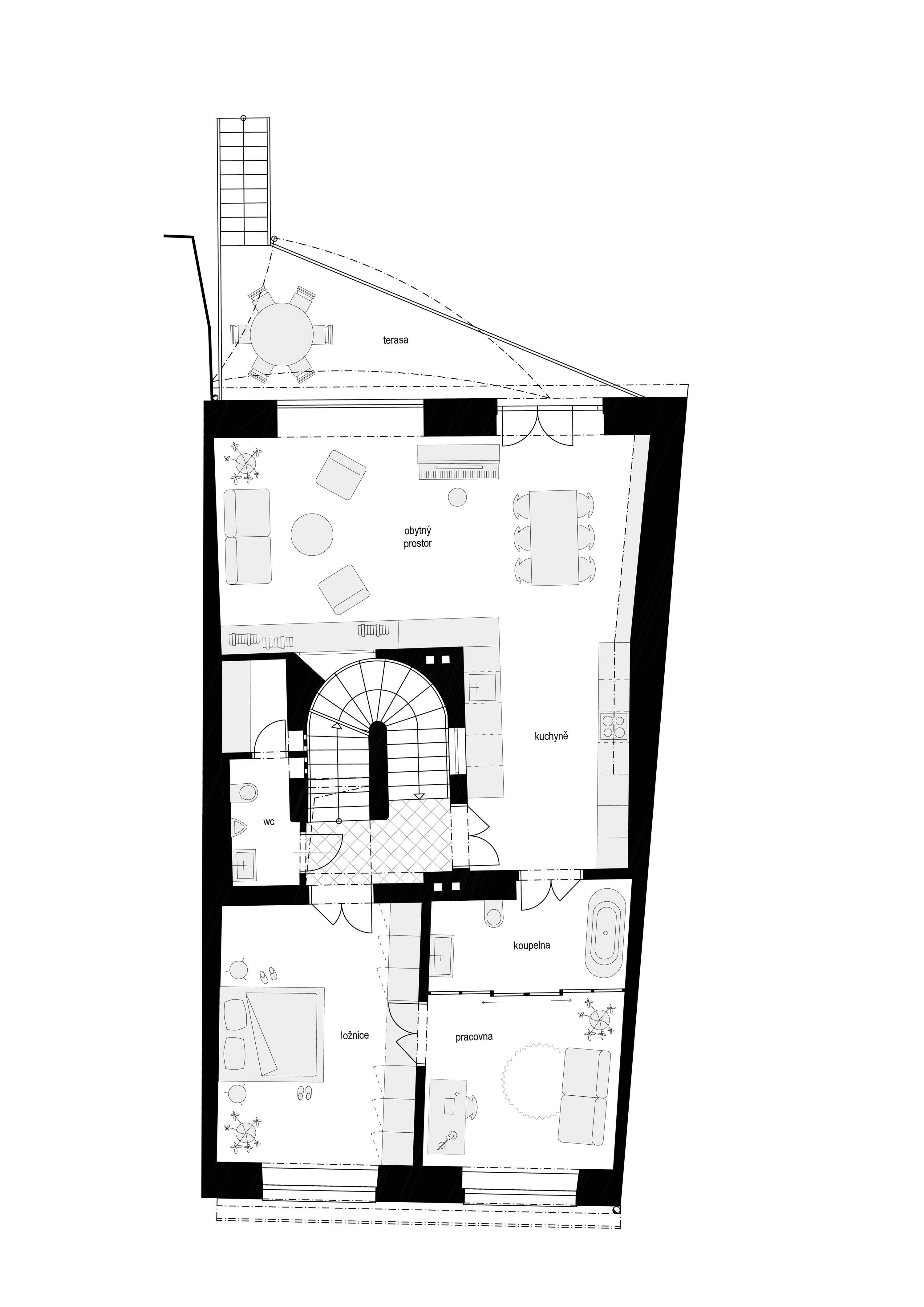
Dispozícia sa rozvíja okolo spomínaného vertikálneho jadra, ktoré prepája všetky podlažia. Pivnica zostala prakticky nedotknutá a slúži ako sklad. Do prízemia sa vstupuje cez priestrannú halu, na ktorú nadväzuje okrem schodiska denná detská herňa so samostatnou kúpeľňou a servisná časť domu.

Obslužný trakt, orientovaný do dvora, zahŕňa technickú miestnosť, práčovňu a výtvarnú dielňu. Na poschodí sa nachádza obytný priestor s kuchyňou, rodičovská spálňa so samostatnou kúpeľňou a pracovňa.

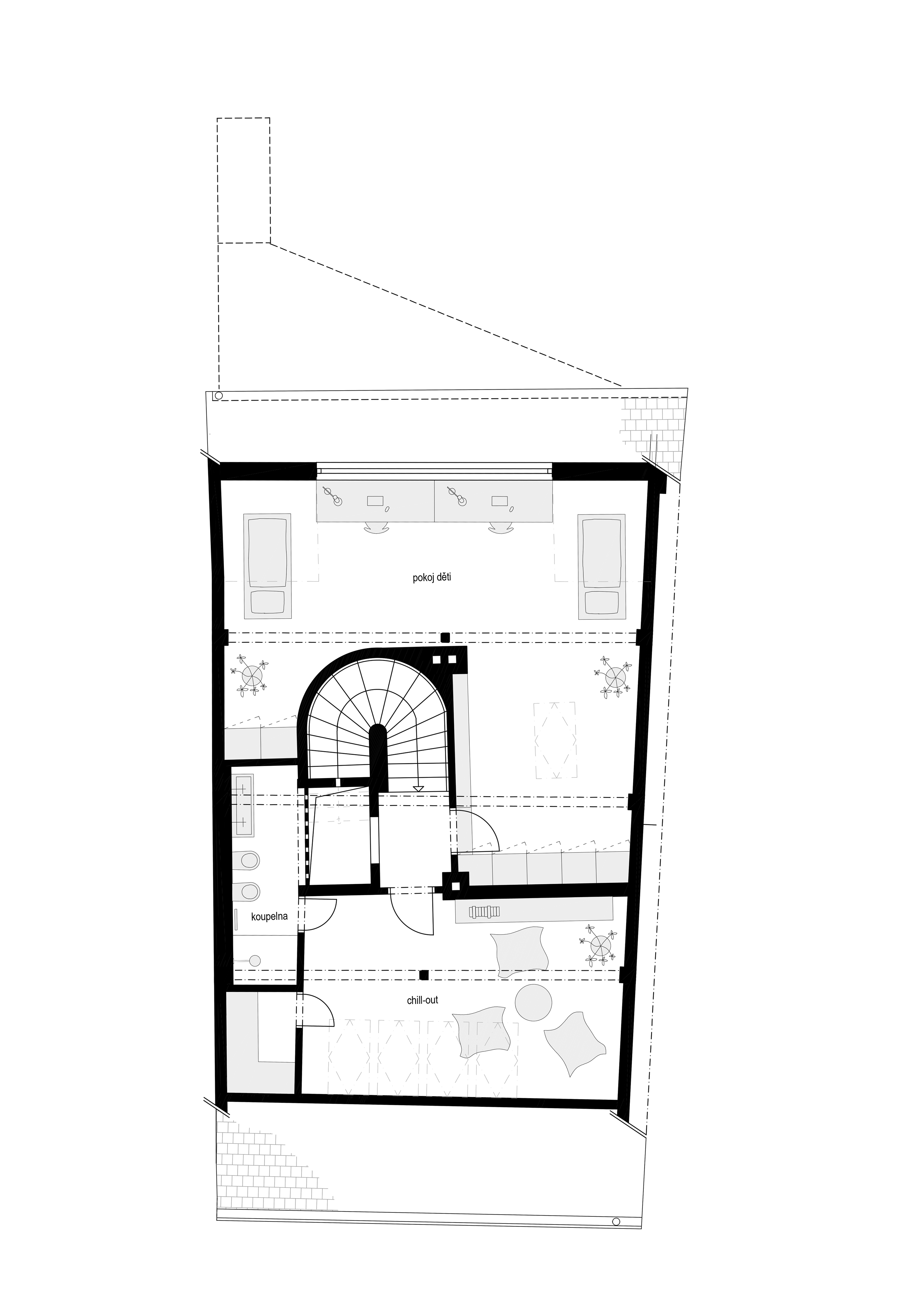
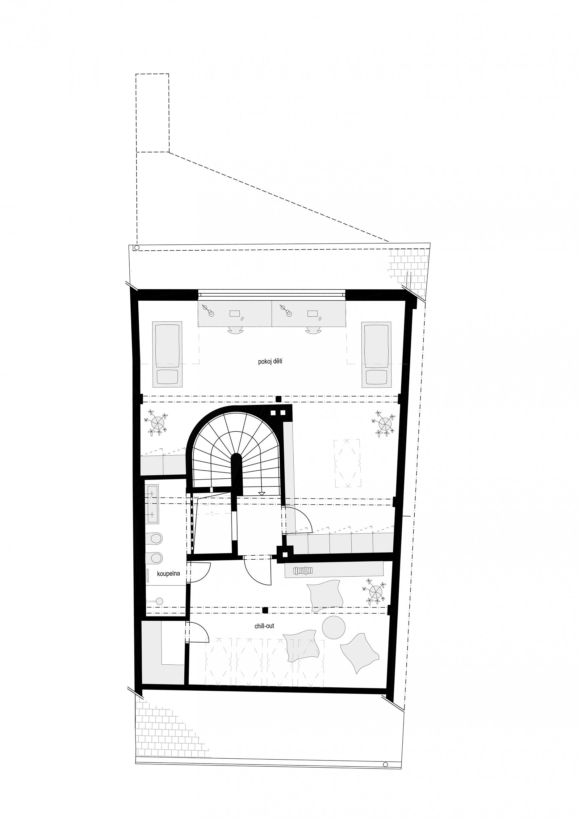
Podkrovie je určené pre deti. Nachádza sa v ňom chlapčenská a dievčenská izba a ďalšia kúpeľňa s toaletou. Neoddeliteľnú súčasť domu tvorí intímny dvor a záhrada, ktoré sú po rekonštrukcii priamo prístupné z hlavného obytného priestoru aj suterénu.

Foto: Alex Shoots Buildings
Foto: Alex Shoots Buildings
Foto: Alex Shoots Buildings
Situácia
SituáciaAutor: BYRÓ architekti
Pôdorys 1. NP
Pôdorys 1. NPAutor: BYRÓ architekti
Pôdorys 2. NP
Pôdorys 2. NPAutor: BYRÓ architekti
Pôdorys 3. NP
Pôdorys 3. NPAutor: BYRÓ architekti
Foto: Alex Shoots Buildings
Foto: Alex Shoots Buildings
Foto: Alex Shoots Buildings
Foto: Alex Shoots Buildings
Foto: Alex Shoots Buildings
Foto: Alex Shoots Buildings
Foto: Alex Shoots Buildings
Foto: Alex Shoots Buildings
Foto: Alex Shoots Buildings
Foto: Alex Shoots Buildings
Foto: Alex Shoots Buildings
Foto: Alex Shoots Buildings
Foto: Alex Shoots Buildings
Foto: Alex Shoots Buildings
Foto: Alex Shoots Buildings
Foto: Alex Shoots Buildings
Foto: Alex Shoots Buildings
Foto: Alex Shoots Buildings
Foto: Alex Shoots Buildings
Foto: Alex Shoots Buildings
Foto: Alex Shoots Buildings
Foto: Alex Shoots Buildings
Foto: Alex Shoots Buildings
Foto: Alex Shoots Buildings
Foto: Alex Shoots Buildings
Foto: Alex Shoots Buildings
Foto: Alex Shoots Buildings
Foto: Alex Shoots Buildings
Foto: Alex Shoots Buildings
Foto: Alex Shoots Buildings
Foto: Alex Shoots Buildings
Foto: Alex Shoots Buildings
Foto: Alex Shoots Buildings
Foto: Alex Shoots Buildings
Foto: Alex Shoots Buildings
Foto: Alex Shoots Buildings
Foto: Alex Shoots Buildings
Foto: Alex Shoots Buildings
Foto: Alex Shoots Buildings
Foto: Alex Shoots Buildings
Foto: Alex Shoots Buildings
Foto: Alex Shoots Buildings

Materiály:

  • pohľadový betón - lavice a pracovné dosky v interiéri, vonkajšie parapety, schodisko vo dvore
  • luxferové steny - kúpeľne, herňa
  • cemflow - podlahy
  • preglejka - klenbový strop, obklady stien, nábytok podľa autorského návrhu
  • oceľ - zábradlie, nábytok podľa autorského návrhu
  • MDF - nábytok podľa autorského návrhu
  • MDF - nábytok podľa autorského návrhu
  • štuková omietka - vnútorné steny
  • škrabaná omietka - vnútorné steny
  • mníchovská omietka - fasáda
  • oceľ - vnútorné schodisko, vonkajšie schodisko a terasa
  • polykarbonát - priečka do kúpeľne
  • betónová stierka- kúpeľne
  • keramické dlažby a obklady - podlahy, kúpeľne, krb
  • kameň - schodisko, dvor, sokel
  • drevo - okná, podlahy, dvere

Autori: BYRÓ architekti
Podklady: Linka
Fotografie: Alex Shoots Buildings

Poloha diela

Ing. arch. Jan Holub
Ing. arch. Tomáš Hanus
Vložené
15. február 2024
0
1959
Hlavný obsahHlavný obsah
Čakajte prosím