Advertorial

Minimalistické dvere IDEA – technická precíznosť a čistota prevedenia

IDEA DOOR od spoločnosti JAP prináša do interiéru čistý minimalistický vzhľad vďaka bezrámovému riešeniu a precíznej...

Schell Vitus – osvedčené riešenie pre sprchy a umývadlá vo verejnom sektore s viac ako desaťročnou tradíciou

Nástenné nadomietkové armatúry Vitus sú mimoriadne vhodné pre rýchlu a efektívnu...

Kompozitné okná predstavujú súčasnosť a budúcnosť

Okenné profily z kompozitného materiálu RAU-FIPRO X od spoločnosti Rehau sú v porovnaní s tradičnými plastovými profilmi mnohonásobne...

Myotis - stoly 2025

Najnovší sortiment stolov pre zariadenie interiérov...

Priemyselné sklenené priečky Dorsis Digero: svetelné rozhranie pre moderné interiéry

Spojenie moderného dizajnu, funkčnosti a svetla do harmonického architektonického prvku.

Význam prirodzeného svetla pre moderné a flexibilné pracovné prostredie

Kancelárska budova Baumit v slovinskom Trzine prešla premenou na moderné a udržateľné pracovisko. Architekti kládli dôraz...

Konferencia Xella Dialóg predstaví novinky a trendy v stavebníctve

Mottom šiesteho ročníku on-line konferencie odborníkov Xella Dialóg je Efektívny návrh budov 2025+: zmeny a riešenia

Murovací robot WLTR stavia svoj prvý dom na Slovensku

Robot WLTR predstavuje moderný prístup k murovaným konštrukciám. Vďaka automatizácii dokáže rýchlo, presne a bezpečne realizovať...

Nová éra bezpečnosti s I-tec Secure od Internorm

Okrem bezpečnosti majú okná aj elegantný vzhľad, pretože nie sú viditeľné žiadne uzamykacie časti kovania.

Skryté zárubne JAP – intenzívny zážitok z bývania

Dvere MASTER v skrytej zárubni AKTIVE je možné vyrobiť až do výšky 3 700 mm

Tienenie namiesto klimatizácie

Internorm stavia na energetickú efektívnosť a inteligentné tieniace riešenia.

BigMat International Architecture Award 2025 - vybrané diela

Slovensko vo výbere zastupuje šesť realizácií.

Milník udržateľnej výroby okien: Internorm zavádza Low-Carbon-Glas iplus

Spoločnosť Internorm odteraz stavia na novej variante tepelnoizolačného skla od AGC, ktorá v produkcii ročne ušetrí 10...

Výsledky 20. ročníka medzinárodnej študentskej súťaže Saint-Gobain Architecture Student Contest 2025

Jubilejný 20. ročník prestížnej medzinárodnej súťaže pre študentov architektúry priniesol...

Dvere MASTER - pre interiéry navrhnuté s rozumom aj vášňou!

Otočné a posuvné dvere MASTER od podlahy až po strop, ponúkajú mimoriadnu variabilitu výšky, materiálu a zladenia so skrytými...

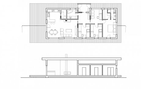
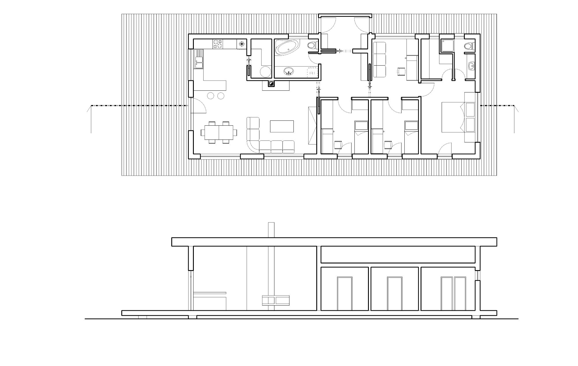
Rodinný dom, Ružomberok - Biely Potok

Dom je postavený v zadnej časti záhrady patriacej k rodičovskému domu. Dĺžka a šírka záhrady umožnili jednopodlažnú dispozíciu. Pol metra nad rovinatým pozemkom sa “vznáša” železo-betónová doska, na ktorej je postavený drevodom (stĺpiková konštrukcia). Presah pultovej strechy je rovnaký ako pôdorys “vznášajúcej” sa dosky. Okolo celého domu tak vzniká krytý medzipriestor medzi interiérom a exteriérom a rozširuje sa obytná plocha domu. Vznášajúca sa doska slúži zároveň na sedenie v záhrade. Obytná denná časť na výšku siaha až po konštrukciu strechy, nočná časť je znížená podhľadom. Kontakt so záhradou majú všetky obytné miestnosti. Dom bol z veľkej časti realizovaný svojpomocne a s veľkým nadšením stavebníkov – mladých manželov. Stavba je dôkazom, že zanietený amatér so zmyslom pre detail dokáže divy. Podobne ako pri rodinnom dome v Černovej ani tu neboli prostriedky na najlepšie materiály, profesionálne firmy a časopisový interiér, čo však neprekáža. Jednoduchý hmotový koncept to unesie.

Fotograf: Pavol Mičáň
Diela
Matúš Bišťan11.09.2017
18000+4
Rodinný dom, Ružomberok - Biely Potok
Autori: Mgr. art. Matúš BišťanSpolupráca: Ing.arch. Stanislav ŠutvajZastavaná plocha: 228 m2Podlažná plocha: 112 m2Návrh: 2007 - 2008Realizácia: 2009 - 2013Adresa: Ružomberok - Biely Potok, SlovenskoPublikované: 11. september 2017

Poloha diela

Mgr. art. Matúš Bišťan
Vložené
11. september 2017
0
1800
Hlavný obsahHlavný obsah
Čakajte prosím