Na podujatí sa predstaví až 37 vystavovateľov - popredných dodávateľov stavebných materiálov a inovácií s prezentáciou...
Novotvar v prostredí alpskej obce.
Hansgrohe - prémiová značka kúpeľňových riešení, ponúka nadčasový dizajn, technickú precíznosť a udržateľné inovácie...
Využite špeciálnu akciu Internorm: okná za minuloročné ceny a hliníkový kryt úplne zadarmo. Ponuka je časovo obmedzená!
Sumarizácia najdôležitejších inovácií, ktoré redefinujúcich využitie tohto energetického zdroja.
AMPHIBIA 3000 GRIP 1.3 od spoločnosti ATRO predstavuje modernú hydroizolačnú technológiu, ktorá spája vysokú odolnosť,...
Ambiciózne plány EK narazili na ekonomické možnosti domácností v jednotlivých členských štátoch –...
IDEA DOOR od spoločnosti JAP prináša do interiéru čistý minimalistický vzhľad vďaka bezrámovému riešeniu a precíznej...
Kontinuita riešenia od vonkajšieho obkladu až po kovania a kľučky.
Nástenné nadomietkové armatúry Vitus sú mimoriadne vhodné pre rýchlu a efektívnu...
Okenné profily z kompozitného materiálu RAU-FIPRO X od spoločnosti Rehau sú v porovnaní s tradičnými plastovými profilmi mnohonásobne...
Najnovší sortiment stolov pre zariadenie interiérov...
Spojenie moderného dizajnu, funkčnosti a svetla do harmonického architektonického prvku.
Kancelárska budova Baumit v slovinskom Trzine prešla premenou na moderné a udržateľné pracovisko. Architekti kládli dôraz...
Mottom šiesteho ročníku on-line konferencie odborníkov Xella Dialóg je Efektívny návrh budov 2025+: zmeny a riešenia

Rovinatý pozemok rodinného domu sa nachádza v olomouckej mestskej časti Slavonín. Vstup na pozemok je z východnej strany, odkiaľ je dopravne napojený na novú príjazdovú komunikáciu. Okolité pozemky boli donedávna využívané ako súkromné záhrady. Vybudovanie prístupovej cesty a inžinierskych sietí odštartovalo rozvoj územia.
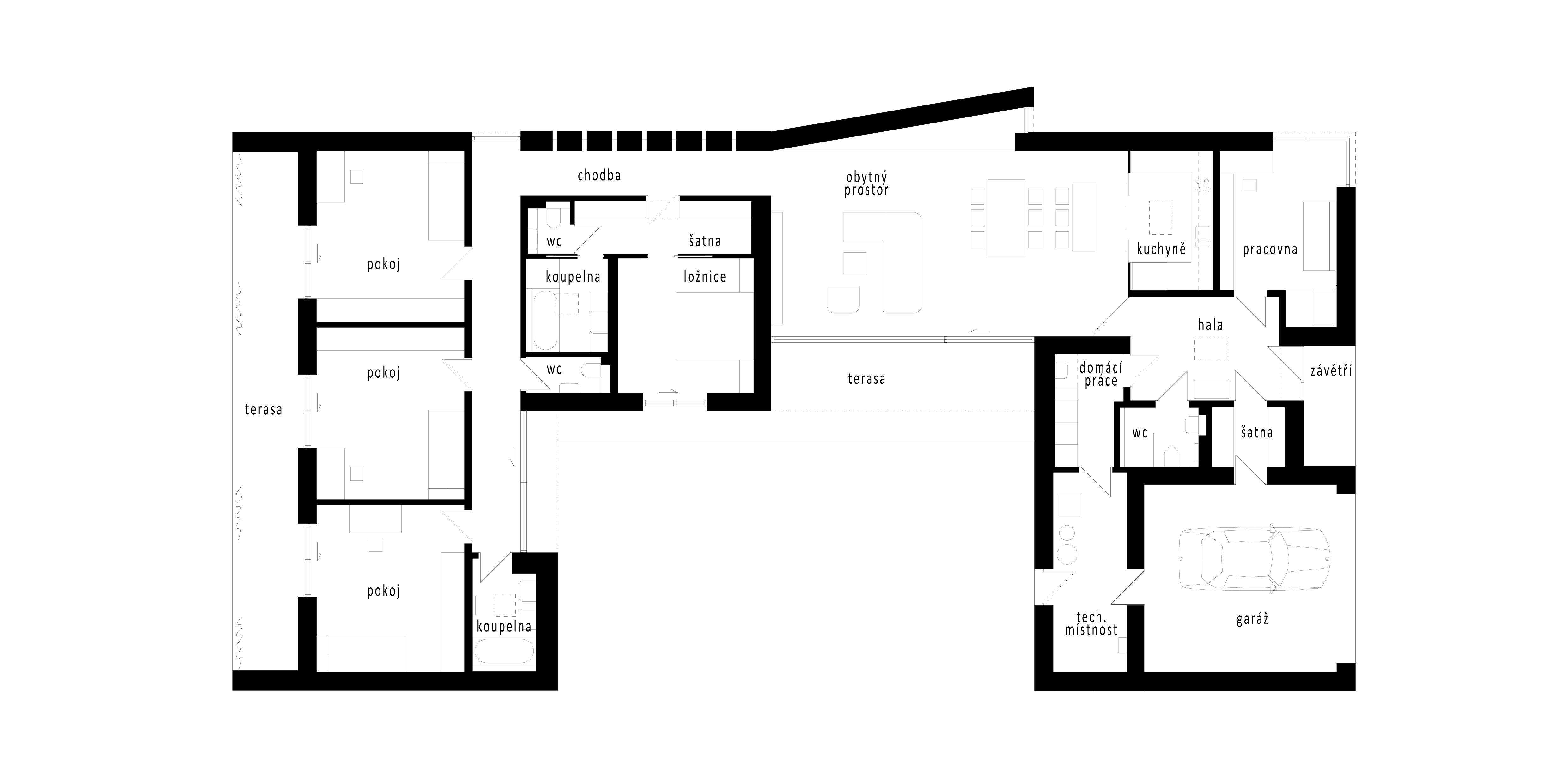
Dom sa vymedzuje voči okoliu a je koncipovaný tak, aby vytvoril maximálne súkromie svojim obyvateľom. Z tejto požiadavky vychádza pôdorysný tvar domu. Prízemná hmota sa skladá z troch krídel a vnútorného átria. Skladba krídel vytvára pôdorysný tvar "U" otvorený na južnú stranu parcely.
Dispozičné riešenie:
Hlavný vstup je situovaný vo východnom krídle nadväzujúcom na príjazdovú komunikáciu. Na východnej fasáde je umiestnený centrálne, a je plasticky posilnený zapustením do hmoty domu v podobe krytého závetria. V tomto krídle sa nachádza prevažne zázemie pre dom a pracovňa s rohovým oknom, ktorá je orientovaná do ulice. Zo vstupnej haly presvetlenej centrálnym svetlíkom je prístupná hlavná obytná časť domu, pracovňa (príležitostne využívaná ako izba pre hosťa), šatňa, sprcha s toaletou a sklad s práčovňou. Vstupná hala je prepojená s garážou cez šatňu, na ktorú nadväzuje technická miestnosť, z ktorej je umožnený prístup do skladu a do átria.
Nadväzujúce severné krídlo domu sa otvára na juh, do súkromného átria. Prepojenie zabezpečuje presklenie s posuvným krídlom, ktoré umožňuje plynulý prechod na čiastočne krytú terasu. Súčasťou obytného priestoru je jedáleň s kuchyňou, ktorá je zapustená v nike a presvetlená svetlíkom. Oddelenie kuchynského kúta od obytného priestoru zabezpečujú posuvné krídla. Jedálenský stôl je od kuchyne vymedzený pojazdným pultom, ktorý zároveň slúži pre príležitostné sedenie. V závere hlavného obytného priestoru je situovaná obývacia a spoločenská časť. Severná stena obytného priestoru vystupuje šikmo z pôdorysu hlavnej hmoty domu a je zakončená oknom s výhľadom smerom k príjazdovej komunikácii. V tomto zalomení je vytvorený sedací kút. Západná strana obývacej časti je tvorená samostatným blokom, v ktorom je umiestnená spálňa so zázemím. Spálňa je prístupná cez šatňu z chodby, ktorá prepája severné a západné krídlo domu. Šatňa zároveň vytvára aj filter medzi spálňou a kúpeľňou so sprchou a samostatným wc.
Západné krídlo domu je navrhnuté ako "obytno - kľudové" s detskými izbami. Severné a západné krídlo je komunikačne prepojené chodbou, ktorá sa voľne prelína s hlavným obytným priestorom. Chodba sa svojimi priehľadmi a oknami otvára do záhrady a átria a obtáča sa okolo vnútorného spálňového bloku. Stáva sa tak prirodzenm priestorom domu a nezostáva len účelovou vnútornou komunikáciou prepájajúcou miestnosti. Z chodby sú prístupné tri detské izby, ktoré sú orientované oknami do západnej časti záhrady. Medzi izbami a záhradou je navrhnutá spoločná krytá terasa, ktorá svojím ustúpením vytvára prirodzené tienenie. Na južnej strane západného krídla je umiestnená samostatná kúpeľňa určená detským izbám.
Architektonické riešenie domu spočíva v kompaktnej hmotovej skladbe s triezvo členenými okennými otvormi. Vstup do domu je akcentovaný ustúpeným závetrím. Špecifikom je šikmé pôdorysné vystúpenie steny smerom k príjazdovej komunikácii, ktoré vytvára "kukátko " - optické prepojenie obytného priestoru so vstupom.
Jednoduchá základná hmota domu je uzavretá atikou domu z pohľadového betónu. Na severnej strane, v časti chodby táto atika prechádza plynule do železobetónovej steny. Povrchy ostatných stien sú omietnuté omietkov svetlej farby. Tieto plochy sa vyznačujú jemnou pozdĺžnou profiláciou.
V stene z pohľadového betónu sú rozmiestnené v nepravidelnom rastri sklenené tvarovky kruhového prierezu, ktoré v interiéri a átriu vytvárajú svetelné body.
Zatienenie terasy detských izieb zaisťujú závesy, ktorými možno vyčleniť vonkajší priestor polosúkromného charakteru. Povrchy terás sú z veľkoformátovej betónovej dlažby.
Hliníkové okná, vstupné dvere a obklad závetria sú vyhotovené v šedej metalickej farbe. Nášľapné vrstvy podláh sú prevažne z polyuretánu s jemným vsypom svetlej farby.
Materiálové riešenie interiéru:
Steny vstupnej haly sú obložené drevenými doskami, ktoré sú potiahnuté prírodnou dubovou dyhou. Rovnaká dyha bola zvolená aj pre vnútorné drevené dvere a prevažnú časť stolárskych výrobkov. Medzi halou a obytným priestorom sú drevené dyhované dvere na celú výšku priestoru. Tieto dvere sú ďalej perforované kruhovými otvormi lemovanými nerezovými prstencami, čím v zmenšenej mierke odkazujú na perforovanú stenu. Podobný detail je použitý aj na uličnom oplotení. Kuchyňa je obložená bielymi lakovanými doskami, ktoré svojimi špárami nadväzujú na členenie kuchynskej linky. Vstupná hala, kuchyňa a kúpeľňa sú presvetlené svetlíkmi. Vo svetlíkoch sú inštalované LED pásky a slúžia tak zároveň ako svietidlá. V kúpeľniach je použitá veľkoformátová keramická dlažba a obklad.
Stavebné a technické riešenie:
Konštrukčný systém je stenový obojsmerný. Obvodové steny a vnútorné nosné steny sú navrhnuté ako jednovrstvové murivo z keramických tvárnic. Železobetónová stena z pohľadového betónu je sendvičová. Vodorovné nosné konštrukcie sú tvorené železobetónovou monolitickou doskou. Strecha domu je plochá jednoplášťová, s extenzívnou zeleňou. Vnútorné priečky sú murované z keramických tvaroviek. Objekt je založený na základových pásoch. Rámy okien sú hliníkové s prerušeným tepelným mostom, okná sú zasklené izolačným trojsklom. Atiky z monolitického pohľadového železobetónu sú kotvené k stropným doskám pomocou nosníkov pre prerušenie tepelného mostu, rovnako aj vystupujúce dosky lodžií.
Objekt je vykurovaný tepelným čerpadlom zem - voda, s hĺbkovými vrtmi. Dom je vybavený chladením, elektronickým zabezpečením systémom a inteligentnou reguláciou.
Podklady: JVArchitekt a KAMKABINET