Advertorial

Pozvánka na 2. ročník stavebného veľtrhu BigMarket na Slovensku

Na podujatí sa predstaví až 37 vystavovateľov - popredných dodávateľov stavebných materiálov a inovácií s prezentáciou...

Hotel Hirschen Spa House, Rakúsko

Novotvar v prostredí alpskej obce.

Vytvorte si kúpeľňu snov: dizajnové riešenie od značky hansgrohe

Hansgrohe - prémiová značka kúpeľňových riešení, ponúka nadčasový dizajn, technickú precíznosť a udržateľné inovácie...

Okná Internorm za minuloročné ceny + hliníkový kryt zdarma!

Využite špeciálnu akciu Internorm: okná za minuloročné ceny a hliníkový kryt úplne zadarmo. Ponuka je časovo obmedzená!

Moderné plynové technológie: Efektivita a inovácie pre 21. storočie

Sumarizácia najdôležitejších inovácií, ktoré redefinujúcich využitie tohto energetického zdroja.

Utesňovanie spodných stavieb pomocou hydro-aktívnej fólie AMPHIBIA.

AMPHIBIA 3000 GRIP 1.3 od spoločnosti ATRO predstavuje modernú hydroizolačnú technológiu, ktorá spája vysokú odolnosť,...

Dekarbonizácia individuálneho vykurovania domácností – Green Deal evolučne a nie revolučne

Ambiciózne plány EK narazili na ekonomické možnosti domácností v jednotlivých členských štátoch –...

Minimalistické dvere IDEA – technická precíznosť a čistota prevedenia

IDEA DOOR od spoločnosti JAP prináša do interiéru čistý minimalistický vzhľad vďaka bezrámovému riešeniu a precíznej...

Dom s výhľadom na údolie, Dlouhý Most (ČR)

Kontinuita riešenia od vonkajšieho obkladu až po kovania a kľučky.

Schell Vitus – osvedčené riešenie pre sprchy a umývadlá vo verejnom sektore s viac ako desaťročnou tradíciou

Nástenné nadomietkové armatúry Vitus sú mimoriadne vhodné pre rýchlu a efektívnu...

Kompozitné okná predstavujú súčasnosť a budúcnosť

Okenné profily z kompozitného materiálu RAU-FIPRO X od spoločnosti Rehau sú v porovnaní s tradičnými plastovými profilmi mnohonásobne...

Myotis - stoly 2025

Najnovší sortiment stolov pre zariadenie interiérov...

Priemyselné sklenené priečky Dorsis Digero: svetelné rozhranie pre moderné interiéry

Spojenie moderného dizajnu, funkčnosti a svetla do harmonického architektonického prvku.

Význam prirodzeného svetla pre moderné a flexibilné pracovné prostredie

Kancelárska budova Baumit v slovinskom Trzine prešla premenou na moderné a udržateľné pracovisko. Architekti kládli dôraz...

Konferencia Xella Dialóg predstaví novinky a trendy v stavebníctve

Mottom šiesteho ročníku on-line konferencie odborníkov Xella Dialóg je Efektívny návrh budov 2025+: zmeny a riešenia

Rodinný dom Trakovice

Bývanie pre mladú rodinu.
Diela
Red 311.07.2021
60880+46
Rodinný dom Trakovice
Autori: Ing. arch. Adam LukačovičSpolupráca: Ing. arch. Andrea Javorková (interiér), WOOD & INTERIERS (výroba nábytu)Plocha pozemku: 1268 m²Zastavaná plocha: 261 m²Podlažná plocha: 313 m² Návrh: 2017 - 2017Realizácia: 2017 - 2019Adresa: Trakovice, SlovenskoPublikované: 11. júl 2021

Prehľadne vyriešená prevádzka dvojpodlažného domu s átriom. Otvorenie obytnej plochy smerom do exteriéru sa zaobišlo bez straty súkromia. Stavba na svahovitom pozemku s výhľadom je "zaodetá" do monochromatickej obálky, ktorú dopĺňa sklo a drevo na terasách. 

Realizáciu bližšie predstaví architekt Adam Lukačovič:

Pozemok pre rodinný dom sa nachádza v západoslovenskej obci Trakovice. Svahovitý terén poskytuje krásne výhľad na okolie obce, ich zachovanie bola jednou z požiadaviek investora. Kľúčové však zostalo vytvorenie dvojpodlažnej dispozície s bezbariérovým využitím prvého podlažia. Dôraz bol kladený na zachovanie súkromia a intímnych zón bývania, čo do značnej miery definovalo výslednú formu domu.

Foto: Ing. arch. Adam Lukačovič

Hlavným motívom sa stalo malé polootvorené átrium, ktoré pomohlo vytvoriť doplnkovú južnú fasádu a minimalizovať okná orientované k susednej parcele. Prevažne presklená fasáda átria v sebe prepája dennú, nočnú a komunikačnú časť domu.

Foto: Ing. arch. Adam Lukačovič

Súčasťou návrhu je aj samostatný objekt letnej kuchyne, ktorá je umiestnená vo svahu pod hlavnou terasou. Sezónna funkcia kuchyne je doplnená dielňou a veľkou pivnicou.

Foto: Ing. arch. Adam Lukačovič
Foto: Ing. arch. Adam Lukačovič
Foto: Ing. arch. Adam Lukačovič
Foto: Ing. arch. Adam Lukačovič
Axonometria
AxonometriaAutor: Ing. arch. Adam Lukačovič
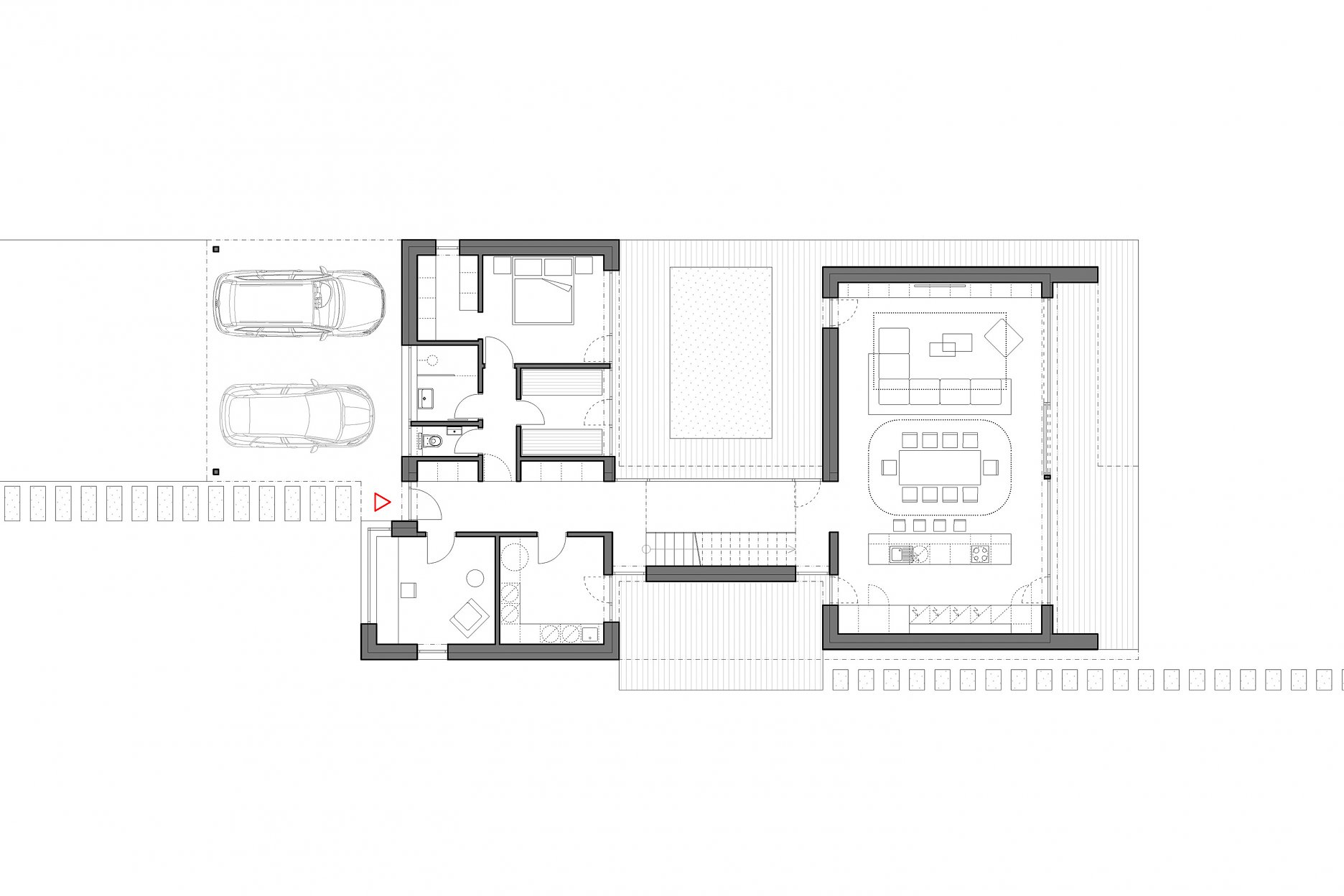
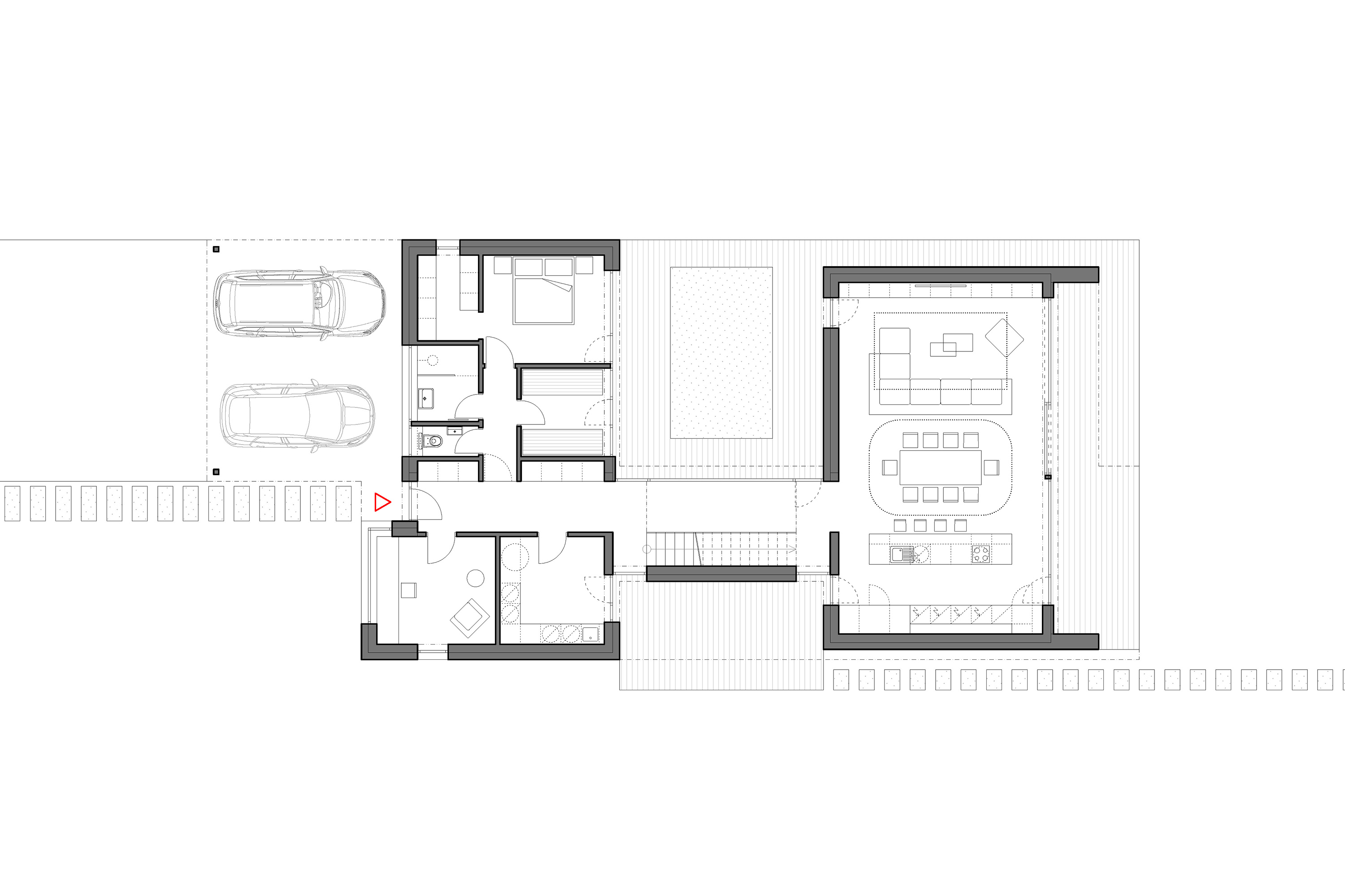
Pôdorys 1.NP
Pôdorys 1.NPAutor: Ing. arch. Adam Lukačovič
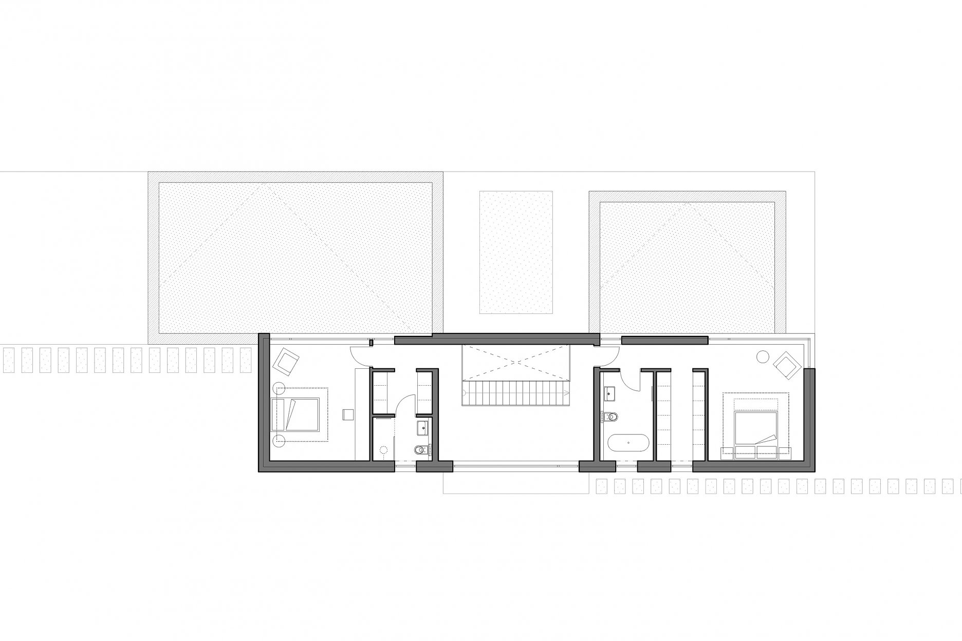
Pôdorys 2.NP
Pôdorys 2.NPAutor: Ing. arch. Adam Lukačovič
Rez pozdĺžny
Rez pozdĺžnyAutor: Ing. arch. Adam Lukačovič
Rez priečny
Rez priečnyAutor: Ing. arch. Adam Lukačovič

V interiéri prevládajú pohľadové betónové konštrukcie, ktoré zostali na prvom podlaží priznané. Surovosť sivého betónu je doplnená teplými odtieňmi prírodného dreva na podlahe. Nábytok kombinuje rôzne materiály lakovaných dosiek a dreva.

Foto: Ing. arch. Adam Lukačovič
Foto: Ing. arch. Adam Lukačovič

Komunikačným centrom domu je schodisková galéria, ktorá prepája obe podlažia domu. Otvorenému priestoru s veľkým presklením do átria dominuje konzolové schodisko s drevenými stupňami, kotvenými do betónovej nosnej steny.

Foto: Ing. arch. Adam Lukačovič
Foto: Ing. arch. Adam Lukačovič
Foto: Ing. arch. Adam Lukačovič

Podklady: Adam Lukačovič

Použité materiály a riešenia: 
Okná a dvere Reynaers MasterLine 8 HI, v štrukturálnej povrchovej úprave Coatex
Realizácia interiéru: WOOD & INTERIERS., MDF striekaná v matnom prevedení alebo lesklom Dubová dýha, pracovná doska HI-MACS

Poloha diela

Ing. arch. Adam Lukačovič
Vložené
21. jún 2021
0
6088
Hlavný obsahHlavný obsah
Čakajte prosím