Advertorial

Pozvánka na 2. ročník stavebného veľtrhu BigMarket na Slovensku

Na podujatí sa predstaví až 37 vystavovateľov - popredných dodávateľov stavebných materiálov a inovácií s prezentáciou...

Hotel Hirschen Spa House, Rakúsko

Novotvar v prostredí alpskej obce.

Vytvorte si kúpeľňu snov: dizajnové riešenie od značky hansgrohe

Hansgrohe - prémiová značka kúpeľňových riešení, ponúka nadčasový dizajn, technickú precíznosť a udržateľné inovácie...

Okná Internorm za minuloročné ceny + hliníkový kryt zdarma!

Využite špeciálnu akciu Internorm: okná za minuloročné ceny a hliníkový kryt úplne zadarmo. Ponuka je časovo obmedzená!

Moderné plynové technológie: Efektivita a inovácie pre 21. storočie

Sumarizácia najdôležitejších inovácií, ktoré redefinujúcich využitie tohto energetického zdroja.

Utesňovanie spodných stavieb pomocou hydro-aktívnej fólie AMPHIBIA.

AMPHIBIA 3000 GRIP 1.3 od spoločnosti ATRO predstavuje modernú hydroizolačnú technológiu, ktorá spája vysokú odolnosť,...

Dekarbonizácia individuálneho vykurovania domácností – Green Deal evolučne a nie revolučne

Ambiciózne plány EK narazili na ekonomické možnosti domácností v jednotlivých členských štátoch –...

Minimalistické dvere IDEA – technická precíznosť a čistota prevedenia

IDEA DOOR od spoločnosti JAP prináša do interiéru čistý minimalistický vzhľad vďaka bezrámovému riešeniu a precíznej...

Dom s výhľadom na údolie, Dlouhý Most (ČR)

Kontinuita riešenia od vonkajšieho obkladu až po kovania a kľučky.

Schell Vitus – osvedčené riešenie pre sprchy a umývadlá vo verejnom sektore s viac ako desaťročnou tradíciou

Nástenné nadomietkové armatúry Vitus sú mimoriadne vhodné pre rýchlu a efektívnu...

Kompozitné okná predstavujú súčasnosť a budúcnosť

Okenné profily z kompozitného materiálu RAU-FIPRO X od spoločnosti Rehau sú v porovnaní s tradičnými plastovými profilmi mnohonásobne...

Myotis - stoly 2025

Najnovší sortiment stolov pre zariadenie interiérov...

Priemyselné sklenené priečky Dorsis Digero: svetelné rozhranie pre moderné interiéry

Spojenie moderného dizajnu, funkčnosti a svetla do harmonického architektonického prvku.

Význam prirodzeného svetla pre moderné a flexibilné pracovné prostredie

Kancelárska budova Baumit v slovinskom Trzine prešla premenou na moderné a udržateľné pracovisko. Architekti kládli dôraz...

Konferencia Xella Dialóg predstaví novinky a trendy v stavebníctve

Mottom šiesteho ročníku on-line konferencie odborníkov Xella Dialóg je Efektívny návrh budov 2025+: zmeny a riešenia

Architektúra rovnováhy - diplomová práca

Diplomová práca ocenená v rámci 25. ročníka súťaže o Cenu prof. J. Lacka odmenou PRO FILOZOFIA. Odmena je udeľovaná za inovatívny pohľad a zamyslenie sa nad neudržateľnosťou vývoja problému, ktorý vytvoril človek a len človek ho vyrieši.
Diela
Red 328.10.2015
14590+6
Architektúra rovnováhy - diplomová práca
Autori: Ing. arch. Martin KossuthSpolupráca: Ing. arch, Štefan Zahatňanský (vedúci diplomovej práce)Návrh: 2014 - 2015Adresa: Anička , Košice, SlovenskoPublikované: 28. október 2015

Ľudstvo sa momentálne nachádza na vrchole svojej technologickej úrovne, ktorá tu kedy bola. Od priemyselnej revolúcie náš svet neustále geomericky rastie a pulzuje na energii fosílnych palív. Túto energiu sme sa naučili používať, ale aj zneužívať. Naviaznosť ľudstva na jeden zdroj energie je veľmi nebezpečná. Dá sa ľahko merať, spočítať, naceniť. Toto zjednodušenie odvodené zákonitosťami ekonomiky však odporuje dynaminke of prírody. Rentabilne vytaziteľné zdroje ropy budú podľa odhadov tzv. “Peak Oil" vyčerpané približne v roku 2200. Pritom už dnes vieme že denný prísun slnečnej energie a jej foriem daľeko presahuje potreby ľudstva. Svetovú ekonomiku teda čaká náročná úloha zmeniť zdroj energie pri súčasnom, zrejme neudržateľnom, raste životnej úrovne, ktorá sa môže zmeniť na boj o prežitie. Približne 50% energie spotrebúvajú budovy, teda architektúra. Je životne dôležité už teraz načrtnúť sôsoby, ako oslobodiť architektúru a život v sídlach od jediného zdroja.

Je možné tvoriť svet, ktorý nie len spotrebúva, ale aj dáva?

© Martin Kossuth

Všetko je energia. Hmotné predmety, vzduch, svetlo, teplo, ľudské telo a skutočnosť, že vám znejú tieto slová v hlave je jedna z miliárd prejavov energie. Albert Einstien v roku 1906 predstavil svetoznámu rovnicu E=m.c2, ktorá matematicky priamo spája hmotu a energiu. Tvrdí, že jeden gram hmoty je 25 miliónov kilowatt-hodín energie v čistej forme, čo by vystačilo 40W žiarovke na 71 tisíc rokov svietenia. Ak by sme sa na svet pozreli cez okuliare kvantového fyzika, uvideli by sme okolo seba jeden nekonečný heterogénny oblak energie. Na obrázku vidíte abstrahovanú vizualizáciu vektorov, ukazovateľov smeru toku energie. Príroda sa skladá z miliárd regenerujúcich akcií a reakcí čize energetických udalostí, ktoré v celkovom zúčtovaní smerujú do Entropie. Dôležité pre nás je pochopiť, že všetko, čo si vieme predstaviť je synergicky poprepájané bez akýchkoľvek hraníc. Symbol ohraničenosti sme si vytvorili len my ľudia a ohraničili sme si ním náš Svet. Akákoľvek činnosť –akcia– človeka sa okamžte stáva svojím vykonaním súčasťou ekosystému, inak povedané energetického kolobehu.

© Martin Kossuth

Vektory energie napravo predstavujú vetvičky stromu. Dá sa povedať, že strom je v rovnováhe so svojím prostredím, resp. k nej limituje. Je to spôsobené veľkou hustotou regeneratívnych procesov, ktoré sa prirodzene vyvinuli počas miliárd rokov evolúcie.
Usporiadané sily v ľavej časti predstavujú architektúru, čize výstup ľudskej činnosti, ktorý len veľmi primitívne reaguje na prostredie a jeho potencionálnu viazanú energiu. Fasáda mrakodrapu má vlastnosti, ktoré sa dajú spočítať na prstoch rúk. Toto množstvo spotrebovanej energie–akcie má reakciu niekde v zdevastovanej krajine od ťažby železnej rudy, uhlia až nakoniec sa prejavuje vo forme záplav na úplne inom konci sveta. Teda reakcia nastala, no úplne inej kvality, intenzity a nepozorovane pre používateľa. Z tohto pohľadu je architektúra stále primitívna a mrtvá hmota.

© Martin Kossuth

Architektúra rovnováhy je vyrovnanie kvality ľudských akcií kvalite reakcie prostredia.
Táto môže bude v sebe ukrývať aj riešenia mnohých socioekonomických, kultúrnych a teda aj urbánnych problémov, odvodených z neprirodzenosti súčasných akcií a reakcií. Princípy “všetko je energia" a "všetko je architektúra" sa spoja do architektúry rovnováhy. Nepôjde len o tvorbu hrubej, viditeľnej formy, ale je výsledok komplexného súhrnu poznania energií tohto sveta. Čím viac faktorov – akcií poznáme a pri návrhu zohľadníme, tým viac sa priblížime skutočnej komplexnosti prírody.
Faktory ktoré, som si ja ako autor vybral a pokúšam sa zohľadniť pri návrhu rozdeľujem do troch hlavných tém: forma nasleduje energiu, ľudská aktivita, bioaktivita medzi ktorými vždy hľadám fraktálny proporčný vzťah od mikro po makro merítko presne tak, ako sa to odohráva v prírode.

© Martin Kossuth

Lokalitou riešeného územia je v rámci územného plánu mesta Košice nedoriešená oblasť "Anička". Pre domácich obyvateľov je oblasť známa bohatými možnosťami rekreácie v relatívnej blízoksti centra mesta. Cieľom mojej práce bolo navrhnúť udržateľnú sebestačnú mestskú štvrť demonštrujúcu teoretický základ diplomovej práce.

© Martin Kossuth

Forma nasleduje energiu

Základným prvkom urbanizácie je komunikačná sieť umožnujúca pohyb chodcov, tovaru, služieb, dopravných prostriedkov a mestskej infraštruktúry. Urbánna sieť by mala opäť násť svoje miesto v širšom fraktále transportných sýstémov a proprčne zapadnúť medzi regionálnu dopravnú sieť a dispozičné komunikácie budov. Architekt Otto Frei testoval rôzne urbanizačné vzory na základe geometrických príkladov v prírode. Jedna z nich je štruktúra, ktorá "hľadá" minimálne cesty medzi viacerými bodmi naraz. Cestná komunikácia poslúži na výmeny a presuny ľudí a tovarov medzi susedstvami, mestami. Nadaľej bude pôsobiť ako atraktor urbanizácie, čo sa prejavuje plošne a podlažne. Maximálna podlažnosť spočíva v tendencii prinavrácania merítka miest ktoré boli navrhované podĺa modulu človek. Jan Gehl a iní presadzujú maximálne 4 podlažia, pretože ľudia vo vyšších budovách už strácajú kontakt s okolitým prostredím. Do max. piatich podlaží dokážeme komunikovať s ľudmi, ktorí su na zemi vizuálne a akusticky.

© Martin Kossuth
© Martin Kossuth
© Martin Kossuth

Na simulácii ja zoskupenie hmôt automaticky navrhnuté tak, aby si vzájomne nezakrývali potenciálne radiačné zisky.Situácia kedy podmienky sú identické no výstupy so rozdielne naznačuje nutný mini-evolučný proces pokusov a omylov o nájdenie toho najlepšieho riešenia. Vplyv na rozmiestnenie a polohu urbanistických prvkov majú potenciál dotvárať dalšie a dalšie faktory ako napríklad urbanistický hluk, prirodzené bio polia a pôsobiace elektormagnetické polia spôsobené vysokým napätím. Stojí pred nami celý vesmír situácií a ich možných riešení, alebo inak, akcií a reakcií.

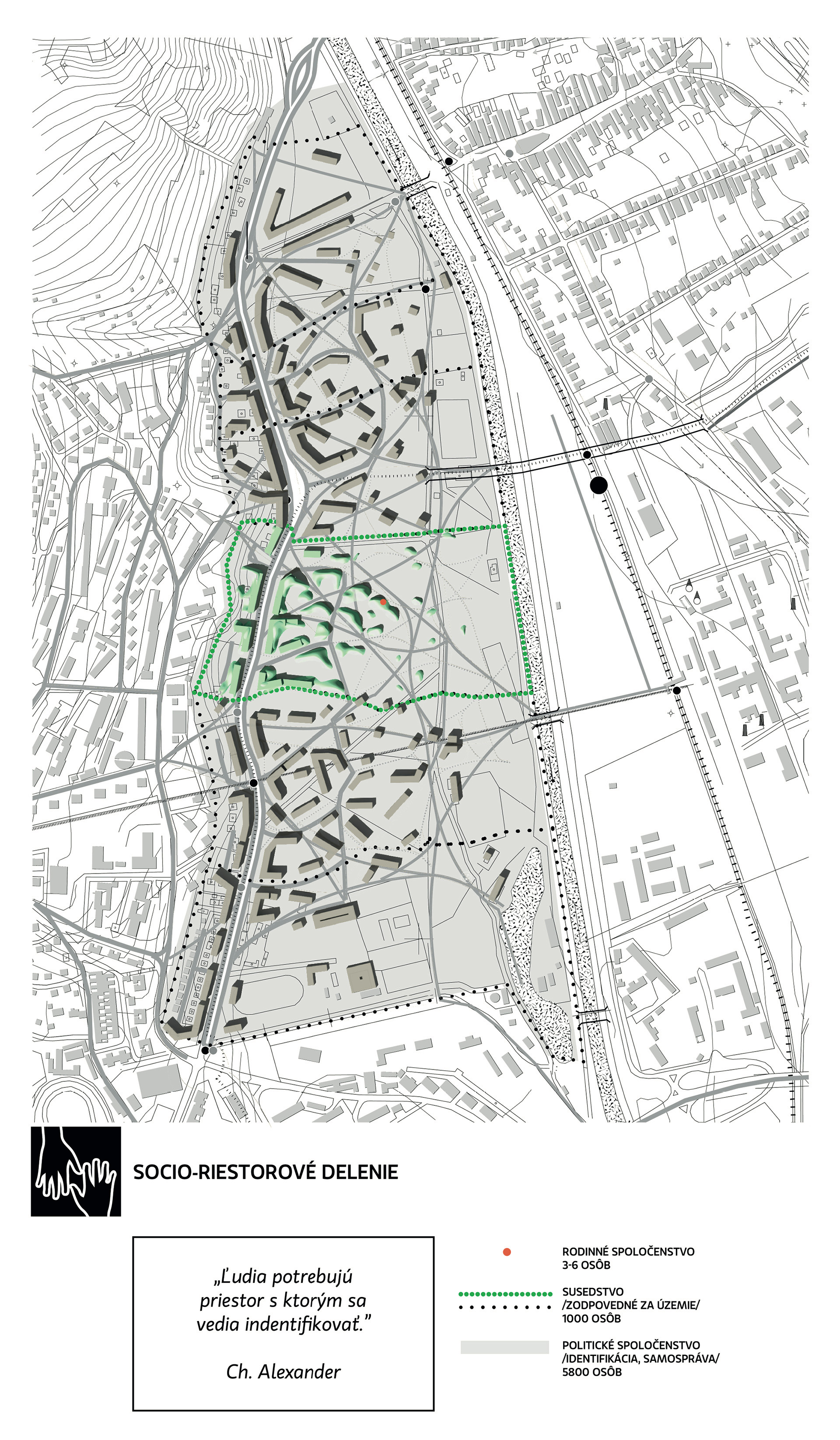
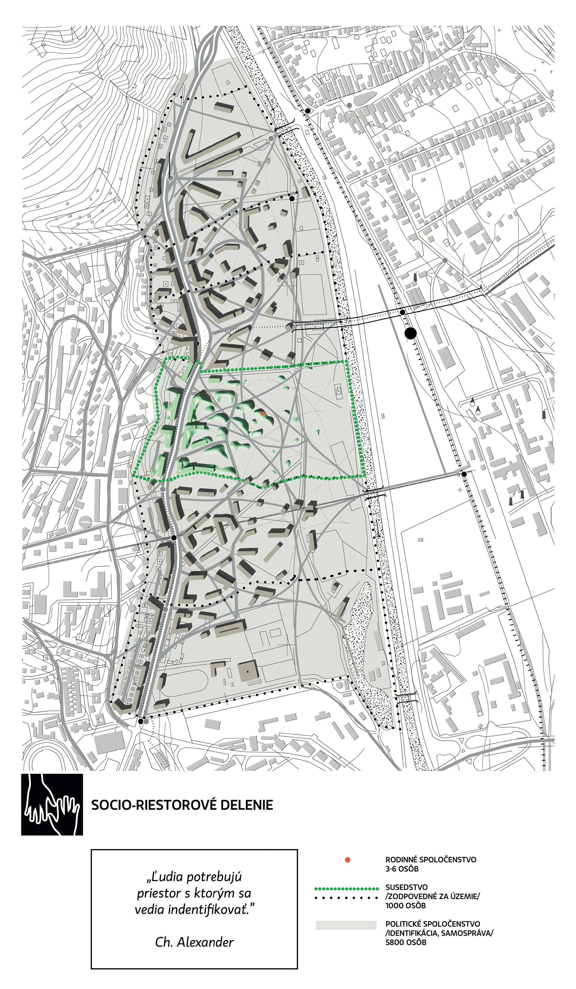
Socio priestorové delenie

Neudržateľnosť ako problém, ktorý táto práca pojednáva vytvoril človek a len človek ho vyrieši. Každé jedno rozhodnutie jednotlivca má priamy dopad na sociálne a ekonomické enviromentálne prostredie od najmenšieho po najväčšie merítko. Dá sa povedať že naše myslenie má silu. Podoba sveta je odrazom nášho myslenia a len jeho zmenou máme silu svet zmeniť. Myslenie viacerých osôb silu násobí. Každý obyvateľ mesta ma energiu, ktorá vie byť správne aktivovaná a usmernená. Je len na architektovi či tanto potenciál využije.

Ako vieme navrhovať v rovnováhe s prostredím tak, aby sme nikomu nič neprikazovali, nezakazovali? Naopak ho podporovali v rozvíjaní svojích prirodzených daností ktorými môže priložiť ruku k dielu spoločnosti?

© Martin Kossuth

Urbanizmus je najväčšie merítko, ktoré svojou formou presahuje vizuálne a fyzické schopnosti jedného človeka. Kde vlastne toto merítko začína, kde končí? Za základný kameň mesta považuje architekt a matematik Christopher Alexander za tzv. Komunita 7000 (Community of 7000). Táto komunita s decentralizovanou samosprávou v rámci mestského celku, je výsledkom mnohých štúdií na tému "veľkosť politickej komunity", ktorá sa ustálila v rozmedzí 5000 – 10 000 obyvaťeľov. Čím decentralizovanejšiu štruktúru vytvoríme tým zodpovednejšia–udržateľnejšia jednotka vznikne.
V zmysle konám lokálne myslím globálne sme dnes na túto zmenu viac než pripravení aj vďaka informačným a telekomunikačným technológám – neurónovým sieťam tohto sveta vieme byť v spojení s akýmkoľvek kútom –bunkou– sveta v digitálnej forme. Prácu s hrubo-hmotným svetom tovarov a energií ponechávame len na lokálne merítko. Práve vysoko rozvinutá svetová nákladná doprava nám znemožnuje mať empiricky pod dohľadom nakladanie so zdrojmi.

"Ľudia potrebujú priestor s ktorým sa vedia identifikovať."

Alexander tento pristor nazýva Susedstvo o počte približne 500-1000 obyvateľov. To je stupeň nižsie merítko ako "skupina 7000" teda krok od politicky zodpovednej skupiny na pristorovo zodpovednú. Čím viac energetických kolobehov vnesieme do susedstva, tým viac priamej zodpovednosti od je rezidentov dostaneme späť.

© Martin Kossuth

Takmer všetky rozvinuté krajiny sveta fungujú na veľmi neproporčnej komunikačno-dopravnej schéme bytová jednotka – Zem. Všetky tovary, služby energie a odpady ktoré používame a vypúšťame pochádzajú z neviditeľného imaginárneho miesta, alebo sa doň vracajú. Inak povedané proces výmeny energií nevidíme. Ak ho nevidíme nevieme ani odhadnúť našu vlastnú zodpovednosť a správnu mieru využívania a re-užívania zdrojov.
Riešením je teda lokalizovanie energetických procesov v čo najväčšej miere. Transparentná premena Slnečnej energie, jej spotreby, výroba potravín, produkcia bio-paliva, recyklácia, vodný cyklus a iné, ktorým sa ešte budem venovať. Ak k svojmu prostrediu nebude mať človek citový vzťah, nebude mať žiadne prostredie.

© Martin Kossuth

Susedstvo vo svojom urbanizme potrebuje mať zadefinované centrum – jadro kde sa koncentruje informačná, samosprávna, identifikčná hodnota. Je to zároveň priestor, kde sa technologicky spravuje kolobeh kolobeh energií v rámci susedstva a zároveň priestor na zdieľanie predmotev a služieb, ktoré nepotrebuje každá domácnosť denne, či týždenne. Miesto, kde ľudia komunikujú o svojom životnom priestore od rodiny, susedstva, komunity, mesta regiónu...
Susedstvo je v dnešnom slovníku aj skupina akcionárov jeho územia, kde za svoj vstup majú možnosť spravovať a rozvíjať nie len svoj byt, ale aj k nemu externe prináležiace služby výroby, spravovania, zdieľania.

© Martin Kossuth
© Martin Kossuth

Bio energia

© Martin Kossuth

Akýkoľvek organizmus na tejto planéte je energeticky efektívnejší, než najpokročilejší ľudský technologický výtvor. Prečo technológiami veľakrát vytvárame umelú "prírodu"? Prečo vlastnú cestu riešenia problémov nepreskočíme a nevyužívame priamojej potenciál? Môžeme mu napomôcť, usmerniť ho no presné zreplikovanie "dokonalosti" organických systémom by nám trvalo nesmierne dlhý čas a neúmerné množstvo zdrojov. Nedá sa to generalizovať, no minimálne pri hospodárení so základnými energiami (teplo, potraviny, recyklácia) je možné takmer úplne nahradiť technológie za bio-potenciál.

© Martin Kossuth

Na obrázku vidíme analýzu slnečnej radiácie a sklonu dopadajúcich lúčov na povrch anonymného objektu. Ten svojím konkávnym škrupinovým tvarom sleduje slnečné lúče v zimnom období. V letnom období sa však slnečnej energii pomerne silno otvára. V zásade Fullerovho výroku "Nebráňme sa energii, ale použime ju" sa nám otvára otázka, ako túto prebytkovú energiu slnka využiť? Neboli by sme dľeko keby sme odpovedali, rovnako ako strom. Spomínaná alternatíva fotovoltickým panelom využívajúca bio-potenciál riasy reaguje na prostredie totožne, ako listy stromu. Niekoľko rokov túto koncepciu testúje štúdio Eco-logic, ktoré navrhlo vlastnú tieniacu konštrukciu pre pavilón Expo v Miláne 2015. Využíva rast riasy na tienenie a zároveň ako konzervátor slnečnej energie do biomasy. Táto konštrukcia vyprodukuje kyslík ekvivalentne k 4 hektárom lesa a 150kg biomasy za jeden deň z ktorej 60% sú prírodné rastlinné bielkoviny.

foto: ecologicstuido.com

Je len otázkou času, kedy tieto systémy úspešne aplikujeme aj priamo na fasády budov, najmä na tie, ktoré budú mať povrchovej radiácie prebytok. Budova sa týmto stane rovnako reaktívna na počasie počas roka ako okolitá flóra. Riasa vyživovaná anorganickými látkami z človekom vytvoreného kompostu rastom získava okolitú energiu a vracia ju spät. Vzniká vlastný lokálny energetický kolobeh budovy. Začiatok cesty k samostanému metabolizmu. Človekom usmernený potenciál miliárd nanometrových pomocníkov z praveku nám pomôže ozdraviť tento svet. Kľúčová vlastnosť – adaptabilita životného prostredia je jednou z najdôležitejších vlastností, ktoré by sme mali v budúcnosti doslova pestovať.

© Martin Kossuth
© Martin Kossuth
© Martin Kossuth

Obrázky. reaktivita a adaptabilita objektov na zmenu počasia

Využitím huby na výrobu bio-kompozitov môže vzniknúť celý nový odbor spracovávania a tvarovanie kompozitu do predmetov dennej spotreby, či nábytku. Bio-materiály priaznivo pôsobia ce celkové biopole interiéru a podvedomú psychologickú pohodu. Absorbujú neprijemé všadeprítomné elektromagnetické žiarenia. Používanie materiálov, ktoré vznikajú a zanikajú v danej lokalite napr. "Susedstva" je ideálny predpoklad pre architektúru v rovnováhe s prostredím.

© Martin Kossuth
© Martin Kossuth

Stavebné materiály sa dnes vyrábajú na zaklade ortogonálnych modulových koordinačných noriem z ktorých je ideálne postaviť fraktálne podobné objekty. Všetky „voľnejšie" návrhy sú v kontraprodukcii s konštrukčnými metódami týchto materiálov. Teda formy nezodpovedajú tektonike materiálu. Napríklad tento nový biokompozitný stavebný materiál a jeho konštrukčná metóda majú šancu úplne oslobodiť architektúru od modularity, k voľnosti nasledovania energie.

Skok vpred

Architektúra rovnováhy v svojom holistickom ponímaní sveta nutne zahrňuje resp. rozširuje architektúru na ešte multidisciplinárnejší odbor obohatený o informatiku, biológiu, kvantovú fyziku, psychológiu človeka a mnohé iné disciplíny budúcnosti. Presúva zodpovednosť za životné prostredie z umelých technických riešení priamo na veľký potenciál človeka v skupine–spoločnosti. Svojou zložitosťou bude kvôli hromadeniu poznania, teda komplexnosti väzieb, architektova a výpočtová záťaž geometricky rásť. Nepretržitý zber informácií a kreovanie návrhu bude postupne prenesené na plecia inteligencie života: bio-technológií. Raz budú budovy intuitívne cítiť, rásť, adaptovať sa na zmenu počasia a regulovať vzťah k svojmu prostrediu a človeku. Stanú sa živou entitou a prirodzenou súčasťou prostredia v rovnováhe.

Budúcnosťou je rastúca architektúra
Budúcnosťou je rastúca architektúra© Martin Kossuth
© Martin Kossuth
© Martin Kossuth

podklady: Ing. arch. Martin Kossuth

Poloha diela

Ing. arch. Martin Kossuth
Vložené
28. október 2015
0
1459
Hlavný obsahHlavný obsah
Čakajte prosím