Advertorial

Pozvánka na 2. ročník stavebného veľtrhu BigMarket na Slovensku

Na podujatí sa predstaví až 37 vystavovateľov - popredných dodávateľov stavebných materiálov a inovácií s prezentáciou...

Hotel Hirschen Spa House, Rakúsko

Novotvar v prostredí alpskej obce.

Vytvorte si kúpeľňu snov: dizajnové riešenie od značky hansgrohe

Hansgrohe - prémiová značka kúpeľňových riešení, ponúka nadčasový dizajn, technickú precíznosť a udržateľné inovácie...

Okná Internorm za minuloročné ceny + hliníkový kryt zdarma!

Využite špeciálnu akciu Internorm: okná za minuloročné ceny a hliníkový kryt úplne zadarmo. Ponuka je časovo obmedzená!

Moderné plynové technológie: Efektivita a inovácie pre 21. storočie

Sumarizácia najdôležitejších inovácií, ktoré redefinujúcich využitie tohto energetického zdroja.

Utesňovanie spodných stavieb pomocou hydro-aktívnej fólie AMPHIBIA.

AMPHIBIA 3000 GRIP 1.3 od spoločnosti ATRO predstavuje modernú hydroizolačnú technológiu, ktorá spája vysokú odolnosť,...

Dekarbonizácia individuálneho vykurovania domácností – Green Deal evolučne a nie revolučne

Ambiciózne plány EK narazili na ekonomické možnosti domácností v jednotlivých členských štátoch –...

Minimalistické dvere IDEA – technická precíznosť a čistota prevedenia

IDEA DOOR od spoločnosti JAP prináša do interiéru čistý minimalistický vzhľad vďaka bezrámovému riešeniu a precíznej...

Dom s výhľadom na údolie, Dlouhý Most (ČR)

Kontinuita riešenia od vonkajšieho obkladu až po kovania a kľučky.

Schell Vitus – osvedčené riešenie pre sprchy a umývadlá vo verejnom sektore s viac ako desaťročnou tradíciou

Nástenné nadomietkové armatúry Vitus sú mimoriadne vhodné pre rýchlu a efektívnu...

Kompozitné okná predstavujú súčasnosť a budúcnosť

Okenné profily z kompozitného materiálu RAU-FIPRO X od spoločnosti Rehau sú v porovnaní s tradičnými plastovými profilmi mnohonásobne...

Myotis - stoly 2025

Najnovší sortiment stolov pre zariadenie interiérov...

Priemyselné sklenené priečky Dorsis Digero: svetelné rozhranie pre moderné interiéry

Spojenie moderného dizajnu, funkčnosti a svetla do harmonického architektonického prvku.

Význam prirodzeného svetla pre moderné a flexibilné pracovné prostredie

Kancelárska budova Baumit v slovinskom Trzine prešla premenou na moderné a udržateľné pracovisko. Architekti kládli dôraz...

Konferencia Xella Dialóg predstaví novinky a trendy v stavebníctve

Mottom šiesteho ročníku on-line konferencie odborníkov Xella Dialóg je Efektívny návrh budov 2025+: zmeny a riešenia

Identita miesta: Obytný súbor Podkonice - študentská práca

Študentská práca z fakulty architektúry STU, ktorá získala odmenu v súťaži o Cenu profesora Emanuela Hrušku 2017 za najlepšiu urbanistickú seminárnu prácu.
Diela
Red 401.08.2017
11180+17
Identita miesta: Obytný súbor Podkonice - študentská práca
Autori: Soňa Horváthová, Henrieta HlaváčováNávrh: 2017 - 2017Adresa: Podkonice, SlovenskoPublikované: 1. august 2017

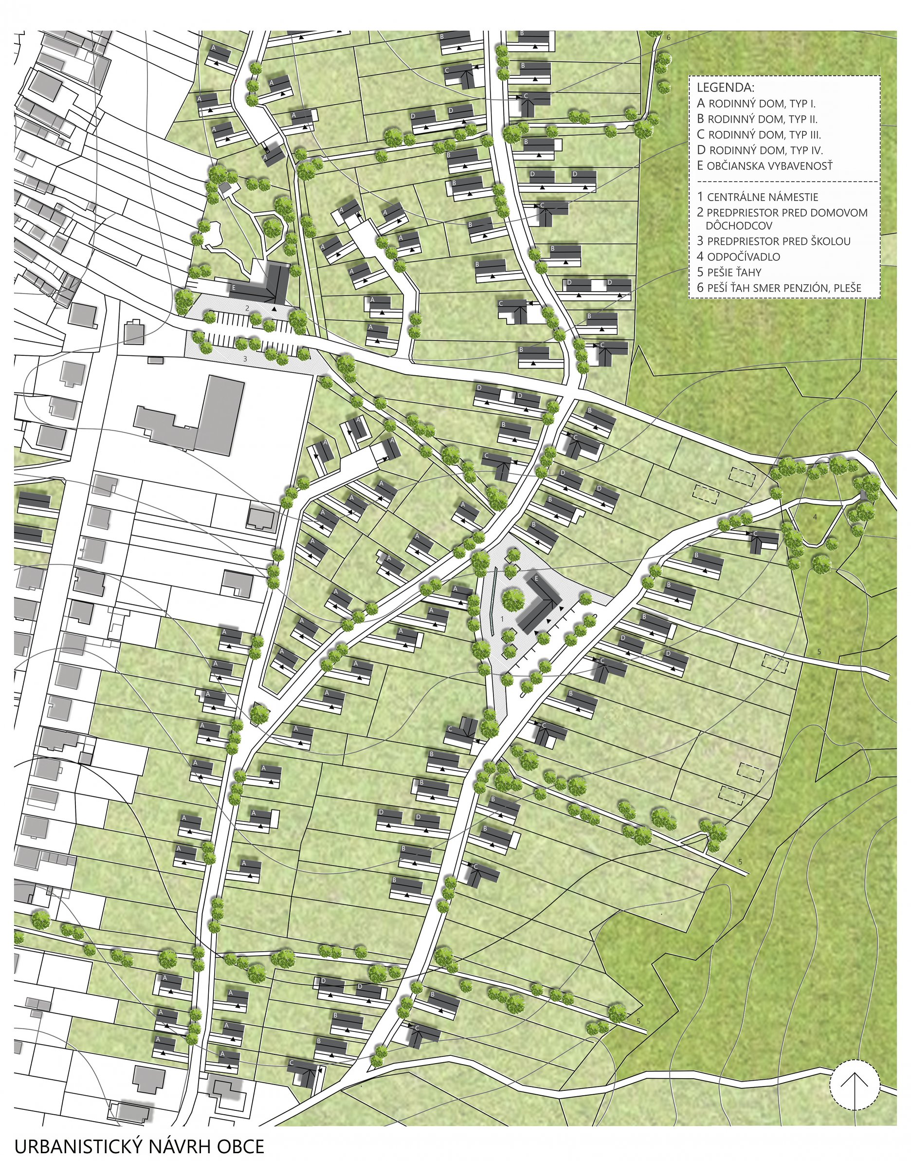
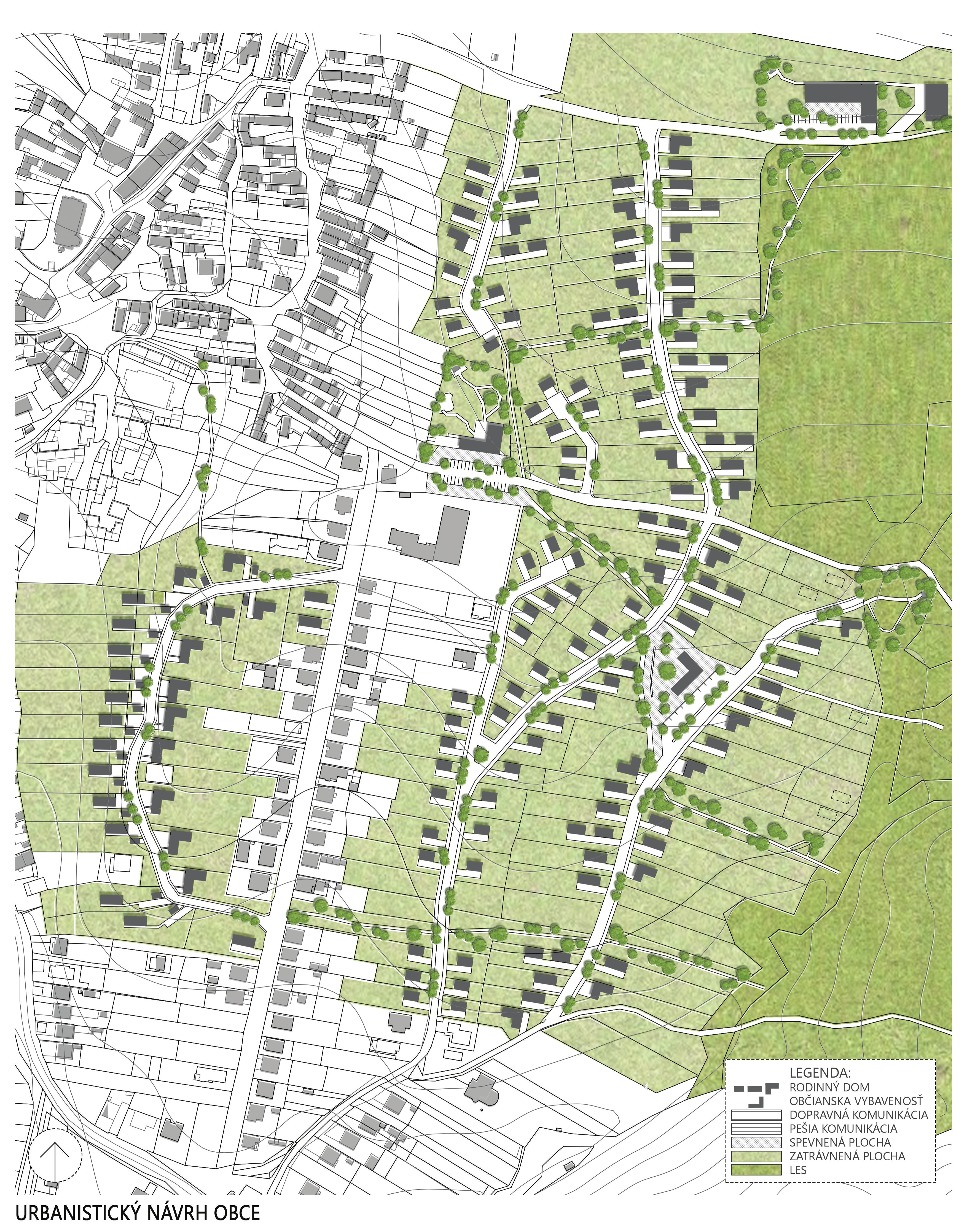
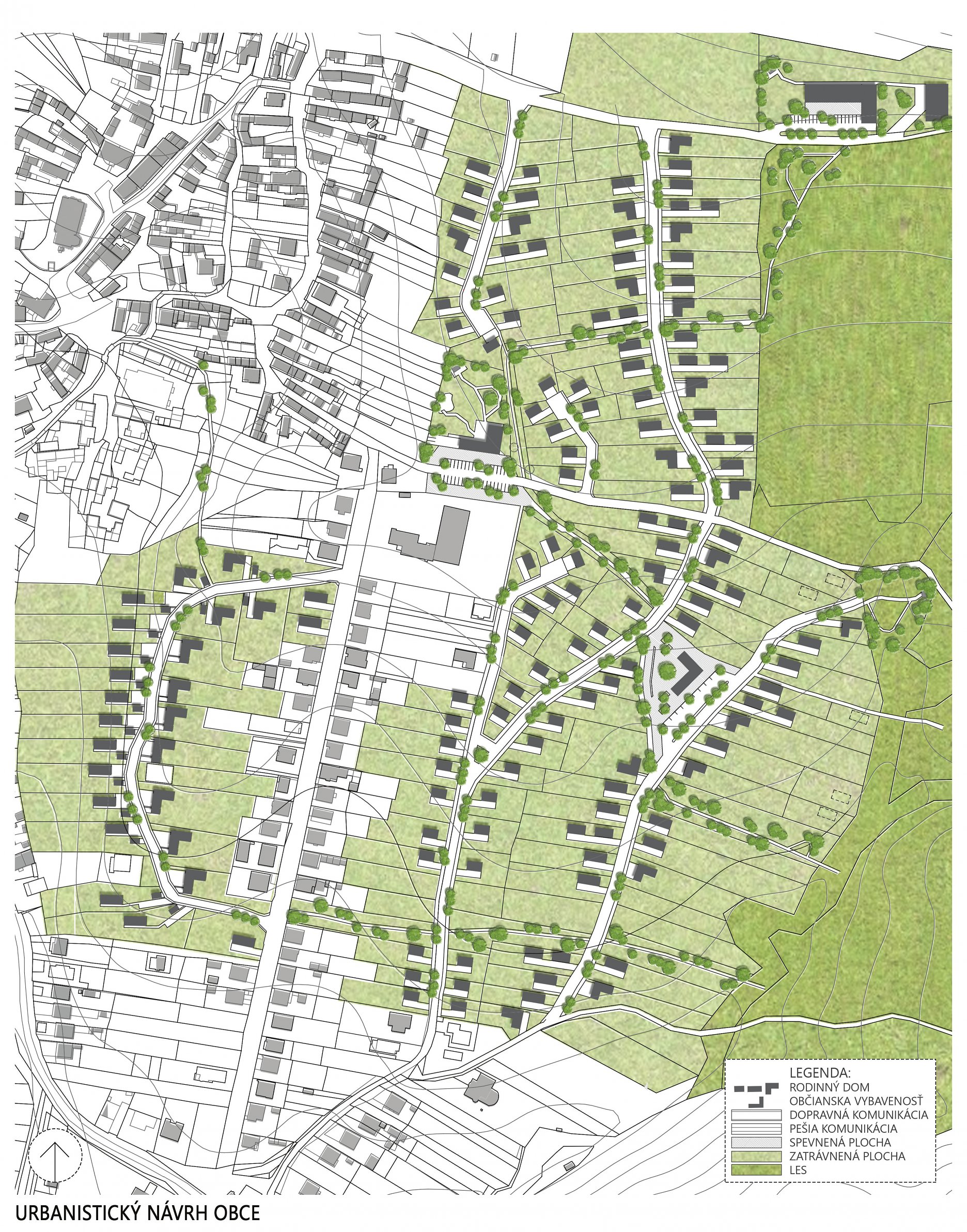
Riešené územie sa nachádza na strednom Slovensku, v Banskobystrickom okrese. Z južnej strany sa nachádza Slovenská Ľupča, zo západu Baláže, Priechod a Selce a z východnej časti Moštenica, Hiadeľ a Lučatín. Zo severnej strany obec obklopujú Starohorské vrchy. Riešené časti sa nachádzajú jednak v strede územia, na lúke, ktorá je doposiaľ zastavaná dvomi rodinnými domami a na východnej časti obce, kde sú rozsiahle polia. V obci chýba väčšie centrum a taktiež občianska vybavenosť.

Letecká fotografia územia
Letecká fotografia územia

Hlavnou ideou návrhu bolo vytvoriť  novú obytnú štruktúru pre rôzne vekové a sociálne kategórie, korešpondujúcu s pôvodnou zástavbou obce, a taktiež v náväznosti na pôvodnú zástavbu vybudovať pešie a dopravné napojenie či nové centrum.

Nová zástavba vo východnej časti obce ponúka štyri typy rodinných domov s charakteristickou dlhou dispozíciou a sedlovou strechou. Tie sú hierarchicky radené na uliciach. Prvý typ rodinného domu s plochou 60 m2 predstavuje menší bungalov pre mladé páry, ktoré sa rozhodli pre bývanie v rodinnom dome. Druhú skupinu predstavujú domy o výmere 90 m2 pre trojčlenné rodiny, a tretiu pre štvorčlenné rodiny o výmere 120 m2. Posledný typ predstavuje viac-generačné bývanie, kde na pozemku sa nachádzajú dva rodinné domy, spolu o výmere 144 m2. Pozemky majú charakter dlhých, typických vidieckych dvorov, čo ponúka možnosť venovať sa poľnohospodárstvu, či v budúcnosti rozšíriť zástavbu, prípadne až rozdeliť pozemok z dvoch strán.

V centre riešeného územia sa nachádza občianska vybavenosť vo forme obchodu a menších služieb, ktorá je prepojená dopravnými aj pešími ťahmi v novej aj starej časti Podkoníc. Medzi starým a novým centrom sa nachádza existujúca základná a materská škola, ku ktorej sme doplnili domov dôchodcov a predpriestory, ktoré vybavenosti chýbali.

V severnej časti pozemku navrhujeme penzión s chovom koní pre návštevníkov obce, ktorý ponúka ubytovanie, oddych a atrakcie.

Celým územím sú priečne vedené pešie chodníky, ktoré na jednej strane prepájajú starú a novú časť a na strane druhej vedú do okolitej prírody, či na oddychové miesta v podobe altánkov a ihrísk. Hlavná pešia trasa prepája staré centrum, školu s domovom dôchodcov, nové centrum a taktiež penzión. Je charakterizovaná zelenou alejou a oddychovými odstavnými plochami s lavičkami.

Stredné územie, na ktorom sa v súčasnosti už nachádzajú dva rodinné domy sme vďaka terénu využili na zástavbu jednak vilových domov a jednak na zasadenie typických pozdĺžnych rodinných domov do terénu. V rámci tohto priestoru je tak možné vidieť celú obec a taktiež výhľad na okolitú prírodu.  Nová zástavba uzatvára obec z východnej časti, čo bolo kvôli novo-vytvoreným uliciam v existujúcej zástavbe v pozdĺžnom smere narušené a obec tak strácala svoje charakteristické urbanistické črty.

Podklady: Henrieta Hlaváčová, Soňa Horváthová

Poloha diela

Soňa Horváthová
Henrieta Hlaváčová
Vložené
1. august 2017
0
1118
Hlavný obsahHlavný obsah
Čakajte prosím