Advertorial

Pozvánka na 2. ročník stavebného veľtrhu BigMarket na Slovensku

Na podujatí sa predstaví až 37 vystavovateľov - popredných dodávateľov stavebných materiálov a inovácií s prezentáciou...

Hotel Hirschen Spa House, Rakúsko

Novotvar v prostredí alpskej obce.

Vytvorte si kúpeľňu snov: dizajnové riešenie od značky hansgrohe

Hansgrohe - prémiová značka kúpeľňových riešení, ponúka nadčasový dizajn, technickú precíznosť a udržateľné inovácie...

Okná Internorm za minuloročné ceny + hliníkový kryt zdarma!

Využite špeciálnu akciu Internorm: okná za minuloročné ceny a hliníkový kryt úplne zadarmo. Ponuka je časovo obmedzená!

Moderné plynové technológie: Efektivita a inovácie pre 21. storočie

Sumarizácia najdôležitejších inovácií, ktoré redefinujúcich využitie tohto energetického zdroja.

Utesňovanie spodných stavieb pomocou hydro-aktívnej fólie AMPHIBIA.

AMPHIBIA 3000 GRIP 1.3 od spoločnosti ATRO predstavuje modernú hydroizolačnú technológiu, ktorá spája vysokú odolnosť,...

Dekarbonizácia individuálneho vykurovania domácností – Green Deal evolučne a nie revolučne

Ambiciózne plány EK narazili na ekonomické možnosti domácností v jednotlivých členských štátoch –...

Minimalistické dvere IDEA – technická precíznosť a čistota prevedenia

IDEA DOOR od spoločnosti JAP prináša do interiéru čistý minimalistický vzhľad vďaka bezrámovému riešeniu a precíznej...

Dom s výhľadom na údolie, Dlouhý Most (ČR)

Kontinuita riešenia od vonkajšieho obkladu až po kovania a kľučky.

Schell Vitus – osvedčené riešenie pre sprchy a umývadlá vo verejnom sektore s viac ako desaťročnou tradíciou

Nástenné nadomietkové armatúry Vitus sú mimoriadne vhodné pre rýchlu a efektívnu...

Kompozitné okná predstavujú súčasnosť a budúcnosť

Okenné profily z kompozitného materiálu RAU-FIPRO X od spoločnosti Rehau sú v porovnaní s tradičnými plastovými profilmi mnohonásobne...

Myotis - stoly 2025

Najnovší sortiment stolov pre zariadenie interiérov...

Priemyselné sklenené priečky Dorsis Digero: svetelné rozhranie pre moderné interiéry

Spojenie moderného dizajnu, funkčnosti a svetla do harmonického architektonického prvku.

Význam prirodzeného svetla pre moderné a flexibilné pracovné prostredie

Kancelárska budova Baumit v slovinskom Trzine prešla premenou na moderné a udržateľné pracovisko. Architekti kládli dôraz...

Konferencia Xella Dialóg predstaví novinky a trendy v stavebníctve

Mottom šiesteho ročníku on-line konferencie odborníkov Xella Dialóg je Efektívny návrh budov 2025+: zmeny a riešenia

Sauna na Zahradě, Trutnov

Sympatický lockdownový projekt, ktorý zlepší náladu (nielen) počas upršaných dní.
Diela
Šimon Semerák01.04.2022
14540+33
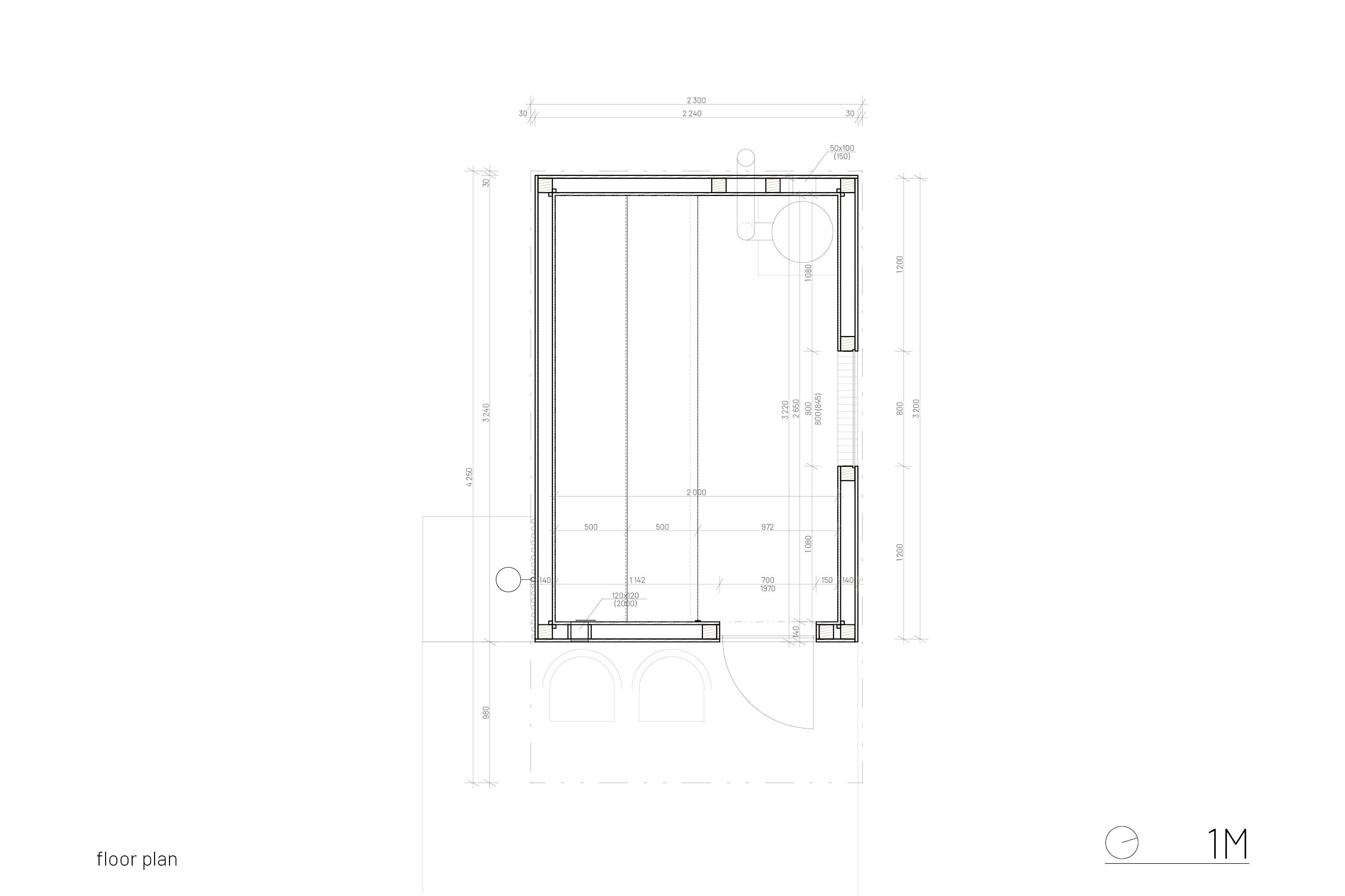
Sauna na Zahradě, Trutnov
Ateliér: TAMTIarchitektiAutori: Bc. Šimon Semerák (Architekt)Investor: Jan SemerákZastavaná plocha: 7,5 m2Podlažná plocha: 6 m2Investičný náklad: 100 000 ,-Návrh: 10 - 11Realizácia: 11 - 12Adresa: K Šancím 143, Trutnov, Česká republikaPublikované: 1. apríl 2022

Saunu jsem dělal pro svého otce. Byla to přirozená reakce na uzavření všech veřejných wellness kvůli coronaviru. Malý objekt stojící na zahradě, který svým vzhledem připomíná spíše kůlnu na nářadí o své skutečné funkci nenápadně napovídá drobným komínem a kruhovým oknem.

Konstrukčně i materiálově se jedná o dřevostavbu. Krom dřeva a spojovacího materiálu je použitý jen vlnitý plech na střechu a staré pneumatiky na založení. Sauna je vytápěna dřevem pomocí kamen o výkonu 16 kW.

Opálené smrkové fošny tvoří vnější plášť. Zevnitř je sauna obložena měkkým, ale beze smolným severským smrkem. Stavba je založena na starých pneumatikách vymlácených štěrkem, které tvoří pevné a zároveň vodopropustné patky. Vlnitý plech je jednak použitý jako střešní krytina a je vykonzolován nad vchodem, dále je pak použitý jako ochrana dřevěné stěny u sprchy připevněné na levě straně sauny.

Sauna má půdorysné rozměry 2x3 m a světlou výšku 2 m. V interiéru jsou ve dvou výškových úrovních umístěny 3 m dlouhé, dřevěné lavice a maximální kapacita je 4 až 6 osob. Venku je sauna osvětlena žárovkou zapuštěnou do dřevěného pláště sauny, v interiéru je pak osvětlena pomocí stmívatelného LED pásku umístěného pod spodní lavicí.

Poloha diela

Bc. Šimon Semerák
Vložené
23. február 2021
0
1454
Hlavný obsahHlavný obsah
Čakajte prosím