Novotvar v prostredí alpskej obce.
Hansgrohe - prémiová značka kúpeľňových riešení, ponúka nadčasový dizajn, technickú precíznosť a udržateľné inovácie...
Využite špeciálnu akciu Internorm: okná za minuloročné ceny a hliníkový kryt úplne zadarmo. Ponuka je časovo obmedzená!
Na podujatí sa predstaví až 37 vystavovateľov - popredných dodávateľov stavebných materiálov a inovácií s prezentáciou...
Sumarizácia najdôležitejších inovácií, ktoré redefinujúcich využitie tohto energetického zdroja.
AMPHIBIA 3000 GRIP 1.3 od spoločnosti ATRO predstavuje modernú hydroizolačnú technológiu, ktorá spája vysokú odolnosť,...
Ambiciózne plány EK narazili na ekonomické možnosti domácností v jednotlivých členských štátoch –...
IDEA DOOR od spoločnosti JAP prináša do interiéru čistý minimalistický vzhľad vďaka bezrámovému riešeniu a precíznej...
Kontinuita riešenia od vonkajšieho obkladu až po kovania a kľučky.
Nástenné nadomietkové armatúry Vitus sú mimoriadne vhodné pre rýchlu a efektívnu...
Okenné profily z kompozitného materiálu RAU-FIPRO X od spoločnosti Rehau sú v porovnaní s tradičnými plastovými profilmi mnohonásobne...
Najnovší sortiment stolov pre zariadenie interiérov...
Spojenie moderného dizajnu, funkčnosti a svetla do harmonického architektonického prvku.
Kancelárska budova Baumit v slovinskom Trzine prešla premenou na moderné a udržateľné pracovisko. Architekti kládli dôraz...
Mottom šiesteho ročníku on-line konferencie odborníkov Xella Dialóg je Efektívny návrh budov 2025+: zmeny a riešenia

V nasledujúcich rokoch by malo na Slovensku pribudnúť minimálne 126 zrekonštruovaných alebo novopostavených zariadení sociálnych služieb. Ministerstvo práce sociálnych vecí a rodiny otvorilo výzvu pre samosprávy, ale aj súkromné firmy financovanú z plánu obnovy v celkovej výške 192 miliónov eur. Keďže budú podporené aj menšie zariadenia, časť klientov súčasných zariadení sa bude môcť premiestniť do zariadení rodinného typu. Vo výsledku pôjde o 67 ambulantných zariadení sociálnych služieb, 43 nízkokapacitných pobytových zariadení s maximálnym počtom do 12 klientov a 16 sociálno-zdravotných zariadení s kapacitou do 30 miest.
Rezort v spolupráci s FAD STU pripravil katalóg architektonických štúdií (spolu 20 projektov), s cieľom uľahčiť žiadateľom prípravu projektu.
Modelové riešenia boli vypracované pre rôzne typy zástavby, orientácie a svahovitosti pozemku, pričom kladú dôraz na naplnenie kritérií deinštitucionalizácie a požiadaviek univerzálneho navrhovania.
Jednotlivé štúdie budeme publikovať na pokračovanie (viď. súvisiace články na konci príspevku). Po riešeniach pre ambulantné zariadenia sociálnej služby, ktoré sme predstavili v predchádzajúcich troch článkoch, dnes prejdeme k prvým trom projektom pre Nízkokapacitné pobytové sociálne služby s kapacitou do 12 miest.
Viac o prezentovaných výstupoch v texte docentky Lei Rollovej:
Zamestnanci a študenti Fakulty architektúry a dizajnu STU vypracovali v rámci Bellušových ateliérov architektonické štúdie pre Plán obnovy a odolnosti - komponent 13 Dostupná a kvalitná dlhodobá sociálno-zdravotná starostlivosť.
Zverejnené architektonické štúdie, spracované pod dohľadom doc. Rollovej, sú výsledkom dlhoročného výskumu univerzálneho navrhovania a adaptabilného bývania
Táto zákazka sa realizovala vďaka spolupráci zamestnancov CEDA1 s Ministerstvom práce sociálnych vecí a rodiny na projektoch financovaných z Európskeho sociálneho fondu, operačného programu Ľudské zdroje (od roku 2013). Napríklad v rámci partnerského projektu "Deinštitucionalizácia zariadení sociálnych služieb - Podpora transformačných tímov" poskytujú odborníci na univerzálne navrhovanie zapojeným zariadeniam sociálnych služieb odborné vzdelávanie a konzultácie pri príprave transformačných plánov a investičných procesov. Všetky projekty financované z Európskej únie musia totiž napĺňať článok 9 Prístupnosť z Dohovoru o právach osôb so zdravotným postihnutím a všetky novo registrované zariadenia sociálnych služieb musia spĺňať tiež princípy univerzálneho navrhovania, ako je uvedené v podmienkach kvality zákona o sociálnych službách2.
Do riešenia európskych projektov v rámci OP Ľudské zdroje je v súčasnosti zapojených viac ako 40 zamestnancov Fakulty architektúry a dizajnu STU (viac informácii o projektoch na webovej stránke fakultného pracoviska CEDA).
(1) Pracovisko CEDA – Centre of Design for All / Výskumné a školiace centrum bezbariérového navrhovania, Fakulta architektúry a dizajnu STU
(2) Zákon č. 448/2008 Z. z. Zákon o sociálnych službách a o zmene a doplnení zákona č. 455/1991 Zb. o živnostenskom podnikaní (živnostenský zákon) v znení neskorších predpisov, Príloha číslo 2 Podmienky kvality poskytovania sociálnej služby, 4.1. Kritérium
Jednotlivé typy štúdií zverejňujeme v členení podľa sociálnych služieb, ktoré sú predmetom podpory výzvy:
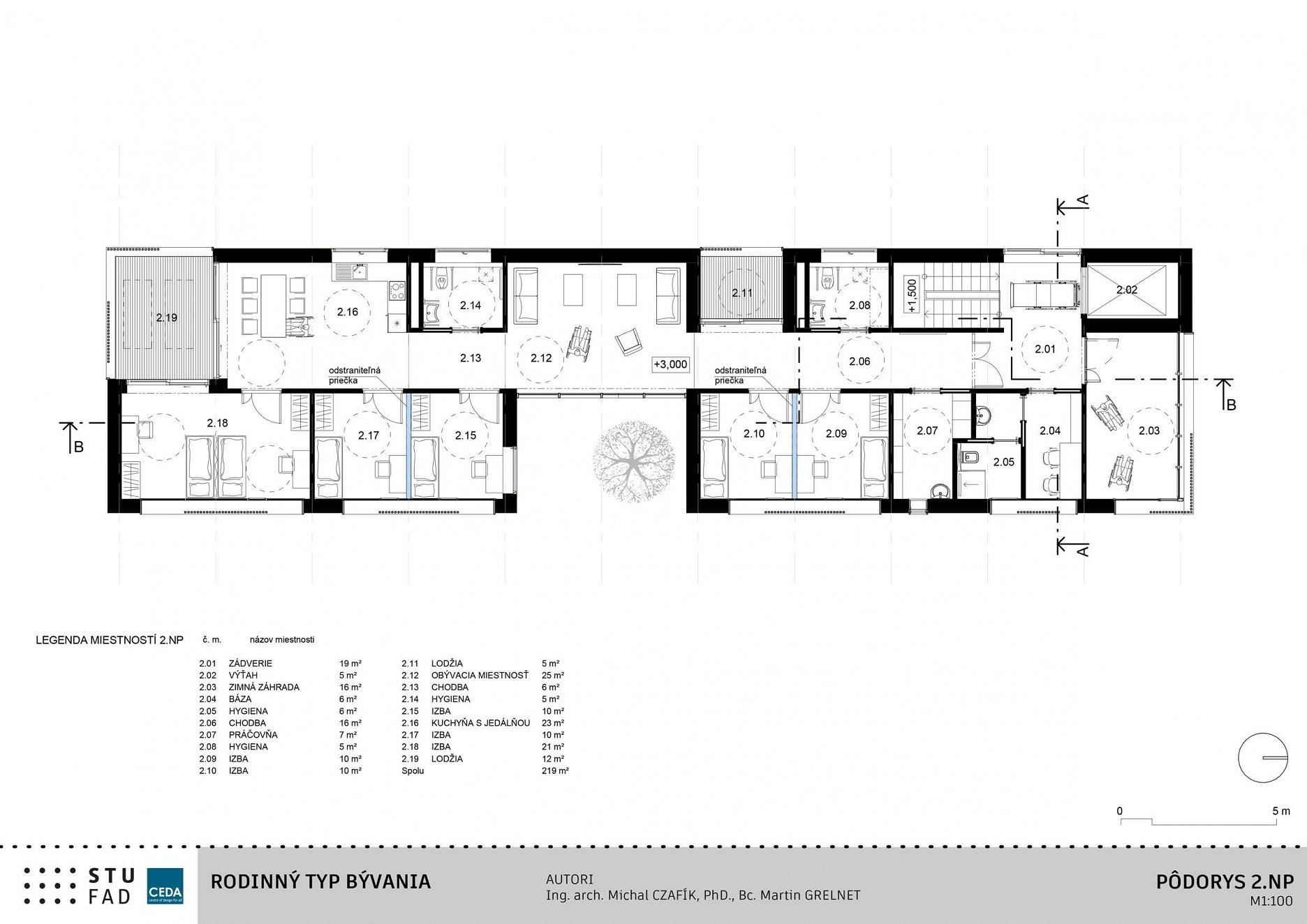
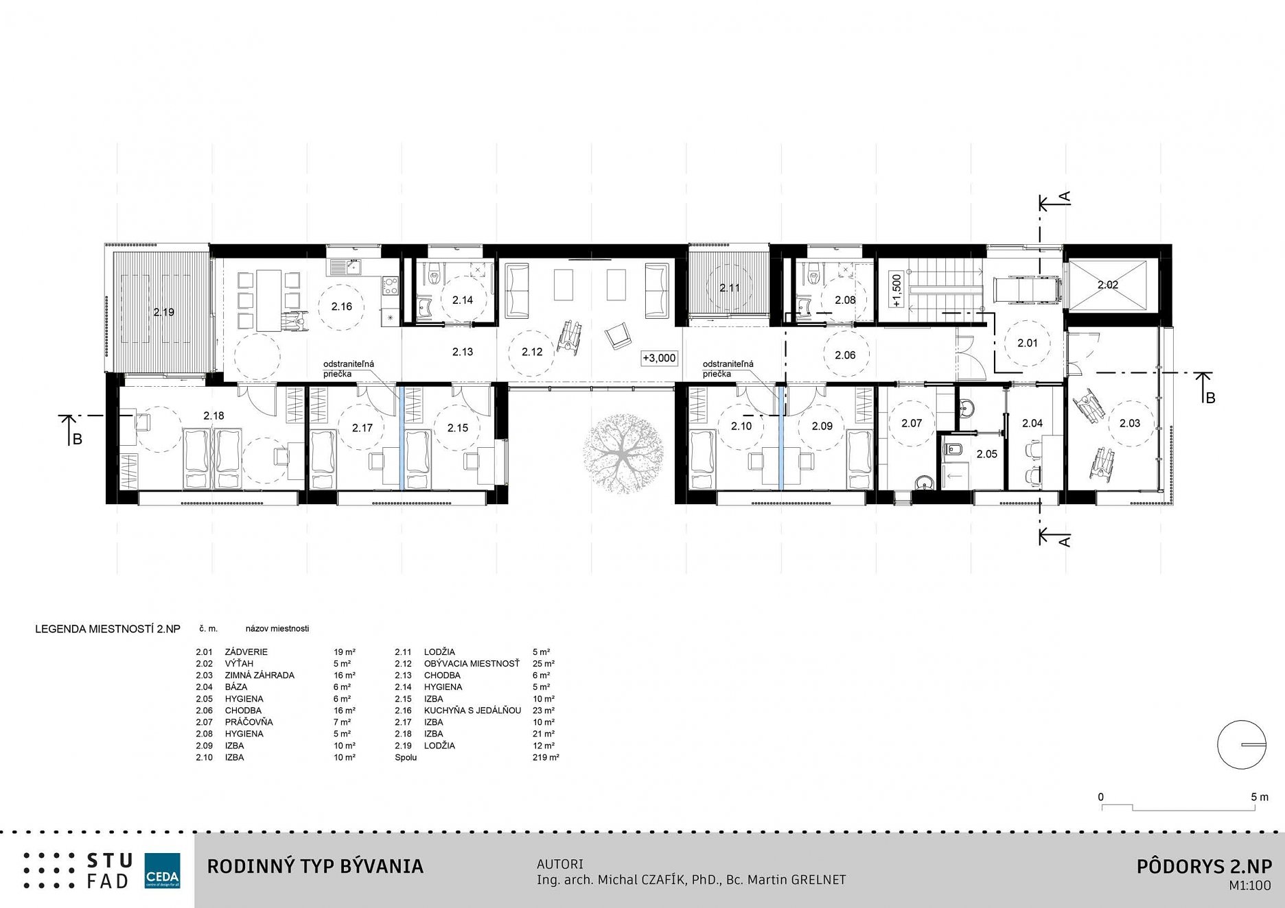
2. Nízkokapacitné pobytové sociálne služby s kapacitou do 12 miest - modelové riešenia pre rôzne typy zástavby, orientácie a svahovitosti pozemku.
V katalógu štúdií “Zariadenia poskytujúce pobytové sociálne služby s kapacitou do 12 miest v rámci Plánu obnovy a odolnosti SR“, vypracovanom na pôde FAD STU bolo vo výsledku navrhnutých 9 typov štúdií (A - I).
Jednotlivé typy reagujú na predpokladané situácie a reflektujú najmä charakteristiky vidieckeho prostredia, pre ktoré sú typické úzke parcely, radový typ zástavby a charakteristická objemová konfigurácia v domoradí, alebo v rozvoľnená či skupinová forma vidieckeho sídla. Tieto parametre môžu spolu so sklonom pozemku a jeho orientáciou k svetovým stranám ovplyvniť výber typu modelového riešenia objektu. Pri návrhoch sa často pracovalo s modulovými riešeniami, ktoré sa dajú aplikovať buď v základných, alebo rozšírených alternatívach.
Nízkokapacitné pobytové sociálne služby TYP A
Autori: doc. Ing. arch. Andrea Bacová, PhD. Jozef Červenák
Nízkokapacitné pobytové sociálne služby TYP B
Autori: doc. Ing. arch. Lea ROLLOVÁ, PhD., Ing. arch. Natália FILOVÁ
Nízkokapacitné pobytové sociálne služby TYP C
Autori: Ing. arch. Michal CZAFÍK, PhD., Bc. Martin GRELNET