Na podujatí sa predstaví až 37 vystavovateľov - popredných dodávateľov stavebných materiálov a inovácií s prezentáciou...
Novotvar v prostredí alpskej obce.
Hansgrohe - prémiová značka kúpeľňových riešení, ponúka nadčasový dizajn, technickú precíznosť a udržateľné inovácie...
Využite špeciálnu akciu Internorm: okná za minuloročné ceny a hliníkový kryt úplne zadarmo. Ponuka je časovo obmedzená!
Sumarizácia najdôležitejších inovácií, ktoré redefinujúcich využitie tohto energetického zdroja.
AMPHIBIA 3000 GRIP 1.3 od spoločnosti ATRO predstavuje modernú hydroizolačnú technológiu, ktorá spája vysokú odolnosť,...
Ambiciózne plány EK narazili na ekonomické možnosti domácností v jednotlivých členských štátoch –...
IDEA DOOR od spoločnosti JAP prináša do interiéru čistý minimalistický vzhľad vďaka bezrámovému riešeniu a precíznej...
Kontinuita riešenia od vonkajšieho obkladu až po kovania a kľučky.
Nástenné nadomietkové armatúry Vitus sú mimoriadne vhodné pre rýchlu a efektívnu...
Okenné profily z kompozitného materiálu RAU-FIPRO X od spoločnosti Rehau sú v porovnaní s tradičnými plastovými profilmi mnohonásobne...
Najnovší sortiment stolov pre zariadenie interiérov...
Spojenie moderného dizajnu, funkčnosti a svetla do harmonického architektonického prvku.
Kancelárska budova Baumit v slovinskom Trzine prešla premenou na moderné a udržateľné pracovisko. Architekti kládli dôraz...
Mottom šiesteho ročníku on-line konferencie odborníkov Xella Dialóg je Efektívny návrh budov 2025+: zmeny a riešenia

V architektonickej súťaži na rekonštrukciu budějovického Domu umenia zvíťazilo združenie architektov AFF Architekten + Malý Chmel. Cieľom súťaže bolo nájsť najlepšie riešenie opravy a dostavby historického domu na námestí Přemysla Otakara II. tak, aby sa otvoril verejnosti a mohlo tu vzniknúť moderné Centrum súčasného umenia a architektúry.
Odborná porota najskôr vybrala z 32 prihlásených kolektívov na základe referencií päticu ateliérov, ktoré postúpili do návrhovej fázy súťaže. Následne posudzovala kvalitu predložených návrhov. Ako najlepší vyhodnotila koncept na ktorom spolupracoval berlínsky ateliér AFF Architekten (Martin Fröhlich, Ulrike Dix, Hanno Schröder) s “domácim” budějovickým kolektívom Malý Chmel (Zdeněk Chmel, Miroslav Chmel, Miroslav Malý, Daniel Struhařík). Návrh nezasahuje do nosných konštrukcií, ale výrazne otvára priestor na všetkých podlažiach, počíta s rozšírením priestorov galérie. Na druhom mieste sa umiestnil pražský ateliér MCA a na treťom mieste bratislavský GutGut. Odmena putovala kolektívu Marcely Steinbachovej a ateliéru AOC.
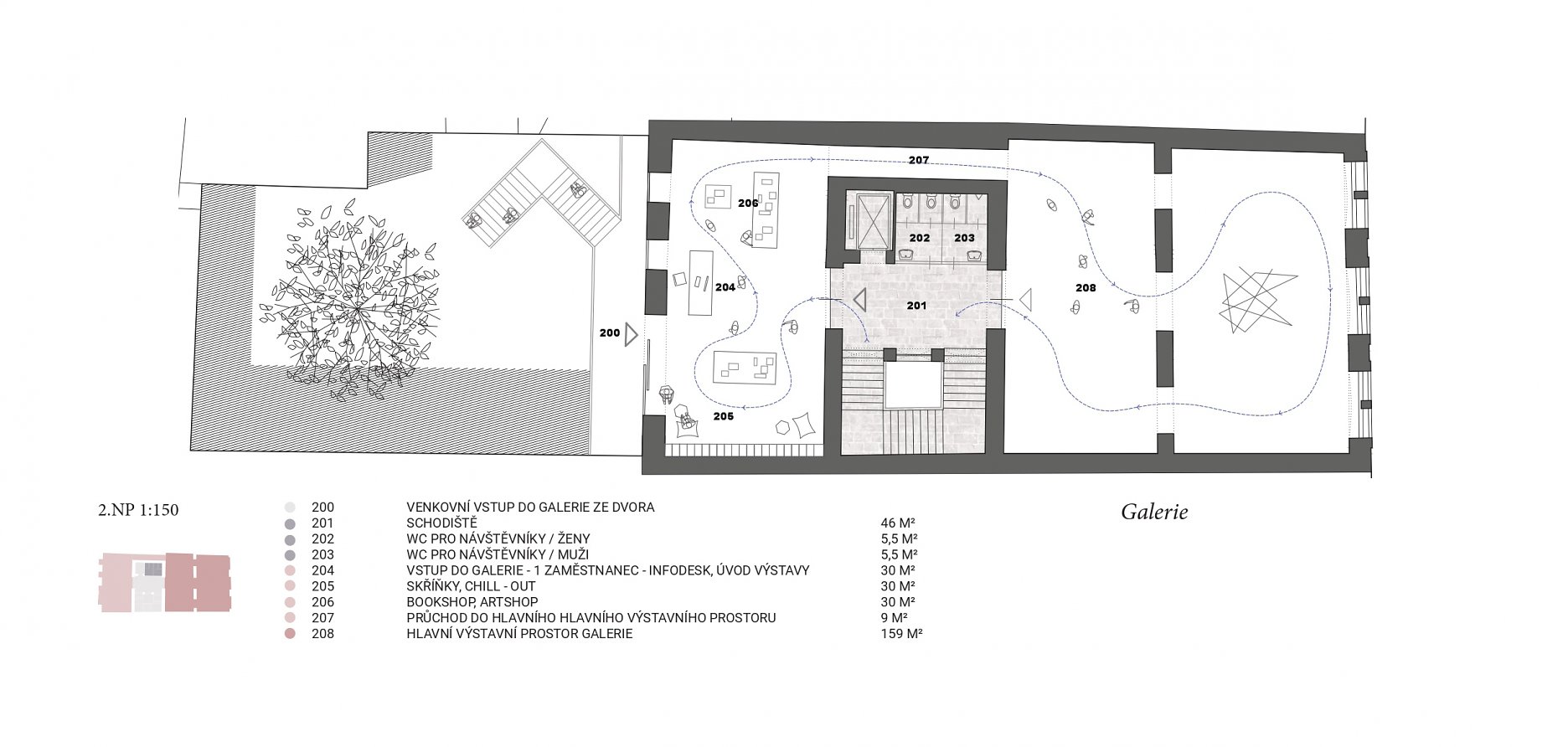
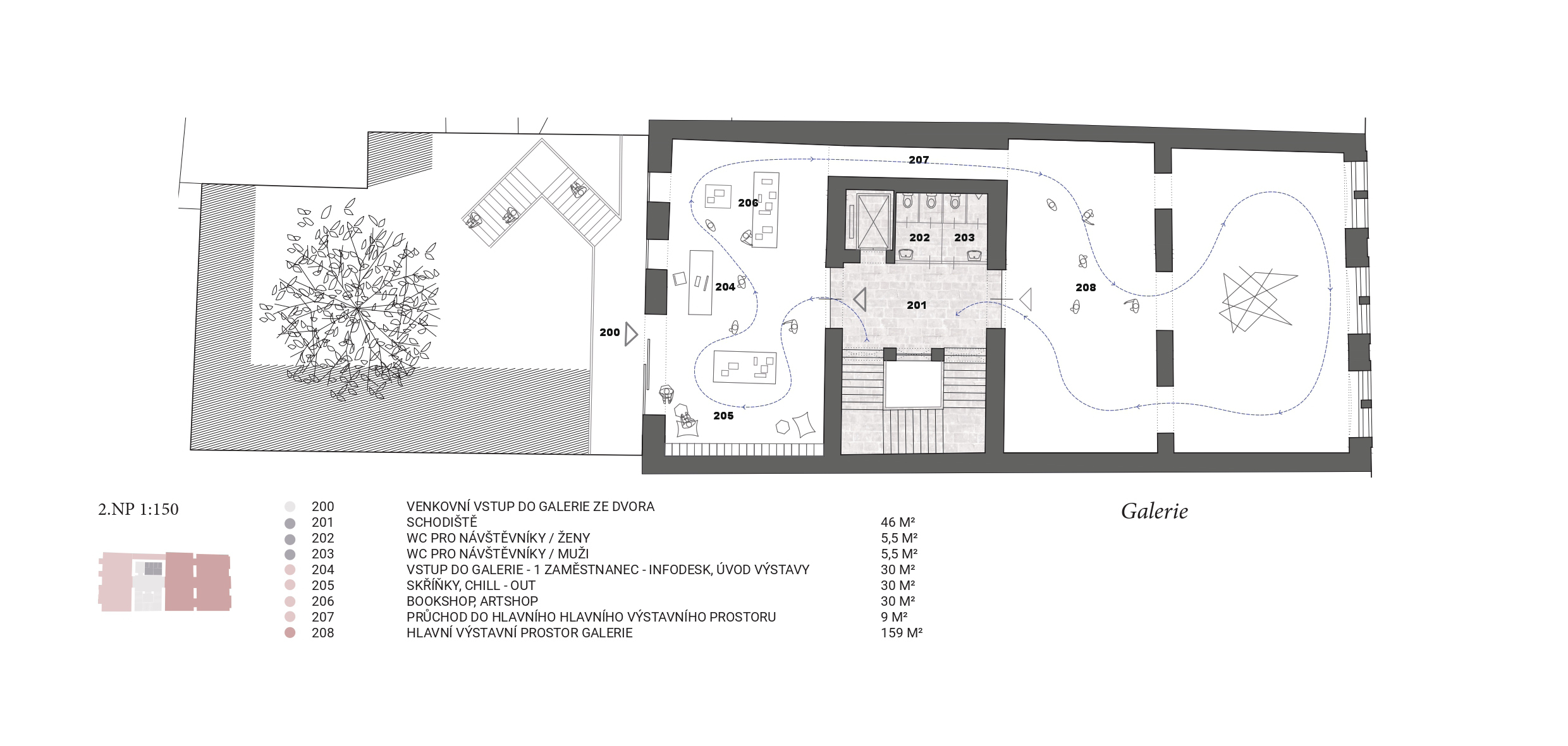
V objekte aktuálne sídli Galéria súčasného umenia a architektúry, ktorá sa od roku 1998 vypracovala pod vedením kurátora Michala Škodu na inštitúciu s medzinárodným renomé.
“Očištěním domu vzniká nová kvalita - velkorysý a flexibilní výstavní prostor. Galerii vnímáme jako kulturní srdce města. Navrhovaná střešní krajina vytváří nové prostory otevřené platformy s jedinečným charakterem, snižuje také dům směrem do dvora, který je tak příjemnější pro pobyt. Celému domu chceme vtisknout umírněný vizuální charakter stávající galerie. Návrh umožňuje snadnou změnu funkce bez nutnosti zásahu do nosných konstrukcí,” vysvetľujú autori víťazného návrhu.
Centrum súčasného umenia a architektúry
Riešenie parteru vychádza zo súčasného stavu, vstupnú chodbu autori nahradili centrálnou pasážou, ktorá vytvára verejný priestor v priechode medzi ulicami Krajinská a Česká. Pasáž prechádza celou hĺbkou domu a sprístupňuje dvor, ktorý sa stáva živou súčasťou domu. Na pasáž je napojené existujúce schodisko. V parteri, v súlade so zadaním, navrhli architekti informačné centrum. "Room for an art" - dôstojná entrée galéria slúžia ako miestnosť pre inštalácie vystavujúcich umelcov na úrovni parteru domu.
Návrh počíta s rozšírením výstavných plôch. K súčasnému priestoru pribudne aj zvyšok poschodia - južná miestnosť s oknami orientovanými do dvora. Táto časť bude slúžiť ako vstupný priestor s kníhkupectvom a artshopom. Schodisko vedúce z dvora, umožní alternatívny prístup do galérie. Cieľom je pretvoriť časti orientované do námestia na nerušený výstavný priestor.
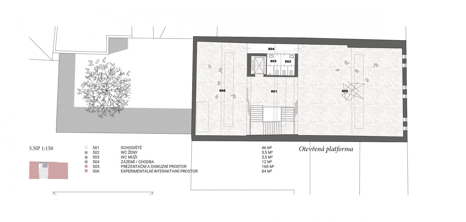
“Otevřená platforma je jedinečný prostor pod novou střešní krajinou s multifunkčním využitím - rozšířením výstavního prostoru, galerie pro mladé umělce, diskuze a přednášky, výstavy studentských architektonických projektů nebo společenské akce s výhledem na město. Dvůr navrhujeme otevřít pasáží do náměstí a skrze pobytové schodiště propojit s galerií. Předpokládáme také, že bude dále sloužit restauraci a stane se atraktivním místem pro kulturní akce. Navrhujeme úpravu povrchů v návaznosti na úpravy domu.,” vysvetľujú autori.
Severná fasáda, orientovaná do námestia Přemysla Otakara II. ostane bez zmeny, s výnimkou odstránenia nevzhľadných pútačov. Architekti navrhujú nahradenie strešných okien svetlíkom v hrebeni strechy. Južná fasáda sa zníži o jedno podlažie, parapety okien klesnú až na úroveň podlahy. Nový železobetónový balkón so schodiskom, smerujúci do dvora, bude niesť monolitická stena.
Výsledky súťaže:
1. miesto: AFF Architekten + Malý Chmel
2. miesto: MCA atelier
3. miesto: GutGut