Advertorial

Pozvánka na 2. ročník stavebného veľtrhu BigMarket na Slovensku

Na podujatí sa predstaví až 37 vystavovateľov - popredných dodávateľov stavebných materiálov a inovácií s prezentáciou...

Hotel Hirschen Spa House, Rakúsko

Novotvar v prostredí alpskej obce.

Vytvorte si kúpeľňu snov: dizajnové riešenie od značky hansgrohe

Hansgrohe - prémiová značka kúpeľňových riešení, ponúka nadčasový dizajn, technickú precíznosť a udržateľné inovácie...

Okná Internorm za minuloročné ceny + hliníkový kryt zdarma!

Využite špeciálnu akciu Internorm: okná za minuloročné ceny a hliníkový kryt úplne zadarmo. Ponuka je časovo obmedzená!

Moderné plynové technológie: Efektivita a inovácie pre 21. storočie

Sumarizácia najdôležitejších inovácií, ktoré redefinujúcich využitie tohto energetického zdroja.

Utesňovanie spodných stavieb pomocou hydro-aktívnej fólie AMPHIBIA.

AMPHIBIA 3000 GRIP 1.3 od spoločnosti ATRO predstavuje modernú hydroizolačnú technológiu, ktorá spája vysokú odolnosť,...

Dekarbonizácia individuálneho vykurovania domácností – Green Deal evolučne a nie revolučne

Ambiciózne plány EK narazili na ekonomické možnosti domácností v jednotlivých členských štátoch –...

Minimalistické dvere IDEA – technická precíznosť a čistota prevedenia

IDEA DOOR od spoločnosti JAP prináša do interiéru čistý minimalistický vzhľad vďaka bezrámovému riešeniu a precíznej...

Dom s výhľadom na údolie, Dlouhý Most (ČR)

Kontinuita riešenia od vonkajšieho obkladu až po kovania a kľučky.

Schell Vitus – osvedčené riešenie pre sprchy a umývadlá vo verejnom sektore s viac ako desaťročnou tradíciou

Nástenné nadomietkové armatúry Vitus sú mimoriadne vhodné pre rýchlu a efektívnu...

Kompozitné okná predstavujú súčasnosť a budúcnosť

Okenné profily z kompozitného materiálu RAU-FIPRO X od spoločnosti Rehau sú v porovnaní s tradičnými plastovými profilmi mnohonásobne...

Myotis - stoly 2025

Najnovší sortiment stolov pre zariadenie interiérov...

Priemyselné sklenené priečky Dorsis Digero: svetelné rozhranie pre moderné interiéry

Spojenie moderného dizajnu, funkčnosti a svetla do harmonického architektonického prvku.

Význam prirodzeného svetla pre moderné a flexibilné pracovné prostredie

Kancelárska budova Baumit v slovinskom Trzine prešla premenou na moderné a udržateľné pracovisko. Architekti kládli dôraz...

Konferencia Xella Dialóg predstaví novinky a trendy v stavebníctve

Mottom šiesteho ročníku on-line konferencie odborníkov Xella Dialóg je Efektívny návrh budov 2025+: zmeny a riešenia

Novinka pre bezrámové systémy HIFINITY

Integrovaná plisovaná sieťka proti hmyzu
Produkty
Red 224.11.2021
3880+13
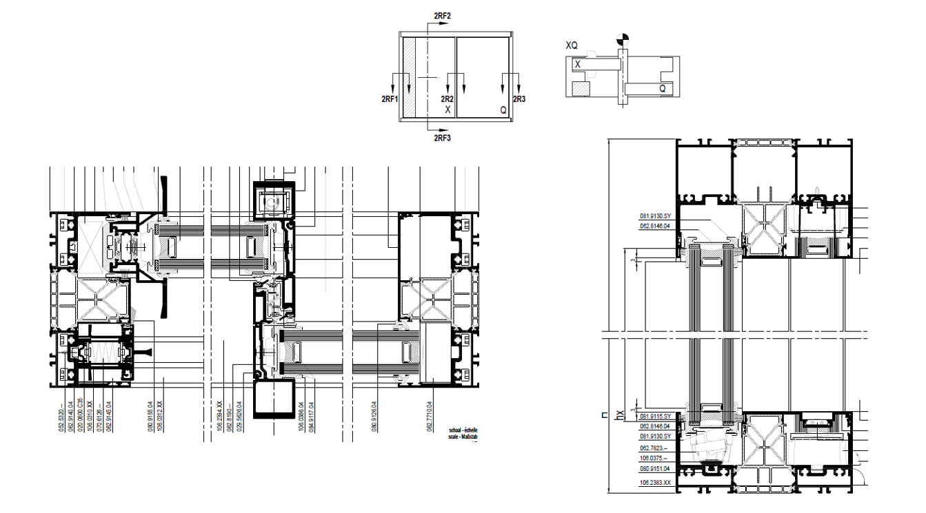
Novinka pre bezrámové systémy HIFINITY

 

Systém Hi-Finity od spoločnosti Reynaers Aluminium je možné doplniť aj o praktickú novinku - certifikovanú  sieťku proti hmyzu zapustenú do bočného rámu.

Vlastosti systémového riešenia siěťky:

  • Najžiadanejšie riešenie pre Hi-Finity je riešenie sieťky proti hmyzu. Max 1000  mm šírka siete a výška 3000  mm.
  • Integrované riešenie, v súlade so skrytou estetikou zapustené do bočného rámu. Žiadna kolízia so žaluziou, exteriérovým tienením alebo roletami.
  • Možnosť neskoršieho rozhodnutia zo strany zákazníka pri realizácií dodatočnej montáže.
  • Reynaers Aluminium ponúka riešenia od jedného dodávateľa (kalkulácie, dodávka, záruka, riešenie, certifikácia).

 

TECHNICKÉ INFORMÁCIE

  • Plne integrovaný zapustený v bočnom ráme ako štandardné riešenie v Hifinity.
  • Na mieru balenie pre inštaláciu, vyvinuté a podporované výrobcom Reynaers Aluminium.
  • Dodatočná montáž do nového riešenia Hi-Finity systému.
  • Jednoduchá údržba a rýchla výmena bez nutnosti demontáže profilov alebo krídla.
  • K dispozícií k takmer všetkým konfiguráciám, pre obe 2-aj 3-sklo.

 

  • Princíp fungovania: šnúry pod napätím, ktoré prechádzajú zhora nadol cez pletivo
  • Max 1000mm šírka balenia siete a výška 3000 mm
    - Max výška elementu: 3103mm/3135mm/3167mm (v závislosti od nízkeho alebo vysokého rámu).
    - V kombinácií so štandardným profilom bočného rámu.
  • 6 súprav k dispozícií v krokoch po 200mm výšky (na narezanie).
    - 2000-2200-2400-2600-2800-3000mm pre menej odpadu a lepšiu cenu
  • Profil madla a vodiace profily dostupné v rovnakej povrchovej úprave ako element.
  • Balenia náhradných sietí sú k dispozícii samostatne.
  • Úspešne testované na 20 000 cyklov (trieda 3).

 Varianty

 

Dostupné pre konfigurácie:

  • 2-koľajnicové (1 krídlo posuvné, 2, krídlo pevné), (XQ, XQX, XQVQ, XQVQX)
  • 3- koľajnicové – jedna strana s krycím profilom, (XXQ, XXX, XXQVQXX)
  • Riešenie do púzdra a nulový prah ukončenie

Nedostupné pre konfigurácie:

  • Nulový prah – ukončenie podlahy
  • Centrálne zatváranie 2 krídiel (Bi-Part)
  • Otváravé rohové otváranie

Rezy

Skladačka

Dizajn a manipulácia so sieťkou

Poloha na mape

Súvisiace články

Vložené
24. november 2021
0
388
Hlavný obsahHlavný obsah
Čakajte prosím