Na podujatí sa predstaví až 37 vystavovateľov - popredných dodávateľov stavebných materiálov a inovácií s prezentáciou...
Novotvar v prostredí alpskej obce.
Hansgrohe - prémiová značka kúpeľňových riešení, ponúka nadčasový dizajn, technickú precíznosť a udržateľné inovácie...
Využite špeciálnu akciu Internorm: okná za minuloročné ceny a hliníkový kryt úplne zadarmo. Ponuka je časovo obmedzená!
Sumarizácia najdôležitejších inovácií, ktoré redefinujúcich využitie tohto energetického zdroja.
AMPHIBIA 3000 GRIP 1.3 od spoločnosti ATRO predstavuje modernú hydroizolačnú technológiu, ktorá spája vysokú odolnosť,...
Ambiciózne plány EK narazili na ekonomické možnosti domácností v jednotlivých členských štátoch –...
IDEA DOOR od spoločnosti JAP prináša do interiéru čistý minimalistický vzhľad vďaka bezrámovému riešeniu a precíznej...
Kontinuita riešenia od vonkajšieho obkladu až po kovania a kľučky.
Nástenné nadomietkové armatúry Vitus sú mimoriadne vhodné pre rýchlu a efektívnu...
Okenné profily z kompozitného materiálu RAU-FIPRO X od spoločnosti Rehau sú v porovnaní s tradičnými plastovými profilmi mnohonásobne...
Najnovší sortiment stolov pre zariadenie interiérov...
Spojenie moderného dizajnu, funkčnosti a svetla do harmonického architektonického prvku.
Kancelárska budova Baumit v slovinskom Trzine prešla premenou na moderné a udržateľné pracovisko. Architekti kládli dôraz...
Mottom šiesteho ročníku on-line konferencie odborníkov Xella Dialóg je Efektívny návrh budov 2025+: zmeny a riešenia

Na Fakulte architektúry STU v Bratislave je každoročne udeľovaná Cena profesora Vladimíra Chrobáka za najlepšiu konštrukciu použitú v semestrálnom projekte.
Dňa 10.7. 2017 zasadala porota súťaže o Cenu prof. Vladimíra Chrobáka v zložení:
Hosť. Prof. Ing. arch. Ľubomír Závodný - predseda
Doc. Ing. arch. Michal Hronský, PhD.
Ing. arch. Štefan Rafanides.
V akademickom roku 2016/2017 bolo do súťaže prihlásených 9 študentských prác. Vyhodnocovanie prihlásených návrhov prebiehalo rozpravou poroty k jednotlivým návrhom. Porota sa po rozprave o návrhoch jednomyseľne rozhodla udeliť Cenu prof. Vladimíra Chrobáka za konštrukcie v architektúre.
(Práce sú predstavené podrobnejšie samostatne v "súvisiacich článkoch" úplne naspodu, alebo sa na ne dá odkliknúť v odkaze priamo za názvom práce).
Prehľad ocenených prác:
Cena prof. Vladimíra Chrobáka - Škola architektúry v kampuse Mlynská Dolina (viac TU)
Jana Hájková, FA STU, 2016/17
Pedagóg: Ing. arch. Eva Vojteková, PhD.
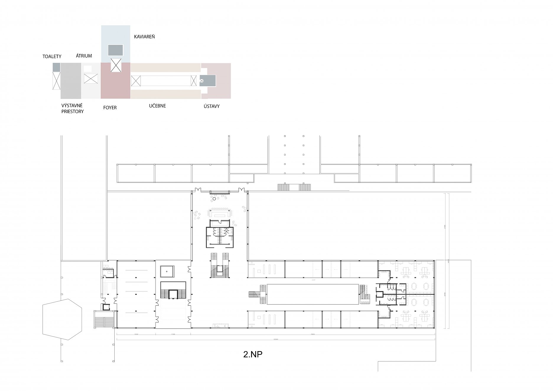
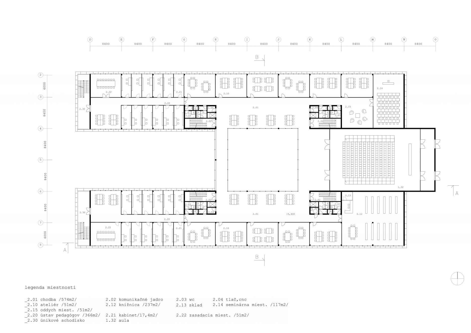
Porota cenu udelila pre voľbu jednoznačnej pavilónovej hmoty školy, dobre zvládnutú mierku a osadenie do daného prostredia. Dispozičné riešenie má jasný komunikačný systém s napojením na vonkajšie existujúce pešie trasy. Výraz architektúry možno charakterizovať stroho ako jednoduché hranoly s prepracovaným riešením fasádneho plášťa.
Porota udelila dve odmeny nasledovným návrhom:
Odmena: Škola architektúry vo vnútrobloku STU (viac TU)
Viktória Brettschneiderová , FA STU, 2016/17
Pedagóg: Ing. arch. Vladimír Hain, PhD.
Odmena: Škola architektúry v areáli STU (viac TU)
Kristína Boháčová, FA STU, 2016/17
Pedagóg: Ing. arch. Vladimír Hain, PhD.