Advertorial

Hotel Hirschen Spa House, Rakúsko

Novotvar v prostredí alpskej obce.

Vytvorte si kúpeľňu snov: dizajnové riešenie od značky hansgrohe

Hansgrohe - prémiová značka kúpeľňových riešení, ponúka nadčasový dizajn, technickú precíznosť a udržateľné inovácie...

Okná Internorm za minuloročné ceny + hliníkový kryt zdarma!

Využite špeciálnu akciu Internorm: okná za minuloročné ceny a hliníkový kryt úplne zadarmo. Ponuka je časovo obmedzená!

Pozvánka na 2. ročník stavebného veľtrhu BigMarket na Slovensku

Na podujatí sa predstaví až 37 vystavovateľov - popredných dodávateľov stavebných materiálov a inovácií s prezentáciou...

Moderné plynové technológie: Efektivita a inovácie pre 21. storočie

Sumarizácia najdôležitejších inovácií, ktoré redefinujúcich využitie tohto energetického zdroja.

Utesňovanie spodných stavieb pomocou hydro-aktívnej fólie AMPHIBIA.

AMPHIBIA 3000 GRIP 1.3 od spoločnosti ATRO predstavuje modernú hydroizolačnú technológiu, ktorá spája vysokú odolnosť,...

Dekarbonizácia individuálneho vykurovania domácností – Green Deal evolučne a nie revolučne

Ambiciózne plány EK narazili na ekonomické možnosti domácností v jednotlivých členských štátoch –...

Minimalistické dvere IDEA – technická precíznosť a čistota prevedenia

IDEA DOOR od spoločnosti JAP prináša do interiéru čistý minimalistický vzhľad vďaka bezrámovému riešeniu a precíznej...

Dom s výhľadom na údolie, Dlouhý Most (ČR)

Kontinuita riešenia od vonkajšieho obkladu až po kovania a kľučky.

Schell Vitus – osvedčené riešenie pre sprchy a umývadlá vo verejnom sektore s viac ako desaťročnou tradíciou

Nástenné nadomietkové armatúry Vitus sú mimoriadne vhodné pre rýchlu a efektívnu...

Kompozitné okná predstavujú súčasnosť a budúcnosť

Okenné profily z kompozitného materiálu RAU-FIPRO X od spoločnosti Rehau sú v porovnaní s tradičnými plastovými profilmi mnohonásobne...

Myotis - stoly 2025

Najnovší sortiment stolov pre zariadenie interiérov...

Priemyselné sklenené priečky Dorsis Digero: svetelné rozhranie pre moderné interiéry

Spojenie moderného dizajnu, funkčnosti a svetla do harmonického architektonického prvku.

Význam prirodzeného svetla pre moderné a flexibilné pracovné prostredie

Kancelárska budova Baumit v slovinskom Trzine prešla premenou na moderné a udržateľné pracovisko. Architekti kládli dôraz...

Konferencia Xella Dialóg predstaví novinky a trendy v stavebníctve

Mottom šiesteho ročníku on-line konferencie odborníkov Xella Dialóg je Efektívny návrh budov 2025+: zmeny a riešenia

Škola architektúry v areáli STU - študentská práca

Študentská práca z fakulty architektúry STU v Bratislave, ktorá bola odmenená v súťaži Cena profesora Vladimíra Chrobáka o najlepšiu konštrukciu.
Diela
Red 426.08.2017
8280+1
Škola architektúry v areáli STU - študentská práca
Autori: Kristína BoháčováSpolupráca: Ing. arch. Vladimír Hain, PhD. (vedúci práce)Návrh: 2017 - 2017Adresa: Mýtna, Imricha Karvaša Bratislava, SlovenskoPublikované: 26. august 2017

Riešený pozemok je situovaný v centre mesta Bratislava. Základnou myšlienkou urbanistického riešenia bolo vpustiť do vnútrobloku ľudí, otvoriť ho, sprístupniť, vtiahnuť doňho námestie Slobody a taktiež vdýchnuť život nevyužívaným priestorom v centre mesta. Situovaním objektu nad úroveň terénu vznikol pre školy potrebný poloverejný priestor, prístupný pre peších zo strany námestia slobody aj Radlinského ulice.

Situácia
Situácia

Hlavnou ideou konceptu riešenia budovy a jej okolia sa stalo "prepojenie". Či už je to prepojenie medzi študentmi STU, spolupráca fakúlt, alebo prepojenie s Námestím Slobody. Cieľom bolo vytvorenie vľúdneho mikroprostredia vo vnútri blokovej zástavby areálu STU tak, aby mali študenti, obyvatelia a návštevníci mesta potrebu prechádzať týmto nádvorím nie len kvôli skráteniu si cesty, ale aj kvôli oddychu a sociálnej interakcii s možnosťou vzhliadnutia rôznych druhov moderného umenia, či výdobytkov technológie. Tento koncept nezostal iba v prevádzkovej a teoretickej hladine. Odzrkadľuje sa aj na tvare budovy ako takej. Hmota budovy prepája všetky tri fakulty, no zároveň si zachováva vlastnú funkčnú ako aj formálnu integritu. Osadenie celej hmoty do výšky niekoľko metrov nad terén a použitie translucentného fasádneho plášťa podporuje myšlienku otvorenia areálu voči mestu. Bez zbytočného zaberania verejného priestoru, tvorby ťažkopádnych hmôt, či bránenia prirodzeným peším ťahom.

Hmota objektu je vytvorená na základe komunikačných jadier v okolitých objektoch.Tvoria ju 2 hranoly spojené do písmena T s vyhĺbeným otvorom cez 4 podlažia, ktorý zvýrazňuje hlavný vstup do objektu. Smerom na stavebnú a chemickú fakultu je hmota pretiahnutá na šírkustrechy a vytvára tak zaujímavé priestory a výstupy na zelené terasy s výhľadom na mesto. Pod budovou v teréne je zahĺbený sklenenýkváder ( dielne ) spojený s hlavnou hmotou iba nenápadným komunikačným jadrom. Tvary odkazujú na okolitú pravouhlú architektúru. Farebné riešenie objektu je podmienené materiálom konštrukcie - oceľ a fasádneho plášťa s mliečneho skla.

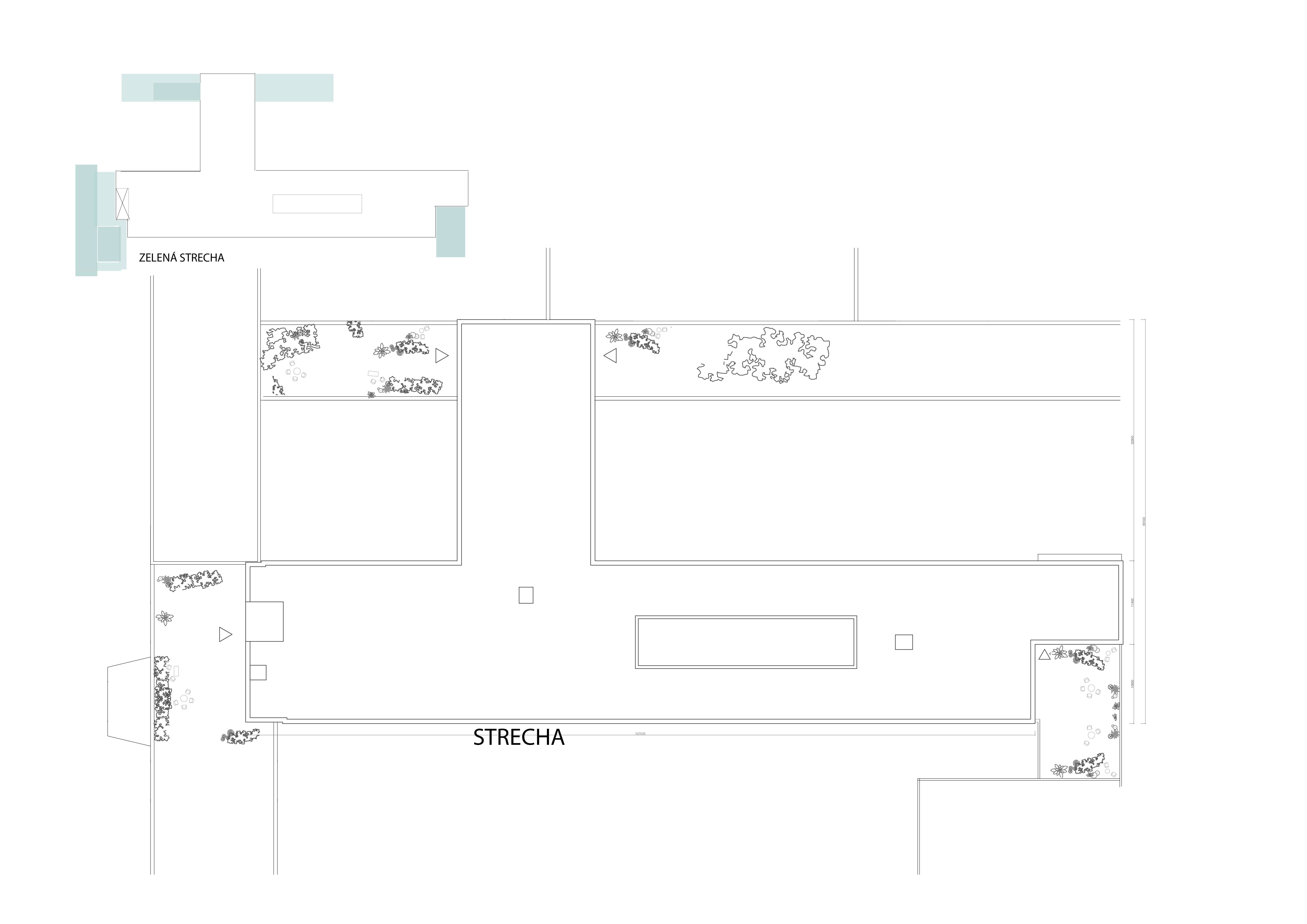
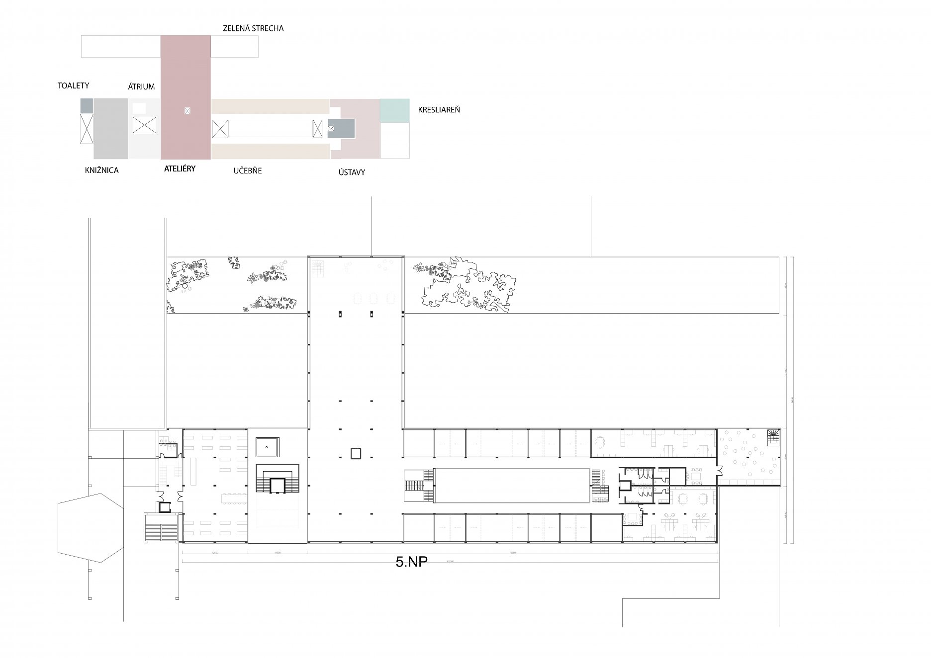
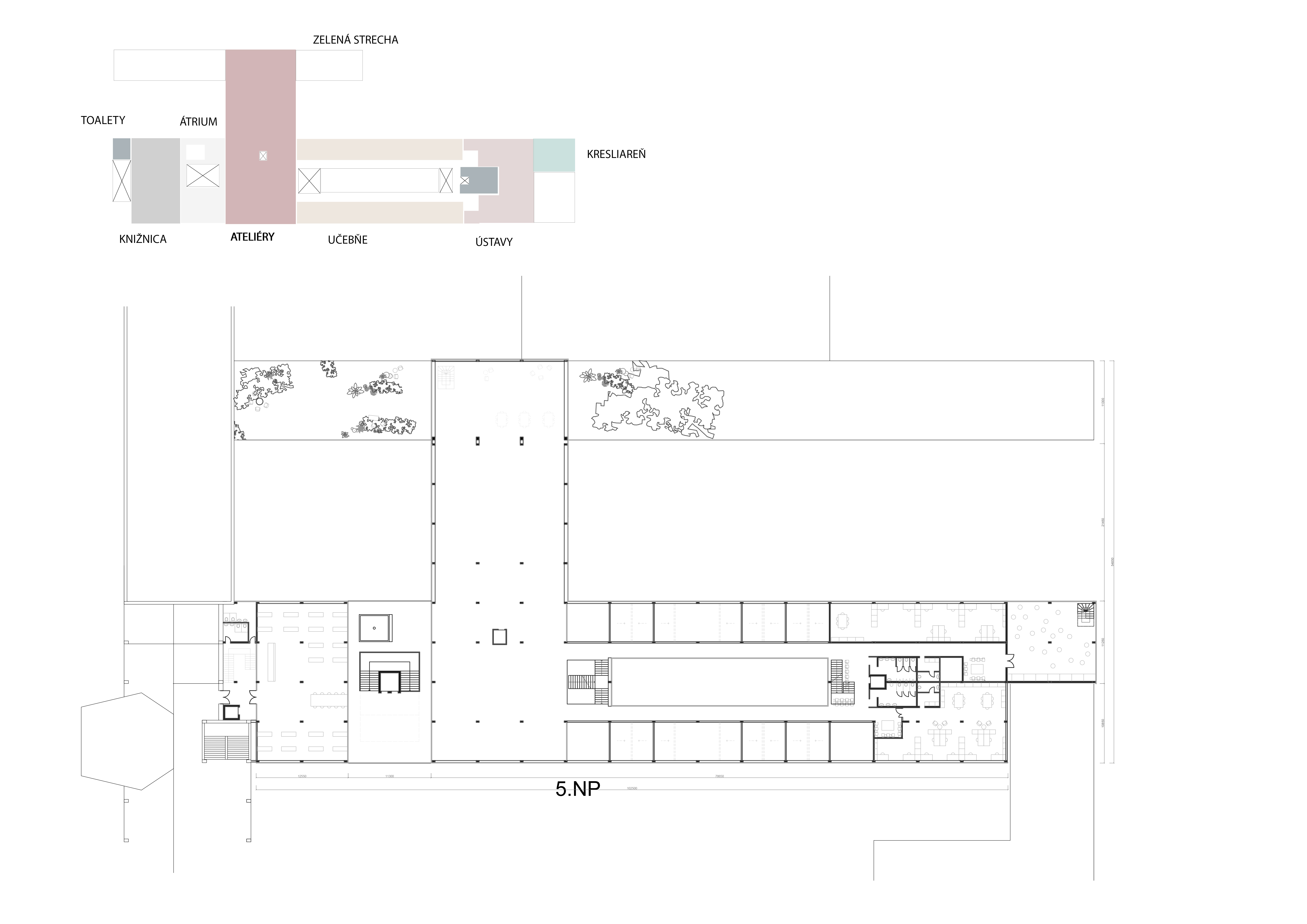
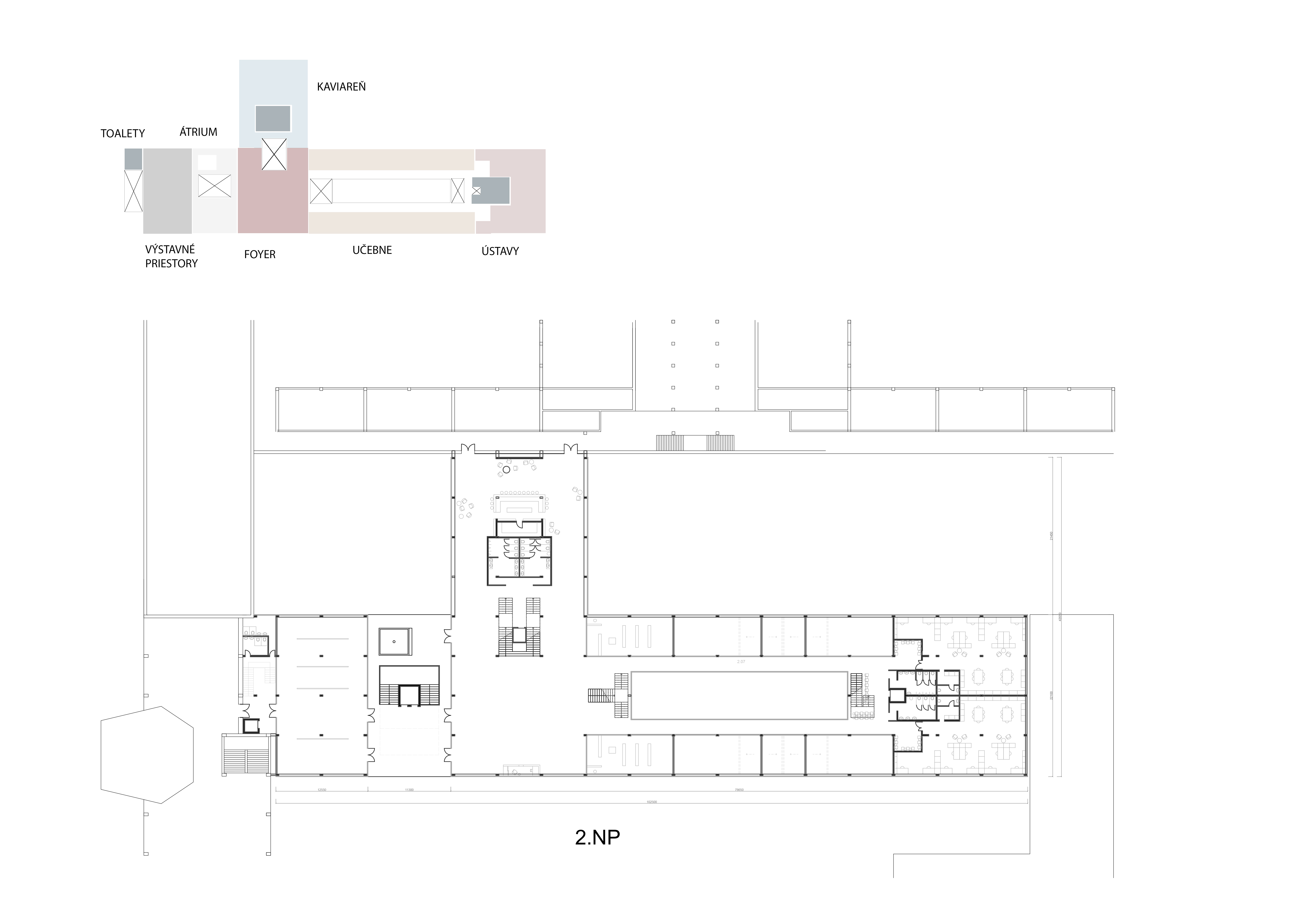
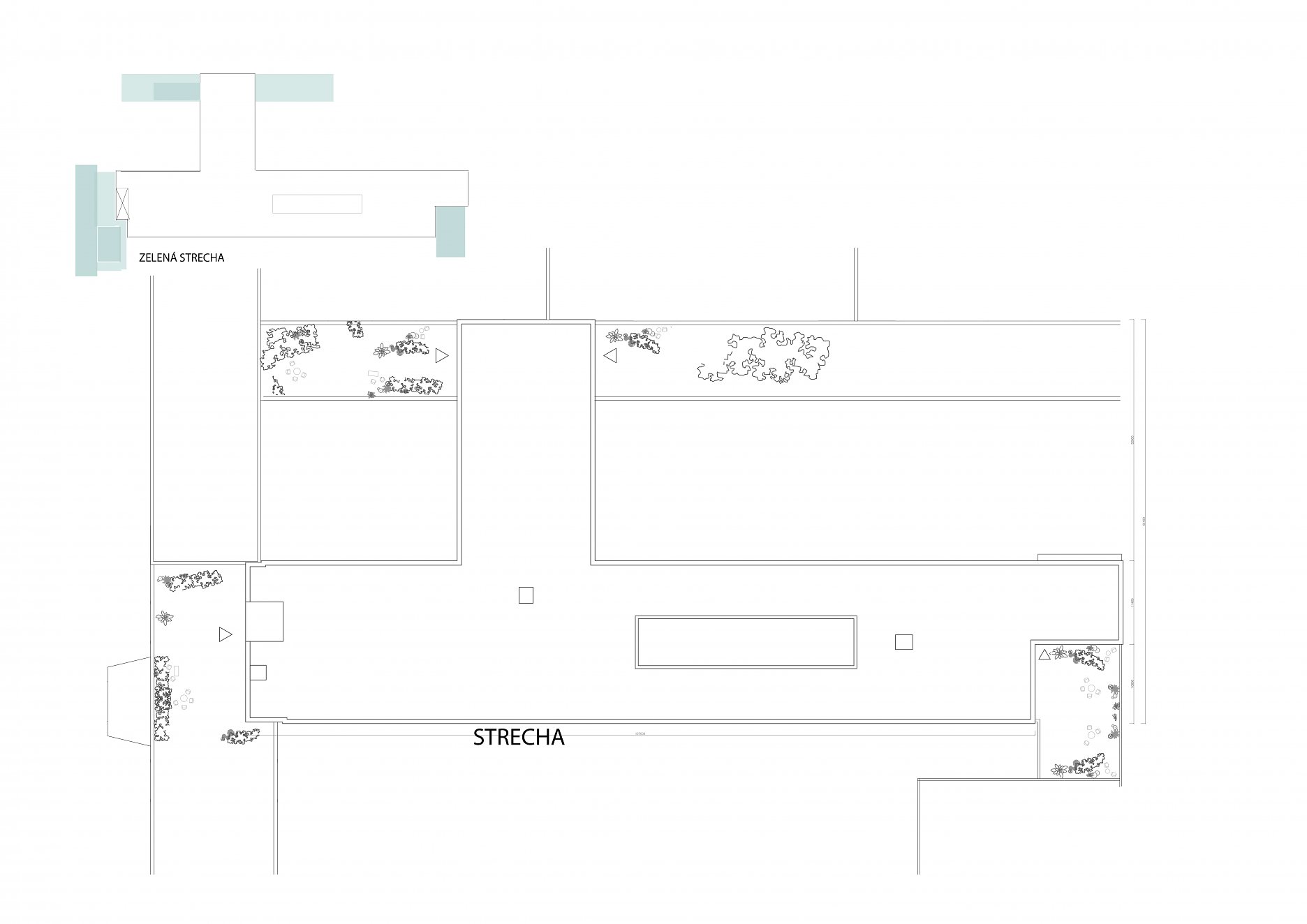
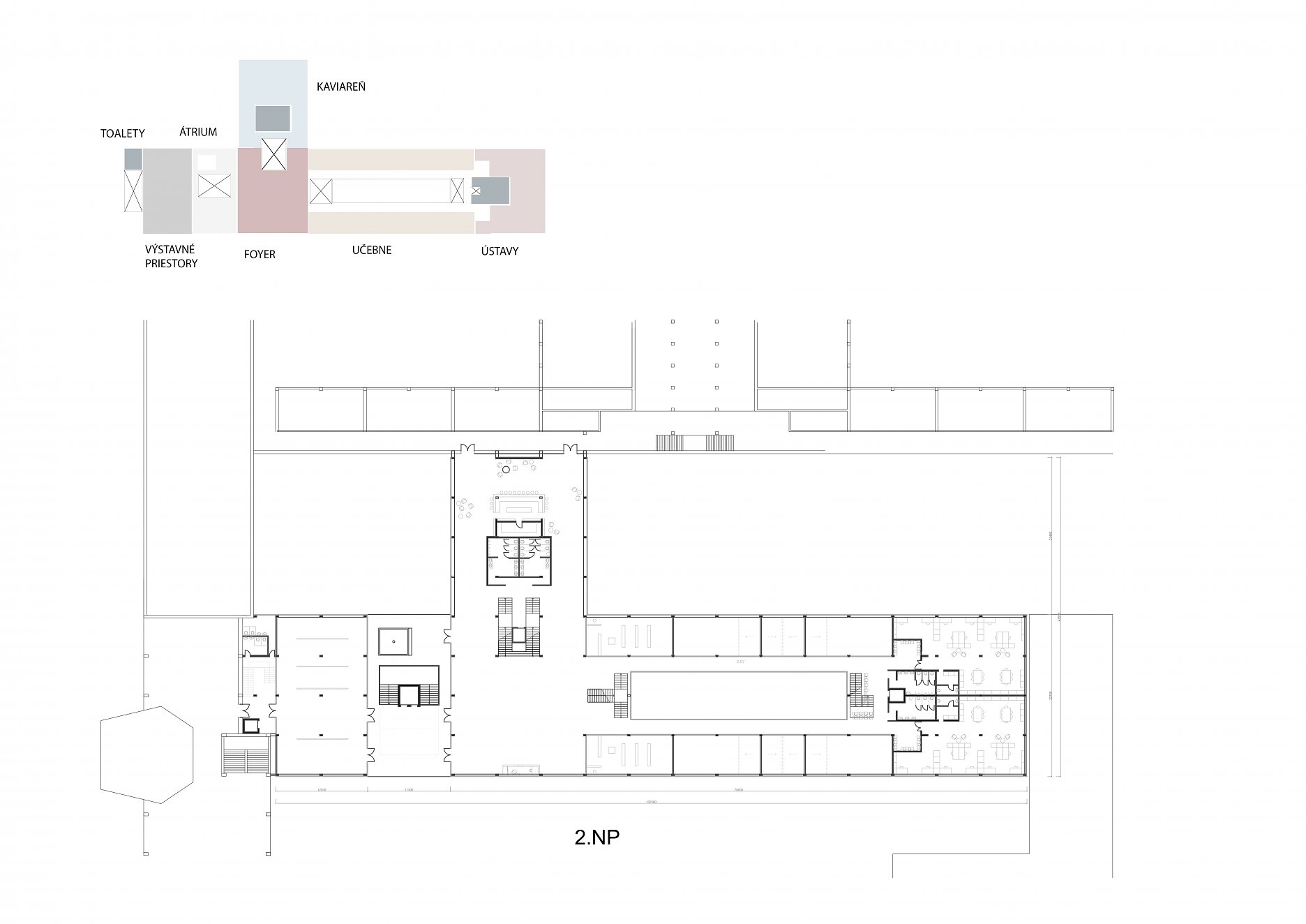
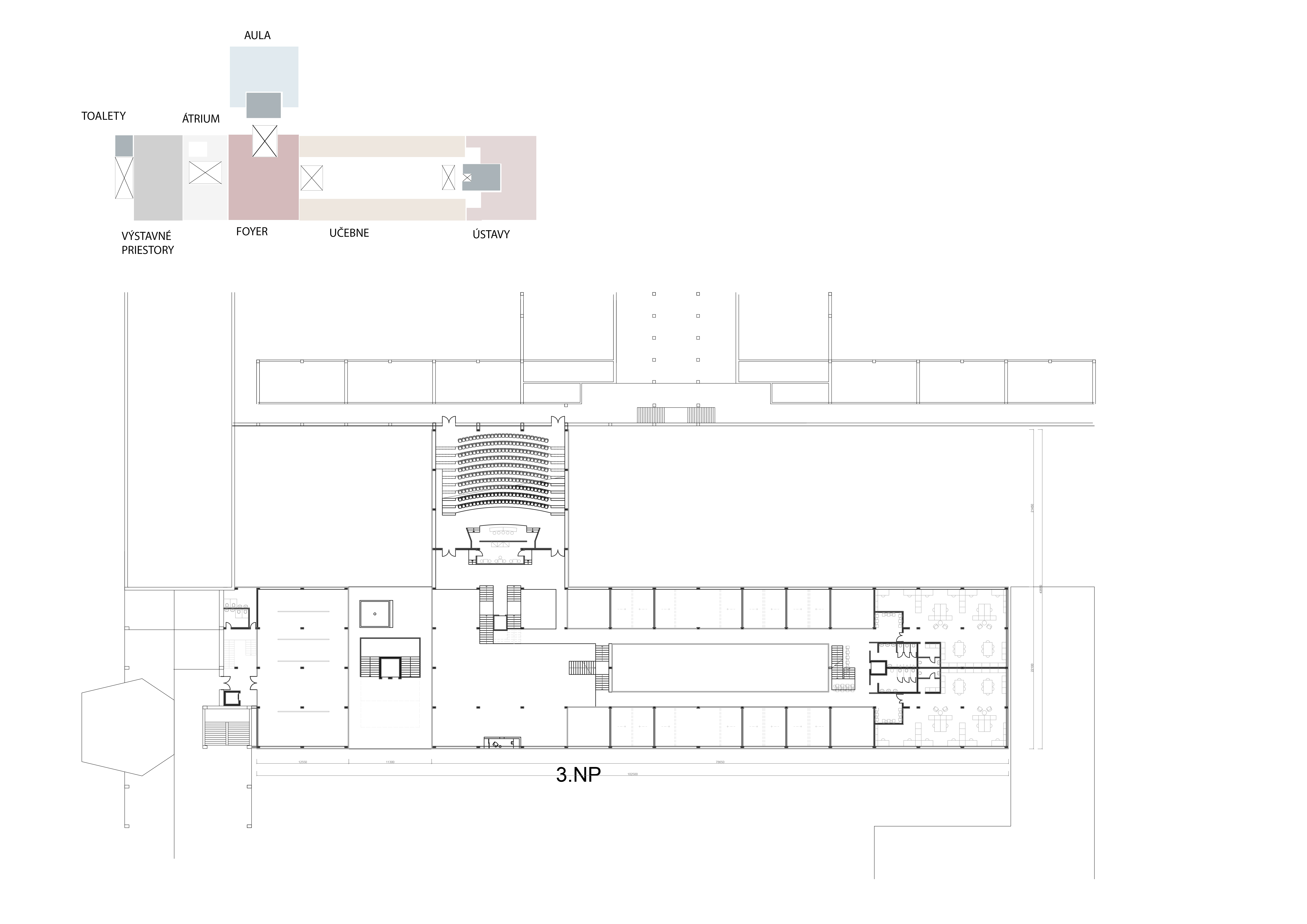
Prevádzkové riešenie je reakciou na stanovený cieľ ponúknuť študentom to čo ich spája na prízemie, do spoločných priestorov STU, čiže dielňu, výstavné priestory, služby, oddych. Aby fakulta architektúry nezanikla v snahe o spájanie, tieto priestory sú situované nad úrovňou terénu. Do samotnej budovy sa dostávame mohutným schodiskom a exteriérovým plató. Po ľavej strane sa nachádzajú výstavné priestory a knižnica a po pravej priestranné foyer. Z neho sa môžeme dostať do kaviarne ktorá je napojená na stavebnú fakultu a tak umožňuje interakciu a tiež zabezpečuje únikové schodisko. Nad kaviarňou sa nachádza aula s kapacitou 250 osôb. Ústavy pedagógov sa nachádzajú na konci budovy pri chemickej fakulte. V tomto krídle budovy je v strede prieraz cez všetky podlažia ktorý je presklený a v jeho vnútri je možné umiestňovanie rôznych inštalácií. Učebne a posluchárne sa nachádzajú okolo tohto prierazu a sú riešené posuvnými priečkami kvôli flexibilite priestoru. Na najvyššom podlaží sa nachádzajú ateliéry, open space slúžiaci študentom ako druhý domov a tri východy na zelenú strechu.

Pôdorys 1. PP
Pôdorys 1. PP
Pôdorys 1. NP
Pôdorys 1. NP
Pôdorys 2. NP
Pôdorys 2. NP
Pôdorys 3. NP
Pôdorys 3. NP
Pôdorys 4. NP
Pôdorys 4. NP
Pôdorys 5. NP
Pôdorys 5. NP
Pôdorys strechy
Pôdorys strechy
Rezy
Rezy

Hlavnou ideou čo sa výučby týka, je tráviť viac času v škole a nosiť si menej roboty domov, čo sa prenieslo do formovania funkcií a priestorov. Na najvyššom poschodí vznikol open space ktorý túto myšlienku podporuje. Ak majú študenti vhodné podmienky v škole, t.j. napríklad tlačiarne, internet, priestor kde si môžu urobiť kávu, neujdú zo školy hneď ako skončí cvičenie. Možno zostanú a pripravia sa na ďalší deň pretože doma nemajú také dobré podmienky, možno medzi časom zbehnú na prednášku veľkého architekta a možno zostanú a pomôžu niekomu inému.Ďalšou formou ako zlepšiť systém vzdelávania je integrácia dielní, ktoré zahŕňajú 3d tlač, cnc frézy a rôzne iné technológie. Nielen že sa zvýši manuálna zručnosť a úroveň študentských prác ale takáto dielňa by bola prospešná aj pre ostatné fakulty STU.

Podklady: Kristína Boháčová

Poloha diela

Kristína Boháčová
Vložené
4. august 2017
0
828
Hlavný obsahHlavný obsah
Čakajte prosím