Využite špeciálnu akciu Internorm: okná za minuloročné ceny a hliníkový kryt úplne zadarmo. Ponuka je časovo obmedzená!
Na podujatí sa predstaví až 37 vystavovateľov - popredných dodávateľov stavebných materiálov a inovácií s prezentáciou...
Sumarizácia najdôležitejších inovácií, ktoré redefinujúcich využitie tohto energetického zdroja.
AMPHIBIA 3000 GRIP 1.3 od spoločnosti ATRO predstavuje modernú hydroizolačnú technológiu, ktorá spája vysokú odolnosť,...
Ambiciózne plány EK narazili na ekonomické možnosti domácností v jednotlivých členských štátoch –...
IDEA DOOR od spoločnosti JAP prináša do interiéru čistý minimalistický vzhľad vďaka bezrámovému riešeniu a precíznej...
Kontinuita riešenia od vonkajšieho obkladu až po kovania a kľučky.
Nástenné nadomietkové armatúry Vitus sú mimoriadne vhodné pre rýchlu a efektívnu...
Okenné profily z kompozitného materiálu RAU-FIPRO X od spoločnosti Rehau sú v porovnaní s tradičnými plastovými profilmi mnohonásobne...
Najnovší sortiment stolov pre zariadenie interiérov...
Spojenie moderného dizajnu, funkčnosti a svetla do harmonického architektonického prvku.
Kancelárska budova Baumit v slovinskom Trzine prešla premenou na moderné a udržateľné pracovisko. Architekti kládli dôraz...
Mottom šiesteho ročníku on-line konferencie odborníkov Xella Dialóg je Efektívny návrh budov 2025+: zmeny a riešenia
Robot WLTR predstavuje moderný prístup k murovaným konštrukciám. Vďaka automatizácii dokáže rýchlo, presne a bezpečne realizovať...
Okrem bezpečnosti majú okná aj elegantný vzhľad, pretože nie sú viditeľné žiadne uzamykacie časti kovania.

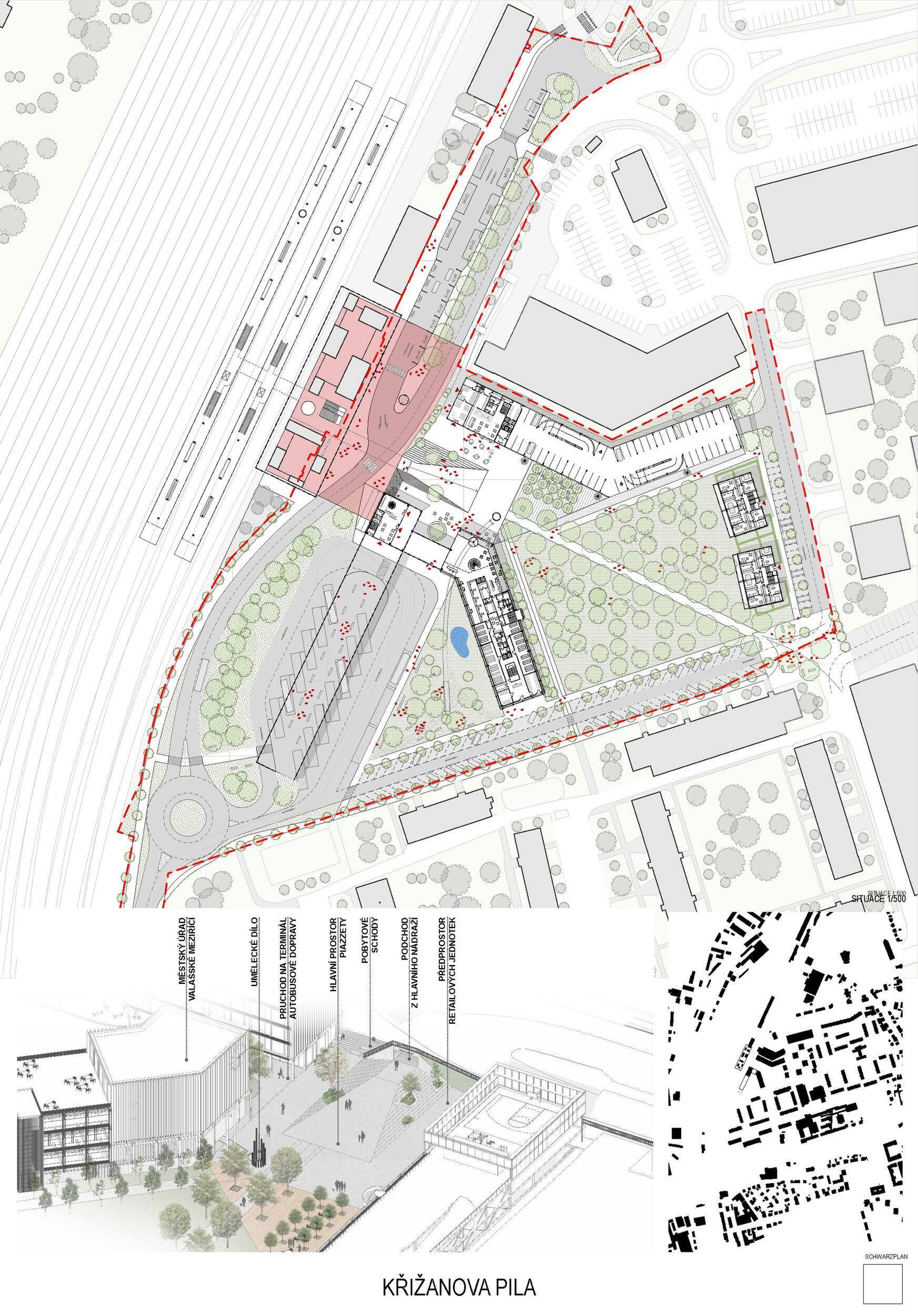
Cieľom dvojfázovej anonymnej architektonickej súťaže, ktorú vyhlásilo Valašské Meziříčí v spolupráci s organizáciou CCEA MOBA bolo komplexné riešenie územia bývalého priemyselného areálu v bezprostrednej blízkosti železničnej stanice. Zadanie zahŕňalo návrh nového autobusového terminálu a prednádražného verejného priestoru, budovy mestského úradu, parkovacieho domu, nadväzujúcich verejných priestranstiev a koncepčného riešenia bytovej zástavby. Súťaž sa zameriavala na prepojenie dopravnej infraštruktúry s mestským životom a na transformáciu zanedbaného brownfieldu na plnohodnotnú mestskú štvrť.
Súťaž prebiehala v dvoch etapách. Do prvej fázy sa zapojilo 13 architektonických kolektívov, z ktorých porota vybrala 5 finalistov postupujúcich do druhého kola. Vybrané tímy svoje návrhy ďalej rozpracovali a spresnili v súlade s odporúčaniami poroty. Proces bol vedený dôrazom na urbanistickú kvalitu, funkčnosť dopravných väzieb, architektonickú primeranosť navrhovaných objektov a kultiváciu verejného priestoru.
Stopu v súťaži zanechali aj slovenské ateliéry. Druhú cenu získal bratislavský 2M ateliér architektúry, medzi účastníkmi bol aj žilinský ateliér ENDORFINE. Porote predsedal bratislavský architekt a pedagóg Ján Studený.
Výsledky súťaže:
1. cena (1 000 000 Kč): návrh č. 12 - MACH Office + Aramé Studio / Barcelona, Španielsko
Autori: Marc Subirana, Laia Gelonch, Adrián Mellado, Andrea Arriola
Hodnotenie poroty:
Porota kladně hodnotí čitelný urbanistický i architektonický koncept, který návrh srozumitelně a přesvědčivě prezentuje, a oceňuje kritické zhodnocení původní urbanistické studie, které návrh podrobuje reflexi ve vztahu k reálným potřebám města a zohledňuje jak současný stav, tak potenciál dalšího rozvoje lokality. Návrh nabízí soudobé řešení solitérních budov umístěných do parku, které dobře reaguje na navazující zástavbu a umožňuje jednoduchou etapizaci výstavby. Pozitivně je vnímána také čitelnost a charakter jednotlivých objektů ve vztahu k jejich funkční náplni. Porotu přesvědčilo odvážné pojetí budovy městského úřadu, jež naplňuje požadavek na novou identitu místa a zároveň důstojně zastupuje reprezentativní funkci této důležité městské instituce. Návrh vyniká úsporným a promyšleným energetickým řešením budovy, které odpovídá současným nárokům na efektivitu a udržitelnost. Vysoké úrovně dosahuje i grafické zpracování a celková propracovanost návrhu, která svědčí o pečlivém a kvalitním přístupu autorů. Krajinářské řešení je věnována výrazná pozornost, a to jak v oblasti struktury a hierarchizace pěších tras, tak v zapojení prvků drobné architektury. Kvalitně zpracované jsou rovněž bytové domy, které přirozeně doplňují charakter území. Porota oceňuje také důsledné zohlednění environmentálních aspektů napříč celým návrhem. Dispoziční uspořádání všech navržených objektů působí čistě a funkčně, což přispívá k pohodlnému užívání a celkové srozumitelnosti prostoru. V konkurenci ostatních návrhů porotu nejvíce přesvědčilo právě toto komplexní, vyvážené a ambiciózní řešení, které nejlépe odpovídá zadání soutěže a zároveň nabízí silnou vizi dalšího rozvoje daného místa.
Panel z 1. kola:
2. cena (700 000 Kč): návrh č. 3 - 2M ateliér architektúry / Bratislava, Slovensko
Autori: Miroslav Michalica, Tomáš Pozdech, Filip Hečko, Jana Bozáňová
Hodnotenie poroty:
Porota kladně hodnotí urbanistické řešení návrhu, a to zejména ve smyslu dobré čitelnosti a hierarchizaci jednotlivých funkcí i celková funkčnosti navržených prostorů. Velkým přínosem je kvalitně zpracovaný návrh piazzetty a výrazné prostorové zakončení aleje, které vytváří jasný kompoziční bod a přirozeně završuje prostorové vedení tohoto veřejného prostoru. Oceněna byla integrace retailových funkcí do přízemí parkovacího domu, která výrazně přispívá k životaschopnosti budoucí piazzetty a jejímu každodennímu využití. Porota rovněž vnímá výraznou urbanistickou kvalitu v umístění bytových domů, jejichž uspořádání nabízí originální a funkční řešení sdíleného polosoukromého prostoru s potenciálem podporovat komunitní život obyvatel. Dalším pozitivním prvkem návrhu je řešení jednostranného parkování, které je citlivě proloženo stromořadím, a návrh zpomalovacích prvků formou zvýšených prahů v místech křižovatek, které přispívají ke zklidnění dopravy na nově navržených komunikacích. Návrh zaujme jednotným vizuálním přístupem k architektonickému ztvárnění jednotlivých objektů, který přispívá k celkové kompaktnosti a vizuální srozumitelnosti návrhu. Návrh byl porotou oceněn druhou cenou za vyvážené urbanistické řešení, funkční návaznost na okolní struktury a jasnou prostorovou organizaci, která nabízí kvalitní rámec pro budoucí rozvoj území.
Panel z 1. kola:
3. cena (500 000 Kč): návrh č. 2 - RV Atelier / Valašské Meziříčí, Česko
Autori: Jiří Příhoda, Radovan Vašíček, Lucie Kapustová, Mikuláš Ott, Ondřej Sejkora, Petra Šoborová
Hodnotenie poroty:
Návrh přirozeně navazuje na stávající urbanistické osy a zachovává klíčové prostorové i funkční vazby v rámci řešeného území. Porota oceňuje životaschopnost navržené piazzetty, která nabízí kvalitní sdílený veřejný prostor s potenciálem stát se přirozeným centrem pobytových aktivit. Cenným přínosem je citlivé zacházení s pamětí místa, které se odráží v použitých materiálech i architektonických detailech. Funkční a srozumitelné řešení autobusového terminálu se středovým ostrůvkem je dobře integrováno do celkové kompozice návrhu. Kvalitní dojem zanechává i ztvárnění aleje, jejíž zakončení působí přirozeně a prostorově logicky. Dispoziční řešení budovy městského úřadu je funkční a promyšlené, včetně přímého propojení s terminálem, vertikálně zdůrazněného vstupu z nároží, a reprezentativním sálem v posledním podlaží. Porota udělila návrhu třetí cenu jako ocenění za vyvážený přístup, který spojuje cit pro místo s funkčností a prostorovou kvalitou.
Panel z 1. kola:
Finalista (225 000 Kč): návrh č. 4 - Miroslav Kurčík / Ratboř, Česko
Autori: Miroslav Kurčík, Radka Kurčíková, Andrej Kurčík
Hodnotenie poroty:
Porota kladně hodnotí pojetí budovy městského úřadu, jejíž funkční uspořádání je provozně logické a přehledné, a jejíž vertikální akcent přirozeně vytváří výraznou dominantu celého území. Na druhé straně však návrh vykazuje řadu nedostatků, které významně omezují jeho celkovou kvalitu a funkčnost. Mezi hlavní problémy patří umístění městského úřadu do vyššího podlaží, což snižuje jeho přístupnost a srozumitelnost. Rozdílné výškové úrovně vstupního podlaží úřadu a autobusového terminálu znesnadňují plynulé propojení těchto klíčových prvků. Dále je problematické mimoúrovňové řešení piazzetty, které omezuje její využitelnost a kontakt s okolním prostorem. Kapacity městského úřadu jsou nadměrné, což negativně ovlivňuje proporce a efektivitu využití ploch. Významným nedostatkem jsou také zbytkové prostory za městským úřadem a naddimenzované plochy dopravního řešení, které neefektivně zabírají cenný veřejný prostor. Krajinné řešení působí schématicky, což spolu s roztříštěností parkových ploch a nevhodným umístěním bytových domů snižuje kvalitu veřejného prostoru. Absence vhodného ukončení aleje a její schématičnost pak ještě podtrhují nedostatek promyšlenosti v urbanistickém konceptu. Vzhledem k těmto zásadním nedostatkům návrh v konkurenci ostatních projektů nepřesvědčil dostatečně.
Panel z 1. kola:
Finalista (225 000 Kč): návrh č. 11 - Mókembé / Budapešť, Maďarsko
Autori: Marton Komuves, Aron Baki, Mate Gadolla, Akos Takacs
Hodnotenie poroty:
Porota oceňuje funkční uspořádání městského úřadu, které poskytuje dobrý základ pro další rozvoj a užívání objektu Nicméně celkový dojem z návrhu snižuje několik výrazných slabin. Architektonické řešení jednotlivých objektů vykazuje eklektické tvarosloví, které působí stylisticky nejednotně a nedostatečně koherentně v rámci celého území. Dále jsou plochy dopravního řešení naddimenzované, což vede k neefektivnímu využití prostoru. Okolí piazzetty postrádá dostatečný aktivní parter, což snižuje její potenciál stát se atraktivním veřejným prostorem. Mezi další nedostatky patří nevyužitelná plocha uprostřed autobusového terminálu a zbytkový prostor za parkovacím domem, které vytvářejí nepříjemné a nefunkční části území. Umístění a zastavěná plocha bytových domů rovněž neodpovídají optimálnímu využití a propojení s okolím. Vzhledem k těmto zásadním nedostatkům návrh v konkurenci ostatních projektů nepřesvědčil dostatečně.
Panel z 1. kola:
Ostatné návrhy:
Návrh č. 1 - atelier EMIL / Praha, Česko
Návrh č. 5 - LBNK architekti / Praha, Česko
Autori: Pavlína Řmotová, Nela Vicanová, Vojtěch Nejeschleba
Návrh č. 6 - P.P. Architects / Brno, Česko
Návrh č. 7 - Office Ou / Toronto, Kanada
Návrh č. 8 - UYO architekti / Šumperk, Česko
Návrh č. 9 - ENDORFINE / Žilina, Slovensko
Návrh č. 10 - Settanta7 a Ramboll / Turín a Kodaň, Taliansko a Dánsko
Návrh č. 13 - Fabrizio Arrigoni / Rím, Taliansko
Podklady: CCEA MOBA