Na podujatí sa predstaví až 37 vystavovateľov - popredných dodávateľov stavebných materiálov a inovácií s prezentáciou...
Novotvar v prostredí alpskej obce.
Hansgrohe - prémiová značka kúpeľňových riešení, ponúka nadčasový dizajn, technickú precíznosť a udržateľné inovácie...
Využite špeciálnu akciu Internorm: okná za minuloročné ceny a hliníkový kryt úplne zadarmo. Ponuka je časovo obmedzená!
Sumarizácia najdôležitejších inovácií, ktoré redefinujúcich využitie tohto energetického zdroja.
AMPHIBIA 3000 GRIP 1.3 od spoločnosti ATRO predstavuje modernú hydroizolačnú technológiu, ktorá spája vysokú odolnosť,...
Ambiciózne plány EK narazili na ekonomické možnosti domácností v jednotlivých členských štátoch –...
IDEA DOOR od spoločnosti JAP prináša do interiéru čistý minimalistický vzhľad vďaka bezrámovému riešeniu a precíznej...
Kontinuita riešenia od vonkajšieho obkladu až po kovania a kľučky.
Nástenné nadomietkové armatúry Vitus sú mimoriadne vhodné pre rýchlu a efektívnu...
Okenné profily z kompozitného materiálu RAU-FIPRO X od spoločnosti Rehau sú v porovnaní s tradičnými plastovými profilmi mnohonásobne...
Najnovší sortiment stolov pre zariadenie interiérov...
Spojenie moderného dizajnu, funkčnosti a svetla do harmonického architektonického prvku.
Kancelárska budova Baumit v slovinskom Trzine prešla premenou na moderné a udržateľné pracovisko. Architekti kládli dôraz...
Mottom šiesteho ročníku on-line konferencie odborníkov Xella Dialóg je Efektívny návrh budov 2025+: zmeny a riešenia

Sympatické je, že porota nepreferovala iba jeden tvorivý prístup, ale bola otvorená k rôznym predloženým riešeniam.
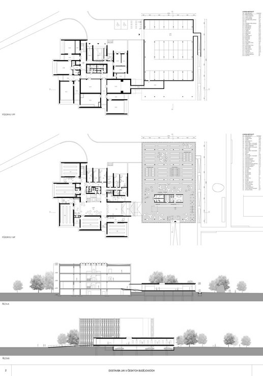
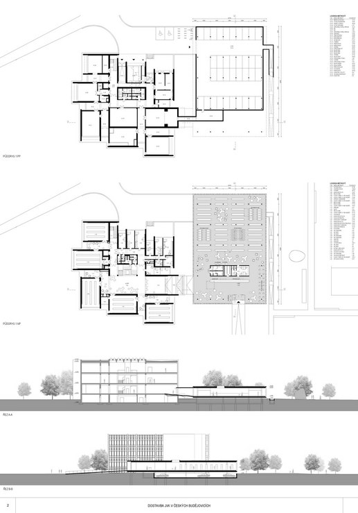
Predmetom súťaže bolo spracovanie architektonického návrhu dostavby Juhočesej vedeckej knižnice v Českých Budejoviciach.
Knižnica sídli v objekte bývalého Múzea robotníckeho hnutia, postaveného v rokoch 1971-75. Návrh mal zahŕňať dostavbu a nutné stavebné úpravy a rešpektovať architektonické kvality pôvodnej budovy. Okrem priestorového, prevádzkového a funkčného usporiadania mal návrh vyriešiť tiež estetickú podobu objektu a úpravy verejného priestoru s ohľadom na ekonomické možnosti obstarávateľa.
Víťazný návrh rozširuje knižnicu lapidárnou formou "levitujúcej" jednopodlažnej dostavby, ktorá je s pôvodným objektom spojená iba v mieste súčasného vstupu. Vonkajší plášť tvoria predsadené vertikálne copilitové lamely. Horizontálna hmota zodpovedá prevádzkovo dispozičným požiadavkám zadávateľa na vytvorenie nového bezbariérového vstupu do budovy a rozšírenie priestoru voľného výberu v nadväznosti na vstupnú časť objektu. Toto riešenie umožní knižnici voľne sprístupniť viac než 130.000 zväzkov kníh a periodík.
Riešenie rešpektuje dominantné postavenie budovy bývalého múzea a vytvára priestor pre budúcu rekonštrukciu. Súčasťou štúdie sú úpravy vstupu a okolitého verejného priestranstva ale aj nové parkovisko a dopravné napojenie.
1. miesto: Kuba & Pilař architekti, 300 000,- Kč
Hodnotenie poroty:
- Návrh zachovává dominatní polohu stávající budovy
- Dotváří solitérní zástavbu celého území
- Má přehlednou dispozici na jedné úrovni
- Vyhovuje provozním požadavkům knihovny
- Objemově, konstrukčně a finančně jde o přiměřené a úsporné řešení
- Parametry přístavby respektují stanovisko památkové péče
Doporučení pro dopracování:
Do doby vybudování okružní křižovatky je nutné navrhnout variantní řešení dopravního napojení (souvisí s úpravami veřejného prostranství). Propojení obou budov spojovacím krčkem není přesvědčivě řešeno. Přístup z parkingu do budovy vyřešit vhodnějším způsobem. Zvážit orientaci studijních míst směrem k parku.
Súťažné panely:
2. miesto: Ivan Kroupa architekti, 240 000,- Kč
Hodnotenie poroty:
- Velkorysost prostorového konceptu, konstrukčně a finančně jde o náročné řešení
- Snaha o urbanistické dokomponování celé oblasti, čitelná orientace stavby
- Vyhovuje provozním požadavkům knihovny
- Bezbariérový přístup z parkingu je problematický
Súťažné panely:
3. miesto: Projektil Architekti, 180 000,- Kč
Hodnotenie poroty:
- Návrh ponechává stávajícímu objektu jeho solitérnost a posiluje význam instituce formou nástavby
- Optimálně využívá potenciál stávající budovy z hlediska prostorového uspořádání, ale provozně nevyhovujícím způsobem
- Maximálně zachovává parkové plochy s kvalitní výškovou modelací terénu
- Je v rozporu se stanoviskem památkové péče
Súťažné panely:
Odborná porota vybrala víťaza spomedzi šiestich súťažných návrhov.
Dostavba knižnice by v prípade získania európskych dotácií mohla byť realizovaná v rokoch 2019 až 2020.
Podklady: Mirek Vodák