Na podujatí sa predstaví až 37 vystavovateľov - popredných dodávateľov stavebných materiálov a inovácií s prezentáciou...
Novotvar v prostredí alpskej obce.
Hansgrohe - prémiová značka kúpeľňových riešení, ponúka nadčasový dizajn, technickú precíznosť a udržateľné inovácie...
Využite špeciálnu akciu Internorm: okná za minuloročné ceny a hliníkový kryt úplne zadarmo. Ponuka je časovo obmedzená!
Sumarizácia najdôležitejších inovácií, ktoré redefinujúcich využitie tohto energetického zdroja.
AMPHIBIA 3000 GRIP 1.3 od spoločnosti ATRO predstavuje modernú hydroizolačnú technológiu, ktorá spája vysokú odolnosť,...
Ambiciózne plány EK narazili na ekonomické možnosti domácností v jednotlivých členských štátoch –...
IDEA DOOR od spoločnosti JAP prináša do interiéru čistý minimalistický vzhľad vďaka bezrámovému riešeniu a precíznej...
Kontinuita riešenia od vonkajšieho obkladu až po kovania a kľučky.
Nástenné nadomietkové armatúry Vitus sú mimoriadne vhodné pre rýchlu a efektívnu...
Okenné profily z kompozitného materiálu RAU-FIPRO X od spoločnosti Rehau sú v porovnaní s tradičnými plastovými profilmi mnohonásobne...
Najnovší sortiment stolov pre zariadenie interiérov...
Spojenie moderného dizajnu, funkčnosti a svetla do harmonického architektonického prvku.
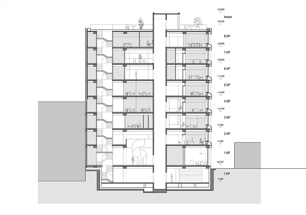
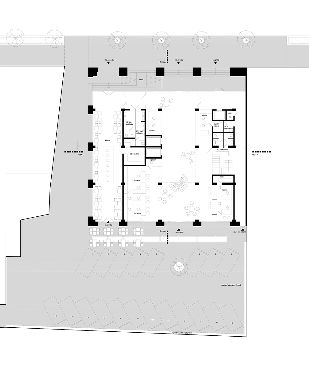
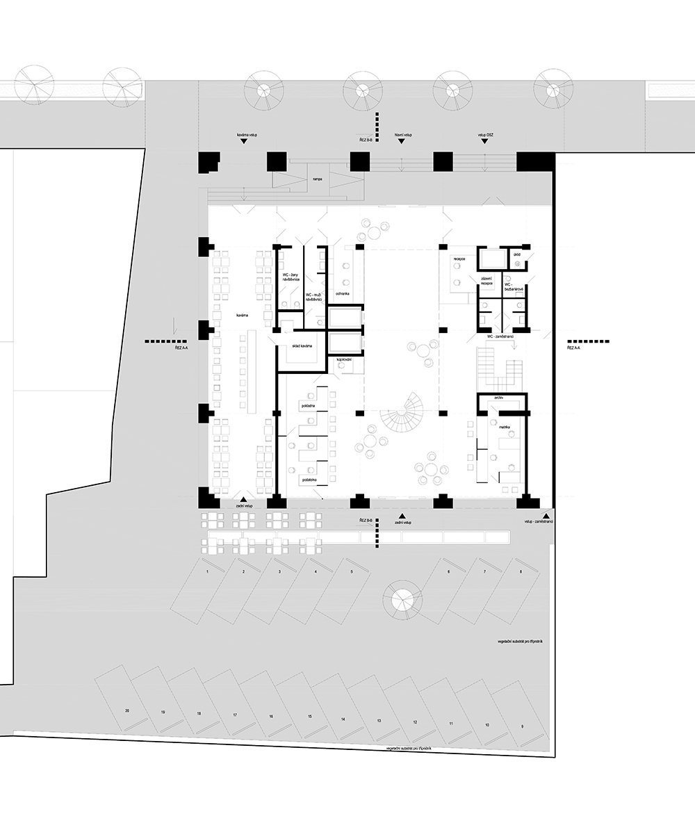
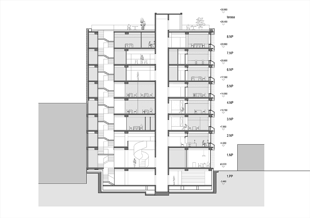
Kancelárska budova Baumit v slovinskom Trzine prešla premenou na moderné a udržateľné pracovisko. Architekti kládli dôraz...
Mottom šiesteho ročníku on-line konferencie odborníkov Xella Dialóg je Efektívny návrh budov 2025+: zmeny a riešenia

Praha 7 predstavila budúcu podobu nového sídla radnice mestskej časti. V medzinárodnoej architektonickej súťaži zvíťazil návrh pražského ateliéru bod architekti. Druhé miesto obsadili Anne-Sereine Tremblayová a Jan Kudlička z Holandska a tretie miesto patrí štvorici Martin Čeněk, Dalibor Hlaváček, Ludvík Holub a Zuzana Kučerová z Prahy. Rekonštrukcia radnice by mala začať v priebehu budúceho roku.
Súťaž hľadá odpoveď na otázku, ako má v 21. storočí vyzerať radnica mestskej časti: ako na existujúcom skelete budovy postaviť dom, ktorý bude reprezentatívny, užívateľsky prívetivý a hlavne bude vedieť starnúť a zachovať si svoju dôstojnosť aj za 50 či viac rokov.
V súčastnosti prebieha v Prahe aj výstava súťažných návrhov.
O výsledkoch súťaže o návrh novej radnice pre Prahu 7 rozhodla porota v zložení:
Členvia poroty závislí:
Mgr. Jan Čižinský - miestopredseda poroty
PhDr. Ing. arch. Lenka Burgerová, PhD.
Pavel Zelenka - náhradník
Členovia poroty nezávislí:
Arch. Silvia Brandi (IT)
MArch Jörn Aram Bihain (BE)
Ing. arch. Kamil Mrva (CZ) - predseda poroty
Ing. arch. Lukáš Kordík (SK)
Ing. arch. Lukáš Kohl (CZ)
Ing. arch. Magdalena Rochová (CZ) - náhradník
1. miesto: Ateliér bod architekti
Z autorskej správy:
"Výrazové prostředky použité při rekonstrukci domu citují tvarosloví a matérii Holešovic, dům ctí historický kontext čtvrti, ctí její specifika, ctí průmyslovou estetiku v Holešovicích často postavenou na detailu z cihly. Byť je objekt výrazný, jeho výraznosti je docíleno pokornou cestou - použitím tradičních holešovických motivů. Původní objekt je očištěn na samotný skelet, na technickou nutnost – na nosnou konstrukci, kterou vnímáme jako krásnou. Krása inženýrských staveb tkví v jejich opravdovosti a upřímnosti. Proto ctíme velikosti stavebních modulů, rytmus konstrukce. Používáme motivy, které dělají z běžného domu dům vznešený – radnici."
2. miesto: Anne-Sereine Tremblayová a Jan Kudlička
3. miesto: Martin Čeněk, Dalibor Hlaváček, Ludvík Holub a Zuzana Kučerová