Advertorial

Hotel Hirschen Spa House, Rakúsko

Novotvar v prostredí alpskej obce.

Vytvorte si kúpeľňu snov: dizajnové riešenie od značky hansgrohe

Hansgrohe - prémiová značka kúpeľňových riešení, ponúka nadčasový dizajn, technickú precíznosť a udržateľné inovácie...

Okná Internorm za minuloročné ceny + hliníkový kryt zdarma!

Využite špeciálnu akciu Internorm: okná za minuloročné ceny a hliníkový kryt úplne zadarmo. Ponuka je časovo obmedzená!

Pozvánka na 2. ročník stavebného veľtrhu BigMarket na Slovensku

Na podujatí sa predstaví až 37 vystavovateľov - popredných dodávateľov stavebných materiálov a inovácií s prezentáciou...

Moderné plynové technológie: Efektivita a inovácie pre 21. storočie

Sumarizácia najdôležitejších inovácií, ktoré redefinujúcich využitie tohto energetického zdroja.

Utesňovanie spodných stavieb pomocou hydro-aktívnej fólie AMPHIBIA.

AMPHIBIA 3000 GRIP 1.3 od spoločnosti ATRO predstavuje modernú hydroizolačnú technológiu, ktorá spája vysokú odolnosť,...

Dekarbonizácia individuálneho vykurovania domácností – Green Deal evolučne a nie revolučne

Ambiciózne plány EK narazili na ekonomické možnosti domácností v jednotlivých členských štátoch –...

Minimalistické dvere IDEA – technická precíznosť a čistota prevedenia

IDEA DOOR od spoločnosti JAP prináša do interiéru čistý minimalistický vzhľad vďaka bezrámovému riešeniu a precíznej...

Dom s výhľadom na údolie, Dlouhý Most (ČR)

Kontinuita riešenia od vonkajšieho obkladu až po kovania a kľučky.

Schell Vitus – osvedčené riešenie pre sprchy a umývadlá vo verejnom sektore s viac ako desaťročnou tradíciou

Nástenné nadomietkové armatúry Vitus sú mimoriadne vhodné pre rýchlu a efektívnu...

Kompozitné okná predstavujú súčasnosť a budúcnosť

Okenné profily z kompozitného materiálu RAU-FIPRO X od spoločnosti Rehau sú v porovnaní s tradičnými plastovými profilmi mnohonásobne...

Myotis - stoly 2025

Najnovší sortiment stolov pre zariadenie interiérov...

Priemyselné sklenené priečky Dorsis Digero: svetelné rozhranie pre moderné interiéry

Spojenie moderného dizajnu, funkčnosti a svetla do harmonického architektonického prvku.

Význam prirodzeného svetla pre moderné a flexibilné pracovné prostredie

Kancelárska budova Baumit v slovinskom Trzine prešla premenou na moderné a udržateľné pracovisko. Architekti kládli dôraz...

Konferencia Xella Dialóg predstaví novinky a trendy v stavebníctve

Mottom šiesteho ročníku on-line konferencie odborníkov Xella Dialóg je Efektívny návrh budov 2025+: zmeny a riešenia

Strešná nadstavba, Praha - Bubeneč

Český architekt Petr Hájek vidí potenciál v nadstavbách a využití striech existujúcich budov v centre miest pre vytvorenie nových priestorov na bývanie. Realizácia z jeho tvorby je jedným z príkladov, ako pristupovať k tejto problematike.
Diela
Red 418.04.2016
10720+7
Strešná nadstavba, Praha - Bubeneč
Autori: doc. Ing. Mgr. akad. arch Petr HájekRealizácia: 2007 - 2009Adresa: Letná , Praha 7, Česká republikaPublikované: 18. apríl 2016

„Tento projekt je jednou z možností jak intenzivněji využívat současná města. Místo toho, abyste si koupili pozemek na kraji města a odstěhovali se z centra, koupíte si střechu a postavíte si na ní dům. Chtěl jsem ukázat, že je reálné i v historické Praze využít už jednou zastavěného pozemku a postavit dům na domě. Spojit kvalitu bydlení za městem a výhody bydlení v centru.“

Vysoké ceny pozemků a jejich nedostatek vytlačuje bydlení z center měst na periferii. To ve svém důsledku vede ke vzniku příměstských monofunkčních aglomerací. Jejich obyvatelé jsou většinou odkázáni na automobil, ve kterém tráví podstatnou část života při cestě za prací a službami. Pro zlepšení této situace bude nutné hledat uvnitř měst další rozvojový potenciál. Jednou z možností jak získat nový prostor je intenzivnější využívání střech budov. Tento projekt se dívá na střechu nejen jako na místo, do kterého je možné bydlení vestavět, ale jako na plnohodnotný stavební pozemek.

foto: Ester Havlová
foto: Ester Havlová

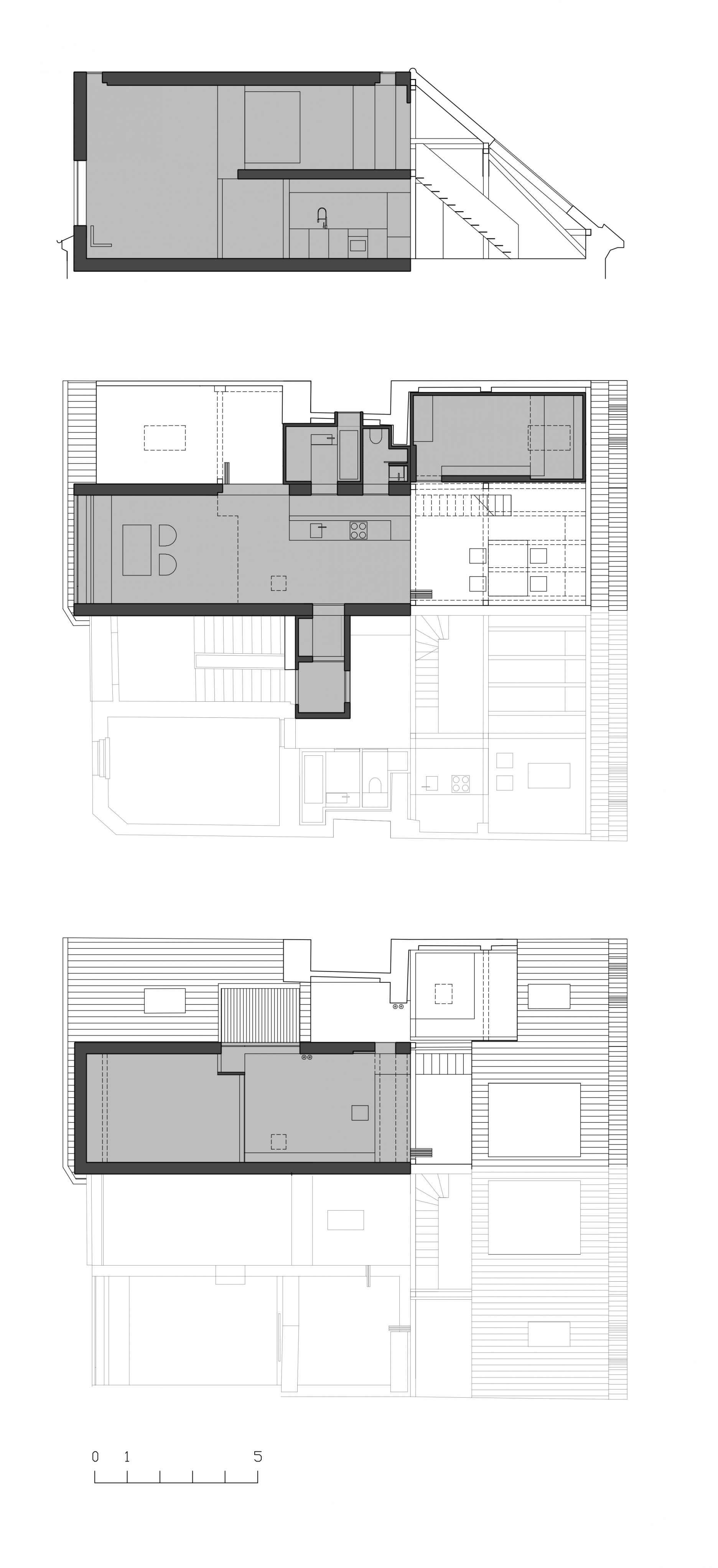
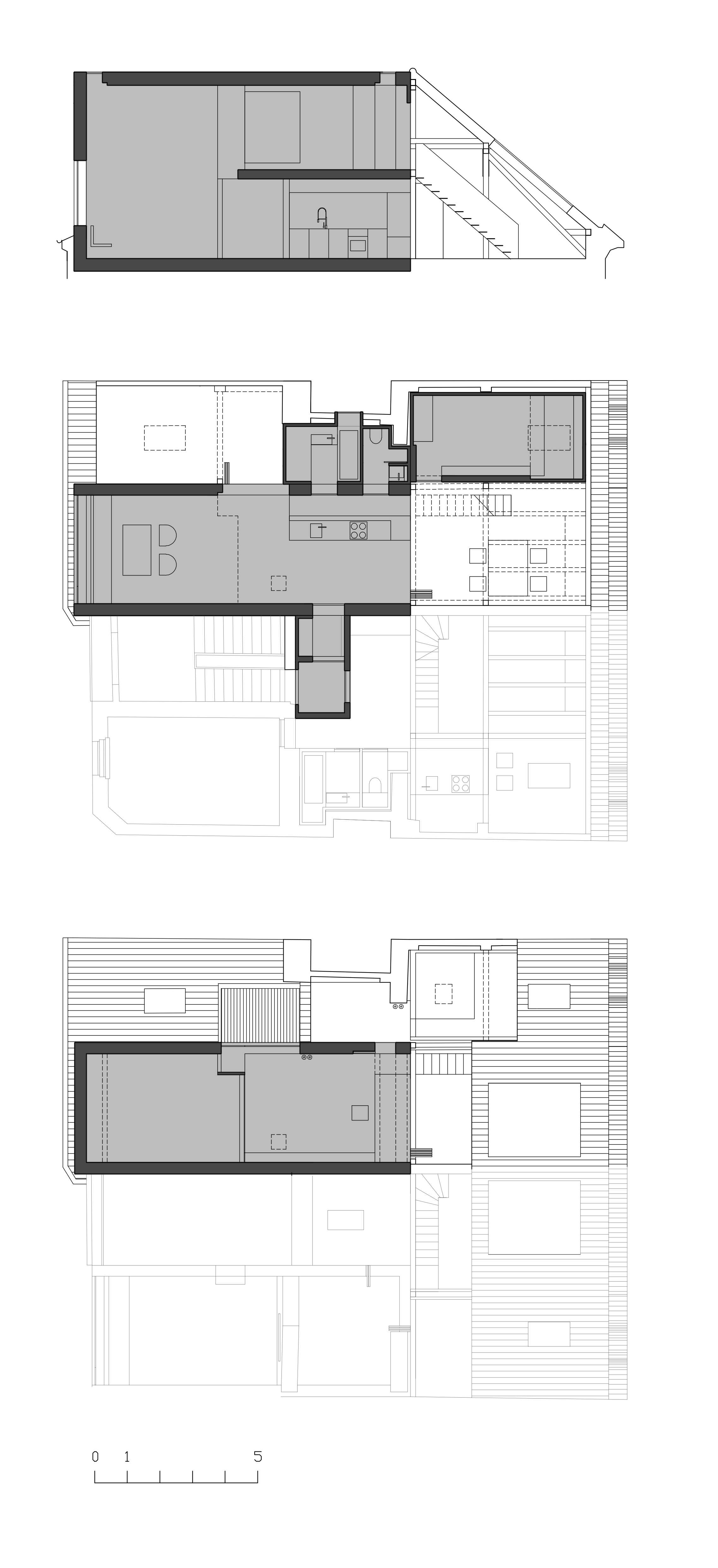
Nástavbu představují „kontejnery“ vložené do střechy a krovu tak, aby nenarušily čitelnost původního tvaru domu. Kontejnery – prostorové boxy obsahují obytné místnosti, sociální a technické zázemí. Zbylá část původního podkroví je využita pro ložnice a šatny. Vložené boxy lze v interiéru skládacími stěnami „zaklapnout“ a vytvořit z nich kompaktní objemy. Tak je možné vnitřní prostory podle potřeby rozdělit do jednotlivých místností nebo naopak propojovat do větších celků.

Schémy
Schémy
Rez a pôdorysy nadstavby
Rez a pôdorysy nadstavby

Pro pohledy ven jsou do stěn vyříznuty velké otvory „oči“, které lze rovněž uzavřít. Z paluby umístěné na kovovém boxu je krásný výhled na okolní město. Materiálové řešení vychází z architektonického konceptu návrhu. Původní části střechy jsou obnoveny tradičními technologiemi. U vkládaných boxů je pro zvýšení kontrastu použit titanzinkový plech a barevné nátěry. Všechny konstrukce jsou postaveny běžnými technologiemi z běžných materiálů (dřevo, sklo, kov, sádrokarton). Z důvodu odlišení jsou původní části krovu ponechány syrové bez povrchových úprav. Naopak nové vkládané prvky jsou potaženy titanzinkovým plechem nebo opatřeny barevnými nátěry.

foto: Ester Havlová
foto: Ester Havlová
foto: Ester Havlová
foto: Ester Havlová
foto: Ester Havlová
foto: Ester Havlová
foto: Ester Havlová
foto: Ester Havlová

Pozrite si zaujímavé video o tejto stavbe, ktoré priniesol Adam Gebrian vo svojom programe Gebrian versus. Možete si ho pozrieť tu, alebo kliknutím na obrázok nižšie.

Podklady: Petr Hájek

Poloha diela

doc. Ing. Mgr. akad. arch Petr Hájek
Vložené
18. apríl 2016
0
1072
Hlavný obsahHlavný obsah
Čakajte prosím