Advertorial

Pozvánka na 2. ročník stavebného veľtrhu BigMarket na Slovensku

Na podujatí sa predstaví až 37 vystavovateľov - popredných dodávateľov stavebných materiálov a inovácií s prezentáciou...

Hotel Hirschen Spa House, Rakúsko

Novotvar v prostredí alpskej obce.

Vytvorte si kúpeľňu snov: dizajnové riešenie od značky hansgrohe

Hansgrohe - prémiová značka kúpeľňových riešení, ponúka nadčasový dizajn, technickú precíznosť a udržateľné inovácie...

Okná Internorm za minuloročné ceny + hliníkový kryt zdarma!

Využite špeciálnu akciu Internorm: okná za minuloročné ceny a hliníkový kryt úplne zadarmo. Ponuka je časovo obmedzená!

Moderné plynové technológie: Efektivita a inovácie pre 21. storočie

Sumarizácia najdôležitejších inovácií, ktoré redefinujúcich využitie tohto energetického zdroja.

Utesňovanie spodných stavieb pomocou hydro-aktívnej fólie AMPHIBIA.

AMPHIBIA 3000 GRIP 1.3 od spoločnosti ATRO predstavuje modernú hydroizolačnú technológiu, ktorá spája vysokú odolnosť,...

Dekarbonizácia individuálneho vykurovania domácností – Green Deal evolučne a nie revolučne

Ambiciózne plány EK narazili na ekonomické možnosti domácností v jednotlivých členských štátoch –...

Minimalistické dvere IDEA – technická precíznosť a čistota prevedenia

IDEA DOOR od spoločnosti JAP prináša do interiéru čistý minimalistický vzhľad vďaka bezrámovému riešeniu a precíznej...

Dom s výhľadom na údolie, Dlouhý Most (ČR)

Kontinuita riešenia od vonkajšieho obkladu až po kovania a kľučky.

Schell Vitus – osvedčené riešenie pre sprchy a umývadlá vo verejnom sektore s viac ako desaťročnou tradíciou

Nástenné nadomietkové armatúry Vitus sú mimoriadne vhodné pre rýchlu a efektívnu...

Kompozitné okná predstavujú súčasnosť a budúcnosť

Okenné profily z kompozitného materiálu RAU-FIPRO X od spoločnosti Rehau sú v porovnaní s tradičnými plastovými profilmi mnohonásobne...

Myotis - stoly 2025

Najnovší sortiment stolov pre zariadenie interiérov...

Priemyselné sklenené priečky Dorsis Digero: svetelné rozhranie pre moderné interiéry

Spojenie moderného dizajnu, funkčnosti a svetla do harmonického architektonického prvku.

Význam prirodzeného svetla pre moderné a flexibilné pracovné prostredie

Kancelárska budova Baumit v slovinskom Trzine prešla premenou na moderné a udržateľné pracovisko. Architekti kládli dôraz...

Konferencia Xella Dialóg predstaví novinky a trendy v stavebníctve

Mottom šiesteho ročníku on-line konferencie odborníkov Xella Dialóg je Efektívny návrh budov 2025+: zmeny a riešenia

Centrum súčasného umenia DOX+, Praha - Holešovice

High-tech priestor pre moderné umenie.
Diela
Red 411.11.2019
14110+17
Centrum súčasného umenia DOX+, Praha - Holešovice
Autori: doc. Ing. Mgr. akad. arch. Petr Hájek, Ing. arch. Tereza Keilová, Mag. arch. Cornelia Klien, Ing. arch. Benedikt MarkelSpolupráca: Ing. arch. Martin Stoss, Leoš VálkaInvestor: BOX a. s. - Leoš VálkaNávrh: 2014 - 2018Realizácia: 2014 - 2018Adresa: Poupětova , Česko 1, Praha , SlovenskoPublikované: 11. november 2019

Prestavba bývalej továrne na multifunkčný priestor pre umenie architektúru a dizajn, ktorú projektoval Ivan Kroupa,  bola po dokončení v roku 2008 nominovaná na prestížnu európsku architektonickú cenu Mies van der Rohe Award. Pôvodný súbor s ťažiskom vo výstavných priestoroch sa postupne rozrastal. Pred tromi rokmi napríklad pribudla nad strechami centra architektonická intervencia inšpirovaná elegantnými tvarmi vzducholodí z počiatku dvadsiateho storočia. Dielo Martina Rajniša sme predstavili v samostatnom článku. Najnovším prírastkom v areáli je Súbor budov DOX+, ktorý rozširuje Centrum pre súčasné umenie o priestory pre tanec, hudbu, film a v neposlednom rade o školu architektúry.

Celkový pohľad na dvorový trakt
Celkový pohľad na dvorový traktFoto: Benedikt Markel
Situácia
SituáciaAutor: Petr Hájek ARCHITEKTI
Usporiadanie funkcií
Usporiadanie funkciíAutor: Petr Hájek ARCHITEKTI

Realizácia ateliéru Petra Hájka nadväzuje na architektonické kvality starších objektov. Nové budovy spolu tvoria jeden kompozičný celok. “Tento princip je symbolicky vyjádřen jednotným barevným odstínem světle šedé barvy a plastickým provázáním všech částí do jednoho objemu. Ve výsledku tak lze komplex vnímat jako jednu strukturovanou sochu,” vysvetľuje svoj zámer architekt Petr Hájek.

Tanečná skúšobňa
Tanečná skúšobňaFoto: Benedikt Markel
Experimentálna hudobná a tanečná sála, tanečná skúšobňa
Experimentálna hudobná a tanečná sála, tanečná skúšobňaFoto: Benedikt Markel

Administratívna časť so vstupnými priestormi, klubom a reštauráciou slúži zo svojej väčšej časti ako škola architektúry Archip. Budova vznikla rekonštrukciou stavby zo 70. rokov minulého storočia. Základné priestorové usporiadanie objektu a voľná dispozícia ostali zachované. Úpravy interiéru rešpektujú v detaile a materiáloch dobu vzniku objektu (linoleum, drevené dyhované dvere, terazzo...).

Škola architektúry ARCHIP
Škola architektúry ARCHIPFoto: Benedikt Markel
Zelená strecha sály
Zelená strecha sályFoto: Benedikt Markel
Model Centra súčasného umenia DOX+
Model Centra súčasného umenia DOX+Foto: Benedikt Markel

"Čalúnená" fasáda

Experimentálna hudobná a tanečná sála a tanečná skúšobňa sú odliate z pohľadového betónu. Monolitické železobetónové objekty sú "oblečené" do mäkkej fasády. Minerálna vlna je potiahnutá PVC fóliou, ktorá je v pravidelnom rastri kotvená do betónu. Fasáda podľa slov architekta efektívne pohlcuje hluk vychádzajúci zo sály a znižuje akustickú záťaž obytného dvora. Uplatnenie vzoru pripomínajúceho čalúnený nábytok bolo zvolené vzhľadom na jeho účinnosť pri rozložení ťahových síl na povrchu fólie. Ani pri silných mrazoch nedochádza ku kritickému napätiu pri zmrštení fólie, alebo naopak, pri vysokých povrchových teplotách k strate predpätia.

Priestorová schéma
Priestorová schémaAutor: Petr Hájek ARCHITEKTI
Detail - PVC fólia ako finálna pohľadová vrstva
Detail - PVC fólia ako finálna pohľadová vrstvaAutor: Petr Hájek ARCHITEKTI

Akustika v hlavnej úlohe

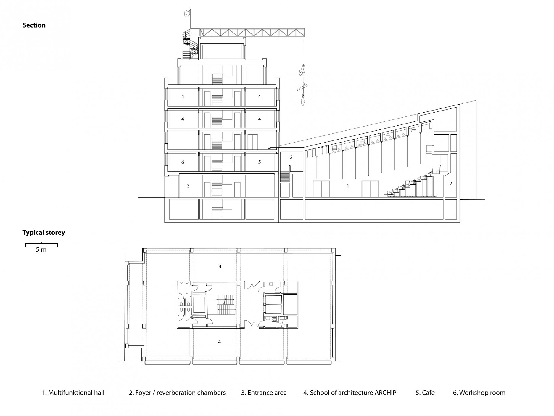
“Sál má proměnou akustiku a lze jej tak připodobnit k hudebnímu nástroji, který je možné zvukově vyladit dle potřeby konkrétní produkce,” vysvetľuje architekt. Na tento účel slúžia otočné, akustické trojhranné stropné panely a foyer slúžiaci ako dozvuková komora. Každá zo strán stropného panelu má povrch s rozdielnymi akustickými vlastnosťami. Otočením trojhranného prvku je možné voliť medzi reflexným, difúznym alebo akusticky pohltivým povrchom. Korekcia akustických vlastností stropu dokáže výrazne ovplyvniť akustické parametre celej sály. Hlavnú sálu obklopuje prstenec foyer, ktorý je možné v prípade špeciálnych predstavení využiť ako dozvukové komory. Pridaním týchto priestorov k objemu hlavnej sály dôjde k výraznému predĺženiu doby dozvuku predovšetkým v pásme nízkych frekvencií. Vďaka štvorcovému pôdorysu nebolo nutné steny obkladať akustickými obkladmi. Sála s kapacitou päťsto divákov stihla už počas svojej krátkej prevádzky preukázať svoje akustické kvality. V súčasnej dobe je využívaná aj ako referenčné nahrávacie štúdio. 

Schéma variabilného riešenia akustiky hudobnej a tanečnej sály
Schéma variabilného riešenia akustiky hudobnej a tanečnej sályAutor: Petr Hájek ARCHITEKTI
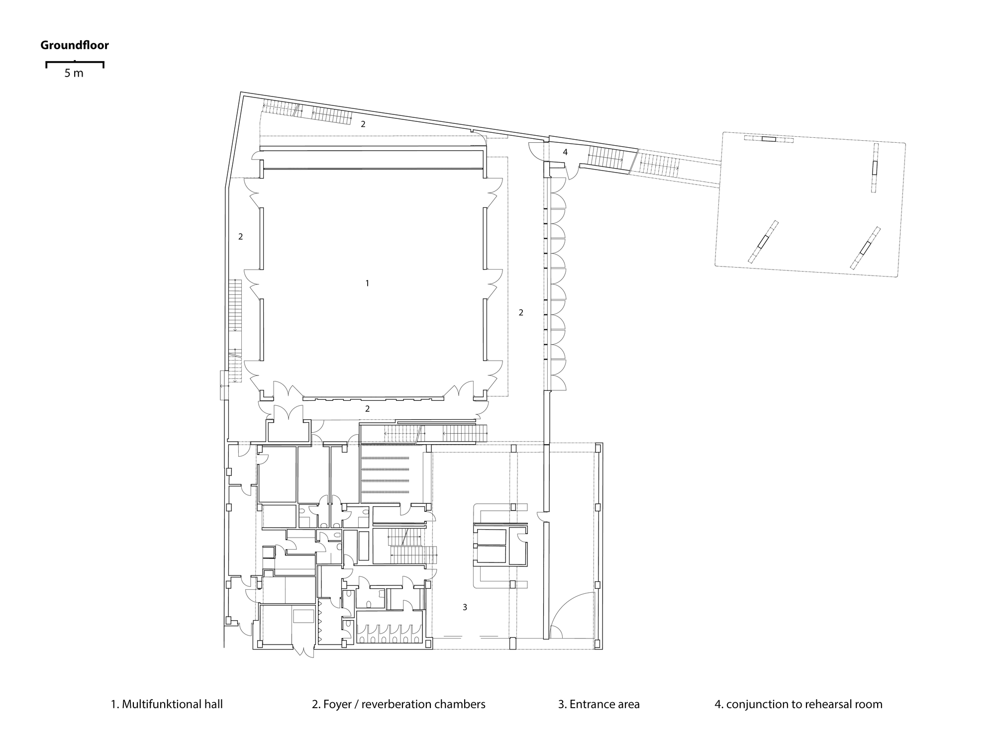
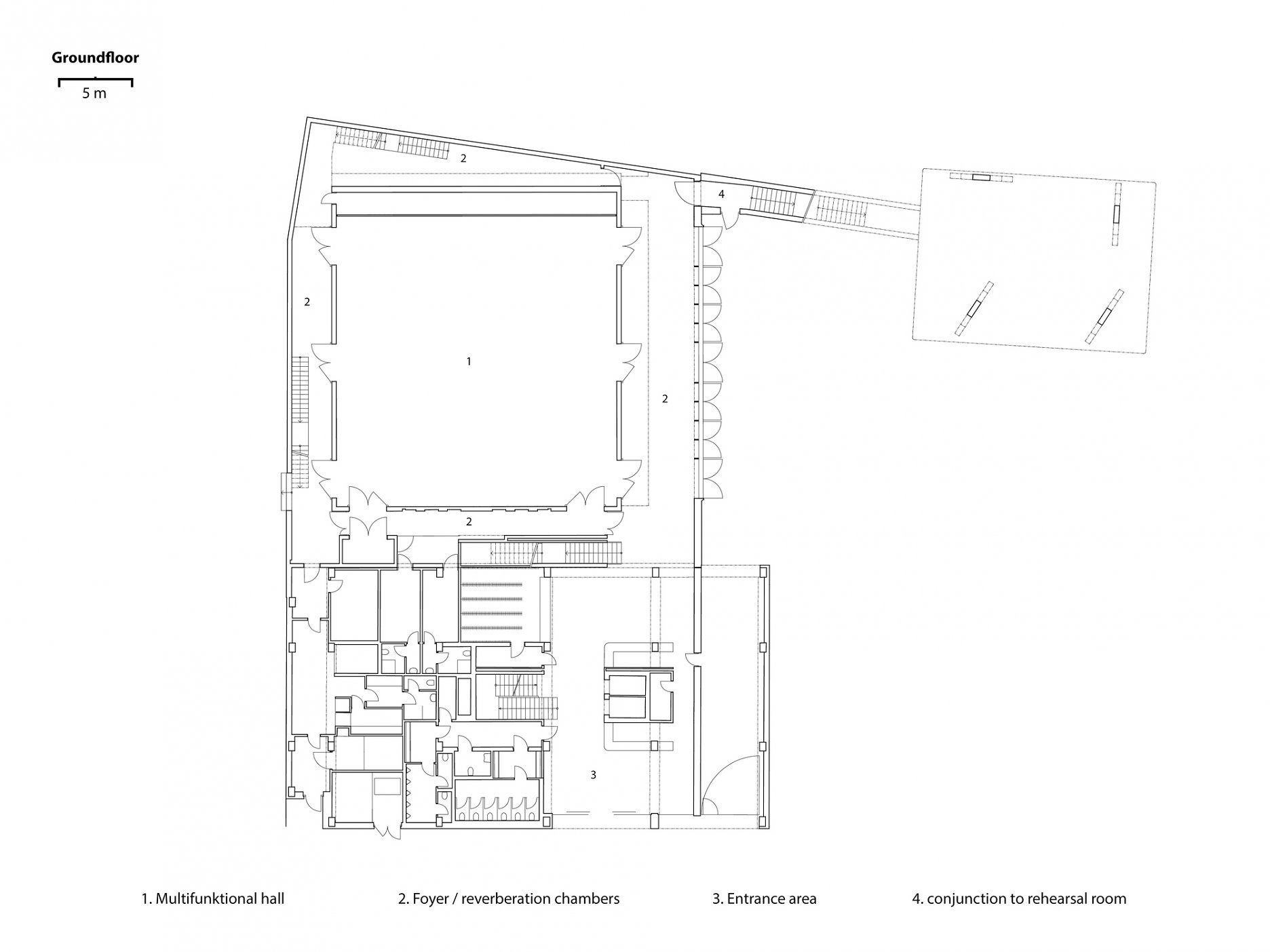
Pôdorys 1. NP
Pôdorys 1. NPAutor: Petr Hájek ARCHITEKTI
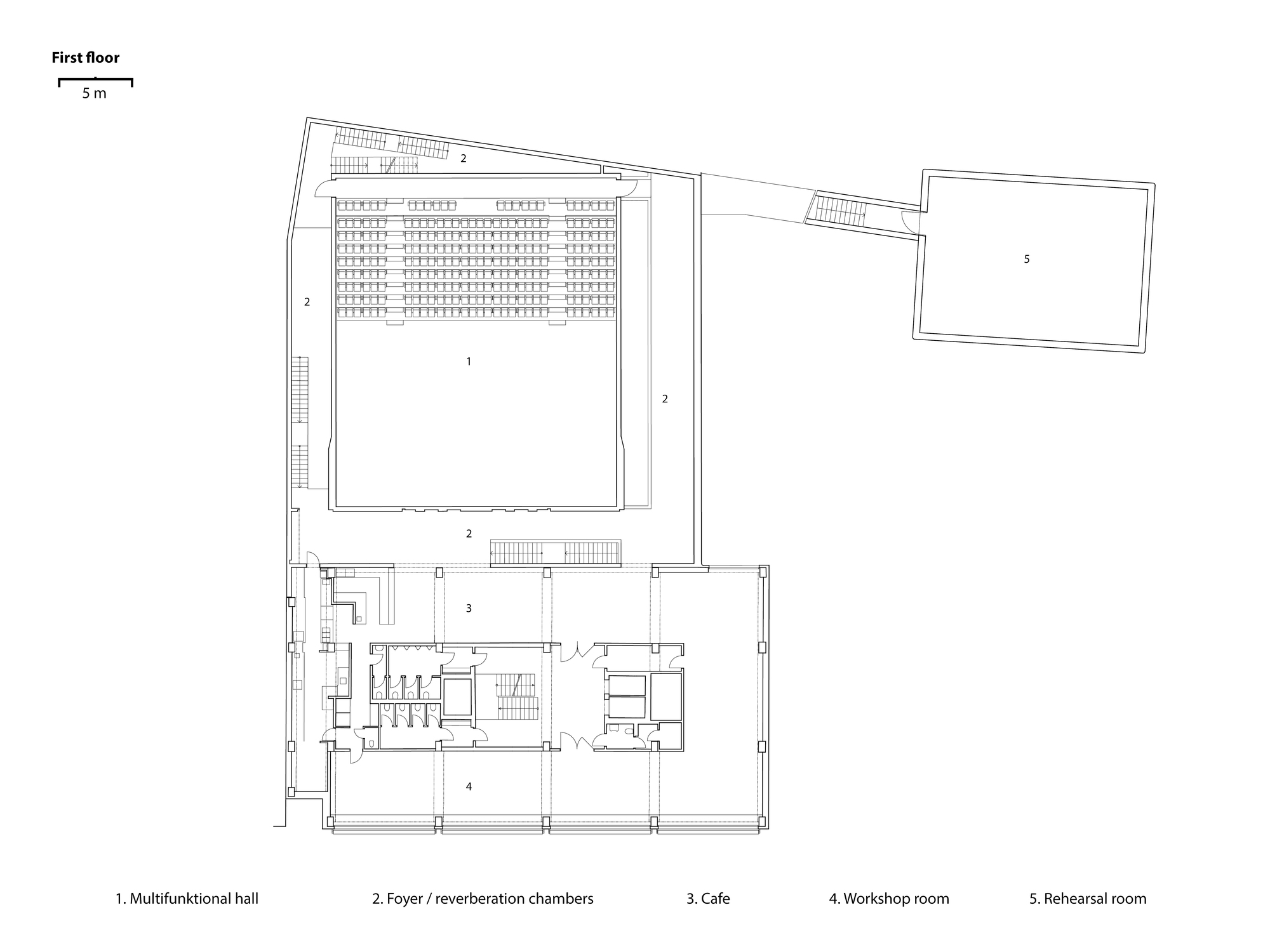
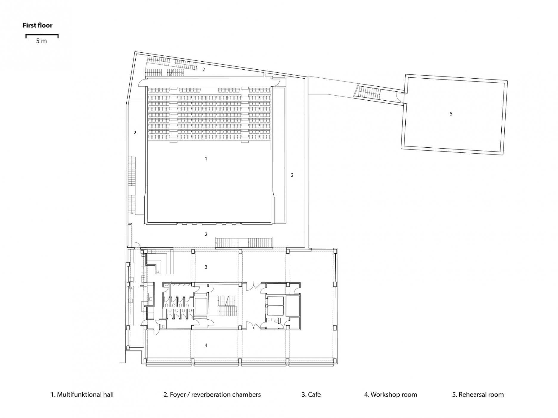
Pôdorys 2. NP
Pôdorys 2. NPAutor: Petr Hájek ARCHITEKTI

Na streche sály sa nachádza “zelená lúka”, ktorá v letných mesiacoch slúži ako miesto pre relax, vonkajšie inštalácie alebo ako hľadisko vonkajších predstavení. Nad exteriérovým hľadiskom je umiestnená vysutá lávka pre akrobatický tanec.

Rez a pôdorys typického podlažia
Rez a pôdorys typického podlažiaAutor: Petr Hájek ARCHITEKTI

Technické vybavenie sály zahŕňa výsuvné hľadisko, scénickú technológiu opôn s eleváciou, alebo laserový projektor.

Experimentálna hudobná a tanečná sála
Experimentálna hudobná a tanečná sálaFoto: Benedikt Markel
Experimentálna hudobná a tanečná sála - pohľad z hľadiska
Experimentálna hudobná a tanečná sála - pohľad z hľadiskaFoto: Benedikt Markel

Tanečná skúšobňa má pôdorys zhodný s rozmermi javiska hlavnej sály. Nad vnútorným dvorom "tancuje" na šikmých stĺpoch. Ich geometria nie je náhodná, vyhýba sa kolíznym prevádzkovým uzlom a technickým inštaláciám pod dlažbou.

Tanečná skúšobňa
Tanečná skúšobňaFoto: Benedikt Markel
Foyer
FoyerFoto: Benedikt Markel
Foyer / dozvuková komora
Foyer / dozvuková komoraFoto: Benedikt Markel
Škola architektúry ARCHIP
Škola architektúry ARCHIPFoto: Benedikt Markel
Koncert Mortona Feldmana, Symfonický orchester Českého rozhlasu
Koncert Mortona Feldmana, Symfonický orchester Českého rozhlasuFoto: Jan Slavik
Koncert Tata Bojs
Koncert Tata BojsFoto: Jan Slavik
Tanečné predstavenie súboru Farma v jeskyni
Tanečné predstavenie súboru Farma v jeskyniFoto: Michal Hančovský

Poloha diela

doc. Ing. Mgr. akad. arch. Petr Hájek
Ing. arch. Tereza Keilová
Mag. arch. Cornelia Klien
Ing. arch. Benedikt Markel

Súvisiace články

Vložené
10. november 2019
0
1411
Hlavný obsahHlavný obsah
Čakajte prosím