Na podujatí sa predstaví až 37 vystavovateľov - popredných dodávateľov stavebných materiálov a inovácií s prezentáciou...
Novotvar v prostredí alpskej obce.
Hansgrohe - prémiová značka kúpeľňových riešení, ponúka nadčasový dizajn, technickú precíznosť a udržateľné inovácie...
Využite špeciálnu akciu Internorm: okná za minuloročné ceny a hliníkový kryt úplne zadarmo. Ponuka je časovo obmedzená!
Sumarizácia najdôležitejších inovácií, ktoré redefinujúcich využitie tohto energetického zdroja.
AMPHIBIA 3000 GRIP 1.3 od spoločnosti ATRO predstavuje modernú hydroizolačnú technológiu, ktorá spája vysokú odolnosť,...
Ambiciózne plány EK narazili na ekonomické možnosti domácností v jednotlivých členských štátoch –...
IDEA DOOR od spoločnosti JAP prináša do interiéru čistý minimalistický vzhľad vďaka bezrámovému riešeniu a precíznej...
Kontinuita riešenia od vonkajšieho obkladu až po kovania a kľučky.
Nástenné nadomietkové armatúry Vitus sú mimoriadne vhodné pre rýchlu a efektívnu...
Okenné profily z kompozitného materiálu RAU-FIPRO X od spoločnosti Rehau sú v porovnaní s tradičnými plastovými profilmi mnohonásobne...
Najnovší sortiment stolov pre zariadenie interiérov...
Spojenie moderného dizajnu, funkčnosti a svetla do harmonického architektonického prvku.
Kancelárska budova Baumit v slovinskom Trzine prešla premenou na moderné a udržateľné pracovisko. Architekti kládli dôraz...
Mottom šiesteho ročníku on-line konferencie odborníkov Xella Dialóg je Efektívny návrh budov 2025+: zmeny a riešenia

Revitalizácia pražských náplaviek je jedna z najväčších investícií českej Metropoly do verejného priestoru za posledné desiatky rokov. Od prvotných impulzov tento proces trvá viac ako desať rokov. Novootvorené a využité kobky v nábrežnom múre vytvárajú tak potrebné zázemie a predlžujú “náplavkovú sezónu” na celý rok. Za projektom od počiatku stojí architekt Petr Janda a jeho ateliér brainwork.
Projekt, budovaný viac ako dekádu, inicioval v roku 2009 architekt Petr Janda. Náplavky, historicky koncipované ako prístavisko a prekladisko materiálu, boli po povodni v roku 2002 opustené a oficiálne prenajímané ako parkoviská. Postupná obsahová aktivácia znamenala kultúrno-spoločenské oživenie, na ktoré nadviazala architektonická intervencia a kultivácia jednotlivých priestorov.
Urbanistický kontext
Náplavky sú verejným priestorom celomestského významu. “Jsou pražským pobřežím umožňujícím symbiózu veřejného prostoru s míchou města - řekou Vltavou. V regulované části břehů se z nábřežní architektury stává pro míchu řeky páteř, která skrze jednotlivé 'obratle' náplavek drží skeletální systém města, na nějž je navěšena celá urbanistická struktura tvořící jeho tělo. Tento skelet nesmí být zatvrdlý, vypreparovaný a zaživa petrifikovaný jako památkový relikt a musí umožnovat proudění a kulturní život celopražského významu postavený na autenticitě architektonické a obsahové,” vysvetľujú autori svoj zámer. Architekti túto rovinu iniciujú a vytvárajú napätie medzi otvoreným priestorom kobiek a ich obsahovým využitím, vychádzajúcim z neobvyklého kontaktu s exteriérom. Pracujú s charakteristickým prístupom k priestorovému detailu. Zásahy sú kontrastné a zároveň dopĺňajú celok zmysluplnými (zmyslovými) fragmentmi.
Rozsiahle riešené územie je dlhé v súčte takmer štyri kilometre. Zahŕňa trojicu pražských nábreží - Rašínovo, Hořejšího a Dvořákovo. Dokončená prvá fáza je najväčšou porevolučnou pražskou investíciou do verejného priestoru. Koncentrovala sa na rekonštrukciu dvadsiatich kobiek v nábrežnom múre (pôvodne čerpadiel a skladov). Autori nevytvárajú klasické interiéry, koncept pracuje s novou hybridnou logikou definujúcou kobky ako zálivy vonkajších priestorov a maximalizujúcou kontakt s náplavkami a riekou.
Program
Po dokončení rozsiahleho projektu budú kobky využité ako kaviarne, kluby, ateliéry, dielne, galéria, pobočka knižnice, alebo verejné WC. Architektonické riešenie pracuje s modulárnou diverzitou. Priestory sú dotiahnuté do detailne prepracovaného základu, vrátane prevádzkovo-technického zázemia a barových korpusov, premiestniteľných do niekoľkých pozícií. Vopred vypracovaný manuál zahŕňa pravidlá pre označenie prevádzok a dopĺňanie vstavaných prvkov (vložené podlažia do veľkých kobiek, exteriérový bar...). Pritom je kladený dôraz na možné doplnenie každej z kobiek o sedací nábytok a ďalšie interiérové prvky. Architekti supervízujú jednotlivé riešenia s cieľom zachovania základnej vízie priestoru. Zároveň však vytvárajú priestor pre autenticitu každého z podnikov. “Snažíme se být provozovatelům oporou a architektonicky zůstat spíše v pozadí, nechat vyznít diverzitu názorů. I když to v realitě často znamená jinou architektonickou citlivost, máme za to, že to kobky s naším základním řešením unesou,” dopĺňajú autori. Do zrekonštruovaných priestorov sa vracia väčšina prevádzkovateľov, ktorí spoluvytvárali fenomén náplavky. “Pôvodné” prevádzky dopĺňajú noví nájomcovia, ktorí boli v otvorenej súťaži vybraní zo širokého spektra zámerov. “V rámci práce na architektonickém řešení jsme iniciovali vznik programové metodiky provozu náplavek, na základě které vznikla pozice kurátora doplňující funkční trojúhelník správce - architekt - kurátor o autoritu usilující o udržení kulturně společenské podstaty tohoto velmi cenného veřejného prostoru,” popisujú architekti ojedinelý koncept.
Architektúra
Autori sa snažia o symbiotické splynutie s pôvodnou architektúrou nábrežného múru, do ktorého kobky prirodzene “vrastajú”. Drobná akupunktúra formuje rozsiahly celok. Podstatou realizácie bolo, prostredníctvom otvorenia prierezu existujúcich otvorov v ostení, čo možno najpriamejšie prepojenie kobiek s priestorom náplaviek,. Architektonické riešenie reaguje na kontext miesta a pracuje s minimálnymi výtvarnými prostriedkami. V prospech očistenia existujúcich tvarov a hľadania nových priehľadových väzieb a možnosťí, vyplývajúcich z prostredia náplaviek.
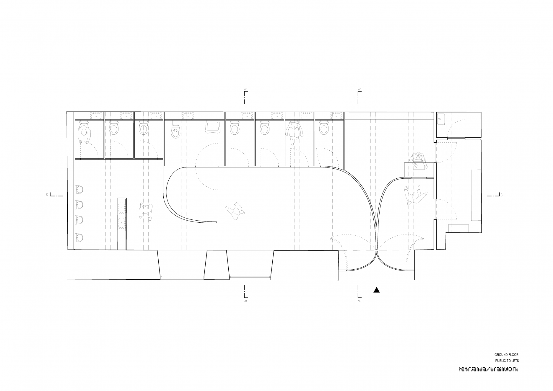
Architektúra šestice kobiek na Rašínovom nábreží je postavená na doplnení (takmer) kruhových ostení. Lapidárny zásah, ktorý viac odoberá než pridáva, zvýrazňuje kruhový portál v nábrežnom múre. Vybúrané steny z ťahokovu a kamenné "zátky", vstavané do pôvodných mostných oblúkov, nahradili veľkoformátové kruhové okná s atypickým mechanizmom otvárania. Vstupné portály sú riešené ako oceľové rámy, s dilatačne osadenými sklami s hmotnosťou 1-1,5 t. Súčasťou kompozície je doplnenie ostenia stupňovitou vostavbou, ktorá integruje prístup do inštalačnej šachty pod portálom, vývody vzduchotechniky a montážne prvky protipovodňového systému. Eliptické pivotové okná majú priemer 5,5 m, hrúbku organického skla 7 cm a hmotnosť približne 2,5 tony. “Každé má unikátní tvar a vzhledem ke své velikosti přesahující možnosti standardního zasklení, jde pravděpodobně o největší pivotová okna na světě,” dopĺňajú autori. Pohyb je riešený motoricky. V prevádzkovej pozícii sú okná zafixovaná v uhle 60°. Ďalšou z možností je automatické senzorické otváranie ovládané pohybovými čidlami, alebo otváranie obsluhou baru. Vstupy do štrnástich kobiek na Hořejšího nábreží definujú oceľové skulpturálne dvere, prehnuté do ostenia tak, aby pri otvorení prepojili kobku a náplavku v celom priereze. V kobkách, s verejnými toaletami, prechádzajú vstupné krídla plynulým oblúkom do interiérovej “membrány”, ktorá oddeľuje kabíny od verejného predpriestoru.
Konštrukčné a materiálové riešenie
V rámci rekonštrukcie boli vybúrané všetky vstavané prvky, vrátane podláh. Nový interiér je zhotovený metódou kompletnej vostavby do pôvodných priestorov. Protipovodňová základová doska integruje prečerpávacie nádrže. Zaizolované povrchy stien v zaklenutých kobkách, s následnou vrstvou striekaného betónu na nosnú výstuž, sceľujú geometriu valených klenieb. Vstavané monolitické priečky disponujú integrovanými inštalačnými kanálmi. Výrazové riešenie kobiek je zjednotené pre všetky typy priestorov a premieta sa aj do materiálového spracovania. Jemná štruktúra betónových povrchov stien a stropov vznikla pieskovaním. Liata betónová podlaha plynule prechádza do monolitického schodiska. Prvky dverí, poklopov a šácht sú omietnuté a korešpondujú s nadväzujúcim povrchom stien a podláh (pieskovaný a stierkovaný betón, čierna oceľ). Besfalcové dvere disponujú skrytými samozatváračmi. V klenutých kobkách sú do povrchov osadené inserty, slúžiace ako závesný systém pri konaní výstav. Vložené prvky barov a priečok v zázemí sú opláštené čiernym zrkadlovým plechom, vizuálne doplňujúcim geometriu kobiek a prenášajúcim odraz rieky do interiéru. Nepriame osvetlenie toaliet takisto vsádza na odraz svetla od stropu.
Technické riešenie
Vzduchotechnika s rekuperáciou a vykurovaním podláh umožňuje spolu s infražiaričmi celoročnú prevádzku. Preferovaným módom je celoročné otvorenie priestoru a prepojenie s náplavkou. Všetky rozvody sú integrované do konštrukcií kobiek tak, aby nezasahovali do ich vizuálnej artikulácie a architektonického riešenia. Vzduchotechnika ústi v atypických výduchoch, vložených na Rašínovom nábreží do špár “schodiskového portálu” a vnútorných štrbín. Na Hořejšícho nábreží do ostení okien a výustok v podlahe a stenách. Vyústenie elektroinštalácií, vody a kanalizácie je integrované do “podlahových krabíc”. Kobky sú bezbariérové, zato však chránené mobilnými protipovodňovými lamelami. Definíciu kobky ako exteriérového zálivu náplavky, umožnilo riešenia toaliet ako modulárnych, plne vybavených WC kabín, ktoré sú opakom štandardného riešenia s predsieňou a neadekvátnymi priestorovými nárokmi. Plne vybavené kabíny obsahujú nerezové WC, osadené na chrbtovej stene kabíny spolu s na mieru vyrobeným automatickým umývadlom, sušičom rúk, osvetlením, košom a ventilátorom. Systém kanalizácie je riešený ako tlaková prečerpávacia sústava.
Vizualizácie:
Rašínovo nábřeží
Hořejšího nábřeží
Dvořákovo nábřeží
Ďalšie plány
V nasledujúcich fázach prebiehajúcej revitalizácie bude riešený mobiliár náplaviek, samostatne stojace toalety, plávajúce kúpele, lodný terminál a plávajúce WC, rovnako ako systém osvetlenia a bezpečnostných prvkov. Veľkou témou je redukcia množstva lodí kotviacich na náplavkách. Výsledkom by mali byť preusporiadanie a redukcia plávajúcich prvkov, ktoré definujú novú logiku ich usporiadania, s ohľadom na uvoľnenie priehľadov na rieku.
Podklady: Petr Janda / brainwork
Foto: BoysPlayNice