Advertorial

Pozvánka na 2. ročník stavebného veľtrhu BigMarket na Slovensku

Na podujatí sa predstaví až 37 vystavovateľov - popredných dodávateľov stavebných materiálov a inovácií s prezentáciou...

Hotel Hirschen Spa House, Rakúsko

Novotvar v prostredí alpskej obce.

Vytvorte si kúpeľňu snov: dizajnové riešenie od značky hansgrohe

Hansgrohe - prémiová značka kúpeľňových riešení, ponúka nadčasový dizajn, technickú precíznosť a udržateľné inovácie...

Okná Internorm za minuloročné ceny + hliníkový kryt zdarma!

Využite špeciálnu akciu Internorm: okná za minuloročné ceny a hliníkový kryt úplne zadarmo. Ponuka je časovo obmedzená!

Moderné plynové technológie: Efektivita a inovácie pre 21. storočie

Sumarizácia najdôležitejších inovácií, ktoré redefinujúcich využitie tohto energetického zdroja.

Utesňovanie spodných stavieb pomocou hydro-aktívnej fólie AMPHIBIA.

AMPHIBIA 3000 GRIP 1.3 od spoločnosti ATRO predstavuje modernú hydroizolačnú technológiu, ktorá spája vysokú odolnosť,...

Dekarbonizácia individuálneho vykurovania domácností – Green Deal evolučne a nie revolučne

Ambiciózne plány EK narazili na ekonomické možnosti domácností v jednotlivých členských štátoch –...

Minimalistické dvere IDEA – technická precíznosť a čistota prevedenia

IDEA DOOR od spoločnosti JAP prináša do interiéru čistý minimalistický vzhľad vďaka bezrámovému riešeniu a precíznej...

Dom s výhľadom na údolie, Dlouhý Most (ČR)

Kontinuita riešenia od vonkajšieho obkladu až po kovania a kľučky.

Schell Vitus – osvedčené riešenie pre sprchy a umývadlá vo verejnom sektore s viac ako desaťročnou tradíciou

Nástenné nadomietkové armatúry Vitus sú mimoriadne vhodné pre rýchlu a efektívnu...

Kompozitné okná predstavujú súčasnosť a budúcnosť

Okenné profily z kompozitného materiálu RAU-FIPRO X od spoločnosti Rehau sú v porovnaní s tradičnými plastovými profilmi mnohonásobne...

Myotis - stoly 2025

Najnovší sortiment stolov pre zariadenie interiérov...

Priemyselné sklenené priečky Dorsis Digero: svetelné rozhranie pre moderné interiéry

Spojenie moderného dizajnu, funkčnosti a svetla do harmonického architektonického prvku.

Význam prirodzeného svetla pre moderné a flexibilné pracovné prostredie

Kancelárska budova Baumit v slovinskom Trzine prešla premenou na moderné a udržateľné pracovisko. Architekti kládli dôraz...

Konferencia Xella Dialóg predstaví novinky a trendy v stavebníctve

Mottom šiesteho ročníku on-line konferencie odborníkov Xella Dialóg je Efektívny návrh budov 2025+: zmeny a riešenia

Byt ByRD, Bratislava

Mezonetový byt pre štvorčlennú rodinu na bratislavskej Kolibe.
Diela
Red 423.01.2020
19860+32
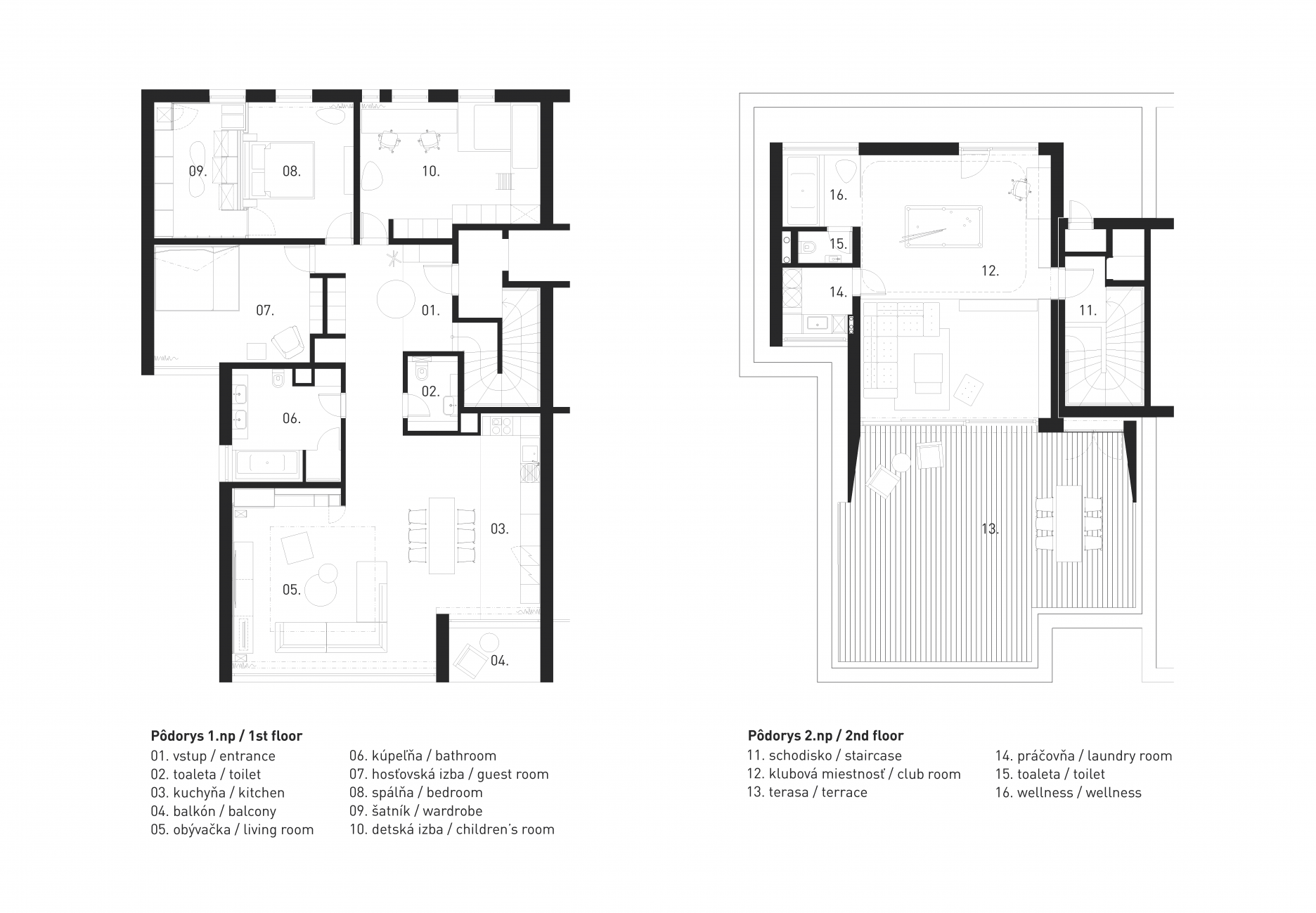
Byt ByRD, Bratislava
Autori: Ing. arch. Peter ChabanPodlažná plocha: 290 m2Návrh: 2017 - 2017Realizácia: 2017 - 2018Adresa: Koliba , Bratislava, SlovenskoPublikované: 23. január 2020

Potlačená farebnosť. Snaha o formálne efektnú konfrontáciu materiálov a povrchov

 

Slovo autora:

Rekonštrukcia mezonetového bytu na úpätí Bratislavskej Koliby odráža potreby štvorčlennej rodiny. Pri návrhu využívame jednu z najvýraznejších kvalít tohto priestoru - výhľad. 

Interiér je riešený ako gradient sivých farieb a jednoduchých foriem, čím sa vytvára kontrast so zeleným exteriérom južnej časti Malých Karpát. Základná schéma bytu sa odohráva vo svetlých tónoch, pričom významné prvky priestoru a solitérny mobiliár sú kontrastné, v grafitových odtieňoch. Farbu a život si so sebou do bytu priniesla rodina.

Na spodnom podlaží je situovaná denná časť bytu, s bezrámovým zasklením v obývacej miestnosti. Na poschodí vzniká priestor pre oddychové aktivity, s klubovou miestnosťou vybavenou na pozeranie filmov, hru biliardu, alebo relax s bublinkovým kúpeľom. Podlažie je otvorené na priestrannú drevenú terasu s panoramatickým výhľadom na celú Bratislavu.

Foto: Peter Chaban
Pôdorysy
PôdorysyAutor: Peter Chaban
Foto: Peter Chaban
Foto: Peter Chaban
Foto: Peter Chaban
Foto: Peter Chaban
Foto: Peter Chaban
Foto: Peter Chaban
Foto: Peter Chaban
Foto: Peter Chaban
Foto: Peter Chaban
Foto: Peter Chaban
Foto: Peter Chaban

Podklady: Peter Chaban

Poloha diela

Ing. arch. Peter Chaban
Vložené
16. január 2020
0
1986
Hlavný obsahHlavný obsah
Čakajte prosím