Advertorial

Technická akadémia Saint-Gobain: Registrácia na školenie pre architektov a projektantov

Navrhujte riešenia, ktoré obstoja aj v praxi.! Odborný pohľad na návrhy projektov, ktoré prežijú...

Vytvorte si kúpeľňu snov: dizajnové riešenie od značky hansgrohe

Hansgrohe - prémiová značka kúpeľňových riešení, ponúka nadčasový dizajn, technickú precíznosť a udržateľné inovácie...

Okná Internorm za minuloročné ceny + hliníkový kryt zdarma!

Využite špeciálnu akciu Internorm: okná za minuloročné ceny a hliníkový kryt úplne zadarmo. Ponuka je časovo obmedzená!

Pozvánka na 2. ročník stavebného veľtrhu BigMarket na Slovensku

Na podujatí sa predstaví až 37 vystavovateľov - popredných dodávateľov stavebných materiálov a inovácií s prezentáciou...

Moderné plynové technológie: Efektivita a inovácie pre 21. storočie

Sumarizácia najdôležitejších inovácií, ktoré redefinujúcich využitie tohto energetického zdroja.

Utesňovanie spodných stavieb pomocou hydro-aktívnej fólie AMPHIBIA.

AMPHIBIA 3000 GRIP 1.3 od spoločnosti ATRO predstavuje modernú hydroizolačnú technológiu, ktorá spája vysokú odolnosť,...

Dekarbonizácia individuálneho vykurovania domácností – Green Deal evolučne a nie revolučne

Ambiciózne plány EK narazili na ekonomické možnosti domácností v jednotlivých členských štátoch –...

Minimalistické dvere IDEA – technická precíznosť a čistota prevedenia

IDEA DOOR od spoločnosti JAP prináša do interiéru čistý minimalistický vzhľad vďaka bezrámovému riešeniu a precíznej...

Dom s výhľadom na údolie, Dlouhý Most (ČR)

Kontinuita riešenia od vonkajšieho obkladu až po kovania a kľučky.

Schell Vitus – osvedčené riešenie pre sprchy a umývadlá vo verejnom sektore s viac ako desaťročnou tradíciou

Nástenné nadomietkové armatúry Vitus sú mimoriadne vhodné pre rýchlu a efektívnu...

Kompozitné okná predstavujú súčasnosť a budúcnosť

Okenné profily z kompozitného materiálu RAU-FIPRO X od spoločnosti Rehau sú v porovnaní s tradičnými plastovými profilmi mnohonásobne...

Myotis - stoly 2025

Najnovší sortiment stolov pre zariadenie interiérov...

Priemyselné sklenené priečky Dorsis Digero: svetelné rozhranie pre moderné interiéry

Spojenie moderného dizajnu, funkčnosti a svetla do harmonického architektonického prvku.

Význam prirodzeného svetla pre moderné a flexibilné pracovné prostredie

Kancelárska budova Baumit v slovinskom Trzine prešla premenou na moderné a udržateľné pracovisko. Architekti kládli dôraz...

Konferencia Xella Dialóg predstaví novinky a trendy v stavebníctve

Mottom šiesteho ročníku on-line konferencie odborníkov Xella Dialóg je Efektívny návrh budov 2025+: zmeny a riešenia

Byt pána doktora v Opave

Byt s vysokými stropmi v dome z počiatku 20. storočia v pokojnej časti Opavy. Hlavným motívom bytu sa stala rozmerná knižnica.
Diela
Red 319.05.2017
12500+14
Byt pána doktora v Opave
Autori: Ing. arch. Daniel Baroš, Ing. arch. Michal NejezchlebPodlažná plocha: 91 m2Investičný náklad: 1,5 mil. KčNávrh: 2014 - 2014Realizácia: 2015 - 2015Adresa: Opava, Česká republikaPublikované: 19. máj 2017

Pôvodný byt s usporiadaním  3 + 1 sa nachádzal na druhom podlaží starého štvorpodlažného činžiaku, v ktorom je celkovo osem bytových jednotiek. Interiér sľuboval veľkorysé bývanie s klasickým radením miestností.

foto: BoysPlayNice, Martin Tůma

Byt s plochou 91 m2 prešiel zmenou dispozície z 3+1 na 4+kk. Pred začatím rekonštrukčných prác bol ineriér vo veľmi zlom technickom stave. Z pôvodného vybavenia sa podarilo zachovať iba časť drevených podláh. Hlavným motívom bytu sa stala knižnica. “Pan majitel má hodně knih a proto bylo jeho přáním mít takovou knihovnu, aby se mu tam všechny vešly. Ta zabírá celou šestimetrovou stěnu,” vysvetlujú architekti.

Základné usporiadanie bytu zodpovedá pôvodnému riešeniu. Do ulice je orientovaná spoločenská časť, v centre dispozície je situovaná kuchyňa. Na protiľahlej strane preplávajúceho bytu sú situované tri spálne, ktoré oknami smerujú do tichého vnútrobloku. Jedna z miestností má k dispozícii priestranný balkón.

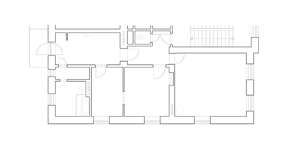
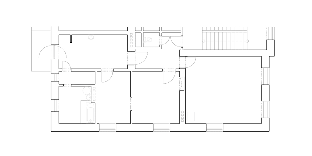
Pôdorysy - pôvodný vs. nový stav
Pôdorysy - pôvodný vs. nový stav
Rezy
Rezy

V interiéri je dominantným prvkom dubová olejovaná podlaha. Vstavaný nábytok z lakovanýh MDF dosiek a steny tvoria neutrálne biele pozadie. O farebnosť sa postarajú obrazy na stenách a knihy. Jedálenský a konferenčný stôl, posteľ a nočné stolíky z dubového dreva sú navrhnuté na mieru. Steny v kúpeľni a kuchyni sú umývateľné. V priestoroch WC je použitá na stenách šedá lakovaná cementová stierka. O osvetlenie v interiéri sa starajú v podhľade integrované led svietidlá.

Fotografie pôvodného stavu
Fotografie pôvodného stavu

Podklady: Henkai architekti, fotografie: BoysPlayNice, Martin Tůma

Poloha diela

Ing. arch. Daniel Baroš
Ing. arch. Michal Nejezchleb
Vložené
2. máj 2017
0
1250
Hlavný obsahHlavný obsah
Čakajte prosím