Sumarizácia najdôležitejších inovácií, ktoré redefinujúcich využitie tohto energetického zdroja.
AMPHIBIA 3000 GRIP 1.3 od spoločnosti ATRO predstavuje modernú hydroizolačnú technológiu, ktorá spája vysokú odolnosť,...
Ambiciózne plány EK narazili na ekonomické možnosti domácností v jednotlivých členských štátoch –...
IDEA DOOR od spoločnosti JAP prináša do interiéru čistý minimalistický vzhľad vďaka bezrámovému riešeniu a precíznej...
Nástenné nadomietkové armatúry Vitus sú mimoriadne vhodné pre rýchlu a efektívnu...
Okenné profily z kompozitného materiálu RAU-FIPRO X od spoločnosti Rehau sú v porovnaní s tradičnými plastovými profilmi mnohonásobne...
Najnovší sortiment stolov pre zariadenie interiérov...
Spojenie moderného dizajnu, funkčnosti a svetla do harmonického architektonického prvku.
Kancelárska budova Baumit v slovinskom Trzine prešla premenou na moderné a udržateľné pracovisko. Architekti kládli dôraz...
Mottom šiesteho ročníku on-line konferencie odborníkov Xella Dialóg je Efektívny návrh budov 2025+: zmeny a riešenia
Robot WLTR predstavuje moderný prístup k murovaným konštrukciám. Vďaka automatizácii dokáže rýchlo, presne a bezpečne realizovať...
Okrem bezpečnosti majú okná aj elegantný vzhľad, pretože nie sú viditeľné žiadne uzamykacie časti kovania.
Dvere MASTER v skrytej zárubni AKTIVE je možné vyrobiť až do výšky 3 700 mm
Internorm stavia na energetickú efektívnosť a inteligentné tieniace riešenia.
Slovensko vo výbere zastupuje šesť realizácií.

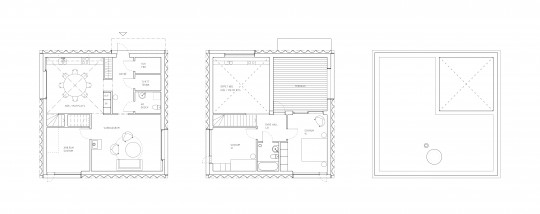
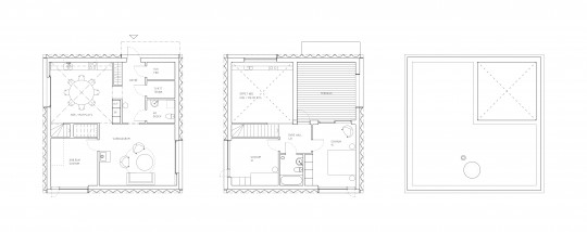
Ako podklad pre návrh slúžila analýza dát najväčšej švédskej realitnej stránky Hemmet. Bolo analyzovaných viac ako 200 000 klikov a 86 000 realít. Následne bol požiadaný ateliér Tham & Videgård o vytvorenie tzv. "Big data Home" na základe prianí používateľov.
Návrh je založený na dvoch prinípoch. Prvým je priama interpretácia Big data štatistík od všetkých užívateľov na Hemnet, ktorá poskytla priemerné hodnoty. Boli určené merateľné vlastnosti domu- veľkosť, cena, počet izieb, kúpeľní. Tham & Videgård k tomu pridali ich vnímanie švédskeho domu koncentrované na dva ikonické typy. Prvým je Červená drevená chata, ktorá predstavuje históriu, využitie miestnych zdrojov a remesiel. Druhým typom je funkcionalistická kocka, ktorý stojí na modernosťi , optimizme a priemyselnom rozvoji. Cieľom tohto obdivuhodného mixu bolo vytvoriť architektúru, ktorá kombinuje štatistiku s vlastnosťami týchto dvoch ikonických typy- racionálnosť funkcionalistickej kocky v kombinácii s kvalitou remesiel a materiálnou čistoty chaty.
Výsledkom je interpretácia štatistického 1,5 podlažia kubickým objememom, ktorý je však plne využitý vloženou terasou a medziposchodím. To zodpovedá aj štatistikám ktoré ukazujú dopyt po balkóne/ terase a otvorenej kuchyni, ktoré Tham & Videgård vykladajú do vnútra objemu. Dôležitosť otvorenej kuchyne je zdôraznená výškou cez dve podlažia. Terasa je vpísaná vnútri kocky. Poskytuje slnečný priestor chránený pred vetrom a súkromie. To je výhodné najmä pre hustejšie osídlené lokality. Vzniká energeticky efektívna a bohato presvetlená stavba s veĺkorysím vnútorným priestorom.Fasáda je inšpirovaná hojným využívaním drevených obkladov v Švédskej architektúre. Ako farba bola zvolená tradičná Falu červená.