Advertorial

Pozvánka na 2. ročník stavebného veľtrhu BigMarket na Slovensku

Na podujatí sa predstaví až 37 vystavovateľov - popredných dodávateľov stavebných materiálov a inovácií s prezentáciou...

Hotel Hirschen Spa House, Rakúsko

Novotvar v prostredí alpskej obce.

Vytvorte si kúpeľňu snov: dizajnové riešenie od značky hansgrohe

Hansgrohe - prémiová značka kúpeľňových riešení, ponúka nadčasový dizajn, technickú precíznosť a udržateľné inovácie...

Okná Internorm za minuloročné ceny + hliníkový kryt zdarma!

Využite špeciálnu akciu Internorm: okná za minuloročné ceny a hliníkový kryt úplne zadarmo. Ponuka je časovo obmedzená!

Moderné plynové technológie: Efektivita a inovácie pre 21. storočie

Sumarizácia najdôležitejších inovácií, ktoré redefinujúcich využitie tohto energetického zdroja.

Utesňovanie spodných stavieb pomocou hydro-aktívnej fólie AMPHIBIA.

AMPHIBIA 3000 GRIP 1.3 od spoločnosti ATRO predstavuje modernú hydroizolačnú technológiu, ktorá spája vysokú odolnosť,...

Dekarbonizácia individuálneho vykurovania domácností – Green Deal evolučne a nie revolučne

Ambiciózne plány EK narazili na ekonomické možnosti domácností v jednotlivých členských štátoch –...

Minimalistické dvere IDEA – technická precíznosť a čistota prevedenia

IDEA DOOR od spoločnosti JAP prináša do interiéru čistý minimalistický vzhľad vďaka bezrámovému riešeniu a precíznej...

Dom s výhľadom na údolie, Dlouhý Most (ČR)

Kontinuita riešenia od vonkajšieho obkladu až po kovania a kľučky.

Schell Vitus – osvedčené riešenie pre sprchy a umývadlá vo verejnom sektore s viac ako desaťročnou tradíciou

Nástenné nadomietkové armatúry Vitus sú mimoriadne vhodné pre rýchlu a efektívnu...

Kompozitné okná predstavujú súčasnosť a budúcnosť

Okenné profily z kompozitného materiálu RAU-FIPRO X od spoločnosti Rehau sú v porovnaní s tradičnými plastovými profilmi mnohonásobne...

Myotis - stoly 2025

Najnovší sortiment stolov pre zariadenie interiérov...

Priemyselné sklenené priečky Dorsis Digero: svetelné rozhranie pre moderné interiéry

Spojenie moderného dizajnu, funkčnosti a svetla do harmonického architektonického prvku.

Význam prirodzeného svetla pre moderné a flexibilné pracovné prostredie

Kancelárska budova Baumit v slovinskom Trzine prešla premenou na moderné a udržateľné pracovisko. Architekti kládli dôraz...

Konferencia Xella Dialóg predstaví novinky a trendy v stavebníctve

Mottom šiesteho ročníku on-line konferencie odborníkov Xella Dialóg je Efektívny návrh budov 2025+: zmeny a riešenia

Polyfunkčná budova v prieluke ulíc Námestie slobody a Jozefská - nominácia na študentskú cenu CHEDDAR´20

Semestrálna práca získala na zimnej Noci architektúry nomináciu v kategórii Architektúra.
Diela
Red 402.02.2020
21070+18
Polyfunkčná budova v prieluke ulíc Námestie slobody a Jozefská - nominácia na študentskú cenu CHEDDAR´20
Autori: Kristína ČangelováSpolupráca: doc. Ing. arch. Danica Končeková, PhD. (vedúci práce)Návrh: 2019 - 2020Adresa: Námestie slobody Jozefská, Bratislava, SlovenskoPublikované: 2. február 2020

Prácu predstavujeme so skráteným autorským textom:

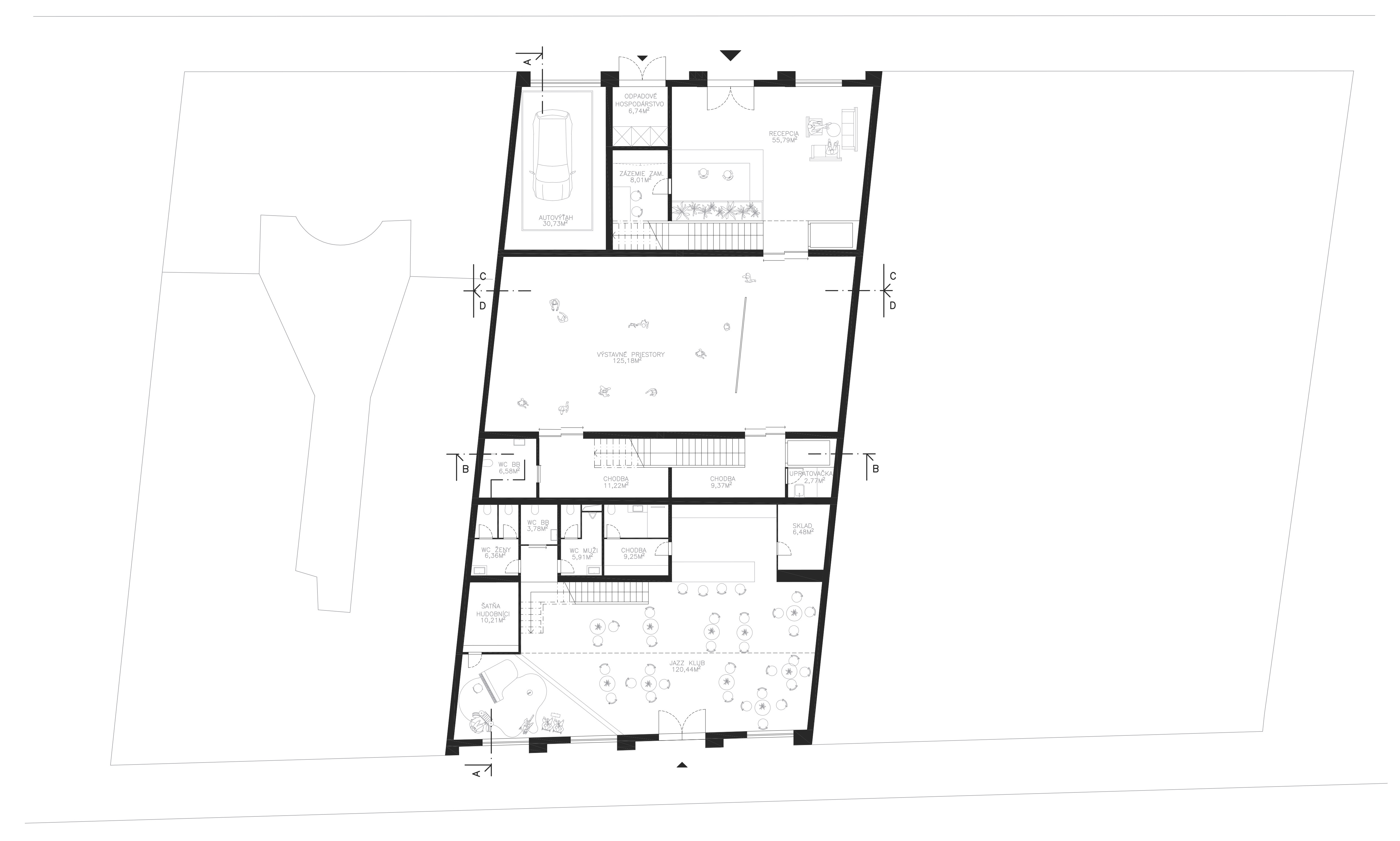
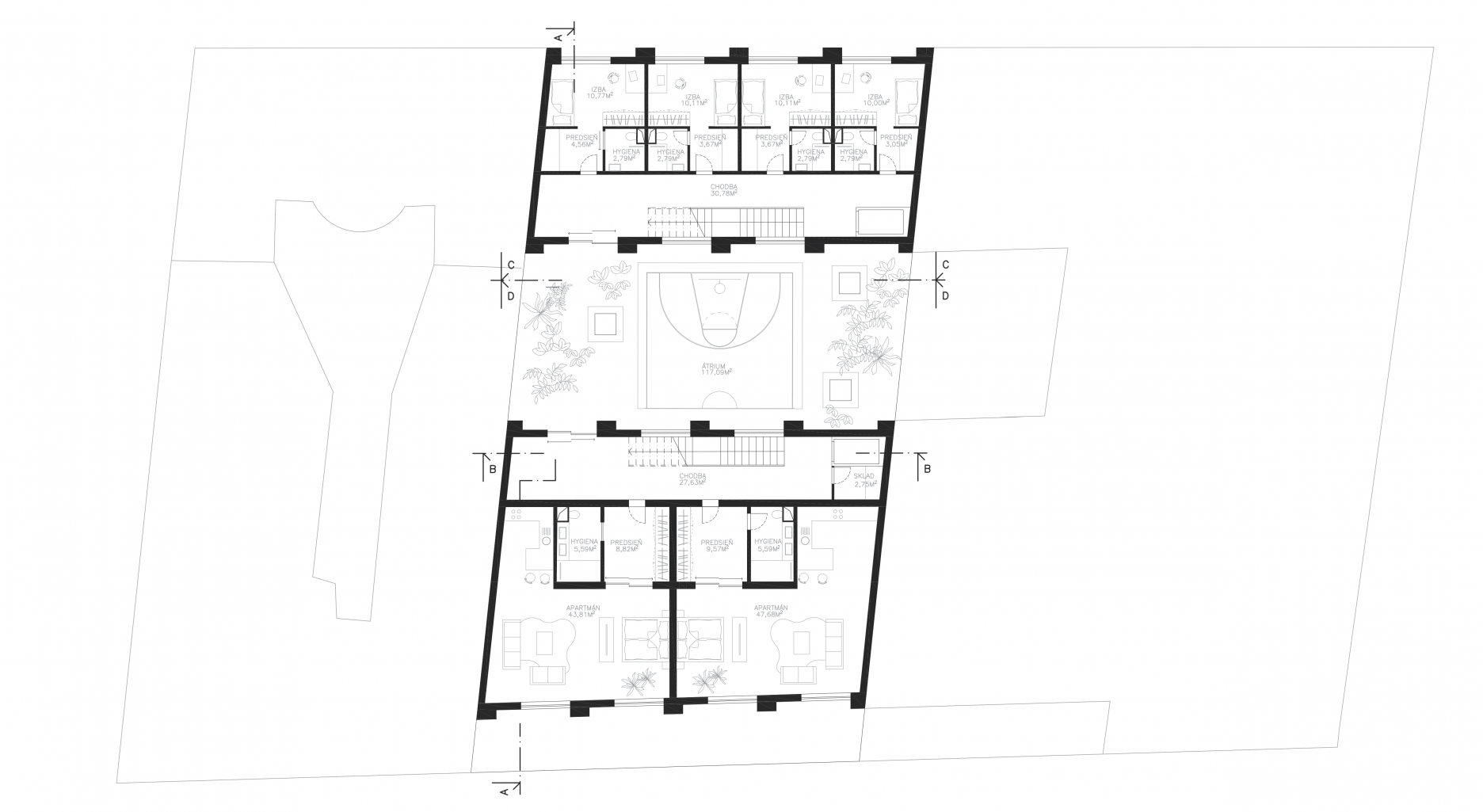
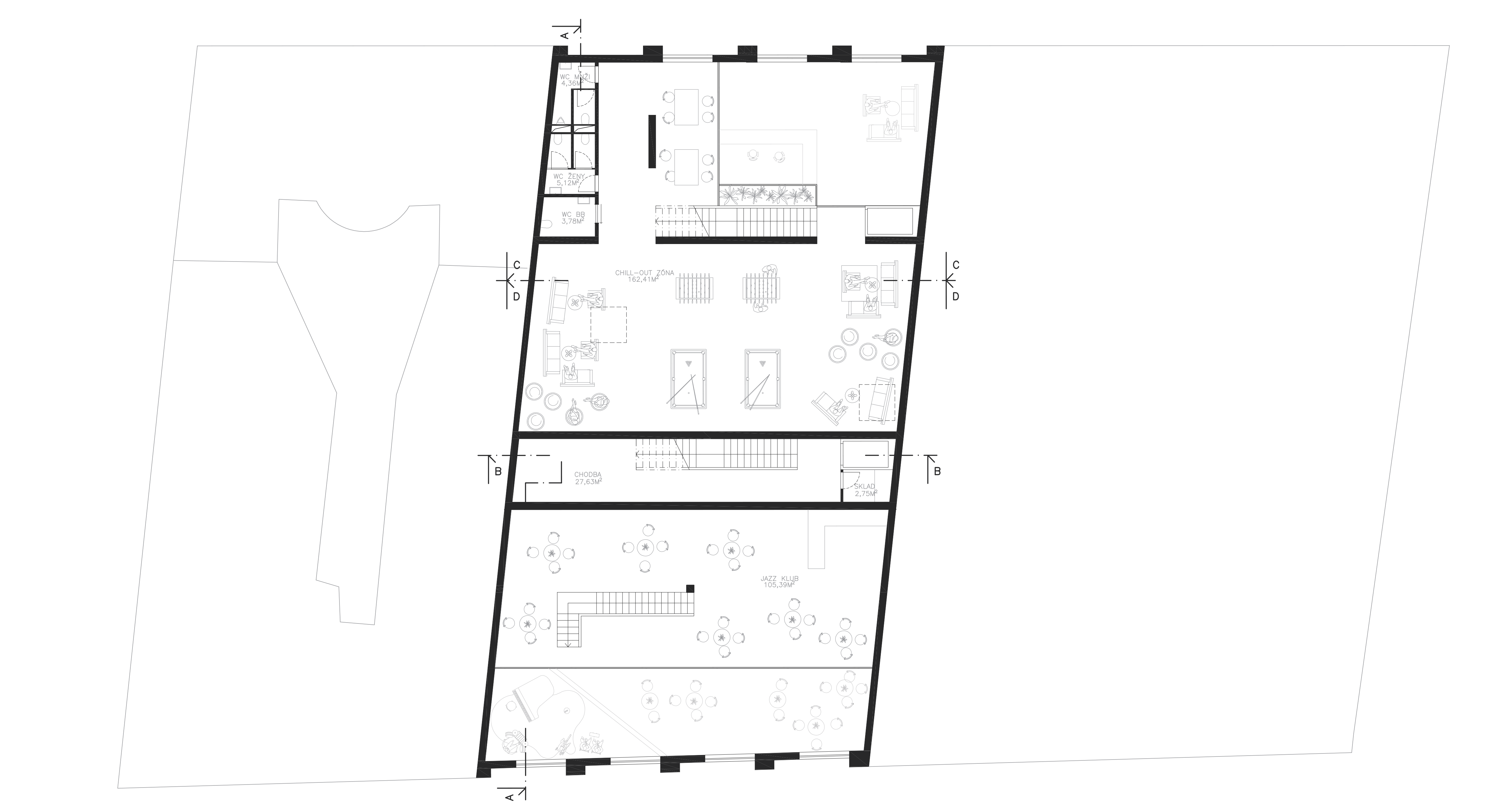
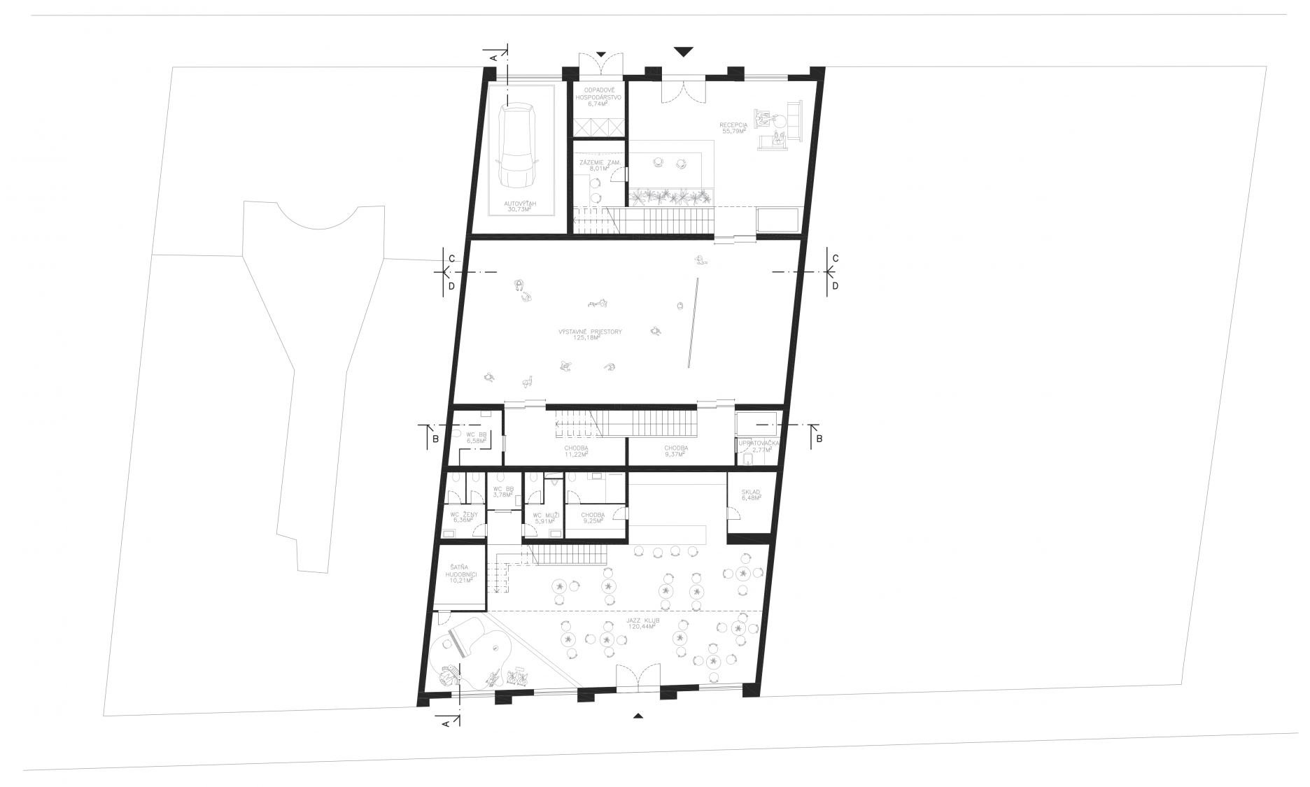
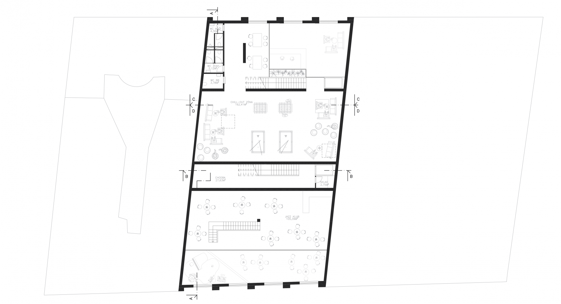
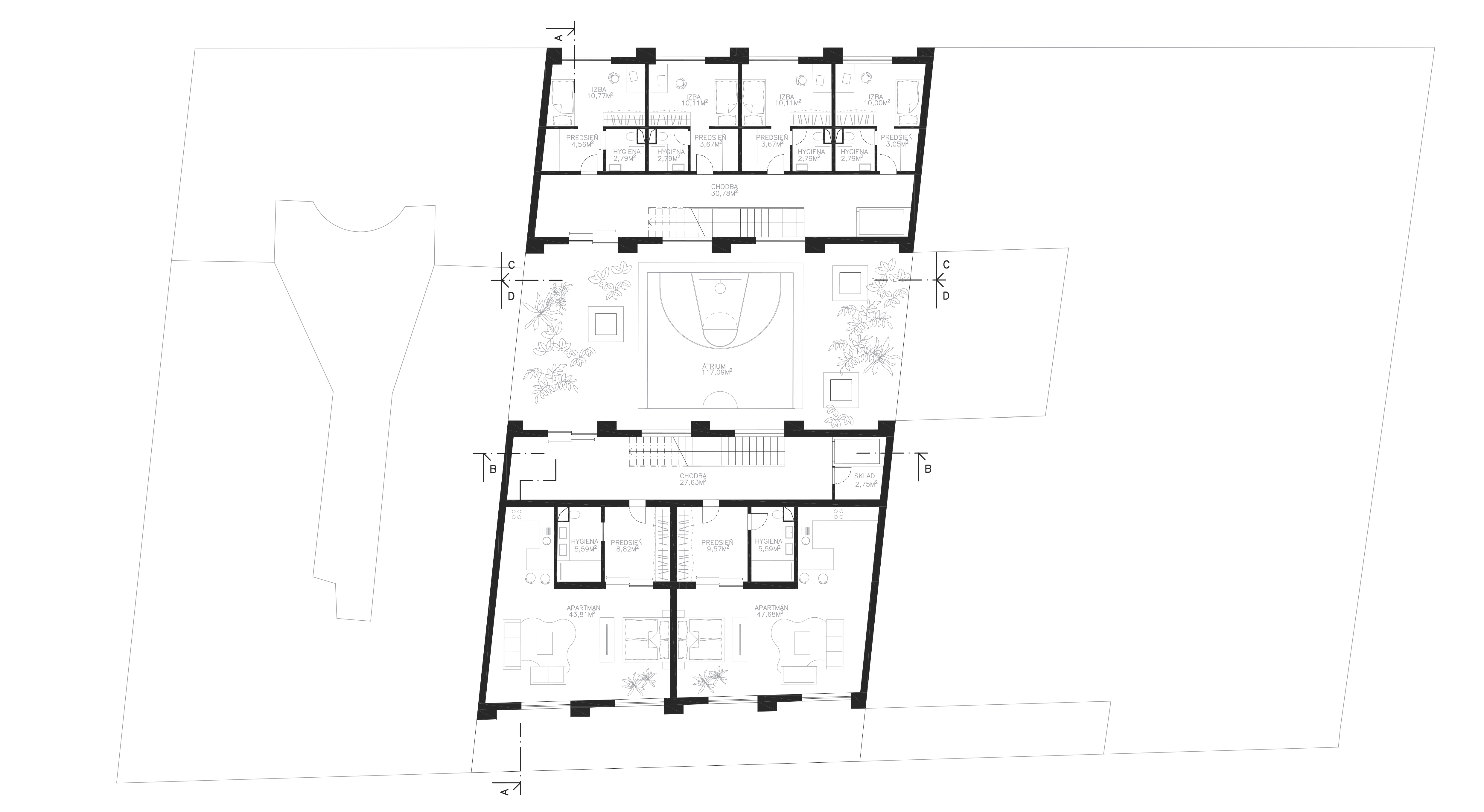
V novom objekte je veľká časť priestoeu venovaná študentom architektúry. Návrh sa skladá z dvoch hmôt, ktoré spája polyfunkčný parter. V parteri sa nachádza jazz klub, študentská klubovňa a galerijný priestor. Dostatočnú insoláciu hlbokej prieluky prieluky zabezpečuje átrium. Štrukturovaný objem súčasne netieni okolitú zástavbu. Trakt orientovaný do ulice Námestia slobody je určený na ubytovanie študentov architektúry. Komunitná terasa na streche objektu poskytuje atraktívne výhľady na mesto. Nižšia časť budovy, orientovaná do Jozefskej ulice, slúži pre ubytovanie hostí fakulty a doktorandov.

Situácia
Situácia
Pôdorys 1. NP
Pôdorys 1. NP
Pôdorys 2. NP
Pôdorys 2. NP
Pôdorys 3. NP - typické podlažie
Pôdorys 3. NP - typické podlažie
Rez
Rez
Juhozápadný pohľad
Juhozápadný pohľad
Severovýchodný pohľad
Severovýchodný pohľad
Vizualizácia - hlavná budova
Vizualizácia - hlavná budova
Vizualizácia - ihrisko
Vizualizácia - ihrisko
Vizualizácie - izby
Vizualizácie - izby

Podklady: Kristína Čangelová

Poloha diela

Kristína Čangelová
Vložené
24. január 2020
0
2107
Hlavný obsahHlavný obsah
Čakajte prosím