Advertorial

Okná Internorm za minuloročné ceny + hliníkový kryt zdarma!

Využite špeciálnu akciu Internorm: okná za minuloročné ceny a hliníkový kryt úplne zadarmo. Ponuka je časovo obmedzená!

Pozvánka na 2. ročník stavebného veľtrhu BigMarket na Slovensku

Na podujatí sa predstaví až 37 vystavovateľov - popredných dodávateľov stavebných materiálov a inovácií s prezentáciou...

Moderné plynové technológie: Efektivita a inovácie pre 21. storočie

Sumarizácia najdôležitejších inovácií, ktoré redefinujúcich využitie tohto energetického zdroja.

Utesňovanie spodných stavieb pomocou hydro-aktívnej fólie AMPHIBIA.

AMPHIBIA 3000 GRIP 1.3 od spoločnosti ATRO predstavuje modernú hydroizolačnú technológiu, ktorá spája vysokú odolnosť,...

Dekarbonizácia individuálneho vykurovania domácností – Green Deal evolučne a nie revolučne

Ambiciózne plány EK narazili na ekonomické možnosti domácností v jednotlivých členských štátoch –...

Minimalistické dvere IDEA – technická precíznosť a čistota prevedenia

IDEA DOOR od spoločnosti JAP prináša do interiéru čistý minimalistický vzhľad vďaka bezrámovému riešeniu a precíznej...

Dom s výhľadom na údolie, Dlouhý Most (ČR)

Kontinuita riešenia od vonkajšieho obkladu až po kovania a kľučky.

Schell Vitus – osvedčené riešenie pre sprchy a umývadlá vo verejnom sektore s viac ako desaťročnou tradíciou

Nástenné nadomietkové armatúry Vitus sú mimoriadne vhodné pre rýchlu a efektívnu...

Kompozitné okná predstavujú súčasnosť a budúcnosť

Okenné profily z kompozitného materiálu RAU-FIPRO X od spoločnosti Rehau sú v porovnaní s tradičnými plastovými profilmi mnohonásobne...

Myotis - stoly 2025

Najnovší sortiment stolov pre zariadenie interiérov...

Priemyselné sklenené priečky Dorsis Digero: svetelné rozhranie pre moderné interiéry

Spojenie moderného dizajnu, funkčnosti a svetla do harmonického architektonického prvku.

Význam prirodzeného svetla pre moderné a flexibilné pracovné prostredie

Kancelárska budova Baumit v slovinskom Trzine prešla premenou na moderné a udržateľné pracovisko. Architekti kládli dôraz...

Konferencia Xella Dialóg predstaví novinky a trendy v stavebníctve

Mottom šiesteho ročníku on-line konferencie odborníkov Xella Dialóg je Efektívny návrh budov 2025+: zmeny a riešenia

Murovací robot WLTR stavia svoj prvý dom na Slovensku

Robot WLTR predstavuje moderný prístup k murovaným konštrukciám. Vďaka automatizácii dokáže rýchlo, presne a bezpečne realizovať...

Nová éra bezpečnosti s I-tec Secure od Internorm

Okrem bezpečnosti majú okná aj elegantný vzhľad, pretože nie sú viditeľné žiadne uzamykacie časti kovania.

Rekonštrukcia interiérov pôvodného výstavného pavilónu Umeleckej besedy slovenskej v Bratislave

S pôvodnou noblesou a súčasnou infraštruktúrou.
Diela
Red 321.06.2024
10970+60
Rekonštrukcia interiérov pôvodného výstavného pavilónu Umeleckej besedy slovenskej v Bratislave
Autori: Ing. arch. Mária Bogárová, Ing. arch. Michal BogárRealizácia: 2020 - 2024Adresa: Dostojevského rad 2 , Bratislava, SlovenskoPublikované: 21. jún 2024

Budova Galérie Umelka (pôvodne Umelecká beseda slovenská), realizovaná v polovici dvadsiatych rokov minulého storočia, sa stala symbolickým medzníkom nástupu modernej architektúry na Slovensku. Pamitkovo chránený objekt po niekoľkých čiastkových rekonštrukciách prešiel dôležitou etapou komplexnej obnovy interiéru galérie. Počas uplynulých štyroch rokov boli podľa návrhu ateliéru BOGAR Architekti obnovené pôvodné interiérové priestory a prvky z obdobia moderného hnutia. Dôležitý bol pritom rešpekt k pôvodnému architektonickému konceptu, minimalizovanie intervencií a modernizácia technického vybavenia.

Komentár Miroslava Hrdinu z Krajského pamiatkového úradu Bratislava:

Výstavný pavilón UBS prešiel od svojho vzniku v dvadsiatych rokoch 20. storočia množstvom úprav, ktoré však podstatnejšie neprekryli architektonické kvality tejto výnimočnej ranno-funkcionalistickej stavby, zaradenej medzi národné kultúrne pamiatky. Základnou metódou pri nedávno realizovanej obnove interiéru objektu sa preto z perspektívy pamiatkovej starostlivosti stalo konzervovanie, resp. citlivá obnova zachovaných prvkov, ako sú kamenné a terazzové dlažby alebo hlavné vstupné dvere. Následne bola na základe reštaurátorského prieskumu a dobových fotografií rekonštruovaná pôvodná farebnosť stien a stropu predsiene a kazetového stropu centrálnej sály, vrátane doplnenia analógií pôvodných stropných svietidiel. Napokon, pri potrebnej modernizácii vnútorných priestorov prejavili architekti výnimočný cit pre pôvodný architektonický koncept A. Balána a J. Grossmanna. Minimalistické, kontextuálne vstupy, ako sú napríklad tieniace prvky či osvetľovacie rampy vo výstavných sálach, naň svojím umiestnením a technickým a formálnym riešením organicky nadviazali a doplnili ho o novú kvalitu.

Stručné sprievodné slovo k aktuálnej rekonštrukcii:

Výstavné siene v objekte bývalej Umeleckej besedy slovenskej slúžia kontinuálne ako galerijné priestory od roku 1926, kedy bol objekt UBS postavený podľa projektu architektov Aloisa Balána a Jiřího Grossmanna (návrh z roku 1924).  

Objekt a jeho interiéry prešli v minulosti viacerými čiastkovými obnovami, pričom významným obdobím pre celkové pozdvihnutie kvality tohto areálu boli roky 2020 - 2024, kedy okrem iných úprav prebehla aj rekonštrukcia pôvodných výstavných priestorov Galérie Umelka. Táto obnova sa uskutočnila s podporou grantu EHP, ktorý bol spoločne financovaný Islandom, Lichtenštajnskom a Nórskom a takisto vďaka finančnej spoluúčasti Slovenskej výtvarnej únie.

Veľká sála
Veľká sálaFoto: BOGAR Architekti
Veľká sála
Veľká sálaFoto: BOGAR Architekti
Veľká sála
Veľká sálaFoto: BOGAR Architekti

Architekti rekonštrukcie interiérov Umelky vytvorili spolu s odborným tímom (reštaurátorov, pamiatkarov, akustikov a ďalších špecialistov) komplexný projekt, ktorého cieľom bola obnova pôvodných výstavných priestorov, vrátane originálnych interiérových prvkov a materiálov a zároveň celkové zvýšenie kvality technického vybavenia galérie. Na základe reštaurátorského prieskumu a dobových fotografií bola zrekonštruovaná pôvodná farebnosť stien a stropu v predsieni objektu, ako aj kazetového stropu vo vstupnej hale. Do týchto priestorov sa doplnili aj analógie pôvodných stropných svietidiel.

Expozičné priestory sa plošne zväčšili odstránením dodatočných nehodnotných zásahov do interiéru. Veľká aj malá výstavná sieň boli vybavené systémom tienenia rozsiahlych zasklených plôch a zároveň novým galerijným osvetlením s úspornými svetelnými zdrojmi. Do priestorov galérie pribudli dataprojektory, premietacie plochy, nové vykurovacie prvky a ďalšie technické vybavenie zabezpečujúce kvalitu spoločenských udalostí, konferencií a výtvarných či multimediálnych projektov.

Nový systém tienenia vo veľkej sále
Nový systém tienenia vo veľkej sáleFoto: BOGAR Architekti

V malej výstavnej sále okrem spomínanej obnovy pôvodnej farebnosti stien, stupňov a bočných stien schodiska bolo zreštaurované aj pôvodné terrazzo na podlahe. Do výstavného priestoru pribudli zatemňovacie rolety a centrálna multifunkčná závesná konštrukcia.

Kamenná sála
Kamenná sálaFoto: BOGAR Architekti
Kamenná sála
Kamenná sálaFoto: BOGAR Architekti

Počas rekonštrukcie výstavných priestorov autori architektonického návrhu (Mária Bogárová, Michal Bogár) úzko spolupracovali s tímom reštaurátorov (Tibor Machata, Vladimír  Višváder, Villard) a s odborným radcom Krajského pamiatkového úradu v Bratislave (Miroslav Hrdina). Na základe reštaurátorského výskumu a v spolupráci s odborníkom na pamiatkovú obnovu bola definovaná a rekonštruovaná pôvodná podoba predsiene objektu aj kazetového stropu vo foyer galérie.

Hlavný vstup
Hlavný vstupFoto: BOGAR Architekti
Hlavný vstup
Hlavný vstupFoto: BOGAR Architekti
Foyer - výstavný priestor
Foyer - výstavný priestorFoto: BOGAR Architekti
Foyer - výstavný priestor
Foyer - výstavný priestorFoto: BOGAR Architekti

V priestore schodiska prebehla obnova stien, prvkov zábradlia a aj pôvodných podláh. Obnovili a doplnili sa aj keramické  soklové obklady schodiska.  

Schodisko do klubu umelcov
Schodisko do klubu umelcovFoto: BOGAR Architekti
Schodisko do klubu umelcov
Schodisko do klubu umelcovFoto: BOGAR Architekti

Objekt ako symbolický medzník nástupu modernej architektúry na Slovensku - zdroj: register modernej architektúry docomomo

Spolok Umelecká beseda slovenská založili v roku 1921. Združoval všetky výtvarné umelecké odbory. V roku 1924 vypísal súťaž na projekt vlastnej klubovej a výstavnej budovy. V súťaži zvíťazili mladí českí architekti Alois Balán a Jiří Grossmann, ktorí pôsobili v Bratislave. Funkčné jadro budovy tvorí veľká výstavná sieň (na výstavy maľby) a malá výstavná sieň (na výstavy sôch). V suteréne boli hospodárske priestory, archív, sklady a malá zasadacia miestnosť. Na poschodí sa nachádzali klubové (reštauračné) priestory s terasou. Na budove môžeme dobre sledovať vývin od klasickej k modernej funkcionalistickej architektúre. Zatiaľ čo vstupný priestor má ešte stopy oblúčkových dekorácií a vo vestibule je ťažký kazetový strop, veľká výstavná sieň je už konštruovaná z jednoduchých železobetónových rámov a jej severné prekrytie tvorí zasklená strecha továrenského vzhľadu. Priečelia z holého tehlového muriva sú reakciou na holandskú modernu, ktorou sa v tom čase inšpirovali viacerí československí architekti. Napriek určitým protikladom pôsobí objekt ako ucelená umelecká výpoveď a stal sa symbolickým medzníkom nástupu modernej architektúry na Slovensku.

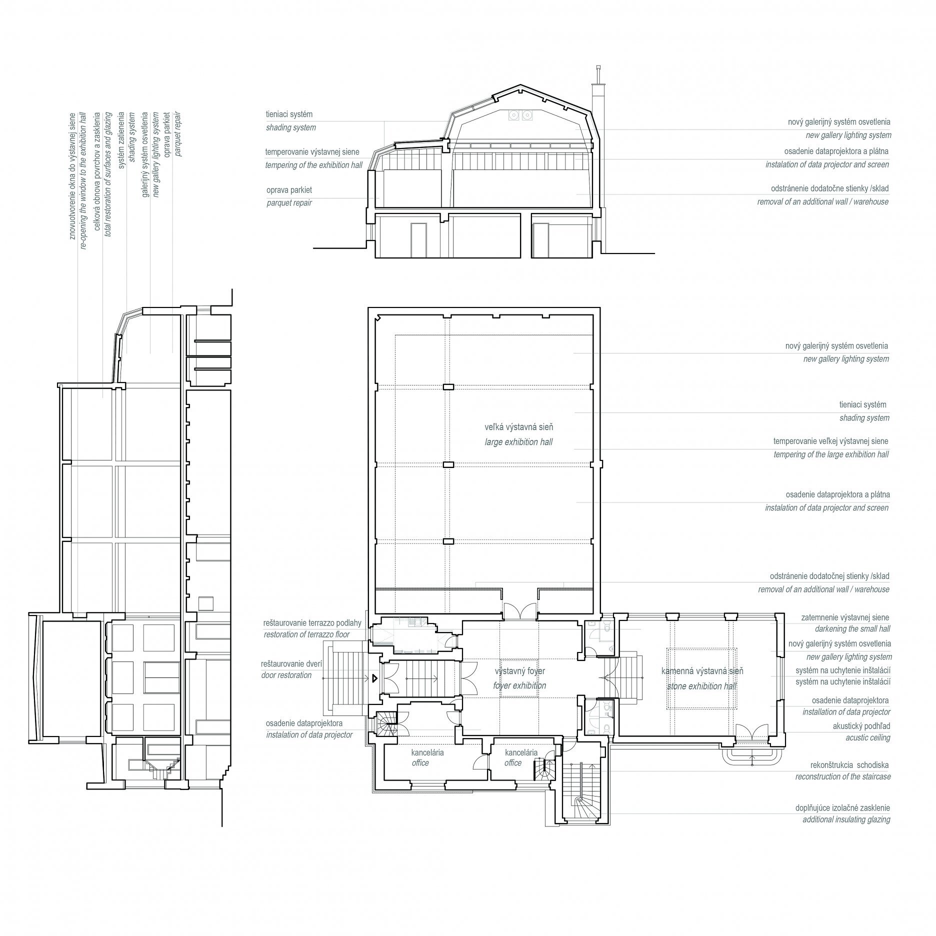
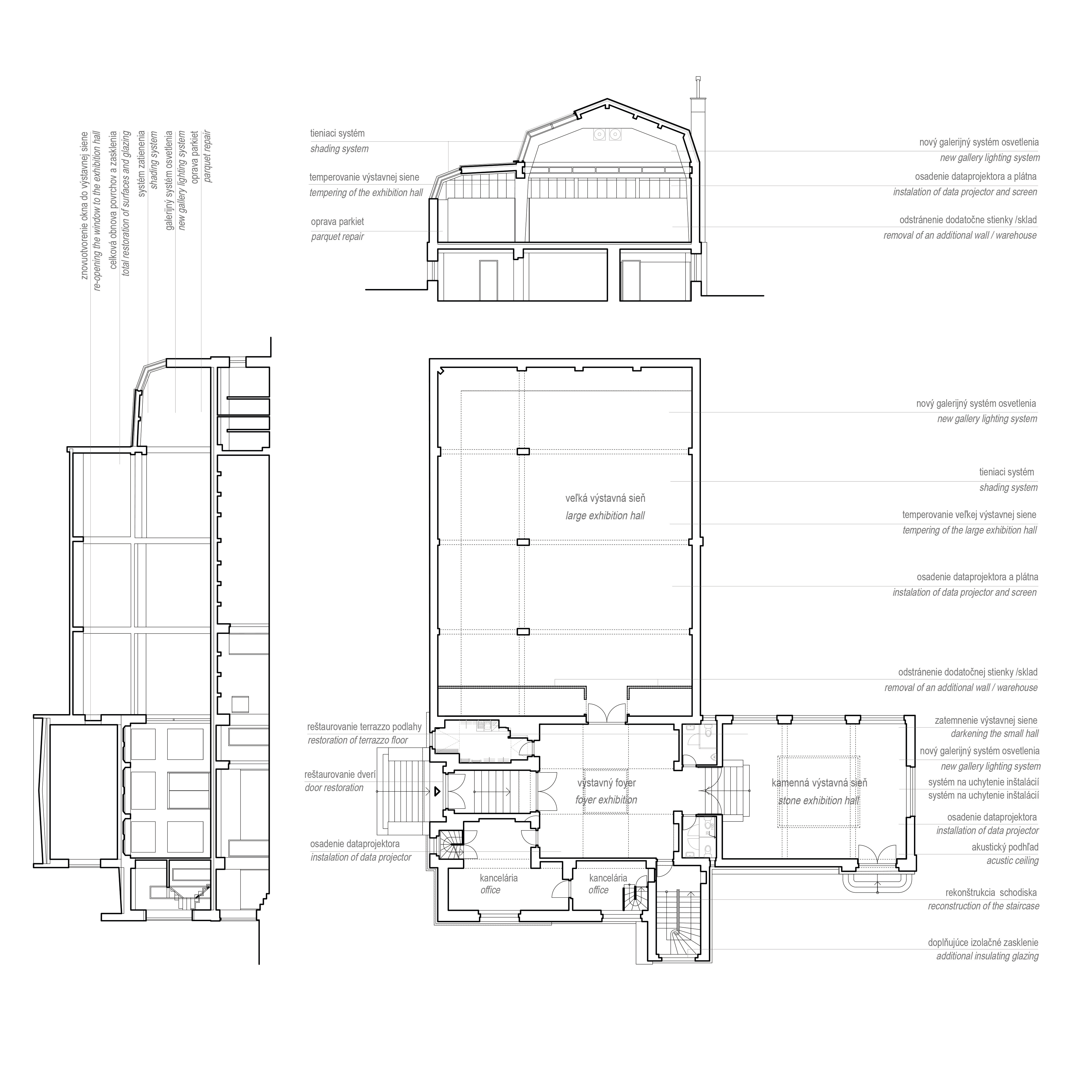
Časť architektonických výkresov pre: Galéria Umelka - rekonštrukcia výstavných priestorov
Časť architektonických výkresov pre: Galéria Umelka - rekonštrukcia výstavných priestorovAutor: BOGAR Architekti

Podklady a fotografie: BOGAR Architekti

Poloha diela

Ing. arch. Mária Bogárová
Ing. arch. Michal Bogár
Vložené
19. jún 2024
0
1097
Hlavný obsahHlavný obsah
Čakajte prosím