Advertorial

Pozvánka na 2. ročník stavebného veľtrhu BigMarket na Slovensku

Na podujatí sa predstaví až 37 vystavovateľov - popredných dodávateľov stavebných materiálov a inovácií s prezentáciou...

Hotel Hirschen Spa House, Rakúsko

Novotvar v prostredí alpskej obce.

Vytvorte si kúpeľňu snov: dizajnové riešenie od značky hansgrohe

Hansgrohe - prémiová značka kúpeľňových riešení, ponúka nadčasový dizajn, technickú precíznosť a udržateľné inovácie...

Okná Internorm za minuloročné ceny + hliníkový kryt zdarma!

Využite špeciálnu akciu Internorm: okná za minuloročné ceny a hliníkový kryt úplne zadarmo. Ponuka je časovo obmedzená!

Moderné plynové technológie: Efektivita a inovácie pre 21. storočie

Sumarizácia najdôležitejších inovácií, ktoré redefinujúcich využitie tohto energetického zdroja.

Utesňovanie spodných stavieb pomocou hydro-aktívnej fólie AMPHIBIA.

AMPHIBIA 3000 GRIP 1.3 od spoločnosti ATRO predstavuje modernú hydroizolačnú technológiu, ktorá spája vysokú odolnosť,...

Dekarbonizácia individuálneho vykurovania domácností – Green Deal evolučne a nie revolučne

Ambiciózne plány EK narazili na ekonomické možnosti domácností v jednotlivých členských štátoch –...

Minimalistické dvere IDEA – technická precíznosť a čistota prevedenia

IDEA DOOR od spoločnosti JAP prináša do interiéru čistý minimalistický vzhľad vďaka bezrámovému riešeniu a precíznej...

Dom s výhľadom na údolie, Dlouhý Most (ČR)

Kontinuita riešenia od vonkajšieho obkladu až po kovania a kľučky.

Schell Vitus – osvedčené riešenie pre sprchy a umývadlá vo verejnom sektore s viac ako desaťročnou tradíciou

Nástenné nadomietkové armatúry Vitus sú mimoriadne vhodné pre rýchlu a efektívnu...

Kompozitné okná predstavujú súčasnosť a budúcnosť

Okenné profily z kompozitného materiálu RAU-FIPRO X od spoločnosti Rehau sú v porovnaní s tradičnými plastovými profilmi mnohonásobne...

Myotis - stoly 2025

Najnovší sortiment stolov pre zariadenie interiérov...

Priemyselné sklenené priečky Dorsis Digero: svetelné rozhranie pre moderné interiéry

Spojenie moderného dizajnu, funkčnosti a svetla do harmonického architektonického prvku.

Význam prirodzeného svetla pre moderné a flexibilné pracovné prostredie

Kancelárska budova Baumit v slovinskom Trzine prešla premenou na moderné a udržateľné pracovisko. Architekti kládli dôraz...

Konferencia Xella Dialóg predstaví novinky a trendy v stavebníctve

Mottom šiesteho ročníku on-line konferencie odborníkov Xella Dialóg je Efektívny návrh budov 2025+: zmeny a riešenia

Rekonštrukcia priestorov Galérie Miroslava Kubíka v Litomyšli

Priestor a svetlo.
Diela
Red 425.02.2021
6080+13
Rekonštrukcia priestorov Galérie Miroslava Kubíka v Litomyšli
Autori: Ing. Arch. MgA. Michal MotyčkaInvestor: Martin Kubík a Miroslava KubíkováZastavaná plocha: 930 m2Podlažná plocha: 310 000 m2Investičný náklad: 6,94 mil. €Návrh: 2014 - 2017Realizácia: 2020 - 2020Adresa: Smetanovo náměstí 71, Litomyšl, Česká republikaPublikované: 25. február 2021

Východočeský Litomyšl je pre priaznivca architektúry miestom hodným návštevy. K výborným stavbám, ktoré vznikli na základe súťaží z verejných zdrojov sa pripojili aj ďalšie zaujímavé realizácie. Patrí medzi ne aj výstavný priestor na prvom poschodí meštianskeho domu  v hornej časti Smetanovho námestia.

Súrodenci Miroslava a Martin Kubíkovci otvorili galériu, ktorá nesie meno ich otca v roku 2011. Dom na námestí mal v minulosti pohnutý osud. Mnohokrát vyhorel, často menil funkciu. Posledná rekonštrukcia prebehla v roku 1999, upravila prízemie pre kancelárie. V týchto priestoroch sa v rámci podujatia Smetanova výtvarná Litomyšl pravidelne konali výstavy súčasného umenia. Skúsenosti s dlhoročnou výstavnou činnosťou sa stali podnetom k prestavbe priestoru na galériu pre súčasné vizuálne umenie.

Architekt Michal Motyčka pretvoril priestor Galérie Miroslava Kubíka na civilné a neokázalé výstavné prostredie. Prezentované diela - sochy, fotografie, priestorové formy, videoinštalácie i obrazy sa stávajú súčasťou  celku a dialógu s návštevníkom. “Esteticky čisté a zdánlivě tradiční řešení prostoru prožíváme skrze základní požitky, vnímáme: světlo, zeleň a faktor, na který upozorňuje Le Corbusier a jež je pro architekturu výstavního prostředí nejdůležitější: určitý pocit svobody. Celý prostor je otevřený a umožňuje jednoduché instalace i složité hry s prostorem,” dopĺňa Jana Šindelová - vizuála umelkyňa teoretička umenia a kurátorka. 

Technické aspekty výstavného priestoru sú porovnateľné so súčasnými svetovými inštitúciami. Interiér zdôrazňuje genius loci. Z okien možno pozorovať dianie na námestí, z druhej strany je prístupná pokojná záhrada.  

Foto: BoysPlayNice

Viac slovami architekta Michala Motyčku:

Galerie má jednoduché schéma v podobě podélné osy vedoucí z náměstí do zahrady. Na ose jsou navěšeny jednotlivé prostorové události. Zásadní je, že daný prostor určitým způsobem dýchá, rozšiřuje se do dominantních částí a zužuje do sevření, tak se vytváří jeho přirozené dělení. Člověk má možnost se nadechnout, než vstoupí do další situace.

Z mého pohledu je zde přítomno několik základních principů: je to o prostoru a o světle, ale i o respektu k vystavovaným dílům. Velikostí ani materiálem na sebe nově vytvořené prostředí neupozorňuje. Propojení světla a přírodního prostředí umožňuje okno do zahrady. Návštěvník má možnost komunikovat se zahradou vizuálně i světelně, tím se rozšiřuje jeho vnímání horizontu a prostorových os vertikální i horizontální, prožívá jednoduchý vzdušný prostor, ve kterém má možnost se na jednotlivé vizuální události soustředit.

V galerii a muzeu je pro mě důležitý i výstavní program. Hlavní principy mé stavby jsou: světlo, průhledy a bílá stěna. Možnost vymalovat stěnu, propojení prostoru jak v hmotě, tak světelné propojení považuji za klíčové. Nejdůležitějším bodem je pro mne divák v tom smyslu, aby oko diváka zůstalo klidné a soustředilo se na vystavené umění. Aby nebylo rušeno detaily, například rámem okna nebo zásuvkou. Základna by měla být neutrálně šedá. Neméně důležitým předpokladem pro kvalitní fungování současné galerie umění je světlo ve smyslu osvětlení, které je zároveň rozptýlené na stěny i do prostoru, je doplněno sólo spoty a působí přirozeně. Cílem galerijního prostoru je přimět diváka k vidění, pozorování, následně k přemýšlení a dopřát mu prožitek. Galerie Miroslava Kubíka je žitým místem pro umění.

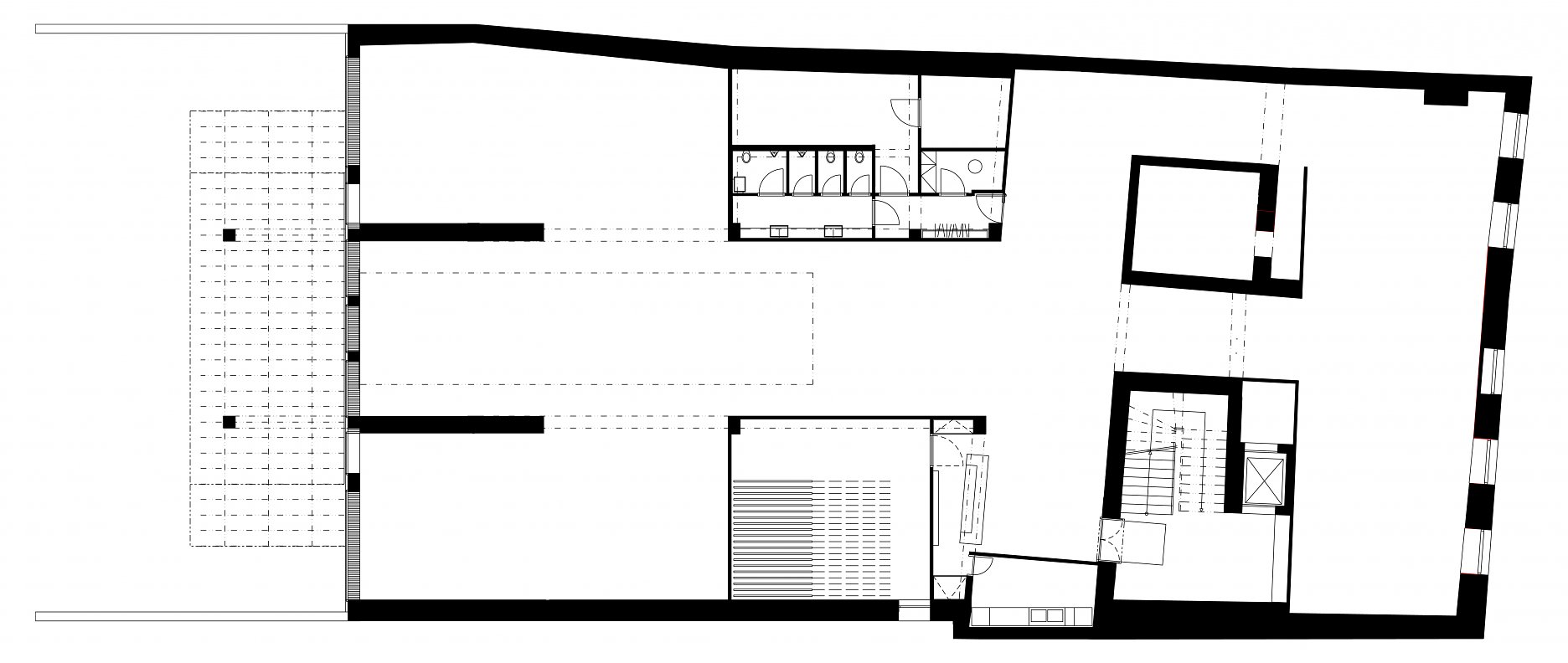
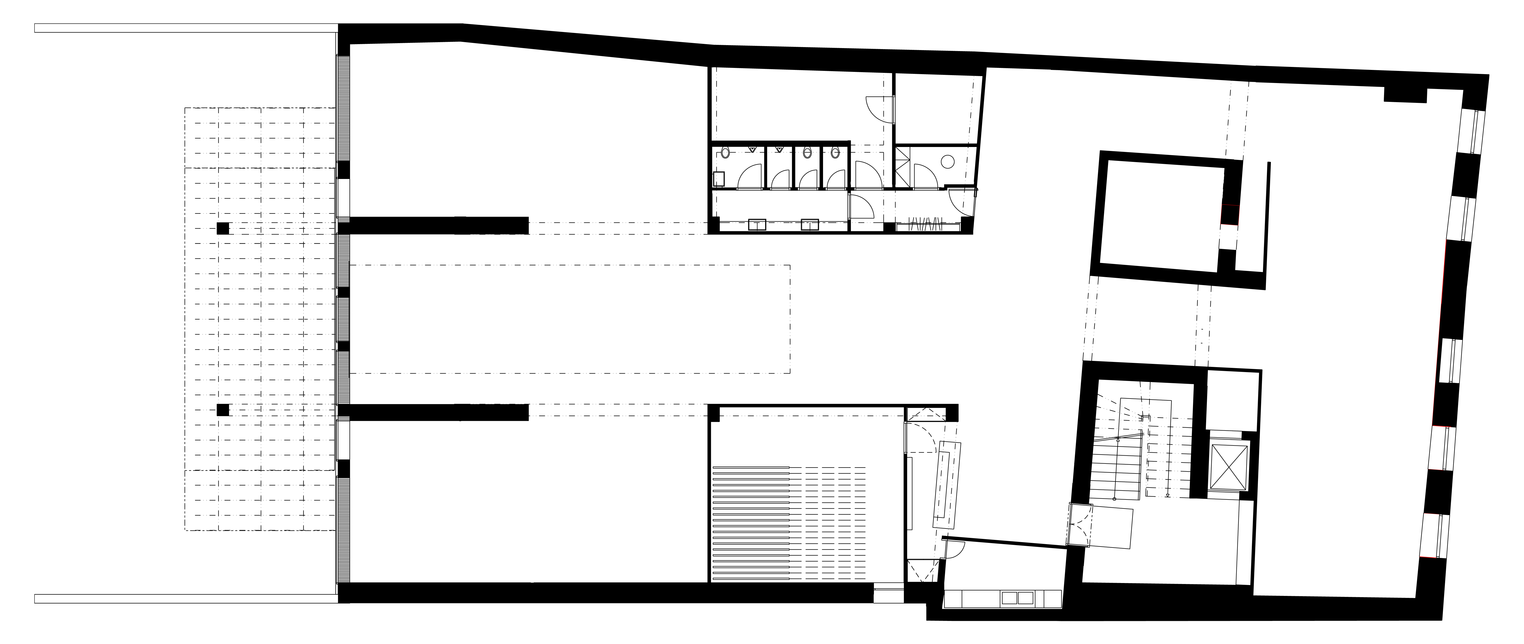
Pôdorys - pôvodný stav
Pôdorys - pôvodný stavAutor: Michal Motyčka
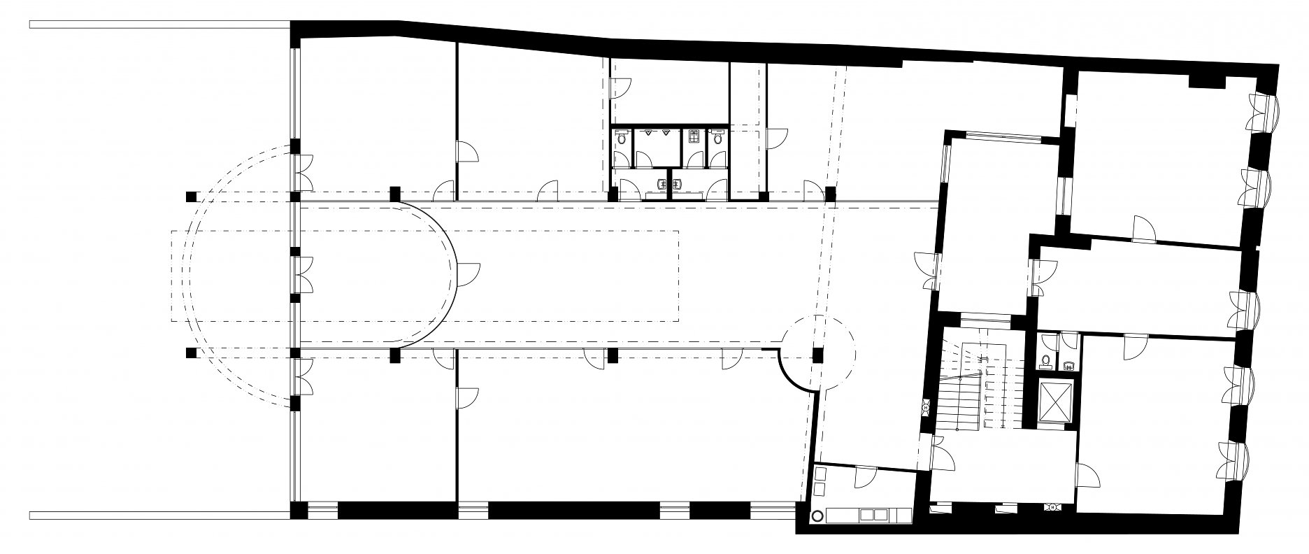
Pôdorys - nový stav
Pôdorys - nový stavMichal Motyčka
Foto: BoysPlayNice
Foto: BoysPlayNice
Foto: BoysPlayNice
Foto: BoysPlayNice
Foto: BoysPlayNice
Foto: BoysPlayNice
Foto: BoysPlayNice
Foto: BoysPlayNice
Foto: BoysPlayNice
Foto: BoysPlayNice
Foto: BoysPlayNice
Foto: BoysPlayNice
Foto: BoysPlayNice
Foto: BoysPlayNice
Foto: BoysPlayNice
Foto: BoysPlayNice
Foto: BoysPlayNice
Foto: BoysPlayNice

Autor: Michal Motyčka
Podklady: Linka
Fotografie: BoysPlayNice

Poloha diela

Ing. Arch. MgA. Michal Motyčka

Súvisiace články

Vložené
24. február 2021
0
608
Hlavný obsahHlavný obsah
Čakajte prosím