Sumarizácia najdôležitejších inovácií, ktoré redefinujúcich využitie tohto energetického zdroja.
AMPHIBIA 3000 GRIP 1.3 od spoločnosti ATRO predstavuje modernú hydroizolačnú technológiu, ktorá spája vysokú odolnosť,...
Ambiciózne plány EK narazili na ekonomické možnosti domácností v jednotlivých členských štátoch –...
IDEA DOOR od spoločnosti JAP prináša do interiéru čistý minimalistický vzhľad vďaka bezrámovému riešeniu a precíznej...
Nástenné nadomietkové armatúry Vitus sú mimoriadne vhodné pre rýchlu a efektívnu...
Okenné profily z kompozitného materiálu RAU-FIPRO X od spoločnosti Rehau sú v porovnaní s tradičnými plastovými profilmi mnohonásobne...
Najnovší sortiment stolov pre zariadenie interiérov...
Spojenie moderného dizajnu, funkčnosti a svetla do harmonického architektonického prvku.
Kancelárska budova Baumit v slovinskom Trzine prešla premenou na moderné a udržateľné pracovisko. Architekti kládli dôraz...
Mottom šiesteho ročníku on-line konferencie odborníkov Xella Dialóg je Efektívny návrh budov 2025+: zmeny a riešenia
Robot WLTR predstavuje moderný prístup k murovaným konštrukciám. Vďaka automatizácii dokáže rýchlo, presne a bezpečne realizovať...
Okrem bezpečnosti majú okná aj elegantný vzhľad, pretože nie sú viditeľné žiadne uzamykacie časti kovania.
Dvere MASTER v skrytej zárubni AKTIVE je možné vyrobiť až do výšky 3 700 mm
Internorm stavia na energetickú efektívnosť a inteligentné tieniace riešenia.
Slovensko vo výbere zastupuje šesť realizácií.

Poslaním súťaže je podporovať zodpovedný prístup vlastníkov národných kultúrnych pamiatok a predstaviteľov samosprávy miest a obcí k ochrane kultúrneho dedičstva Slovenskej republiky. Poškodená bašta, ktorá dodnes tvorí súčasť mestského opevnenia bola zrekonštruovaná a dnes slúži ako Boutique hotel. Nasleduje autorský text od Magdalény Janovskej. Autormi fotografií sú Magdaléna a Ivan Janovskí. Grafické prílohy: Milan Dzurilla a Magdaléna Janovská.
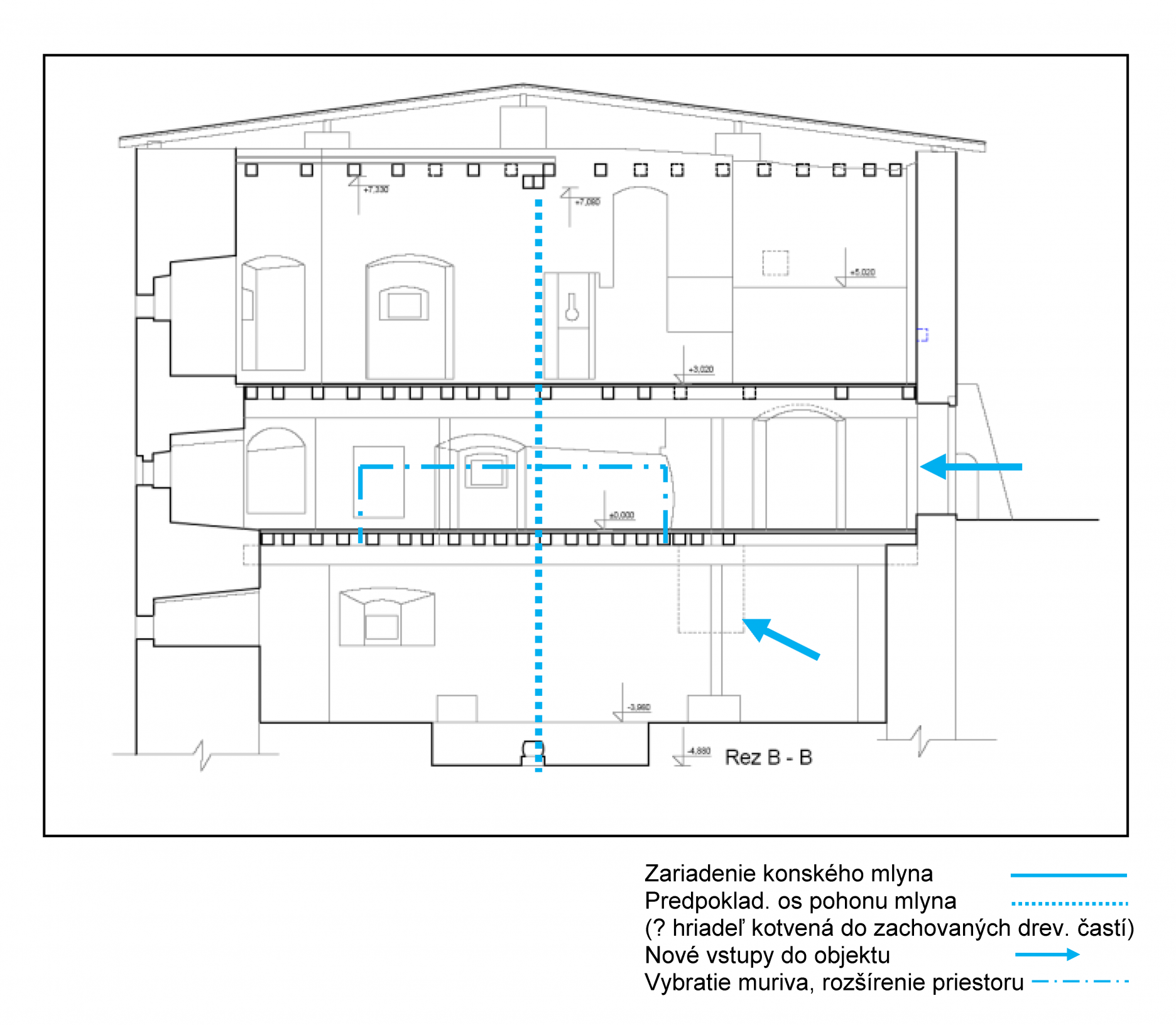
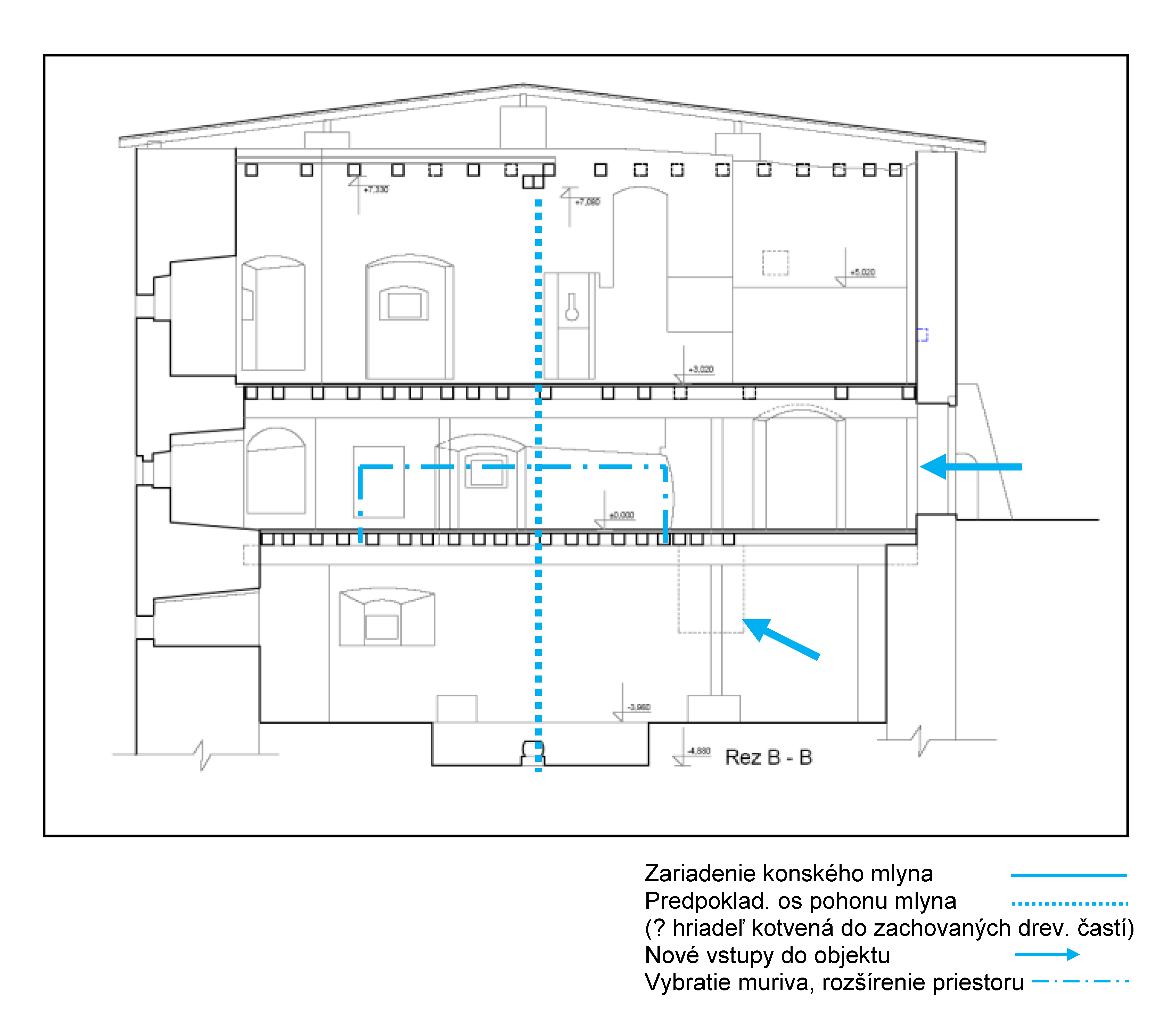
Bašta zv. pracháreň tvorí dodnes súčasť mestského opevnenia Pamiatkovej rezervácie Levoča v jeho severozápadnom rohu. Orientovaná je v smere historickej cesty do Kežmarku, pokračujúcej ďalej na sever do Poľska. V minulosti bola označovaná aj ako Veľký Sharfeck (Gross Sharfeck, slov. prekl. Veľký ostrý roh), dvojitá bašta (duplicata), súkennícka bašta (Tutmacher Turm) alebo konský mlyn (Pferde Mühle). Ide o urbanisticky veľmi exponovaný objekt, najväčšiu baštu mestského opevnenia a výraznú pohľadovú dominantu mesta.
Architektonicko-historický výskum (realizovaný v r. 2005 a 2006, autorka Janovská,. M. a kol., publikovaný autorkou v r. 2015 pod názvom Bašta Pracháreň v Levoči v časopise Pamiatky a múzeá, 2015/ 2, s. 43–49) priniesol okrem analýzy stavebného vývoja aj množstvo nových poznatkov k typológii parkánovej bašty a k historickým súvislostiam, ktoré potom slúžili ako základ pre architektonický návrh prezentácie a obnovy objektu.
Bašta je jednopriestorovým objektom, po výške rozdeleným na tri podlažia pôvodne drevenými trámovými stropmi, ktoré sú okrem obvodového muriva v strede podopreté dvojicou mohutných drevených trámov/prievlakov, nesených štvoricou drevených stĺpov v suteréne a prízemí. Zachovanie celistvosti týchto historických priestorov a ich prezentácia s dochovanými autentickými konštrukciami boli základným cieľom architektonického návrhu. Preto všetky priestory, ktoré bolo potrebné vzhľadom k novej funkcii objektu – Boutique hotel **** (prízemie prístupné z hradobnej uličky – reštaurácia s výstupom na terasu, suterén s východom do hradobnej priekopy, dnes záhrady - vinotéka, l. poschodie - kongresová miestnosť a galéria, prístupné z prízemia, ale aj exteriérovým schodiskom z ulice, 3. až 4. podlažie - podkrovné priestory, slúžiace na ubytovanie v 6-tich hotelových izbách, samostatné prístupné z exteriéru schodiskom z uličky, ale aj s možnosťou vstupu z interiéru bašty) pridať, sú schované pod parkánovou terasou za opevnením (pod exteriérovou terasou hygienické zázemie a pod parkoviskom kuchyňa so samostatným zásobovacím vstupom z exteriéru).
Obvodové murivo je kamenné, so sekundárnymi tehlovými úpravami, v nárožiach podopreté opornými piliermi. Okná sú sekundárne zväčšované na mieste pôvodných strieľní.
Za najstaršiu stavebnú etapu (2. polovica 13. storočia) je potrebné považovať uličnú časť, t. j. južné murivo fasády po výšku nad vstupným portálom do 2.NP. Jedná sa o murivo, ktoré predstavovalo pôvodne lineárnu hradbu kopírujúcu oblosť terénu. Tá je dnes prezentovaná v podobe škárovaného muriva s čitateľným pôvodným ukončením cimburím a neskôr prebudovaným na štrbinové strieľne.
V 1. polovici 15. storočia bola bašta pristavaná k tomuto priebežnému hradobnému múru (okolo r. 1436/1437). V interiéri bašty bol vstavaný v r. 1599-1616 konský mlyn.
V priebehu r. 1852 -1853 sa bašta adaptovala na vojenský sklad. Zničujúcim pre jej existenciu bol požiar v r. 1984, ktorý zachvátil strechu a krov, kedy bol výrazne poškodený aj interiér, najmä jeho drevené stropy. Následne boli zrealizované iba najnutnejšie zabezpečovacie práce ako provizórne prekrytie bašty drevenou pultovou strechou, postavenou na betónových pätkách nad korunou pôvodných obvodových múrov, ako aj najnutnejšie statické zabezpečenie - stiahnutie oceľovými klieštinami. Od tejto doby bola pracháreň nevyužívaná a chátrala. Zatekalo do nej a stala sa útočiskom vandalov, ktorí prispeli k jej ďalšej devastácii. Na základe spracovanej projektovej dokumentácie od r. 2007 do r. 2014 prebiehala jej obnova a od r. 2014 je prístupná verejnosti v podobe reštauračno-ubytovacieho zariadenia.
1. etapou bola realizácia statického zabezpečenia – vložením nových železobetónových stropov v podkroví na oceľových nosníkoch a rekonštrukcia strechy a krovu, vytvorenej kombináciou z oceľových rámov a dreveného krovu ako tvarová kópia pôvodnej strechy. Taktiež boli sanované aj výrazné statické trhliny a obnovené pôvodné drevené stropné konštrukcie vo vnútri bašty. Až tak sa pristúpilo k ďalšej obnove a prístavbám po stranách bašty - na mieste archeologickým výskumom potvrdených parkánových múrov. Prístavby majú ploché strechy v podobe parkánovej terasy. Najväčším problémom bolo trasovanie technických rozvodov a komínových telies. Tieto sú vyvedené a sústredného do jedného telesa – šachty s vyústením v podobe novotvaru-komína nad strechou. Cieľom autorov bolo prinavrátiť objektu jeho autentický výraz so zachovaním a prezentovaním všetkých historických konštrukcií a detailov, ktoré nadobudol počas svojej niekoľko storočnej existencie. Všetky nové konštrukcie, súvisiace s jeho novou funkciou, sú jasne čitateľné v podobe novotvaru a v maximálne možnej miere reverzibilné.