Advertorial

Hotel Hirschen Spa House, Rakúsko

Novotvar v prostredí alpskej obce.

Vytvorte si kúpeľňu snov: dizajnové riešenie od značky hansgrohe

Hansgrohe - prémiová značka kúpeľňových riešení, ponúka nadčasový dizajn, technickú precíznosť a udržateľné inovácie...

Okná Internorm za minuloročné ceny + hliníkový kryt zdarma!

Využite špeciálnu akciu Internorm: okná za minuloročné ceny a hliníkový kryt úplne zadarmo. Ponuka je časovo obmedzená!

Pozvánka na 2. ročník stavebného veľtrhu BigMarket na Slovensku

Na podujatí sa predstaví až 37 vystavovateľov - popredných dodávateľov stavebných materiálov a inovácií s prezentáciou...

Moderné plynové technológie: Efektivita a inovácie pre 21. storočie

Sumarizácia najdôležitejších inovácií, ktoré redefinujúcich využitie tohto energetického zdroja.

Utesňovanie spodných stavieb pomocou hydro-aktívnej fólie AMPHIBIA.

AMPHIBIA 3000 GRIP 1.3 od spoločnosti ATRO predstavuje modernú hydroizolačnú technológiu, ktorá spája vysokú odolnosť,...

Dekarbonizácia individuálneho vykurovania domácností – Green Deal evolučne a nie revolučne

Ambiciózne plány EK narazili na ekonomické možnosti domácností v jednotlivých členských štátoch –...

Minimalistické dvere IDEA – technická precíznosť a čistota prevedenia

IDEA DOOR od spoločnosti JAP prináša do interiéru čistý minimalistický vzhľad vďaka bezrámovému riešeniu a precíznej...

Dom s výhľadom na údolie, Dlouhý Most (ČR)

Kontinuita riešenia od vonkajšieho obkladu až po kovania a kľučky.

Schell Vitus – osvedčené riešenie pre sprchy a umývadlá vo verejnom sektore s viac ako desaťročnou tradíciou

Nástenné nadomietkové armatúry Vitus sú mimoriadne vhodné pre rýchlu a efektívnu...

Kompozitné okná predstavujú súčasnosť a budúcnosť

Okenné profily z kompozitného materiálu RAU-FIPRO X od spoločnosti Rehau sú v porovnaní s tradičnými plastovými profilmi mnohonásobne...

Myotis - stoly 2025

Najnovší sortiment stolov pre zariadenie interiérov...

Priemyselné sklenené priečky Dorsis Digero: svetelné rozhranie pre moderné interiéry

Spojenie moderného dizajnu, funkčnosti a svetla do harmonického architektonického prvku.

Význam prirodzeného svetla pre moderné a flexibilné pracovné prostredie

Kancelárska budova Baumit v slovinskom Trzine prešla premenou na moderné a udržateľné pracovisko. Architekti kládli dôraz...

Konferencia Xella Dialóg predstaví novinky a trendy v stavebníctve

Mottom šiesteho ročníku on-line konferencie odborníkov Xella Dialóg je Efektívny návrh budov 2025+: zmeny a riešenia

Byt v Hradci Králové

Rekonštrukcia bytu určeného na prenájom v starom činžovom dome.
Diela
Red 309.08.2023
16090+28
Byt v Hradci Králové
Autori: MgA. Anna Svobodová, Ing. arch. Ondřej BlahaInvestor: Richard SobotkaPodlažná plocha: 55 m2Investičný náklad: 20 000 €Návrh: 2019 - 2019Realizácia: 2019 - 2019Adresa: Smetanovo nábřeží , Hradec Králové, SlovenskoPublikované: 9. august 2023

Klient oslovil pražský ateliér svobodová blaha s požiadavkou na kompletnú rekonštrukciu štyroch bytov, určených na prenájom. Pôvodné dispozície so vstupnou chodbou, z ktorej sú prístupné ostatné nepriechodné miestnosti boli z pohľadu žiaducej flexibility ideálne. Rekonštrukcia trojice bytov preto prebehla bez výrazných zmien pôvodnej prevádzkovej schémy. “V případě jednoho bytu však klient po získání určité důvěry zredukoval v průběhu prací zadání na jediný požadavek, kterým bylo dodržení shodného maximálního rozpočtu s ostatními byty,” vysvetľujú východiská projektu autori. Návrh tak vznikal súčasne s realizáciou. 

Vďaka umiestneniu bytu na najvyššom podlaží bolo s postupom búracích čoraz zreteľnejšie lepšie presvetlenie interiéru v porovnaní s ostatnými bytmi. Odstránením všetkých deliacich konštrukcií architekti dosiahli obojstranné presvetlenie stredného, pôvodne obslužného traktu. Priestor je navyše presvetlený a odvetraný aj cez stupačku na úrovni strechy. 

Spomínané prednosti bytu zúročili architekti transformáciou pôvodnej chodby a komory na otvorenú obytnú zónu. “Z našeho pohledu tímto řešením vznikla čtvrtá obytná místnost,” vysvetľujú autori. Z perspektívy realitného trhu však stále ide o priestrannú garsónku s kuchynským kútom. “Průběh projektu proto provázela značná nervozita z obavy složitého hledání konkrétního nájemce po dokončení realizace a zároveň nadšení a přesvědčení o správnosti a kvalitě řešení a učiněných rozhodnutí,” doplňajú architekti.

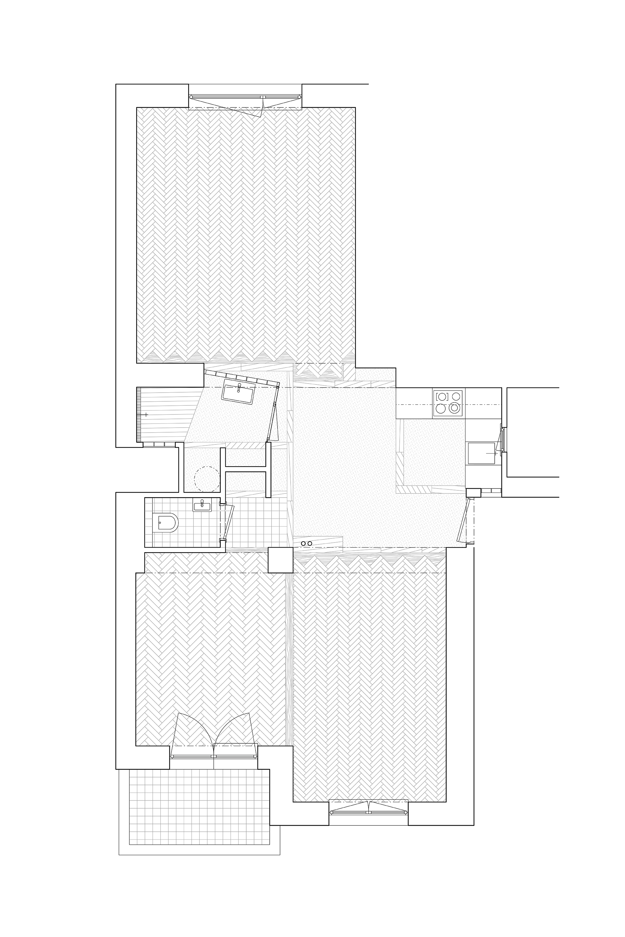
Centrálny trakt integruje kompletné zázemie bytu. Ostatné miestnosti zostávajú voľné. Vo vstupnej hale je po novom umiestnená kuchynská linka. Výmera priestoru umožňuje umiestnenie jedálenského stola. Vstupnú zónu bytu opticky zväčšuje zrkadlo na celú výšku miestnosti. Za zrkadlom je z oboch strán navrhnutý vstavaný úložný priestor. Kúpeľňu so sprchovým kútom vymedzuje priesvitná luxferová stena a dvere s výplňami z drôtoskla, ktoré zabezpečujú prirodzené osvetlenie priestoru.

Úspešný repas pôvodných bukových parkiet a terazza, ktoré odolali nánosu nalepenej dlažby, alebo vinylu pomohli presvedčiť klienta k investícii do podobne trvanlivých materiálov. Projekt sa tak odklonil od počiatočnej voľby lacných materiálov do priestorov určených na prenájom, ako je laminát, alebo vinylové podlahy. Škáry v podlahe po vybúraných priečkach tak zacelili kamenné pásy, ktoré boli následne prebrúsené spoločne s terazzom. Pôvodné parené bukové parkety doplnili nové dubové vlysy, napojené na kameň prostredníctvom vložených trojuholníkov s vyfrézovaným zámkom. Výsledná kresba podporuje pocitové delenie interiéru na jednotlivé miestnosti a zóny.

“Pro nás je téma náhody opakujícím se a důležitým motivem, obzvlášť při řešení rekonstrukcí. Jedná se o vrstvu, která může návrh obohatit o momenty zpravidla silnější a autentičtější nežli ty chtěné a navržené s přílišnou snahou o kreativitu a klienty často požadovaný ´wow efekt´. Kreativita pak spočívá v tom, že z kolizních míst se stanou přednosti a prostory získají osobitý charakter,” dopĺňajú na záver autori.

Foto: svobodová blaha
Foto: svobodová blaha
Foto: svobodová blaha
Pôdorys
PôdorysAutor: svobodová blaha
Foto: svobodová blaha
Foto: svobodová blaha
Foto: svobodová blaha
Foto: svobodová blaha
Foto: svobodová blaha
Foto: svobodová blaha
Foto: svobodová blaha
Foto: svobodová blaha
Foto: svobodová blaha
Foto: svobodová blaha
Foto: svobodová blaha
Foto: svobodová blaha

Použité materiály:

  • Lakovaná MDF - vstavaný nábytok podľa autorského návrhu
  • Luxfery, drôtosklo - stena kúpeľne
  • Terazzo - repasované pôvodné podlahy
  • Kameň - doplnenie podláh
  • Bukové a dubové parkety - pôvodné a nové podlahy
  • Porcelánová dlažba - nové podlahy v kúpelni a WC

Podklady: svobodová blaha

Poloha diela

MgA. Anna Svobodová
Ing. arch. Ondřej Blaha
Vložené
28. júl 2023
0
1609
Hlavný obsahHlavný obsah
Čakajte prosím