Advertorial

Pozvánka na 2. ročník stavebného veľtrhu BigMarket na Slovensku

Na podujatí sa predstaví až 37 vystavovateľov - popredných dodávateľov stavebných materiálov a inovácií s prezentáciou...

Hotel Hirschen Spa House, Rakúsko

Novotvar v prostredí alpskej obce.

Vytvorte si kúpeľňu snov: dizajnové riešenie od značky hansgrohe

Hansgrohe - prémiová značka kúpeľňových riešení, ponúka nadčasový dizajn, technickú precíznosť a udržateľné inovácie...

Okná Internorm za minuloročné ceny + hliníkový kryt zdarma!

Využite špeciálnu akciu Internorm: okná za minuloročné ceny a hliníkový kryt úplne zadarmo. Ponuka je časovo obmedzená!

Moderné plynové technológie: Efektivita a inovácie pre 21. storočie

Sumarizácia najdôležitejších inovácií, ktoré redefinujúcich využitie tohto energetického zdroja.

Utesňovanie spodných stavieb pomocou hydro-aktívnej fólie AMPHIBIA.

AMPHIBIA 3000 GRIP 1.3 od spoločnosti ATRO predstavuje modernú hydroizolačnú technológiu, ktorá spája vysokú odolnosť,...

Dekarbonizácia individuálneho vykurovania domácností – Green Deal evolučne a nie revolučne

Ambiciózne plány EK narazili na ekonomické možnosti domácností v jednotlivých členských štátoch –...

Minimalistické dvere IDEA – technická precíznosť a čistota prevedenia

IDEA DOOR od spoločnosti JAP prináša do interiéru čistý minimalistický vzhľad vďaka bezrámovému riešeniu a precíznej...

Dom s výhľadom na údolie, Dlouhý Most (ČR)

Kontinuita riešenia od vonkajšieho obkladu až po kovania a kľučky.

Schell Vitus – osvedčené riešenie pre sprchy a umývadlá vo verejnom sektore s viac ako desaťročnou tradíciou

Nástenné nadomietkové armatúry Vitus sú mimoriadne vhodné pre rýchlu a efektívnu...

Kompozitné okná predstavujú súčasnosť a budúcnosť

Okenné profily z kompozitného materiálu RAU-FIPRO X od spoločnosti Rehau sú v porovnaní s tradičnými plastovými profilmi mnohonásobne...

Myotis - stoly 2025

Najnovší sortiment stolov pre zariadenie interiérov...

Priemyselné sklenené priečky Dorsis Digero: svetelné rozhranie pre moderné interiéry

Spojenie moderného dizajnu, funkčnosti a svetla do harmonického architektonického prvku.

Význam prirodzeného svetla pre moderné a flexibilné pracovné prostredie

Kancelárska budova Baumit v slovinskom Trzine prešla premenou na moderné a udržateľné pracovisko. Architekti kládli dôraz...

Konferencia Xella Dialóg predstaví novinky a trendy v stavebníctve

Mottom šiesteho ročníku on-line konferencie odborníkov Xella Dialóg je Efektívny návrh budov 2025+: zmeny a riešenia

Dom v záhrade, Ostrava - Radvanice

Bývanie prepojené so záhradou.
Diela
Red 318.08.2021
27630+32
Dom v záhrade, Ostrava - Radvanice
Autori: Ing. arch. Tomáš Kozel, Ing. arch. Kamil MěrkaNávrh: 2013 - 2014Realizácia: 2015 - 2019Adresa: Na Štěpnici , Ostrava – Radvanice, Česká republikaPublikované: 18. august 2021

Realizácia sa dostala do užšieho výberu medzinárodnej poroty v rámci aktuálneho ročníka Českej ceny za architektúru.

Dom pre rodinu lekárov v ostravskej časti Radvanice. Lineárna figúra, klesajúca pozdĺž severne orientovaného svahu parcely, definuje tri zóny s rôznou svetlou výškou, ktorá zodpovedá ich využitiu. Za sebou radené a diferencované prostredia zceľuje jednoliaty plášť z vlnitého plechu. 

Martin Grobař
Martin Grobař
Martin Grobař
Martin Grobař
Martin Grobař
Martin Grobař
Martin Grobař
Martin Grobař

"V Radvanicích, jednom z městských obvodů Ostravy, nalezl manželský pár pokrokově smýšlejících doktorů specifický pozemek. K severu svažující se louka má značně křivolakou hranici a dva protilehlé vstupy. Sousední domek reprezentuje současný český standard. Naproti němu statečně přežívá torzo ovocného sadu, který pamatuje největší slávu bývalé Nové huti Klementa Gottwalda okupující blízký horizont,"  vysvetľujú východiská architekti z ateliéru ti2.

Situácia
SituáciaAutor: ti2 architekti

Úzka a dlhá figúra domu prirodzene kopíruje svahovitý terén. Čiastočne podpivničený prízemný dom má tri výškové úrovne podlahy a striktne zónovanú dispozíciu. Pod takmer tridsať metrov dlhou pultovou strechou plynie priestor s premenlivou svetlou výškou. Od intímnych 2,3 m až po veľkorysých 3,5 m. Odolná prevetrávaná fasáda z trapézových plechov je na dlhších stranách perforovaná oknami a doplnená lapidárnou hmotou vstupu do suterénu. Projekt v budúcnosti počíta s dostavbou garáže a záhradného prístrešku.

Pôdorys suterénu
Pôdorys suterénuAutor: ti2 architekti
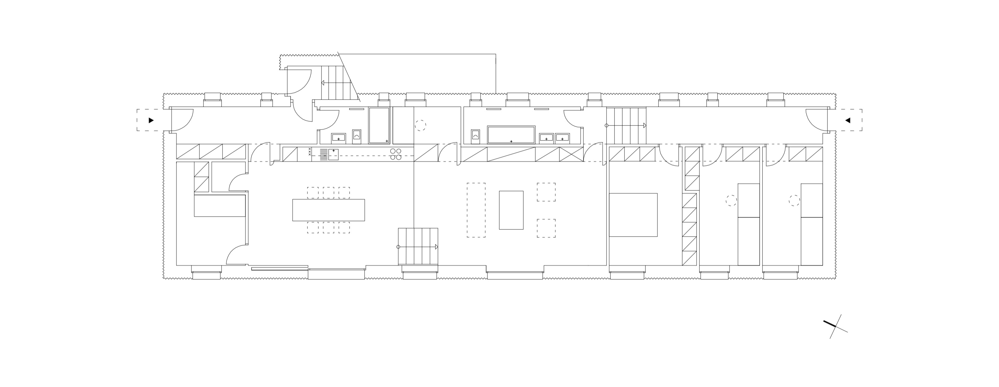
Pôdorys prízemia
Pôdorys prízemiaAutor: ti2 architekti
Pozdĺžny rez
Pozdĺžny rezAutor: ti2 architekti
Pohľady
PohľadyAutor: ti2 architekti
Konštrukčné detaily
Konštrukčné detailyAutor: ti2 architekti
Model
ModelAutor: ti2 architekti
Martin Grobař
Martin Grobař
Martin Grobař
Martin Grobař
Martin Grobař
Martin Grobař
Martin Grobař
Martin Grobař
Martin Grobař
Martin Grobař
Martin Grobař

 

Materiály a technológie:

  • spodná stavba - biela vaňa
  • obvodové murivo - pálené keramické tvarovky
  • konštrukcia strechy - drevené fošne
  • fasáda - zateplenie minerálnou vlnou, prevetrávaná vzduchová medzera, trapézový plech
  • strešná krytina mPVC
  • drevohliníkové okná
  • podlahy - polyuretánové, v kúpeľniach živicová stierka
  • stolárske výrobky: brezová preglejka / brezová dyha
  • podlahové vykurovanie + kondenzačný kotol
  • vetranie s rekuperáciou a zemným kolektorom

Podklady: ti2 architekti

Poloha diela

Ing. arch. Tomáš Kozel
Ing. arch. Kamil Měrka
Vložené
16. august 2021
0
2763
Hlavný obsahHlavný obsah
Čakajte prosím