Advertorial

Okná Internorm za minuloročné ceny + hliníkový kryt zdarma!

Využite špeciálnu akciu Internorm: okná za minuloročné ceny a hliníkový kryt úplne zadarmo. Ponuka je časovo obmedzená!

Pozvánka na 2. ročník stavebného veľtrhu BigMarket na Slovensku

Na podujatí sa predstaví až 37 vystavovateľov - popredných dodávateľov stavebných materiálov a inovácií s prezentáciou...

Moderné plynové technológie: Efektivita a inovácie pre 21. storočie

Sumarizácia najdôležitejších inovácií, ktoré redefinujúcich využitie tohto energetického zdroja.

Utesňovanie spodných stavieb pomocou hydro-aktívnej fólie AMPHIBIA.

AMPHIBIA 3000 GRIP 1.3 od spoločnosti ATRO predstavuje modernú hydroizolačnú technológiu, ktorá spája vysokú odolnosť,...

Dekarbonizácia individuálneho vykurovania domácností – Green Deal evolučne a nie revolučne

Ambiciózne plány EK narazili na ekonomické možnosti domácností v jednotlivých členských štátoch –...

Minimalistické dvere IDEA – technická precíznosť a čistota prevedenia

IDEA DOOR od spoločnosti JAP prináša do interiéru čistý minimalistický vzhľad vďaka bezrámovému riešeniu a precíznej...

Dom s výhľadom na údolie, Dlouhý Most (ČR)

Kontinuita riešenia od vonkajšieho obkladu až po kovania a kľučky.

Schell Vitus – osvedčené riešenie pre sprchy a umývadlá vo verejnom sektore s viac ako desaťročnou tradíciou

Nástenné nadomietkové armatúry Vitus sú mimoriadne vhodné pre rýchlu a efektívnu...

Kompozitné okná predstavujú súčasnosť a budúcnosť

Okenné profily z kompozitného materiálu RAU-FIPRO X od spoločnosti Rehau sú v porovnaní s tradičnými plastovými profilmi mnohonásobne...

Myotis - stoly 2025

Najnovší sortiment stolov pre zariadenie interiérov...

Priemyselné sklenené priečky Dorsis Digero: svetelné rozhranie pre moderné interiéry

Spojenie moderného dizajnu, funkčnosti a svetla do harmonického architektonického prvku.

Význam prirodzeného svetla pre moderné a flexibilné pracovné prostredie

Kancelárska budova Baumit v slovinskom Trzine prešla premenou na moderné a udržateľné pracovisko. Architekti kládli dôraz...

Konferencia Xella Dialóg predstaví novinky a trendy v stavebníctve

Mottom šiesteho ročníku on-line konferencie odborníkov Xella Dialóg je Efektívny návrh budov 2025+: zmeny a riešenia

Murovací robot WLTR stavia svoj prvý dom na Slovensku

Robot WLTR predstavuje moderný prístup k murovaným konštrukciám. Vďaka automatizácii dokáže rýchlo, presne a bezpečne realizovať...

Nová éra bezpečnosti s I-tec Secure od Internorm

Okrem bezpečnosti majú okná aj elegantný vzhľad, pretože nie sú viditeľné žiadne uzamykacie časti kovania.

Dom pri lese a rybníku, Habartov (ČR)

Bývanie v zaujímavom krajinnom a prírodnom kontexte okresu Sokolov.
Diela
Red 301.11.2021
37490+32
Dom pri lese a rybníku, Habartov (ČR)
Autori: Ing. arch. Magdalena Rochová, Ing. arch. Radek JaroušekPlocha pozemku: 4600 m2 Podlažná plocha: 325 m2 Návrh: 2016 - 2018Realizácia: 2020 - 2020Adresa: Tylova , Habartov, SlovenskoPublikované: 1. november 2021

Realizácia sa dostala do užšieho výberu medzinárodnej poroty v rámci aktuálneho ročníka Českej ceny za architektúru.

Dom, osadený do svahu na pomedzí zastavaného územia päťtisícového mesta a priľahlého lesa, obklopuje rozsiahla parcela s výmerou 4600 m2 a malou vodnou plochou. Architekti zachovali na celom pozemku pôvodné stromy, ktoré sa stali neoddeliteľnou súčasťou projektu a riešenia záhrady: “Chtěli jsme, aby dům vplouval do krajiny, aby se architektura rozmělnila z města do přírody se stromy a rybníkem...”

Foto: Filip Šlapal

Severná strana jednopodlažného domu je v súlade s vrstevnicami klesajúceho terénu čiastočne zapustená do svahu. Z ulice tak vnímame len nízku horizontálnu líniu kamenného obkladu, členeného rastrom štíhlych okien, a ponad zelenú strechu môžeme vnímať okolitú krajinu a koruny stromov na pozemku.

Foto: Filip Šlapal

Do pokojného priestoru záhrady naopak smerujú rozmerné presklené plochy. “Při návrhu byl pro nás  důležitý kontrast ´pevnosti´ masivního kamene do ulice a lehkosti prosklené fasády do soukromých  částí zahrady,” vysvetľujú architekti z pražského ateliéru.  

Foto: Filip Šlapal
Foto: Filip Šlapal
Foto: Filip Šlapal
Foto: Filip Šlapal
Foto: Filip Šlapal
Foto: Filip Šlapal
Foto: Filip Šlapal
Foto: Filip Šlapal
Foto: Filip Šlapal
Foto: Filip Šlapal
Foto: Filip Šlapal

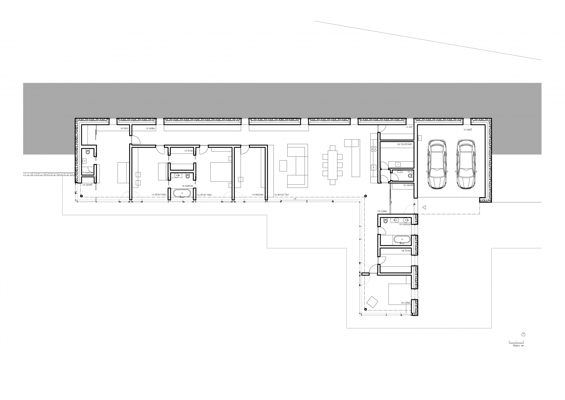
Hlavný, lineárny blok domu je situovaný vo vrchnej časti rozľahlého pozemku. Do východnej časti hlavného traktu steny sústredili architekti garáž, zádverie, WC a technické zázemie domu. Na vstupný a technologický blok nadväzuje obývacia izba a blok spální. Krátke kolmé krídlo s rodičovskou spálňou delí záhradu na vstupnú a privátnu zónu.   

Situácia
SituáciaAutor: JRA Jaroušek Rochová Architekti
Pôdorys
PôdorysAutor: JRA Jaroušek Rochová Architekti

Nosné obvodové steny a stropy sú odliate ako monolitické konštrukcie zo železobetónu. Zateplenú sendvičovú skladbu zo strany exteriéru dopĺňa masívne kamenné murivo. Rámy hliníkových okien lícujú s rovinou kamenných stien. Systém zasklenia využíva celú výšku fasád, orientovaných do privátnej časti záhrady. Strop a skladba strešnej roviny je skrytá za fasádny systém. “Důležitá byla pro nás hra velkých prosklených částí, menších oken, plných pevných nebo otevíravých segmentů,”  dopĺňajú architekti.

Rezy
RezyAutor: JRA Jaroušek Rochová Architekti
Pohľady
PohľadyAutor: JRA Jaroušek Rochová Architekti

Lomovému pieskovcu, dominantnému pri pohľadoch z exteriéru, sekunduje vo vnútri kresba prírodného dreva. Masívnu dubovú podlahu kombinujú architekti s dyhovanými a lakovanými časťami nábytku.  

Foto: Filip Šlapal
Foto: Filip Šlapal
Foto: Filip Šlapal
Foto: Filip Šlapal
Foto: Filip Šlapal
Foto: Filip Šlapal
Foto: Filip Šlapal

Poloha diela

Ing. arch. Magdalena Rochová
Ing. arch. Radek Jaroušek
Vložené
4. október 2021
0
3749
Hlavný obsahHlavný obsah
Čakajte prosím