Advertorial

Hotel Hirschen Spa House, Rakúsko

Novotvar v prostredí alpskej obce.

Vytvorte si kúpeľňu snov: dizajnové riešenie od značky hansgrohe

Hansgrohe - prémiová značka kúpeľňových riešení, ponúka nadčasový dizajn, technickú precíznosť a udržateľné inovácie...

Okná Internorm za minuloročné ceny + hliníkový kryt zdarma!

Využite špeciálnu akciu Internorm: okná za minuloročné ceny a hliníkový kryt úplne zadarmo. Ponuka je časovo obmedzená!

Pozvánka na 2. ročník stavebného veľtrhu BigMarket na Slovensku

Na podujatí sa predstaví až 37 vystavovateľov - popredných dodávateľov stavebných materiálov a inovácií s prezentáciou...

Moderné plynové technológie: Efektivita a inovácie pre 21. storočie

Sumarizácia najdôležitejších inovácií, ktoré redefinujúcich využitie tohto energetického zdroja.

Utesňovanie spodných stavieb pomocou hydro-aktívnej fólie AMPHIBIA.

AMPHIBIA 3000 GRIP 1.3 od spoločnosti ATRO predstavuje modernú hydroizolačnú technológiu, ktorá spája vysokú odolnosť,...

Dekarbonizácia individuálneho vykurovania domácností – Green Deal evolučne a nie revolučne

Ambiciózne plány EK narazili na ekonomické možnosti domácností v jednotlivých členských štátoch –...

Minimalistické dvere IDEA – technická precíznosť a čistota prevedenia

IDEA DOOR od spoločnosti JAP prináša do interiéru čistý minimalistický vzhľad vďaka bezrámovému riešeniu a precíznej...

Dom s výhľadom na údolie, Dlouhý Most (ČR)

Kontinuita riešenia od vonkajšieho obkladu až po kovania a kľučky.

Schell Vitus – osvedčené riešenie pre sprchy a umývadlá vo verejnom sektore s viac ako desaťročnou tradíciou

Nástenné nadomietkové armatúry Vitus sú mimoriadne vhodné pre rýchlu a efektívnu...

Kompozitné okná predstavujú súčasnosť a budúcnosť

Okenné profily z kompozitného materiálu RAU-FIPRO X od spoločnosti Rehau sú v porovnaní s tradičnými plastovými profilmi mnohonásobne...

Myotis - stoly 2025

Najnovší sortiment stolov pre zariadenie interiérov...

Priemyselné sklenené priečky Dorsis Digero: svetelné rozhranie pre moderné interiéry

Spojenie moderného dizajnu, funkčnosti a svetla do harmonického architektonického prvku.

Význam prirodzeného svetla pre moderné a flexibilné pracovné prostredie

Kancelárska budova Baumit v slovinskom Trzine prešla premenou na moderné a udržateľné pracovisko. Architekti kládli dôraz...

Konferencia Xella Dialóg predstaví novinky a trendy v stavebníctve

Mottom šiesteho ročníku on-line konferencie odborníkov Xella Dialóg je Efektívny návrh budov 2025+: zmeny a riešenia

Provaznictví Újezd, Praha - Malá Strana

Spleť lán a nápadov.
Diela
Red 323.09.2022
6620+23
Provaznictví Újezd, Praha - Malá Strana
Autori: Ing. arch. Magdalena Rochová, Ing. arch. Radek JaroušekSpolupráca: Lenka Mandelová, Jonatan Kuna (grafika)Podlažná plocha: 90 m2Návrh: 2017 - 2018Realizácia: 2020 - 2021Adresa: Vítězná 10, Praha - Malá Strana , Česká republikaPublikované: 23. september 2022

Realizácia sa dostala medzi nominácie medzinárodnej poroty v aktuálnom ročníku Českej ceny za architektúru.

Predajňu na prízemí činžiaku z 19. storočia rekonštrukcia ateliéru Jaroušek Rochová architekti výrazne otvorila a sprehľadnila. Realizácia súčasne kultivuje obchodný parter ulice Vítězná a môže slúžiť ako príklad pre ďalšie prevádzky. Nositeľmi grafickej informácie a zároveň reklamou sú samotný priestor a produkt, ktoré sa zaobídu bez potreby výrazného pútača.

Prvým krokom pri rekonštrukcii prevádzky bolo odstránenie dodatočných stavebných zásahov, ktoré znemožňovali vnímať pôvodnú kvalitu priestoru v meštianskom dome. Pôvodne tri oddelené časti s vloženými poschodiami spojili architekti do jedného prehľadného celku. "Z historických plánů, které jsme našli ve stavebním archivu bylo zřejmé, že původně byly prostory propojeny. Vybouráním zdí jsme prostor spojili v ucelenou a jasnou dispozici. Navrhli a přesunuli jsme vstup do obchodu do středové části dispozice, kde jsme umístili prodejní pult a centrální výstavní regál. Důležitý byl pro nás prvek možných vysokých stropů s klenbami,“  vysvetľujú architekti.

Foto: Filip Šlapal

Odstránenie všetkých vstavaných poschodí prinavrátilo priestorom pôvodnú výšku. Nové  subtílne konštrukcie galérií v krajných traktoch nenarušujú celistvosť interiéru. Pod nimi plynú regály s cievkami a návinmi lán a povrazmi. Za nimi ukryli architekti sklady predajne. Vložené nábytkové moduly, na ktoré vedú popri stene schodiská rozširujú odbytovú plochu predajne. 

Foto: Filip Šlapal

Ako efektívne a finančne únosné riešenie zjednotenia povrchov, ktoré historické nánosy a stavebné zásahy premenili na nesúrodú mozaiku, zvolili autori patinovanú štukovú výmaľbu. Odpadla tak potreba omietnutia celého interiéru. 

Foto: Filip Šlapal

Celé vybavenie prevádzky je vyrobené na mieru, prevažne z brezovej preglejky a antracitových kompozitných dosiek. Predajný pult, umiestnený v osi vstupu, slúži aj ako vzorkovník možných farieb povrazov. Rovnako aj zábradlie galérií funguje ako galéria predávaných textilných sietí. Laná v predajni nájdeme na miestach madiel a autorských solitérov atypických svietidiel. Mobiliár dopĺňajú pojazdné meracie stolíky z brezovej preglejky.

Foto: Filip Šlapal
Foto: Filip Šlapal
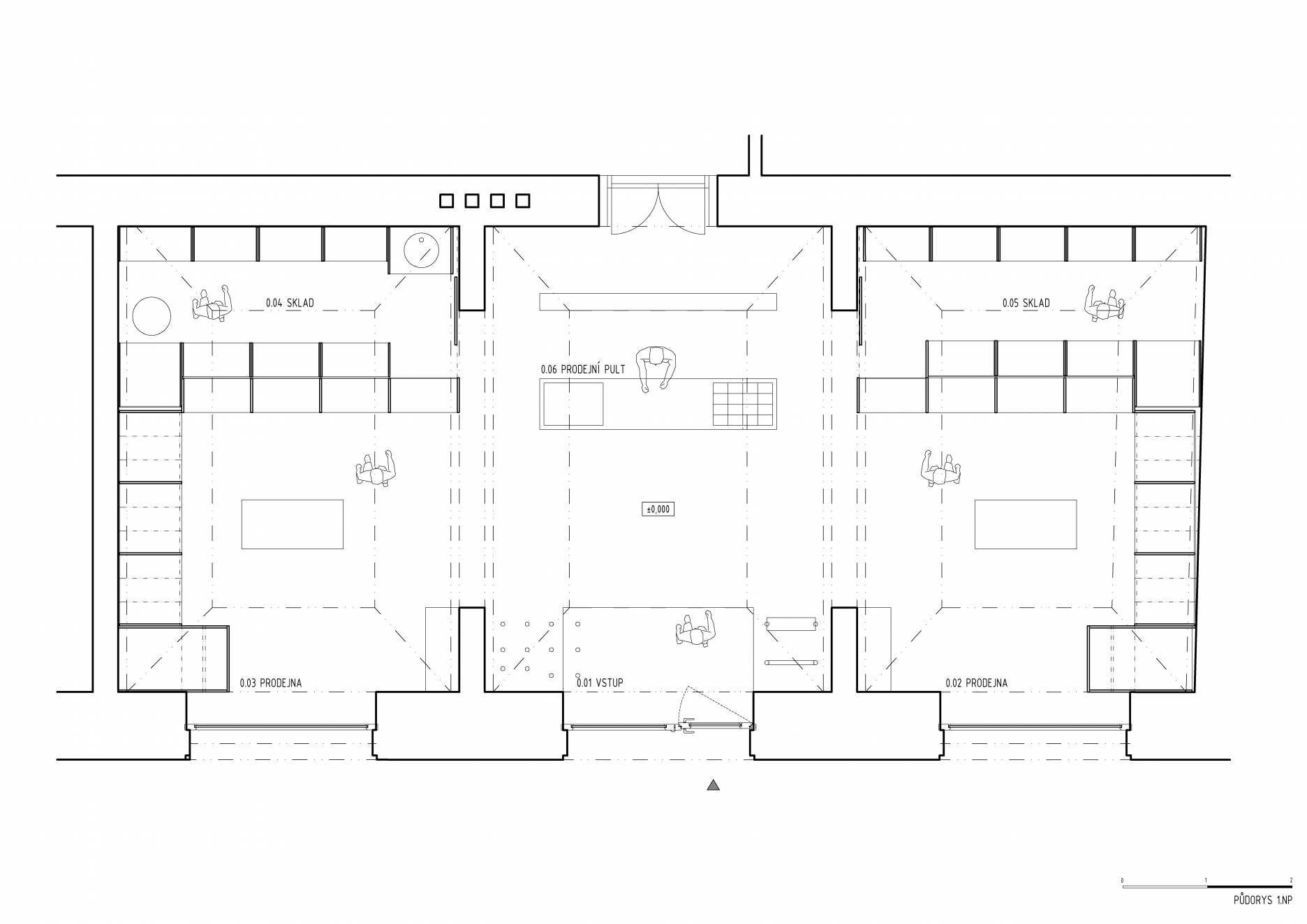
Pôdorys prízemia
Pôdorys prízemiaAutor: JRA Jaroušek Rochová Architekti
Pôdorys poschodia
Pôdorys poschodiaAutor: JRA Jaroušek Rochová Architekti
Interiér - rozvinutý pohľad
Interiér - rozvinutý pohľadAutor: JRA Jaroušek Rochová Architekti
Interiér - rozvinutý pohľad
Interiér - rozvinutý pohľad
Pohľad z ulice
Pohľad z uliceAutor: JRA Jaroušek Rochová Architekti
Foto: Filip Šlapal
Foto: Filip Šlapal
Foto: Filip Šlapal
Foto: Filip Šlapal
Foto: Filip Šlapal

Dôležitou súčasťou projektu bol tiež “facelift” predajne zo strany ulice. V roku 1974 totiž boli pôvodné drevené výklady vybúrané a nahradené oceľovo-hliníkovou konštrukciou. Architekti preto navrhli nové drevené výplne, ktoré vychádzajú z pôvodnej podoby výkladov. Ich nová farebnosť korešponduje so zrekonštruovaným vchodom do domu. 

Foto: Filip Šlapal
Foto: Filip Šlapal
Foto: Filip Šlapal

“Provazy naskýtají mnoho možností a nápadů. Při našem návrhu bylo pro nás důležité, abychom interiér nápady s použitím provazů nezahltili a vytvořili jsme jasný a přehledný,” dopĺňajú na záver architekti.

Podklady: JRA Jaroušek Rochová Architekti
Fotografie: Filip Šlapal

Východiskový stav:

Poloha diela

Ing. arch. Magdalena Rochová
Ing. arch. Radek Jaroušek

Súvisiace články

Vložené
13. september 2022
0
662
Hlavný obsahHlavný obsah
Čakajte prosím