Využite špeciálnu akciu Internorm: okná za minuloročné ceny a hliníkový kryt úplne zadarmo. Ponuka je časovo obmedzená!
Na podujatí sa predstaví až 37 vystavovateľov - popredných dodávateľov stavebných materiálov a inovácií s prezentáciou...
Sumarizácia najdôležitejších inovácií, ktoré redefinujúcich využitie tohto energetického zdroja.
AMPHIBIA 3000 GRIP 1.3 od spoločnosti ATRO predstavuje modernú hydroizolačnú technológiu, ktorá spája vysokú odolnosť,...
Ambiciózne plány EK narazili na ekonomické možnosti domácností v jednotlivých členských štátoch –...
IDEA DOOR od spoločnosti JAP prináša do interiéru čistý minimalistický vzhľad vďaka bezrámovému riešeniu a precíznej...
Kontinuita riešenia od vonkajšieho obkladu až po kovania a kľučky.
Nástenné nadomietkové armatúry Vitus sú mimoriadne vhodné pre rýchlu a efektívnu...
Okenné profily z kompozitného materiálu RAU-FIPRO X od spoločnosti Rehau sú v porovnaní s tradičnými plastovými profilmi mnohonásobne...
Najnovší sortiment stolov pre zariadenie interiérov...
Spojenie moderného dizajnu, funkčnosti a svetla do harmonického architektonického prvku.
Kancelárska budova Baumit v slovinskom Trzine prešla premenou na moderné a udržateľné pracovisko. Architekti kládli dôraz...
Mottom šiesteho ročníku on-line konferencie odborníkov Xella Dialóg je Efektívny návrh budov 2025+: zmeny a riešenia
Robot WLTR predstavuje moderný prístup k murovaným konštrukciám. Vďaka automatizácii dokáže rýchlo, presne a bezpečne realizovať...
Okrem bezpečnosti majú okná aj elegantný vzhľad, pretože nie sú viditeľné žiadne uzamykacie časti kovania.

Realizáciu ateliéru atakarchitekti, ktorá nesie meno významného továrnika Ignaza Ginzkeya, vybrala porota medzi 29 diel nominovaných v aktuálnom ročníku Českej ceny za architektúru.
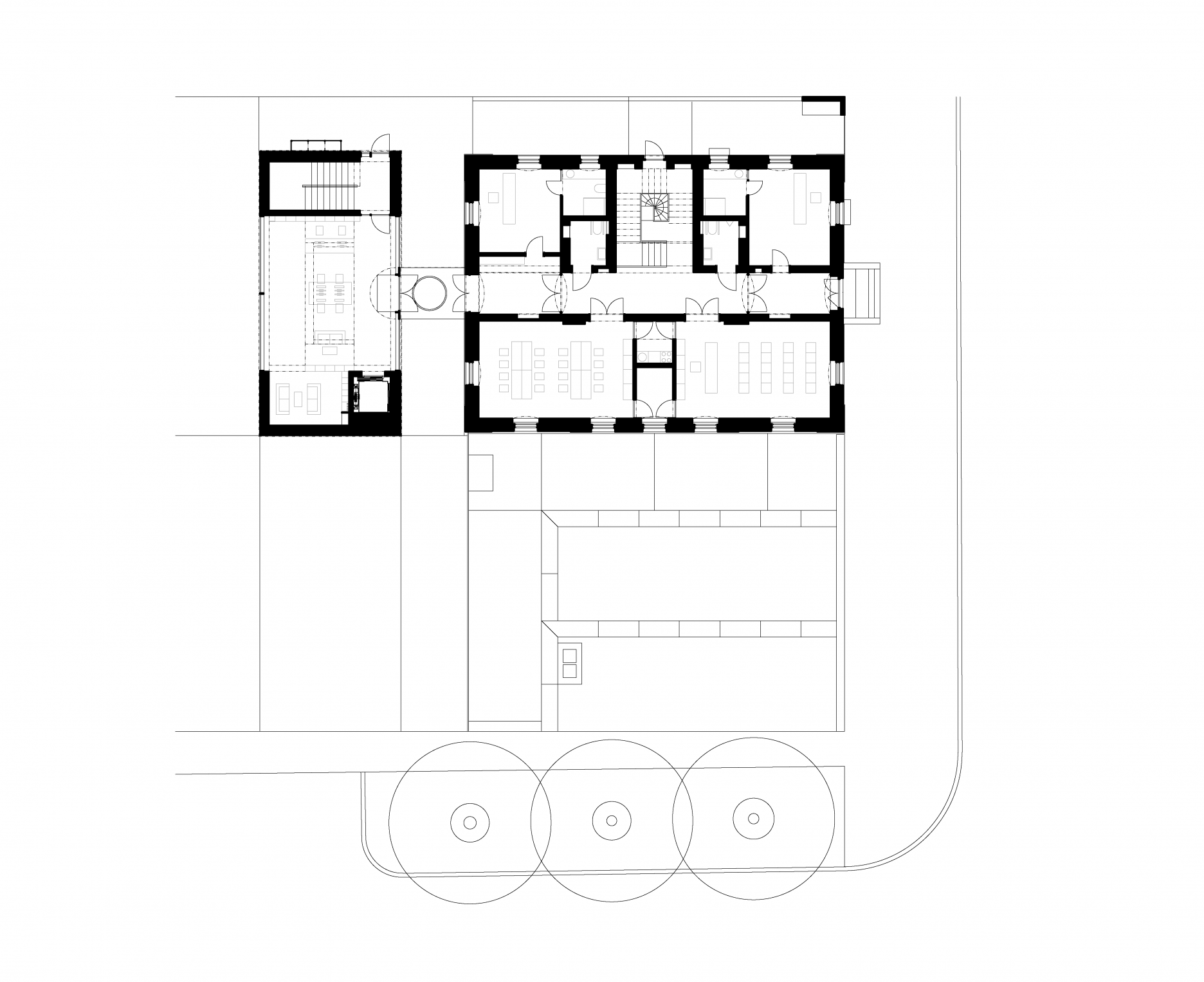
Stavbu kultúrneho centra IGI iniciovala potreba premiestniť mestskú knižnicu z tesných priestorov Kultúrneho domu 101010. Ako vhodné miesto sa javil susedný nevyužívaný dom rímskokatolíckej fary. Objekt z roku 1914 v minulosti slúžil okrem iného ako sirotinec, škôlka a naposledy bol využívaný ako učilište. Zámerom mestskej časti bolo umiestniť do domu okrem knižnice aj menšiu multifunkčnú sálu, miestnosti pre spolky a materské centrum. Bývalá fara však nemohla prijať všetky požadované funkcie. Preto padlo rozhodnutie rozšíriť budovu o prístavbu, ktorá vyrieši prevádzkové nároky viacerých celkov. Požiadavky a predstavy libereckej mestskej časti sformulovali konečné zadanie pre komunitné centrum.
Návrh “domáceho” libereckého ateliéru atakarchitekti vstupuje do živého centra mestskej časti s kostolom, radnicou, kultúrnym centrom a zámockým parkom. Riešenie verejného priestoru sa inšpiruje rytmom malých námestíčok v susedstve budov. Zopakovaním tohto urbanistického vzoru vzniká v južnej časti medzi komunitným centrom a kultúrnym domom ďalšia vonkajšia pobytová plocha pre ľudí a akcie.
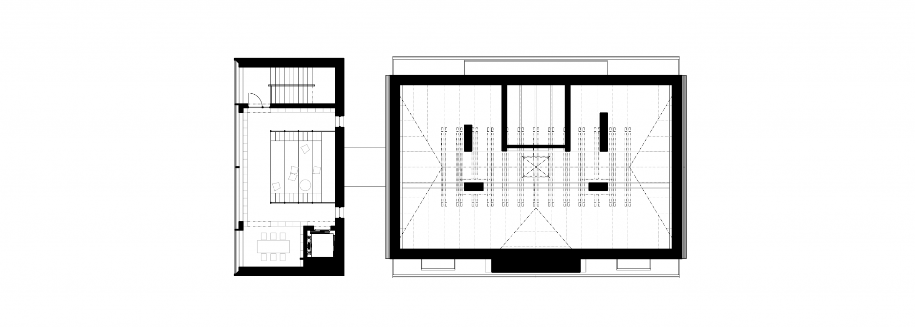
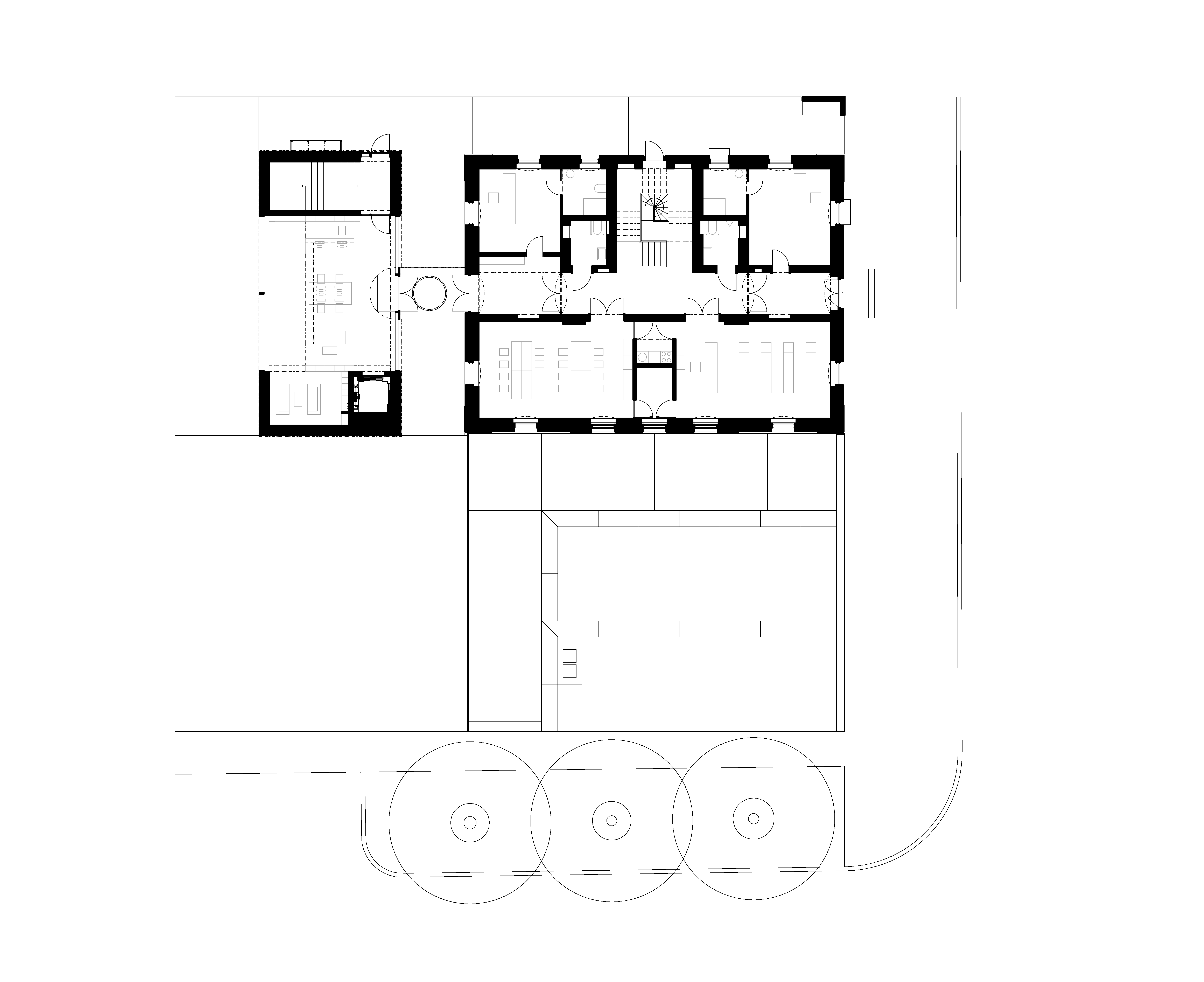
Starý dom si zachováva pôvodný charakter. Zo západnej strany ho s odstupom dopĺňa vyššia elementárna dostavba knižnice. Objekty navzájom prepája spoločný suterén a presklený spojovací mostík na úrovni prvého poschodia.
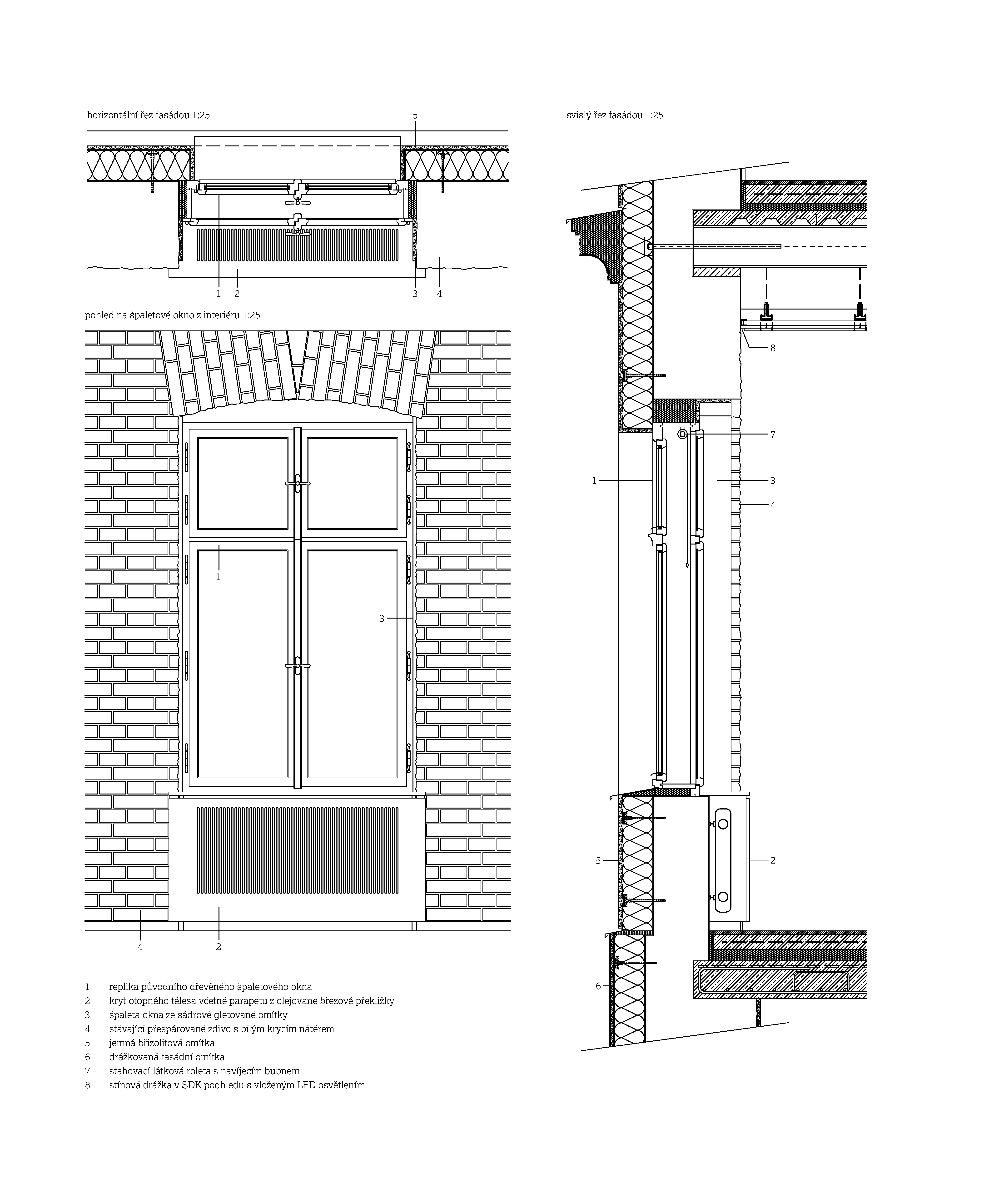
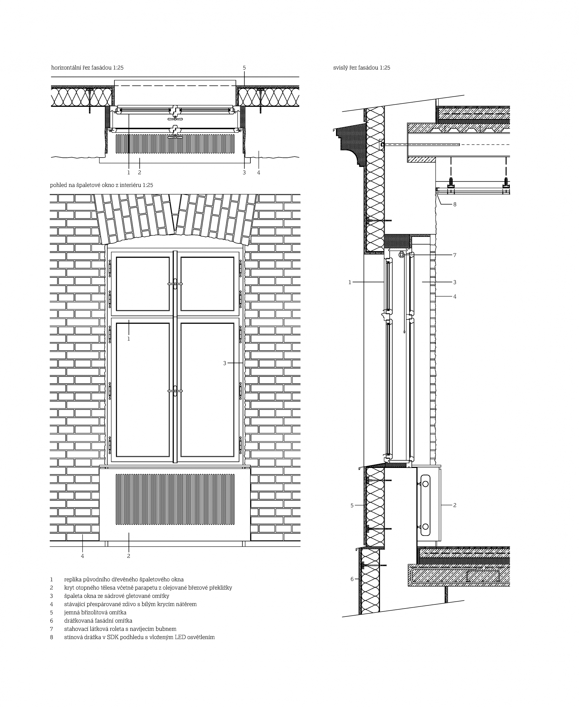
Z pôvodného domu sa napriek predpokladom zachovalo len obvodové murivo dvoch poschodí. Kvôli nenávratnému poškodeniu drevokazným hmyzom musel byť odstránený pôvodný krov a všetky drevené stropy. Krov bol nahradený vernou kópiou starého a zakrytý šablónami z prírodnej bridlice. Stropy nahradila únosnejšia spriahnutá konštrukcia z ocele a betónu. Hlboké základy stavby umožnili po vybetónovaní nových stropov a vyskladaní klenieb realizáciu ďalšieho využiteľného podlažia. Zníženie terénu z južnej strany otvorilo prístup pre denné svetlo a z vyhĺbenej jamy vznikol základ nového námestíčka. Z fasád boli odstránené necitlivé nánosy a po zateplení im boli prinavrátené historické prvky a detaily - brizolitová omietka, drevené vstupné dvere a kópie špaletových okien.
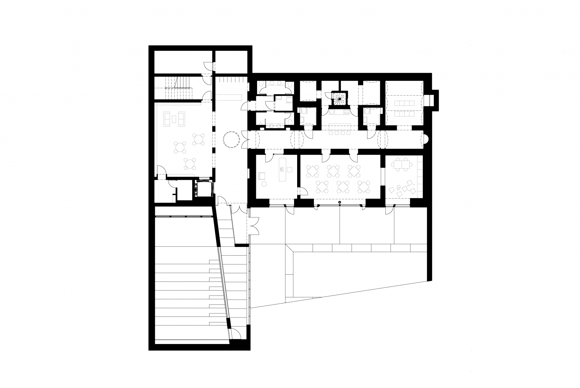
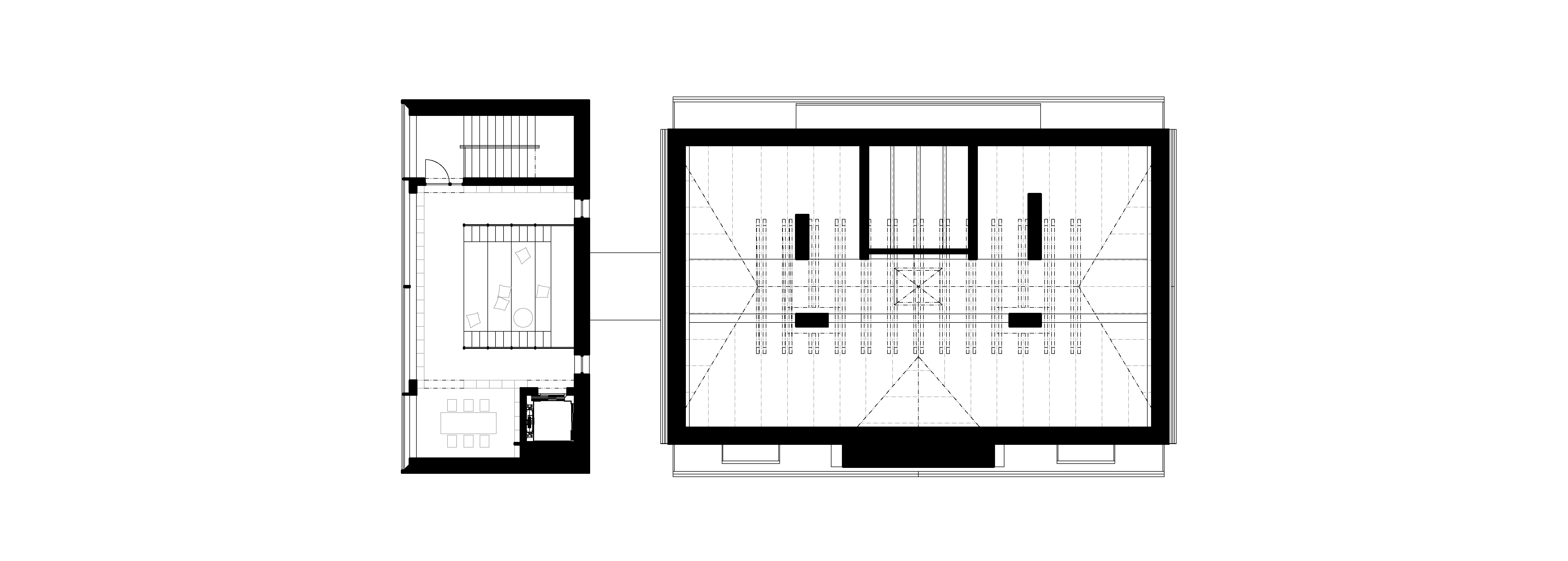
V polozapustenom podlaží našlo svoj domov materské centrum, presvetlené rozsiahlym preskleným portálom. Mamičky s deťmi majú vizuálny kontakt so stupňovitou piazzettou, môžu na ňu vystúpiť a využívať ju na hranie. Prízemie využívajú spolky. Horné poschodie, ktoré sprístupňuje spojovací krčok z prístavby, patrí detskej knižnici. Detské oddelenie tvorí hravý priestor otvorený do krovu. Patria sem čitárne, herne, odpočivárne a plocha knižnice s voľným výberom.
Veľkosť, tvar a umiestnenie prístavby vychádzajú z kontextu zámockého parku a objektu fary, ale aj ochranných pásiem stromov a vedenia sietí infraštruktúry. Výsledkom je objekt s úzkou kompaktnou trojpodlažnou nadzemnou časťou a dvojpodlažným suterénom. Do troch nadzemných podlaží je integrovaná typológia knižnice, pripomínajúca veľkosťou útulnú obývačku. Otvorený priestorový princíp knižnice zahŕňa na prízemí recepciu s výstupom na terasu. Ochodza s voľným výberom publikácií je na poschodí prepojená s pôvodnou budovou. Stupňovitá čitáreň využíva najvyššiu úroveň pod oblúkovou strechou. Schodisko na severnej strane prístavby priamo nezasahuje do priestoru knižnice. Rozsiahle presklené plochy na prízemí prístavby smerujú do zámockej záhrady a maximálnej miere využívajú kontakt so zeleňou parku. Panoramatické okno pod strechou je tak blízko stromom, že návštevníci v čitárne majú pocit, že sedia priamo v korunách. Južný priehľad na kostol Najsvätejšej Trojice sa otvára z prostredného poschodia. V zrkadle ochodze sa počas stavby našlo miesto na zavesenie rozmernej tapisérie s motívmi mestskej časti.
Podzemné poschodia ukrývajú kinosálu so šesťdesiatimi miestami, s malým lobby a šatňou v spoločnom vstupnom vestibule. Vestibul v úrovni suterénu prepája starý a nový dom. Súčasne funguje ako spoločný vstupný priestor kina a materského centra.
Nosná schránka prístavby je vrátane schodiska a štvrťkruhovej strechy odliata z konštrukčného železobetónu. Z exteriéru je kompletne kontaktne zateplená a obalená čiernym falcovaným plechom. Časť strechy podzemného kina pokrýva vegetačná strecha, časť funguje ako rampa, vedúca do priestoru medzi novým a starým domom. Z neho sa vstupuje do knižnice a bezbariérovo do historického domu. Svoj vlastný vstup má aj posledný prevádzkovo samostatný celok - spolky. Členovia spolkov vchádzajú do starého domu priamo z ulice.
Pohľadový betón v interiéri prístavby, obnažené vyšpárované klenby, tehlové a kamenné murivo sú mäkko vystlané drevenými sedíliami a policami s knihami. Tie vytvárajú úkryty a zákutia, kde môže návštevník neustále objavovať niečo nové.
Podklady: atakarchitekti
Foto: Tomáš Souček
Použité materiály a riešenia: Dostavba knižnice je zo strany exteriéru kompletne kontaktne zateplená a opláštená systémom PREFA Prefalz. Ako strešnú krytinu historického objektu fary zvolili strešnú šablónu takisto od spoločnosti PREFA.