AMPHIBIA 3000 GRIP 1.3 od spoločnosti ATRO predstavuje modernú hydroizolačnú technológiu, ktorá spája vysokú odolnosť,...
Ambiciózne plány EK narazili na ekonomické možnosti domácností v jednotlivých členských štátoch –...
IDEA DOOR od spoločnosti JAP prináša do interiéru čistý minimalistický vzhľad vďaka bezrámovému riešeniu a precíznej...
Nástenné nadomietkové armatúry Vitus sú mimoriadne vhodné pre rýchlu a efektívnu...
Okenné profily z kompozitného materiálu RAU-FIPRO X od spoločnosti Rehau sú v porovnaní s tradičnými plastovými profilmi mnohonásobne...
Najnovší sortiment stolov pre zariadenie interiérov...
Spojenie moderného dizajnu, funkčnosti a svetla do harmonického architektonického prvku.
Kancelárska budova Baumit v slovinskom Trzine prešla premenou na moderné a udržateľné pracovisko. Architekti kládli dôraz...
Mottom šiesteho ročníku on-line konferencie odborníkov Xella Dialóg je Efektívny návrh budov 2025+: zmeny a riešenia
Robot WLTR predstavuje moderný prístup k murovaným konštrukciám. Vďaka automatizácii dokáže rýchlo, presne a bezpečne realizovať...
Okrem bezpečnosti majú okná aj elegantný vzhľad, pretože nie sú viditeľné žiadne uzamykacie časti kovania.
Dvere MASTER v skrytej zárubni AKTIVE je možné vyrobiť až do výšky 3 700 mm
Internorm stavia na energetickú efektívnosť a inteligentné tieniace riešenia.
Slovensko vo výbere zastupuje šesť realizácií.
Spoločnosť Internorm odteraz stavia na novej variante tepelnoizolačného skla od AGC, ktorá v produkcii ročne ušetrí 10...

Prešovská realizácia ateliérov DOXA a bistan architekti vznikla na základe návrhu, ktorý zvíťazil v roku 2022 v rámci verejnej architektonickej súťaže. Porota, ktorá vyhodnotila koncept ako najlepší spomedzi 14 účastníkov, vo svojom hodnotení vyzdvihla najmä originálne priestorové riešenie, využívajúce vertikalitu centrálneho objektu, uvoľnenie dispozície a vytvorenie flexibilného rámca pre doplnkové funkčné využitie. Sme nesmierne radi, že dnes máme možnosť predstaviť zrealizované dielo, ktoré zachováva kľúčové prvky súťažného návrhu. Autorom sa podarilo dotiahnuť odvážny koncept do kvalitnej realizácie, pričom zúžitkovali svoje bohaté skúsenosti s týmto typologickým druhom.
Realizáciu predstavíme prostredníctvom sprievodného textu autorov:
Priestory Krajskej knižnice P. O. Hviezdoslava v Prešove tvoria tri pamiatkovo chránené meštianske domy na Slovenskej ulici. Objekty dopĺňa krídlo, ktoré predtým slúžilo ako učebne alebo internát. Areál pred rekonštrukciou patril Strednej odbornej škole dopravnej.
Tri meštianske domy sú dvojpodlažné, podpivničené, s rôznou výškou ríms a sedlovými strechami. Na úrovni 2. NP ich prepája historická pavlač orientovaná do dvora.
Hlavný vstup do areálu smeruje zo Slovenskej ulice cez dufart meštianskeho domu. Vjazd pre automobily jeje prístupný Konštantínovej ulice.
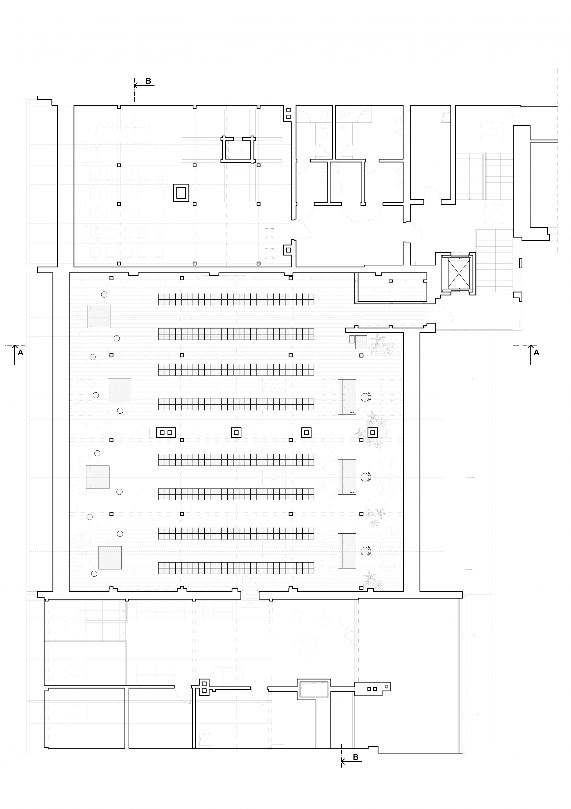
Hlavné priestory knižnice sa nachádzajú vo všetkých nadzemných podlažiach stredného meštianskeho domu. Pri obhliadke nás zaujala palácová mierka hlavných siení, využívajúcich celú šírku meštianskeho domu – od ulice až po dvor.
Nechceli sme vyplniť celý pôsobivý priestor regálmi – hľadali sme riešenie, ktoré umožní zažiť tieto palácové dimenzie a zároveň splniť požadované kapacity regálov
Potreba nevytvárať bariéry pre denné svetlo, ktoré vďaka vysokým oknám naplňuje siene, implikuje aj pozdĺžny smer uloženia regálov na všetkých podlažiach a spoločne s motívom subtílnych bielych políc vytvárame pre svetlo ľahko preniknuteľné prostredie.
Navrhujeme gradientné zahusťovanie priestoru regálmi odspodu smerom nahor. V hlavných sieňach na prízemí umiestňujeme k obvodovým stenám po dva dvojposchodové regály (vešané na spevňujúce oceľové nosníky, ktoré zároveň pomáhajú preniesť tiaž z regálov aj na poschodí).
Táto statická schéma nám umožnila zrealizovať regály zo subtílnej oceľovej tyčoviny - princíp zavesenia súvisí s vysokou odolnosťou materiálu pri namáhaní ťahom. Takto sa z regálu, ktorý nesie veľkú váhu kníh, stáva efemérna záclonová konštrukcia.
Na poschodí sú tri rady dlhých regálov. V podkroví priestor vypĺňame menšími zostavami. Mení sa vzťah priestoru k regálom a štruktúra pomáha pri orientácii - návštevník si uvedomuje v ktorej časti knižnice sa nachádza.
Vývoj stavebnej technológie v čase odzrkadľuje čitateľá prezentácia historických vrstiev objektu, ktoré završuje súčasné riešenie reflektujúce možnosti narábania s oceľou. Ilustrujeme tým “stenšovanie” konštrukcií v priebehu histórie. Od masívnych murovaných múrov cez liatinovú pavlač v neskoršom období až po navrhované oceľové prvky.
Definovanie trás pohybu nám pomohlo rozmiestniť regály a mobiliár a významovo dopovedať jednotlivé otvory. Taktiež autorský dizajn niektorých z mobiliárov reaguje i na postupné zahusťovanie pôdorysnej plochy smerom nahor.
Prvé nadzemné podlažie ponúka široké spektrum užívateľských režimov, čo podporuje komunitný kultúrny život. V nasledujúcich podlažiach sa multifunkčnosť vytráca a priestor sa postupne zaplavuje knihami.
Keďže priestor siení je priechodný bez chodieb a rozptylových priestorov, na prízemí návštevník prechádza diagonálne celou knižnicou – od vstupu ku komunikačnému jadru. Na tejto trase ho navigujú portály otvorov, hierarchia ich tvarov a dimenzií.
Na poschodí sa do hlavných siení vstupuje cez pavlače, rozhranie knižnice a nádvoria. Návštevník pokračuje do veľkého podkrovného priestoru a vyústi na terasu s výhľadom na strešnú krajinu historického centra Prešova.
Základné tézy architektonického konceptu:
Fotogaléria z procesu rekonštrukcie:
Základné údaje:
Stupne projektu:
Výmery:
celkové náklady: 1,2 mil. €
Autori: DOXA & bistan architekti
Fotografie: Alex Shoots Buildings