Sumarizácia najdôležitejších inovácií, ktoré redefinujúcich využitie tohto energetického zdroja.
AMPHIBIA 3000 GRIP 1.3 od spoločnosti ATRO predstavuje modernú hydroizolačnú technológiu, ktorá spája vysokú odolnosť,...
Ambiciózne plány EK narazili na ekonomické možnosti domácností v jednotlivých členských štátoch –...
IDEA DOOR od spoločnosti JAP prináša do interiéru čistý minimalistický vzhľad vďaka bezrámovému riešeniu a precíznej...
Nástenné nadomietkové armatúry Vitus sú mimoriadne vhodné pre rýchlu a efektívnu...
Okenné profily z kompozitného materiálu RAU-FIPRO X od spoločnosti Rehau sú v porovnaní s tradičnými plastovými profilmi mnohonásobne...
Najnovší sortiment stolov pre zariadenie interiérov...
Spojenie moderného dizajnu, funkčnosti a svetla do harmonického architektonického prvku.
Kancelárska budova Baumit v slovinskom Trzine prešla premenou na moderné a udržateľné pracovisko. Architekti kládli dôraz...
Mottom šiesteho ročníku on-line konferencie odborníkov Xella Dialóg je Efektívny návrh budov 2025+: zmeny a riešenia
Robot WLTR predstavuje moderný prístup k murovaným konštrukciám. Vďaka automatizácii dokáže rýchlo, presne a bezpečne realizovať...
Okrem bezpečnosti majú okná aj elegantný vzhľad, pretože nie sú viditeľné žiadne uzamykacie časti kovania.
Dvere MASTER v skrytej zárubni AKTIVE je možné vyrobiť až do výšky 3 700 mm
Internorm stavia na energetickú efektívnosť a inteligentné tieniace riešenia.
Slovensko vo výbere zastupuje šesť realizácií.

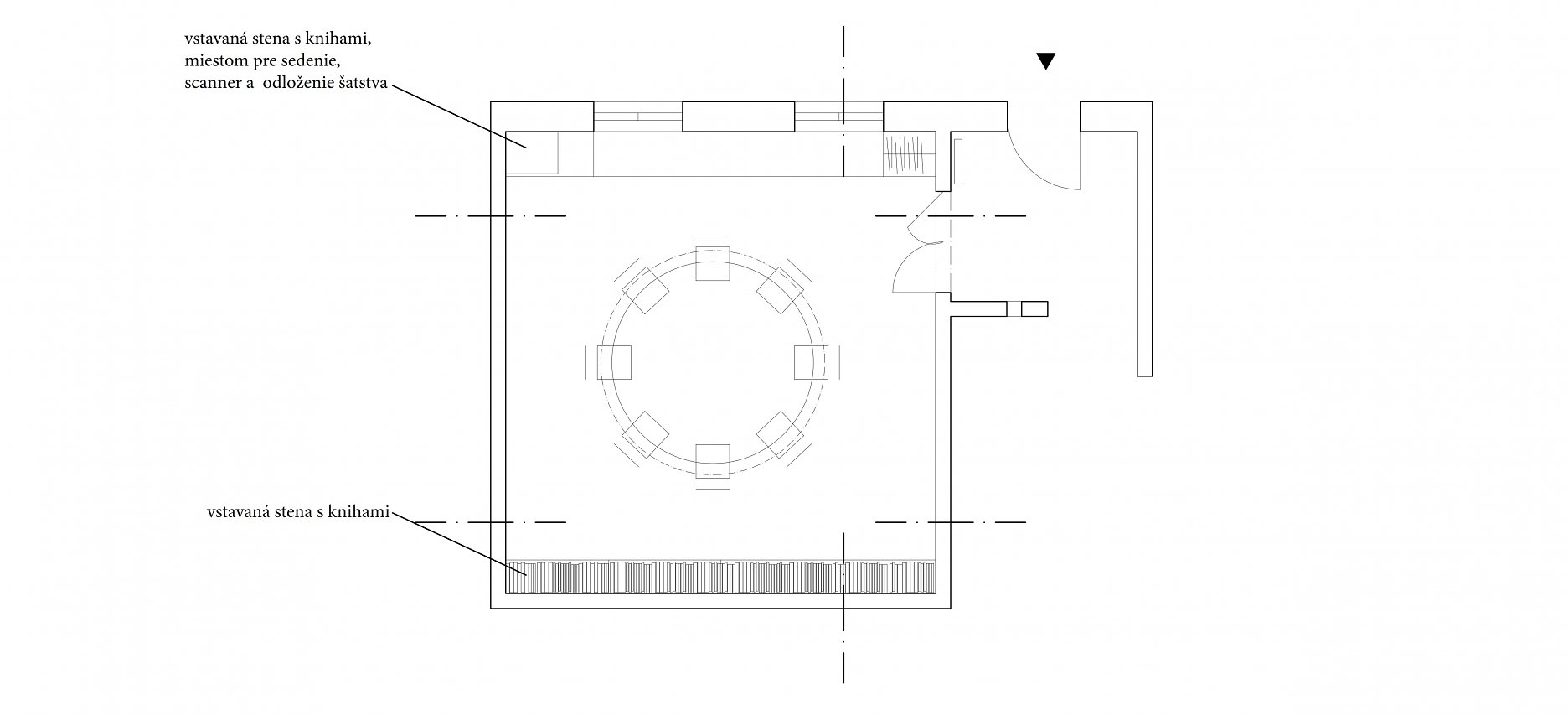
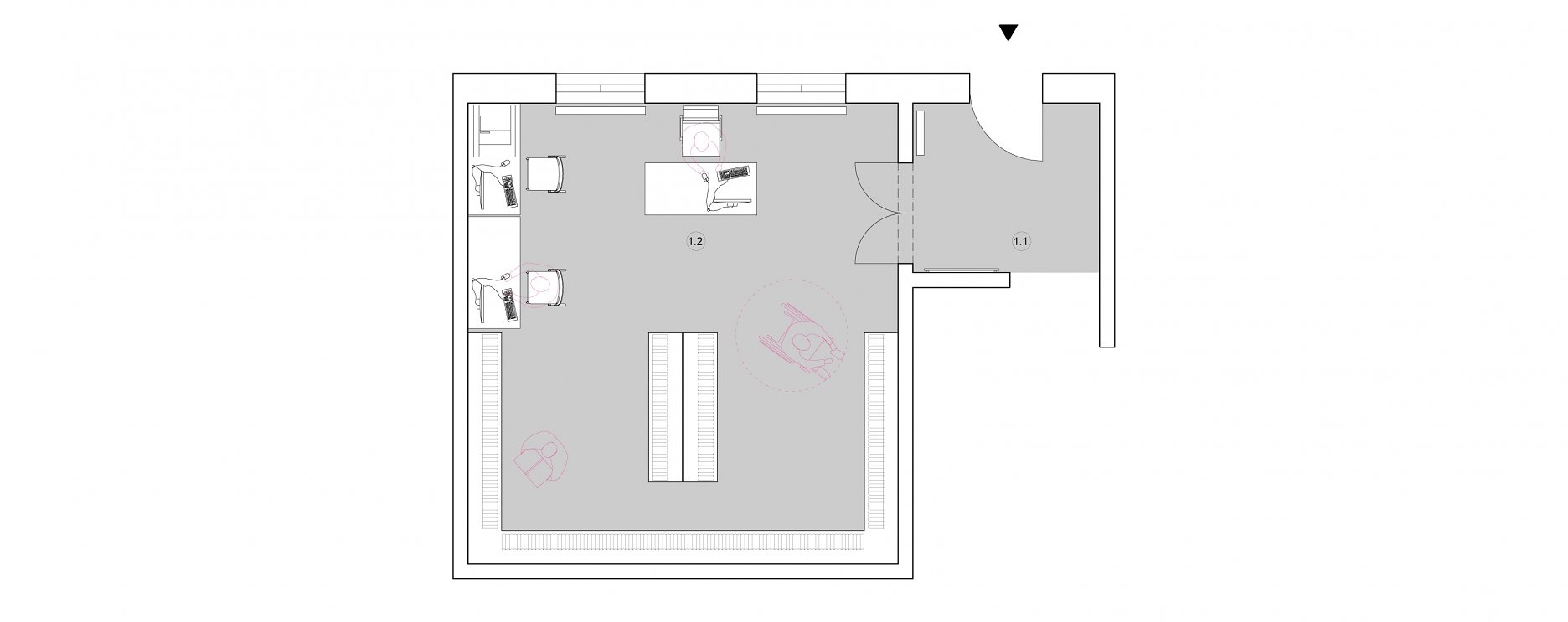
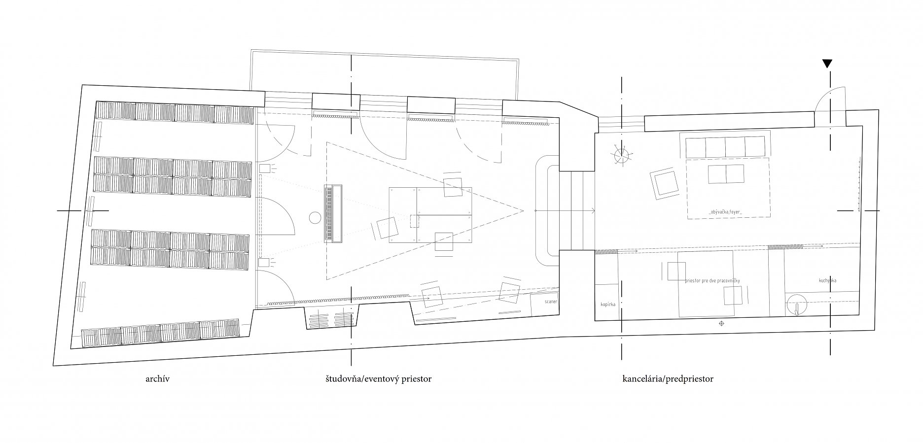
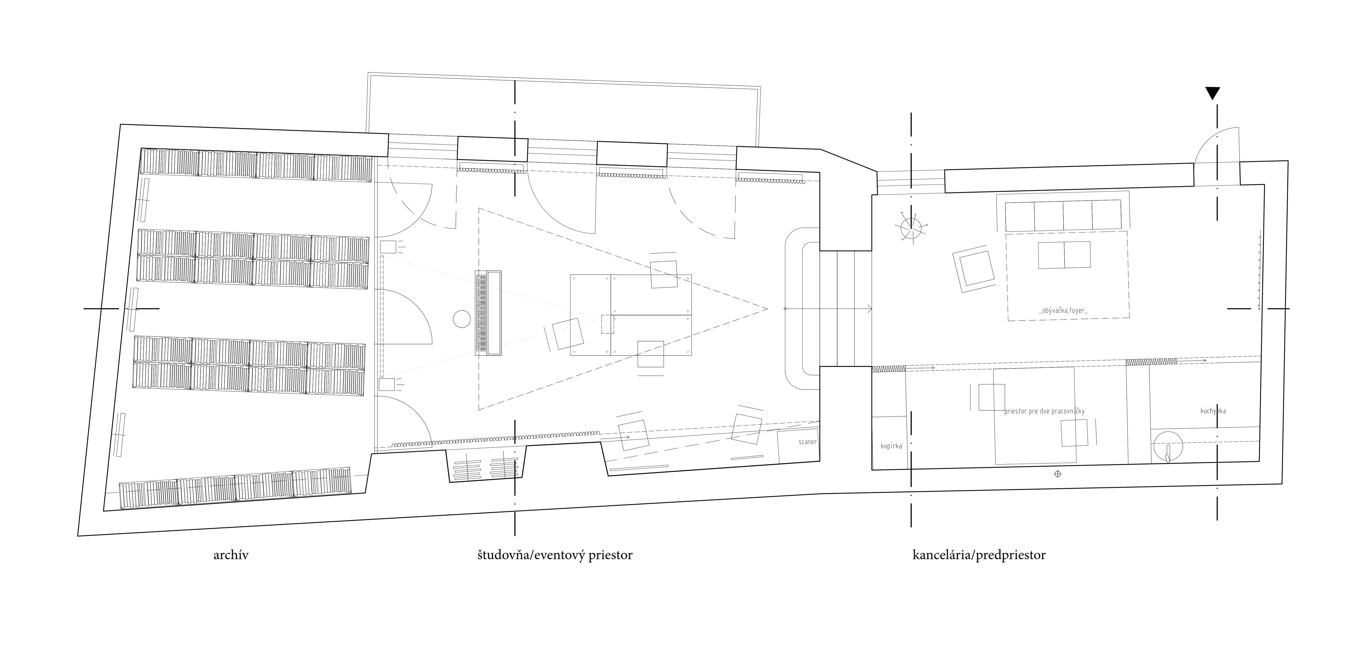
Keďže išlo o neveľké zadanie, investor sa rozhodol uprednostniť formát vyzvanej súťaže. Zadaním bolo navrhnúť interiér knižnice Hudobného centra. Zadávateľ požadoval multifunkčné využitie, čiže okrem samotnej knižnice s priestormi na študovanie knižničných materiálov mal priestor umožniť aj malé vystúpenie pre obecenstvo dvadsiatich ľudí. Taktiež mal obsahovať miesta na súkromné počúvanie hudby cez slúchadlá. Súčasťou požadovaných priestorov boli aj kancelárske miesta pre dvoch pracovníkov Hudobného centra. Centrum sa nachádza na Michalskej ulici, v objekte, ktorý bol v minulosti viackrát prestavaný. Riešený interiér pozostával z dvoch samostatne prístupných priestorov. Priamo z dvora sú bezbariérovo prístupné miestnosti číslo 1.1. a 1.2. Ťažiskový priestor knižnice tvoria miestnosti 2.1 (predsieň) a 2.2 (samotná knižnica). Tento sa nachádza na 2. NP a je prístupný pomocou vnútorného schodiska.
Porota zasadala v nasledovnom zložení: závislí členovia - Igor Valentovič, riaditeľ Hudobného centra, a Anna Žilková; nezávislí členovia - Michal C. Hronský (FA STU, predseda poroty), Martin Kusý ml. (autorizovaný architekt SKA), Róbert Bakyta (FA STU); náhradník - Beata Polomová (FA STU).
Na prvom mieste sa umiestnili architekti z ateliéru PLURAL.
Ťažiskom návrhu sa stalo jednoznačné riešenie systému regálov knižnice v miestnosti 2.2, ktoré architekti jasne umiestnili na zadnú stenu, pričom jej orientáciou voči jestvujúcej stene s nikami vznikol v zadnej časti priestor na odkladanie mobiliáru. Toto si vyžiadalo zbúranie jestvujúcej sadrokartónovej priečky, čím sa predtým predelená izba scelila. Návrh taktiež pracuje so systémom delenia priestoru pomocou ťažkého textilného závesu. Návrh prináša kvalitnú artikuláciu v kontexte členitého priestoru. Priestory 1.1 a 1.2 architekti riešili čisto a utilitárne, umiestnením regálov po obvode miestnosti. Ako nedostatok hodnotila porota dorazenie regálu na niky v priestore 2.2, pričom nebola vyžitá možnosť premennej hĺbky. Je to však problém riešiteľný v ďalšom stupni projektu.
Druhé miesto obsadili architekti z ateliéru 2021 architekti.
Hlavná myšlienka bola v sústredení zbierok do jedného archívu v miestnosti 2.2, ktorý je zavretý za deliacou stenou. Takéto riešenie síce jasne vymedzilo funkčné zóny, avšak delí hlavný neveľký priestor na dva ešte menšie. Porota taktiež ocenila flexibilitu priestoru 2.1., ktorý sa z kancelárie zatiahnutím závesu zmení na foyer využiteľný pri kultúrnych akciách v miestnosti 2.2. Sympatickým bolo umiestnenie čo možno najväčšieho počtu študijných materiálov do miestnosti 1.2 – bezbariérovo prístupnej. Porota taktiež ocenila veľmi dobre zvládnuté neprvoplánové narábanie so symbolmi pri osvetľovacích telesách.
Tretie miesto patrí tímu MikRo architects.
Porota vyzdvihla naozaj komplexné a detailné spracovanie návrhu. Návrh sa vyznačuje pestrými farbami a používaním symbolov pre prehrávanie hudby. Otázne sa však javí delenie oboch priestorov (knižnice 2.2 a študovne 2.1) v ploche podlahy či stien zmenou materiálov a farieb, ktoré by pri nepatrnom preorganizovaní nábytku prestalo fungovať.
Štvrté miesto patrí ateliéru z+v architects.
Farebne príjemne vyvážený a v detaile kultivovaný návrh však obsahuje prevádzkové problémy nezlúčiteľné s predstavou investora. Dispozičné nedostatky, a to najmä stabilná zonácia, potláčajú variabilitu priestorov.
Postoj zadávateľa pristúpiť k neveľkému zadaniu formou architektonickej súťaže sa dá označiť za chvályhodný a príkladný pre verejné subjekty podobného charakteru. Taktiež všetci zúčastnení vypracovali zadanie s patričnou vážnosťou a návrhy boli podané veľmi komplexne a sofistikovane
Text: Robert Bakyta
Článok bol publikovaný v časopise ARCH, číslo 3, ročník 2018.