Na podujatí sa predstaví až 37 vystavovateľov - popredných dodávateľov stavebných materiálov a inovácií s prezentáciou...
Novotvar v prostredí alpskej obce.
Hansgrohe - prémiová značka kúpeľňových riešení, ponúka nadčasový dizajn, technickú precíznosť a udržateľné inovácie...
Využite špeciálnu akciu Internorm: okná za minuloročné ceny a hliníkový kryt úplne zadarmo. Ponuka je časovo obmedzená!
Sumarizácia najdôležitejších inovácií, ktoré redefinujúcich využitie tohto energetického zdroja.
AMPHIBIA 3000 GRIP 1.3 od spoločnosti ATRO predstavuje modernú hydroizolačnú technológiu, ktorá spája vysokú odolnosť,...
Ambiciózne plány EK narazili na ekonomické možnosti domácností v jednotlivých členských štátoch –...
IDEA DOOR od spoločnosti JAP prináša do interiéru čistý minimalistický vzhľad vďaka bezrámovému riešeniu a precíznej...
Kontinuita riešenia od vonkajšieho obkladu až po kovania a kľučky.
Nástenné nadomietkové armatúry Vitus sú mimoriadne vhodné pre rýchlu a efektívnu...
Okenné profily z kompozitného materiálu RAU-FIPRO X od spoločnosti Rehau sú v porovnaní s tradičnými plastovými profilmi mnohonásobne...
Najnovší sortiment stolov pre zariadenie interiérov...
Spojenie moderného dizajnu, funkčnosti a svetla do harmonického architektonického prvku.
Kancelárska budova Baumit v slovinskom Trzine prešla premenou na moderné a udržateľné pracovisko. Architekti kládli dôraz...
Mottom šiesteho ročníku on-line konferencie odborníkov Xella Dialóg je Efektívny návrh budov 2025+: zmeny a riešenia

Aktuálna realizácia ateliéru bistan architekti stavia na skúsenostiach s predchádzajúcimi realizáciami v Senci, Modre a Prešove. Architektonický koncept využíva špecifickú geometriu priestorov a prepojenie podlubia domu v akcentovanej nárožnej polohe s exteriérom. Vnútorný knižný labirint s reflexnými plochami a pohyblivými regálmi vytvára priestor aj pre sprievodné aktivity a výstavy.
Kontext:
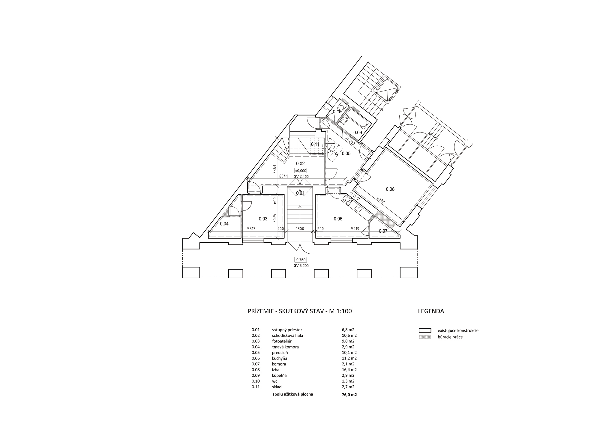
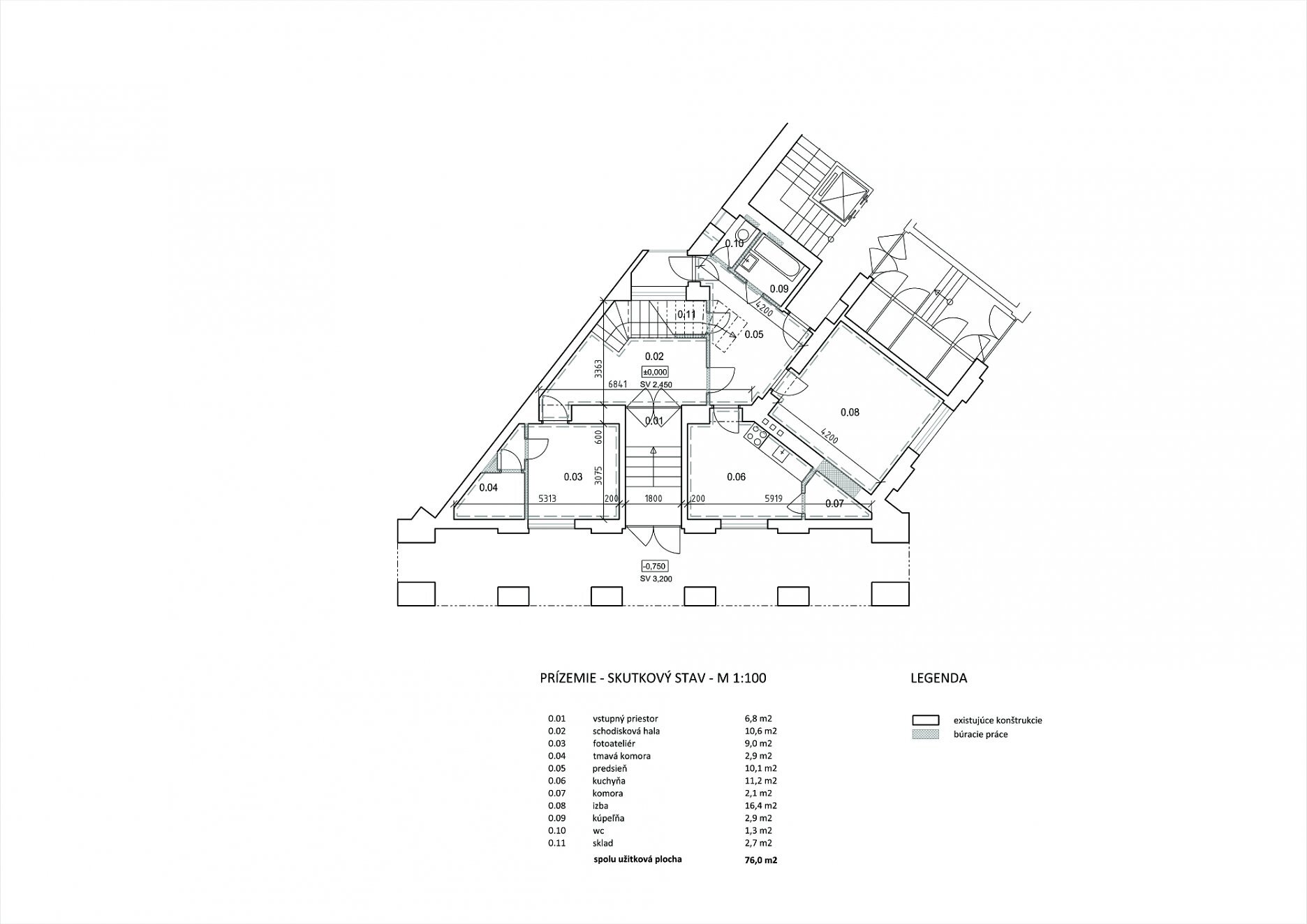
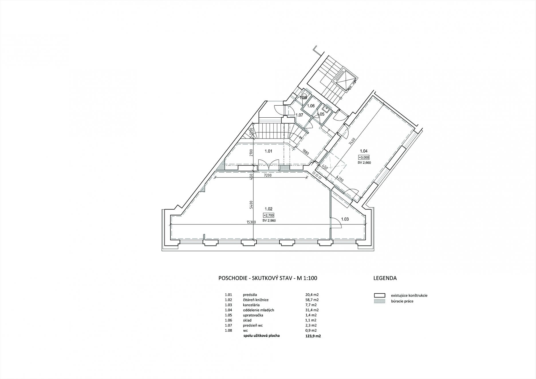
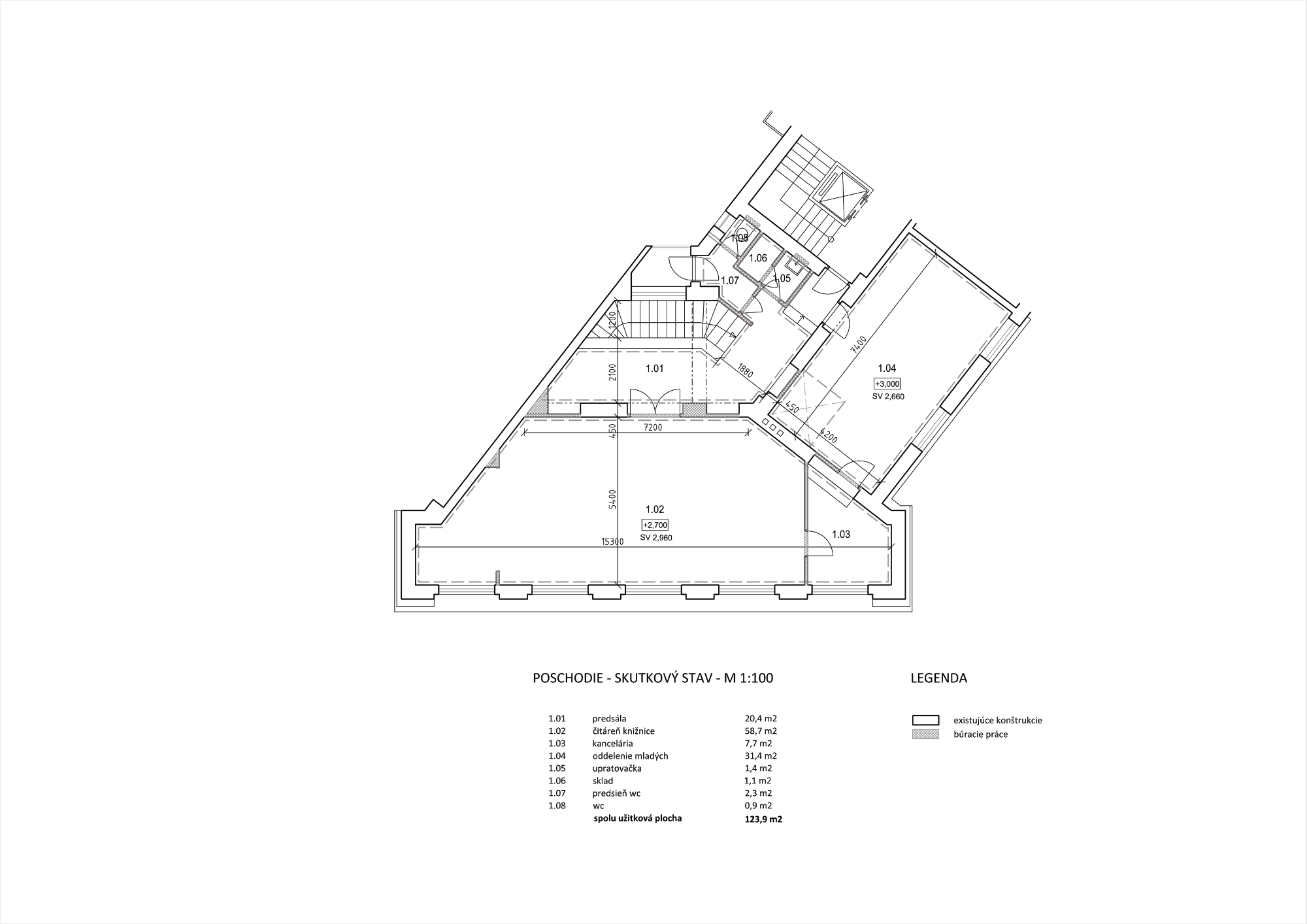
Mestský blok, ktorého súčasťou je Záhrebská ulica tvorí kompaktná mestská štruktúra prevažne tehlových bytových domov z prelomu 50. a 60. rokov minulého storočia. Blok vymedzujú ulice Mýtna, Povraznícka a Šancová. Centrum mestského bloku tvorí park pred vstupom do knižnice. Inštitúcia sídli na dobrej adrese, uprostred živej štvrte. Čitáreň na poschodí má veľkorysé okná orientované priamo do mestskej zelene.
Priestory knižnice na prízemí a poschodí šesťpodlažného bytového domu boli už v pôvodnom projekte koncipované ako komunitná zóna. Architektonicky je význam tohto priestoru jasne čitateľný na fasáde. Vstup vedie cez kryté podlubie, ktoré tvorí súčasť ulice. Okná hlavnej siene sú viditeľne veľkorysejšie a zvýraznené rímsami. Atypickú geometriu priestoru definujú bočné steny prisadené k fasáde pod uhlom 45 stupňov. V priestoroch na akcentovanom nároží mestského bloku pôvodne sídlil ženský spolok, neskôr Staromestská knižnica.
Návrh
Stavebná časť projektu pozostávala okrem búracích prác z realizácie statických zásahov (Pôvodne navrhnutá oceľová výmena na poschodí sa z ekonomických dôvodov nerealizovala). Stužujúca monolitická doska spevnila keramický strop veľkej čitárne. Finálnu vrstvu tvoria liate epoxidové podlahy. Pôvodné výplne otvorov nahradili nové drevené okná, v podlubí zasklenie v hliníkových rámoch. V rámci výmeny okien bola realizovaná rekuperácia. Projekt pokryl aj potrebu nového riešenia hygienického zázemia knižnice, rozvodov elektorinštalácie, osvetlenia a chladenia.
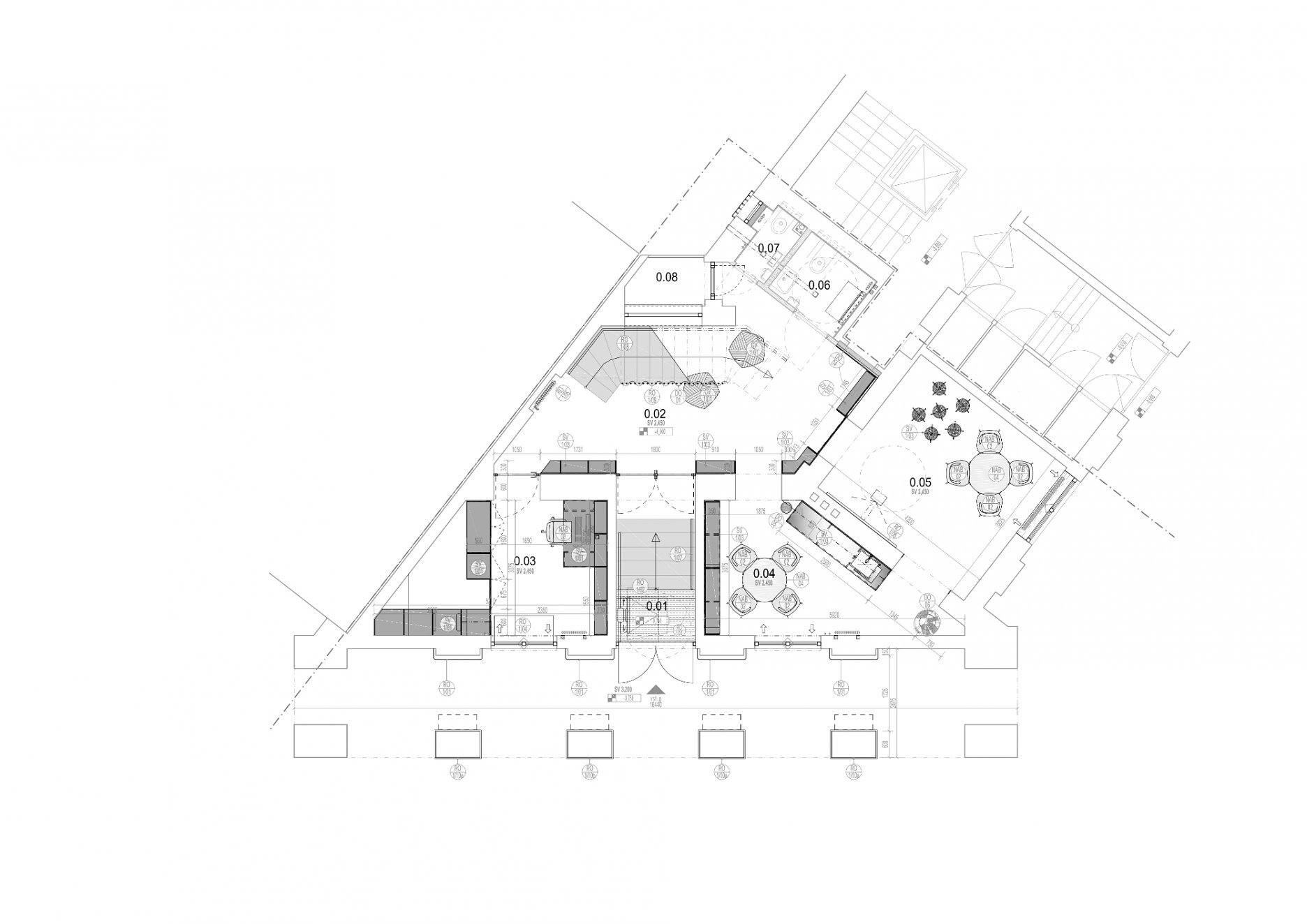
Samotný návrh a dizajn regálových systémov, vychádza zo spomínanej špecifickej geometrie priestoru. Prvotný raster aplikovaný v priestore určil narábanie so zariaďovacími prvkami. Architektonické riešenie pracuje tiež s mriežkou pilierov, charakteristických aj pre podlubie v exteriéri. Vnem, formovaný neprvoplánovou čitateľnosťou priestoru, zvýrazňujú reflexné plochy a prvky mobilných regálov, ktoré ho zahusťujú alebo uvoľňujú (nakoniec sa realizovali iba v detskom oddelení knižnice). Odrazy na vonkajších stenách priestorových zostáv vytvárajú labyrintovú atmosféru knižnice.
Priestorové policové zostavy majú pôdorysný tvar písmena L. Sú rôzne otočené, vytvárajú zákutia na čítanie,. Ich súčasťou je zväčša aj mobilný čalunícky výrobok na sedenie. V medziokenných priestoroch sa tieto zostavy menia na prezentačné stojany na knižné novinky. V dvoch prípadoch zostavy vytvárajú knihovnícky pult. Jedna takáto zostava slúži ako počítačové pracovisko návštevníka knižnice. Priestorové policové zostavy tvoria komponenty z lakovanej MDF dosky. Z vonkajšej strany je nalepený tenký leštený magnetický nerezový plech. Ostatné regále po obvode priestoru sú zhotovené z ohýbaného 5 mm galvanicky pozinkovaného oceľového plechu a kotvené priamo do steny.
Súčasťou zámeru bolo (pri čo najväčšej možnej kapacite knižných zväzkov) umožniť knižnici realizovať rôzne typy spoločenských podujatí. Reflexné plochy z lešteného kovu umožňujú prostredníctvom magnetiek inštalovať výstavy obrazov, grafík, typografie... Priestor má ambíciu stať sa verejným interiérom tejto mestskej štvrte.
Pozornosti sa nevyhol ani medzipriestor podlubia, čo sa prejavilo znížením parapetu okien a novým osvetlením. Navrhnuté svietiace piliere informujúce o programe v knižnici zatiaľ neboli realizované.
Zmenami prešlo tiež zázemie knižnice na obidvoch poschodiach. Na prízemí vznikla komunitná kuchynka, kde sa dá čítať a vypiť si kávu za rozmerným oknom, ktoré komunikuje s verejným priestorom. Hygienické zázemie má nerezové obklady aj sanitu. Výmenu vzduchu zabezpečujú decentralizované rekuperačné jednotky s centrálnym ovládaním, zabudované v parapetoch a nadpražiach okien. O chladenie čitární sa starajú klimatizačné jednotky s jednou exteriérovou multisplit jednotkou, ktorá je umiestnená na balkóne prízemia.
Financovanie
Projekt "Moderná knižnica v Starom Meste" podporil Európsky fond regionálneho rozvoja, ktorého poskytovateľom bolo Ministerstvo investícií, regionálneho rozvoja a informatizácie Slovenskej Republiky v zastúpení Ministerstva kultúry Slovenskej republiky. Projekt "Interiér Staromestskej knižnice" zastrešil Fond na podporu umenia a MČ Bratislava-Staré Mesto. Externé zdroje v podobe eurofondov predstavovali sumu 199 496 eur a Mestská časť Bratislava-Staré Mesto podporila projekt stavebnej časti sumou vo výške 143 946 eur. Z grantovej výzvy FPU – Komplexná infraštruktúra knižníc získala Staromestská knižnica na projekt "Interiér Staromestskej knižnice" dotáciu vo výške 65 000 eur a Mestská časť Staré Mesto prispela 50 000 eur. Staromestská knižnica investovala z vlastných zdrojov sumu 33 760 eur.
Stavebná rekonštrukcia pobočky na Záhrebskej trvala do konca decembra 2023 a následne začala realizácia interiérového vybavenia, ktorá sa skončila v júni 2024.
Fotografie z procesu rekonštrukcie priestorov knižnice:
Podklady: bistan architekti
Fotografie: Ján Kekeli